四谷三丁目駅の賃貸オフィス・貸事務所情報
東京メトロ丸ノ内線「四谷三丁目駅」。新宿通りと外苑東通りが交差する交通の要所に位置し、新宿のビジネス機能と四谷の落ち着きが共存するエリアです。消防博物館などの公的施設や、洗練された飲食店が並ぶ荒木町にも近く、都心の利便性を享受しながら独自の文化が薫る、戦略的価値の高い拠点です。
検索結果 93 件
べルックス新宿ビルⅡ(新宿区、愛住町、曙橋、四谷三丁目)
- 所在地
- 東京都新宿区愛住町23-2
- 最寄り駅
- 曙橋駅徒歩4分、四谷三丁目駅徒歩7分、新宿御苑前駅徒歩12分
- 竣工
- 1992年
- 規模
- 地上11階
- 耐震基準
- 新耐震基準適合
- セキュリティ
- 機械警備(24時間監視)
- 駐車場設備
- 有
- 設備
- トイレ男女別
べルックス新宿ビルⅡ の募集区画 (総募集面積 42.76坪)
※月額費用、坪単価 ともに共益費込・税別の価格です
愛住ハイツ(新宿区、愛住町、曙橋、四谷三丁目)
- 所在地
- 東京都新宿区愛住町20
- 最寄り駅
- 曙橋駅徒歩3分、四谷三丁目駅徒歩5分
- 竣工
- 1967年
- 規模
- 地上10階
- 駐車場設備
- 要確認
愛住ハイツ の募集区画 (総募集面積 14.14坪)
※月額費用、坪単価 ともに共益費込・税別の価格です
泰美ビル(新宿区、愛住町、曙橋、四谷三丁目)
- 所在地
- 東京都新宿区愛住町19-13
- 最寄り駅
- 曙橋駅徒歩5分、四谷三丁目駅徒歩6分、新宿御苑前駅徒歩11分
- 竣工
- 1978年
- 規模
- 地上6階
- セキュリティ
- 機械警備(24時間監視)
- 駐車場設備
- 無
- 設備
- トイレ男女別
泰美ビル の募集区画 (総募集面積 42.89坪)
※月額費用、坪単価 ともに共益費込・税別の価格です
アカギビル(新宿区、荒木町、四谷三丁目、曙橋)
- 所在地
- 東京都新宿区荒木町6
- 最寄り駅
- 四谷三丁目駅徒歩5分、曙橋駅徒歩8分、四ツ谷駅徒歩11分
- 竣工
- 1972年
- 規模
- 地上3階
- 駐車場設備
- 要確認
アカギビル の募集区画 (総募集面積 14.59坪)
※月額費用、坪単価 ともに共益費込・税別の価格です
Jビル四谷荒木町(新宿区、荒木町、曙橋、四谷三丁目)
- 所在地
- 東京都新宿区荒木町22-23
- 最寄り駅
- 曙橋駅徒歩1分、四谷三丁目駅徒歩8分、四ツ谷駅徒歩16分
- 竣工
- 2023年
- 規模
- 地上4階
- 耐震基準
- 新耐震基準適合
- セキュリティ
- 機械警備(24時間監視)
- 駐車場設備
- 無
Jビル四谷荒木町 の募集区画 (総募集面積 28.54坪)
※月額費用、坪単価 ともに共益費込・税別の価格です
荒木町ガーデンズ(新宿区、荒木町、四谷三丁目、曙橋)
- 所在地
- 東京都新宿区荒木町6-1
- 最寄り駅
- 四谷三丁目駅徒歩3分、曙橋駅徒歩6分
- 竣工
- 2024年
- 規模
- 地上3階
- 耐震基準
- 新耐震基準適合
- セキュリティ
- 機械警備(24時間監視)
- 駐車場設備
- 無
荒木町ガーデンズ の募集区画 (総募集面積 44.71坪)
| 図面 | 階数 | 坪数 | 月額費用 | 坪単価 | 入居可能日 | |
|---|---|---|---|---|---|---|
![]() | 1階 | 19.40坪 | 582,000円 | 30,000円 | 2026/6/下 | 検討リスト お問い合わせ |
![]() | 2階 | 25.31坪 | 455,580円 | 18,000円 | 2026/4/中 | 検討リスト お問い合わせ |
※月額費用、坪単価 ともに共益費込・税別の価格です
MIB四谷ビル(新宿区、荒木町、曙橋、四谷三丁目)
- 所在地
- 東京都新宿区荒木町22-42
- 最寄り駅
- 曙橋駅徒歩3分、四谷三丁目駅徒歩5分、四ツ谷駅徒歩13分
- 竣工
- 1987年
- 規模
- 地上5階
- 耐震基準
- 新耐震基準適合
- セキュリティ
- 機械警備(24時間監視)
- 駐車場設備
- 有
- 設備
- トイレ男女別
MIB四谷ビル の募集区画 (総募集面積 63.10坪)
※月額費用、坪単価 ともに共益費込・税別の価格です
ラ・ベルロシェ(新宿区、荒木町、四谷三丁目、曙橋)
- 所在地
- 東京都新宿区荒木町6-4
- 最寄り駅
- 四谷三丁目駅徒歩3分、曙橋駅徒歩5分、四ツ谷駅徒歩11分
- 竣工
- 1989年
- 規模
- 地上5階
- 耐震基準
- 新耐震基準適合
- 駐車場設備
- 要確認
ラ・ベルロシェ の募集区画 (総募集面積 23.34坪)
| 図面 | 階数 | 坪数 | 月額費用 | 坪単価 | 入居可能日 | |
|---|---|---|---|---|---|---|
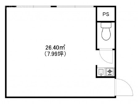
![]() | 1階 | 7.99坪 | 144,000円 | 18,023円 | 即時 | 検討リスト お問い合わせ |
準備中 | 1階 | 15.35坪 | 307,000円 | 20,000円 | 相談 | 検討リスト お問い合わせ |
※月額費用、坪単価 ともに共益費込・税別の価格です
市ヶ谷キャナルコート(新宿区、市谷本村町、市ケ谷、四ツ谷)
- 所在地
- 東京都新宿区市谷本村町2-21
- 最寄り駅
- 市ケ谷駅徒歩5分、四ツ谷駅徒歩7分、四谷三丁目駅徒歩17分
- 竣工
- 1992年
- 規模
- 地上9階
- 耐震基準
- 新耐震基準適合
- セキュリティ
- 機械警備(24時間監視)
- 駐車場設備
- 有
- 設備
- トイレ男女別
市ヶ谷キャナルコート の募集区画 (総募集面積 189.64坪)
| 図面 | 階数 | 坪数 | 月額費用 | 坪単価 | 入居可能日 | |
|---|---|---|---|---|---|---|
![]() | 7階 | 94.82坪 | 2,275,680円 | 24,000円 | 即時 | 検討リスト お問い合わせ |
![]() | 8階 | 94.82坪 | 2,275,680円 | 24,000円 | 即時 | 検討リスト お問い合わせ |
※月額費用、坪単価 ともに共益費込・税別の価格です
ロイクラトン左門町(左門町ミワ)ビル(新宿区、左門町、四谷三丁目、四ツ谷)
- 所在地
- 東京都新宿区左門町10-19
- 最寄り駅
- 四谷三丁目駅徒歩4分、四ツ谷駅徒歩10分、信濃町駅徒歩10分
- 竣工
- 1992年
- 規模
- 地上3階
- 耐震基準
- 新耐震基準適合
- 駐車場設備
- 要確認
ロイクラトン左門町(左門町ミワ)ビル の募集区画 (総募集面積 14.76坪)
※月額費用、坪単価 ともに共益費込・税別の価格です
SEN四谷ビル(新宿区、左門町、四谷三丁目、四ツ谷)
- 所在地
- 東京都新宿区左門町6-17
- 最寄り駅
- 四谷三丁目駅徒歩2分、四ツ谷駅徒歩6分、信濃町駅徒歩8分
- 竣工
- 1994年
- 規模
- 地上7階・地下1階
- 耐震基準
- 新耐震基準適合
- セキュリティ
- 機械警備(24時間監視)
- 駐車場設備
- 無
SEN四谷ビル の募集区画 (総募集面積 24.05坪)
※月額費用、坪単価 ともに共益費込・税別の価格です
トーシン信濃町駅前ビル(新宿区、信濃町、国立競技場、四谷三丁目)
- 所在地
- 東京都新宿区信濃町34
- 最寄り駅
- 信濃町駅徒歩1分、国立競技場駅徒歩7分、四谷三丁目駅徒歩12分
- 竣工
- 1968年
- 規模
- 地上6階・地下1階
- セキュリティ
- 機械警備(24時間監視)
- 駐車場設備
- 有(自走式駐車場完備)
- 設備
- トイレ男女別
トーシン信濃町駅前ビル の募集区画 (総募集面積 45.00坪)
※月額費用、坪単価 ともに共益費込・税別の価格です
森田ビル(新宿区、信濃町、四谷三丁目)
- 所在地
- 東京都新宿区信濃町21-7
- 最寄り駅
- 信濃町駅徒歩4分、四谷三丁目駅徒歩8分
- 竣工
- 1986年
- 規模
- 地上4階
- 耐震基準
- 新耐震基準適合
- 駐車場設備
- 無
森田ビル の募集区画 (総募集面積 23.00坪)
※月額費用、坪単価 ともに共益費込・税別の価格です
慶應堂御苑ビル(新宿区、新宿、新宿御苑前、四谷三丁目)
- 所在地
- 東京都新宿区新宿1-11-13
- 最寄り駅
- 新宿御苑前駅徒歩2分、四谷三丁目駅徒歩9分
- 竣工
- 1991年
- 規模
- 地上7階
- 耐震基準
- 新耐震基準適合
- 駐車場設備
- 無
慶應堂御苑ビル の募集区画 (総募集面積 19.45坪)
※月額費用、坪単価 ともに共益費込・税別の価格です
新宿KMビル(新宿区、新宿、新宿御苑前、新宿三丁目)
- 所在地
- 東京都新宿区新宿1-14-5
- 最寄り駅
- 新宿御苑前駅徒歩1分、新宿三丁目駅徒歩5分、四谷三丁目駅徒歩14分
- 竣工
- 1994年
- 規模
- 地上10階
- 耐震基準
- 新耐震基準適合
- セキュリティ
- 機械警備(24時間監視)
- 駐車場設備
- 無
- 設備
- トイレ男女別
新宿KMビル の募集区画 (総募集面積 35.84坪)
※月額費用、坪単価 ともに共益費込・税別の価格です
サンモールクレスト(新宿区、新宿、新宿御苑前、新宿三丁目)
- 所在地
- 東京都新宿区新宿1-19-10
- 最寄り駅
- 新宿御苑前駅徒歩3分、新宿三丁目駅徒歩7分、四谷三丁目駅徒歩8分
- 竣工
- 1988年
- 規模
- 地上10階・地下3階
- 耐震基準
- 新耐震基準適合
- セキュリティ
- 機械警備(24時間監視)
- 駐車場設備
- 有
- 設備
- トイレ男女別
サンモールクレスト の募集区画 (総募集面積 37.54坪)
※月額費用、坪単価 ともに共益費込・税別の価格です
御苑前サンライズビル(新宿区、新宿、新宿御苑前、四谷三丁目)
- 所在地
- 東京都新宿区新宿1-11-15
- 最寄り駅
- 新宿御苑前駅徒歩3分、四谷三丁目駅徒歩8分、新宿駅徒歩20分
- 竣工
- 1988年
- 規模
- 地上7階
- 耐震基準
- 新耐震基準適合
- セキュリティ
- 機械警備(24時間監視)
- 駐車場設備
- 無
- 設備
- トイレ男女別
御苑前サンライズビル の募集区画 (総募集面積 27.25坪)
※月額費用、坪単価 ともに共益費込・税別の価格です
サンサーラ第3御苑(新宿区、新宿、新宿御苑前、新宿三丁目)
- 所在地
- 東京都新宿区新宿1-12-1
- 最寄り駅
- 新宿御苑前駅徒歩2分、新宿三丁目駅徒歩8分、四谷三丁目駅徒歩10分
- 竣工
- 1985年
- 規模
- 地上8階
- 耐震基準
- 新耐震基準適合
- セキュリティ
- 機械警備(24時間監視)
- 駐車場設備
- 有
サンサーラ第3御苑 の募集区画 (総募集面積 43.63坪)
※月額費用、坪単価 ともに共益費込・税別の価格です
新宿村田ビル(新宿区、新宿、新宿御苑前、新宿三丁目)
- 所在地
- 東京都新宿区新宿1-28-4
- 最寄り駅
- 新宿御苑前駅徒歩4分、新宿三丁目駅徒歩8分、四谷三丁目駅徒歩14分
- 竣工
- 1980年
- 規模
- 地上6階
- 駐車場設備
- 要確認
新宿村田ビル の募集区画 (総募集面積 15.06坪)
※月額費用、坪単価 ともに共益費込・税別の価格です
新宿御苑フロントビル(新宿区、新宿、新宿御苑前、新宿三丁目)
- 所在地
- 東京都新宿区新宿1-6-3
- 最寄り駅
- 新宿御苑前駅徒歩1分、新宿三丁目駅徒歩8分、四谷三丁目駅徒歩13分
- 竣工
- 1988年
- 規模
- 地上9階・地下1階
- 耐震基準
- 新耐震基準適合
- セキュリティ
- 機械警備(24時間監視)
- 駐車場設備
- 無
- 設備
- トイレ男女別、 喫煙室
新宿御苑フロントビル の募集区画 (総募集面積 67.99坪)
※月額費用、坪単価 ともに共益費込・税別の価格です
新宿御苑ビル(新宿区、新宿、四谷三丁目、新宿三丁目)
- 所在地
- 東京都新宿区新宿2-3-10
- 最寄り駅
- 四谷三丁目駅徒歩2分、新宿三丁目駅徒歩3分、新宿御苑前駅徒歩5分
- 竣工
- 1989年
- 規模
- 地上10階・地下2階
- 耐震基準
- 新耐震基準適合
- セキュリティ
- 機械警備(24時間監視)
- 駐車場設備
- 要確認
新宿御苑ビル の募集区画 (総募集面積 110.56坪)
※月額費用、坪単価 ともに共益費込・税別の価格です
葵ビル(新宿区、新宿、新宿御苑前、新宿三丁目)
- 所在地
- 東京都新宿区新宿1-13-8
- 最寄り駅
- 新宿御苑前駅徒歩2分、新宿三丁目駅徒歩10分、四谷三丁目駅徒歩11分
- 竣工
- 1974年
- 規模
- 地上5階・地下1階
- 駐車場設備
- 要確認
葵ビル の募集区画 (総募集面積 16.73坪)
※月額費用、坪単価 ともに共益費込・税別の価格です
四谷オーキッドビル(新宿区、大京町、四谷三丁目、新宿御苑前)
- 所在地
- 東京都新宿区大京町23-3
- 最寄り駅
- 四谷三丁目駅徒歩8分、新宿御苑前駅徒歩8分、国立競技場駅徒歩9分
- 竣工
- 1987年
- 規模
- 地上10階・地下1階
- 耐震基準
- 新耐震基準適合
- セキュリティ
- 機械警備(24時間監視)
- 駐車場設備
- 有(平面式(地下駐車場)11台 全高(車路の天井高)2,270mm)
- 設備
- オフィス専用ゾーン制御、 24時間(要ICカード)、 トイレ男女別
四谷オーキッドビル の募集区画 (総募集面積 87.06坪)
※月額費用、坪単価 ともに共益費込・税別の価格です
オオタケ第5ビル(新宿区、大京町、四谷三丁目、信濃町)
- 所在地
- 東京都新宿区大京町4-6
- 最寄り駅
- 四谷三丁目駅徒歩4分、信濃町駅徒歩8分、新宿御苑前駅徒歩14分
- 竣工
- 1993年
- 規模
- 地上3階・地下1階
- 耐震基準
- 新耐震基準適合
- セキュリティ
- 共用部警備なし(簡易管理)
- 駐車場設備
- 要確認
オオタケ第5ビル の募集区画 (総募集面積 17.64坪)
※月額費用、坪単価 ともに共益費込・税別の価格です
グランファースト新宿御苑(新宿区、大京町、四谷三丁目、新宿御苑前)
- 所在地
- 東京都新宿区大京町22-1
- 最寄り駅
- 四谷三丁目駅徒歩5分、新宿御苑前駅徒歩6分、国立競技場駅徒歩12分
- 竣工
- 1986年
- 規模
- 地上8階・地下1階
- 耐震基準
- 新耐震基準適合
- 駐車場設備
- 有
グランファースト新宿御苑 の募集区画 (総募集面積 538.43坪)
| 図面 | 階数 | 坪数 | 月額費用 | 坪単価 | 入居可能日 | |
|---|---|---|---|---|---|---|
![]() | 4階 | 128.28坪 | 3,591,840円 | 28,000円 | 即時 | 検討リスト お問い合わせ |
![]() | 6階 | 128.28坪 | 3,591,840円 | 28,000円 | 即時 | 検討リスト お問い合わせ |
![]() | 7階 | 128.28坪 | 3,591,840円 | 28,000円 | 即時 | 検討リスト お問い合わせ |
![]() | 3階 | 153.59坪 | 4,300,520円 | 28,000円 | 即時 | 検討リスト お問い合わせ |
※月額費用、坪単価 ともに共益費込・税別の価格です
プラウドフラット新宿御苑(新宿区、大京町、国立競技場、千駄ケ谷)
- 所在地
- 東京都新宿区大京町28-12
- 最寄り駅
- 国立競技場駅徒歩4分、千駄ケ谷駅徒歩5分、四谷三丁目駅徒歩12分
- 竣工
- 2009年
- 規模
- 地上10階
- 耐震基準
- 新耐震基準適合
- セキュリティ
- 機械警備(24時間監視)
- 駐車場設備
- 要確認
プラウドフラット新宿御苑 の募集区画 (総募集面積 11.94坪)
※月額費用、坪単価 ともに共益費込・税別の価格です
ガーデンクロス新宿御苑(新宿区、内藤町、四谷三丁目、新宿御苑前)
- 所在地
- 東京都新宿区内藤町1-110
- 最寄り駅
- 四谷三丁目駅徒歩6分、新宿御苑前駅徒歩6分、千駄ケ谷駅徒歩12分
- 竣工
- 1983年
- 規模
- 地上10階・地下1階
- 耐震基準
- 新耐震基準適合
- セキュリティ
- 機械警備(24時間監視)
- 駐車場設備
- 無
- 設備
- リニューアル済み、 トイレ男女別
ガーデンクロス新宿御苑 の募集区画 (総募集面積 32.05坪)
※月額費用、坪単価 ともに共益費込・税別の価格です
スタッフハウスビル(新宿区、内藤町、新宿御苑前、四谷三丁目)
- 所在地
- 東京都新宿区内藤町1-5
- 最寄り駅
- 新宿御苑前駅徒歩10分、四谷三丁目駅徒歩8分、千駄ケ谷駅徒歩10分
- 竣工
- 1992年
- 規模
- 地上5階
- 耐震基準
- 新耐震基準適合
- セキュリティ
- 機械警備(24時間監視)
- 駐車場設備
- 有
- 設備
- トイレ男女別
スタッフハウスビル の募集区画 (総募集面積 83.10坪)
※月額費用、坪単価 ともに共益費込・税別の価格です
OF信濃町ビル(新宿区、南元町、信濃町、四谷三丁目)
- 所在地
- 東京都新宿区南元町4-45
- 最寄り駅
- 信濃町駅徒歩7分、四谷三丁目駅徒歩13分、四ツ谷駅徒歩15分
- 竣工
- 1990年
- 規模
- 地上3階・地下1階
- 耐震基準
- 新耐震基準適合
- セキュリティ
- 機械警備(24時間監視)
- 駐車場設備
- 有
- 設備
- 非接触ICカード
OF信濃町ビル の募集区画 (総募集面積 235.78坪)
| 図面 | 階数 | 坪数 | 月額費用 | 坪単価 | 入居可能日 | |
|---|---|---|---|---|---|---|
![]() | 3階 | 117.98坪 | 1,448,000円 | 12,273円 | 即時 | 検討リスト お問い合わせ |
![]() | 2階 | 58.90坪 | 728,000円 | 12,360円 | 即時 | 検討リスト お問い合わせ |
![]() | 3階 | 58.90坪 | 720,000円 | 12,224円 | 即時 | 検討リスト お問い合わせ |
※月額費用、坪単価 ともに共益費込・税別の価格です
T.J.K四谷ビルディング(虎ノ門実業会館四谷ビル)(新宿区、四谷、四ツ谷、四谷三丁目)
- 所在地
- 東京都新宿区四谷1-13-1
- 最寄り駅
- 四ツ谷駅徒歩3分、四谷三丁目駅徒歩11分、麹町駅徒歩12分
- 竣工
- 1987年
- 規模
- 地上4階・地下2階
- 耐震基準
- 新耐震基準適合
- セキュリティ
- 機械警備(24時間監視)
- 駐車場設備
- 有
- 設備
- トイレ男女別
T.J.K四谷ビルディング(虎ノ門実業会館四谷ビル) の募集区画 (総募集面積 84.60坪)
※月額費用、坪単価 ともに共益費込・税別の価格です
オオノヤビル(新宿区、四谷、四ツ谷、四谷三丁目)
- 所在地
- 東京都新宿区四谷1-18-8
- 最寄り駅
- 四ツ谷駅徒歩3分、四谷三丁目駅徒歩9分、市ケ谷駅徒歩15分
- 竣工
- 1974年
- 規模
- 地上8階
- セキュリティ
- 機械警備(24時間監視)
- 駐車場設備
- 無
オオノヤビル の募集区画 (総募集面積 31.30坪)
※月額費用、坪単価 ともに共益費込・税別の価格です
クニヤビル(新宿区、四谷、四ツ谷、麹町)
- 所在地
- 東京都新宿区四谷1-2-4
- 最寄り駅
- 四ツ谷駅徒歩1分、麹町駅徒歩11分、四谷三丁目駅徒歩12分
- 竣工
- 1969年
- 規模
- 地上5階
- セキュリティ
- 機械警備(24時間監視)
- 駐車場設備
- 無
クニヤビル の募集区画 (総募集面積 30.00坪)
※月額費用、坪単価 ともに共益費込・税別の価格です
大久保ビル(新宿区、四谷、四ツ谷、四谷三丁目)
- 所在地
- 東京都新宿区四谷2-4-12
- 最寄り駅
- 四ツ谷駅徒歩6分、四谷三丁目駅徒歩7分、曙橋駅徒歩14分
- 竣工
- 1990年
- 規模
- 地上9階
- 耐震基準
- 新耐震基準適合
- セキュリティ
- 機械警備(24時間監視)
- 駐車場設備
- 無
- 設備
- トイレ男女別
大久保ビル の募集区画 (総募集面積 28.70坪)
※月額費用、坪単価 ともに共益費込・税別の価格です
藤井ビル(新宿区、四谷、四ツ谷、四谷三丁目)
- 所在地
- 東京都新宿区四谷2-8
- 最寄り駅
- 四ツ谷駅徒歩5分、四谷三丁目駅徒歩6分、曙橋駅徒歩12分
- 竣工
- 1992年
- 規模
- 地上9階
- 耐震基準
- 新耐震基準適合
- セキュリティ
- 機械警備(24時間監視)
- 駐車場設備
- 無
- 設備
- トイレ男女別
藤井ビル の募集区画 (総募集面積 27.91坪)
※月額費用、坪単価 ともに共益費込・税別の価格です
第2河上ビル(新宿区、四谷、四ツ谷、四谷三丁目)
- 所在地
- 東京都新宿区四谷2-8
- 最寄り駅
- 四ツ谷駅徒歩5分、四谷三丁目駅徒歩6分
- 竣工
- 1984年
- 規模
- 地上9階・地下1階
- 耐震基準
- 新耐震基準適合
- セキュリティ
- 機械警備(24時間監視)
- 駐車場設備
- 無
- 設備
- 省エネ・環境配慮、 トイレ男女別、 防災・BCP
第2河上ビル の募集区画 (総募集面積 30.35坪)
※月額費用、坪単価 ともに共益費込・税別の価格です
須賀ビル(新宿区、四谷、四谷三丁目、曙橋)
- 所在地
- 東京都新宿区四谷3-1
- 最寄り駅
- 四谷三丁目駅徒歩2分、曙橋駅徒歩9分、四ツ谷駅徒歩9分
- 竣工
- 1973年
- 規模
- 地上9階・地下1階
- セキュリティ
- 機械警備(24時間監視)
- 駐車場設備
- 無
- 設備
- トイレ男女別
須賀ビル の募集区画 (総募集面積 24.00坪)
※月額費用、坪単価 ともに共益費込・税別の価格です
サワノボリビル(新宿区、四谷、四谷三丁目)
- 所在地
- 東京都新宿区四谷3-12
- 最寄り駅
- 四谷三丁目駅徒歩1分
- 竣工
- 1975年
- 規模
- 地上10階・地下1階
- 駐車場設備
- 無
サワノボリビル の募集区画 (総募集面積 25.53坪)
※月額費用、坪単価 ともに共益費込・税別の価格です
PALT(パルト)ビル(新宿区、四谷、四谷三丁目、新宿御苑前)
- 所在地
- 東京都新宿区四谷4-28-8
- 最寄り駅
- 四谷三丁目駅徒歩6分、新宿御苑前駅徒歩7分、新宿三丁目駅徒歩13分
- 竣工
- 1986年
- 規模
- 地上10階・地下1階
- 耐震基準
- 新耐震基準適合
- セキュリティ
- 有人管理(警備員常駐)
- 駐車場設備
- 無
- 設備
- トイレ男女別
PALT(パルト)ビル の募集区画 (総募集面積 69.03坪)
※月額費用、坪単価 ともに共益費込・税別の価格です
伸治ビル(新宿区、四谷、四谷三丁目、新宿御苑前)
- 所在地
- 東京都新宿区四谷4-3-29
- 最寄り駅
- 四谷三丁目駅徒歩3分、新宿御苑前駅徒歩8分、曙橋駅徒歩11分
- 竣工
- 1995年
- 規模
- 地上9階
- 耐震基準
- 新耐震基準適合
- セキュリティ
- 機械警備(24時間監視)
- 駐車場設備
- 無
- 設備
- トイレ男女別
伸治ビル の募集区画 (総募集面積 27.79坪)
※月額費用、坪単価 ともに共益費込・税別の価格です
白川ビル(新宿区、四谷、四谷三丁目、新宿御苑前)
- 所在地
- 東京都新宿区四谷4-7-5
- 最寄り駅
- 四谷三丁目駅徒歩4分、新宿御苑前駅徒歩7分、千駄ケ谷駅徒歩13分
- 竣工
- 1987年
- 規模
- 地上8階・地下1階
- 耐震基準
- 新耐震基準適合
- セキュリティ
- 機械警備(24時間監視)
- 駐車場設備
- 無
- 設備
- トイレ男女別
白川ビル の募集区画 (総募集面積 26.08坪)
※月額費用、坪単価 ともに共益費込・税別の価格です
【エリアのオフィス市況】
新宿通り沿いには、視認性に優れた中大型のオフィスビルが整然と並びます。賃料は新宿駅周辺に比べて合理的でありながら、都心主要部への高いアクセス性を維持できるため、コストパフォーマンスを重視する企業に選ばれているマーケットです。ITスタートアップからデザイン事務所、士業、出版関連まで幅広い業種が集積しており、管理状態の良い実用的な物件が見つかりやすいのが特徴です。
【交通アクセスと採用メリット】
新宿まで約5分、大手町まで約12分と、主要なビジネスエリアへ最短時間でアプローチできる卓越した機動力を誇ります。この利便性は、多忙なビジネスパーソンや広域から通勤する従業員にとって大きなメリットとなります。駅周辺には個性豊かな飲食店が多く、ランチ環境は都内でも指折りの充実度。活気ある街の雰囲気と高い利便性は、優秀な実務人材を惹きつける強力なフックとなり、採用力の強化に寄与します。


































































































































































































































































































































































































































































