大森駅の賃貸オフィス・貸事務所情報
JR京浜東北線「大森駅」。かつての高級住宅地としての品格と、海側の広大な流通・産業ゾーンが融合した、安定感のあるビジネス拠点です。品川駅まで約6分という至近距離にありながら、落ち着いた住環境が広がる「実力派」のエリアです。
検索結果 49 件
ORIENT BLD No140 OIトレーディングビル(品川区、南大井、大森海岸、大森)
- 所在地
- 東京都品川区南大井3-28-10
- 最寄り駅
- 大森海岸駅徒歩4分、大森駅徒歩8分
- 竣工
- 1992年
- 規模
- 地上7階
- 耐震基準
- 新耐震基準適合
- セキュリティ
- 共用部警備なし(簡易管理)
- 駐車場設備
- 要確認
ORIENT BLD No140 OIトレーディングビル の募集区画 (総募集面積 56.40坪)
※月額費用、坪単価 ともに共益費込・税別の価格です
第2下川ビル(品川区、南大井、大森、立会川)
- 所在地
- 東京都品川区南大井6-16-10
- 最寄り駅
- 大森駅徒歩2分、立会川駅徒歩15分
- 竣工
- 1969年
- 規模
- 地上8階
- セキュリティ
- 機械警備(24時間監視)
- 駐車場設備
- 要確認
第2下川ビル の募集区画 (総募集面積 62.12坪)
※月額費用、坪単価 ともに共益費込・税別の価格です
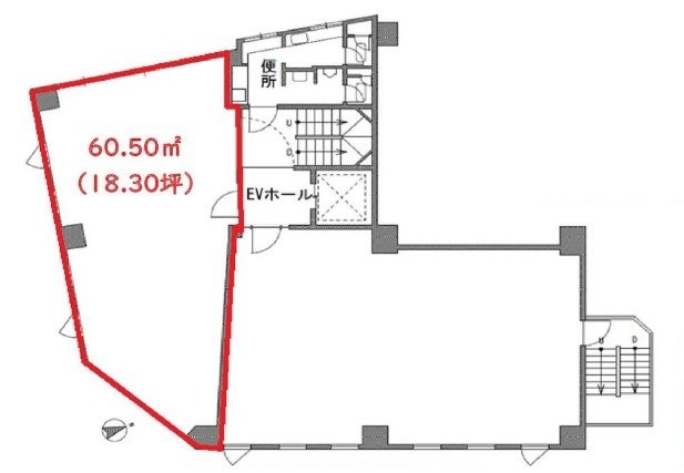
大森レインボービル(品川区、南大井、大森、大森海岸)
- 所在地
- 東京都品川区南大井6-17-10
- 最寄り駅
- 大森駅徒歩1分、大森海岸駅徒歩7分
- 竣工
- 1978年
- 規模
- 地上9階・地下1階
- セキュリティ
- 機械警備(24時間監視)
- 駐車場設備
- 要確認
大森レインボービル の募集区画 (総募集面積 18.30坪)
※月額費用、坪単価 ともに共益費込・税別の価格です
スリージェ南大井(品川区、南大井、大森、大森海岸)
- 所在地
- 東京都品川区南大井6-3-7
- 最寄り駅
- 大森駅徒歩8分、大森海岸駅徒歩10分、立会川駅徒歩14分
- 竣工
- 1993年
- 規模
- 地上7階・地下1階
- 耐震基準
- 新耐震基準適合
- 駐車場設備
- 要確認
スリージェ南大井 の募集区画 (総募集面積 44.20坪)
※月額費用、坪単価 ともに共益費込・税別の価格です
イーストスクエア大森(品川区、南大井、大森、大森海岸)
- 所在地
- 東京都品川区南大井6-20-14
- 最寄り駅
- 大森駅徒歩5分、大森海岸駅徒歩6分
- 竣工
- 1993年
- 規模
- 地上7階・地下1階
- 耐震基準
- 新耐震基準適合
- セキュリティ
- 機械警備・有人管理(24時間体制)
- 駐車場設備
- 有(46台(機械式34台、自走式12台))
- 設備
- トイレ男女別
イーストスクエア大森 の募集区画 (総募集面積 348.57坪)
※月額費用、坪単価 ともに共益費込・税別の価格です
鈴中ビル大森ANNEX(品川区、南大井、大森、大森海岸)
- 所在地
- 東京都品川区南大井6-16-16
- 最寄り駅
- 大森駅徒歩3分、大森海岸駅徒歩10分
- 竣工
- 1993年
- 規模
- 地上8階・地下1階
- 耐震基準
- 新耐震基準適合
- セキュリティ
- 機械警備(24時間監視)
- 駐車場設備
- 有(計19台(機械式12台・平面7台)、24時間使用可能。)
- 設備
- オフィス専用ゾーン制御、 24時間(要ICカード)、 トイレ男女別、 防災・BCP、 土日祝エントランス開放
鈴中ビル大森ANNEX の募集区画 (総募集面積 147.03坪)
※月額費用、坪単価 ともに共益費込・税別の価格です
パークウィンビル(品川区、南大井、大森、大森海岸)
- 所在地
- 東京都品川区南大井6-17-16
- 最寄り駅
- 大森駅徒歩1分、大森海岸駅徒歩10分
- 竣工
- 1970年
- 規模
- 地上6階
- 駐車場設備
- 要確認
パークウィンビル の募集区画 (総募集面積 22.07坪)
※月額費用、坪単価 ともに共益費込・税別の価格です
大森プラザビル(品川区、南大井、大森、大森海岸)
- 所在地
- 東京都品川区南大井3-28-3
- 最寄り駅
- 大森駅徒歩4分、大森海岸駅徒歩4分、立会川駅徒歩18分
- 竣工
- 1989年
- 規模
- 地上6階・地下1階
- 耐震基準
- 新耐震基準適合
- セキュリティ
- 機械警備(24時間監視)
- 駐車場設備
- 要確認
大森プラザビル の募集区画 (総募集面積 44.32坪)
※月額費用、坪単価 ともに共益費込・税別の価格です
第5下川ビル(品川区、南大井、大森、大森海岸)
- 所在地
- 東京都品川区南大井6-24-14
- 最寄り駅
- 大森駅徒歩1分、大森海岸駅徒歩8分、馬込駅徒歩26分
- 竣工
- 1973年
- 規模
- 地上10階・地下1階
- セキュリティ
- 機械警備(24時間監視)
- 駐車場設備
- 要確認
第5下川ビル の募集区画 (総募集面積 11.25坪)
※月額費用、坪単価 ともに共益費込・税別の価格です
DAITO(第35下川)ビル(品川区、南大井、大森、大森海岸)
- 所在地
- 東京都品川区南大井6-24-6
- 最寄り駅
- 大森駅徒歩2分、大森海岸駅徒歩9分、平和島駅徒歩19分
- 竣工
- 1988年
- 規模
- 地上9階・地下1階
- 耐震基準
- 新耐震基準適合
- セキュリティ
- 機械警備(24時間監視)
- 駐車場設備
- 要確認
DAITO(第35下川)ビル の募集区画 (総募集面積 85.85坪)
※月額費用、坪単価 ともに共益費込・税別の価格です
大森YSビル(品川区、南大井、大森海岸、大森)
- 所在地
- 東京都品川区南大井3-22-7
- 最寄り駅
- 大森海岸駅徒歩3分、大森駅徒歩8分
- 竣工
- 1992年
- 規模
- 地上7階
- 耐震基準
- 新耐震基準適合
- セキュリティ
- 機械警備(24時間監視)
- 駐車場設備
- 有
- 設備
- 24時間(要ICカード)、 トイレ男女別
大森YSビル の募集区画 (総募集面積 48.93坪)
※月額費用、坪単価 ともに共益費込・税別の価格です
大森ベルボートB館(品川区、南大井、大森、大森海岸)
- 所在地
- 東京都品川区南大井6-26-2
- 最寄り駅
- 大森駅徒歩3分、大森海岸駅徒歩4分
- 竣工
- 1991年
- 規模
- 地上18階・地下3階
- 耐震基準
- 新耐震基準適合
- セキュリティ
- 機械警備・有人管理(24時間体制)
- 駐車場設備
- 有(約500台)
- 設備
- 非常用発電機、 24時間(要ICカード)、 貸会議室、 貨物EVあり、 トイレ男女別
大森ベルボートB館 の募集区画 (総募集面積 1,088.79坪)
| 図面 | 階数 | 坪数 | 月額費用 | 坪単価 | 入居可能日 | |
|---|---|---|---|---|---|---|
![]() | 2階 | 141.83坪 | お問い合わせください | 2026/7/1 | 検討リスト お問い合わせ | |
![]() | 11階 | 473.48坪 | お問い合わせください | 即時 | 検討リスト お問い合わせ | |
![]() | 12階 | 473.48坪 | お問い合わせください | 即時 | 検討リスト お問い合わせ |
※月額費用、坪単価 ともに共益費込・税別の価格です
鈴中ビル大森(品川区、南大井、大森、大森海岸)
- 所在地
- 東京都品川区南大井6-16-16
- 最寄り駅
- 大森駅徒歩3分、大森海岸駅徒歩11分、立会川駅徒歩18分
- 竣工
- 1987年
- 規模
- 地上8階・地下1階
- 耐震基準
- 新耐震基準適合
- セキュリティ
- 機械警備(24時間監視)
- 駐車場設備
- 有(計19台(機械式12台・平面7台)、24時間使用可能。)
- 設備
- 24時間(要ICカード)、 トイレ男女別、 土日祝エントランス開放
鈴中ビル大森 の募集区画 (総募集面積 81.19坪)
※月額費用、坪単価 ともに共益費込・税別の価格です
日立大森第二ビル(品川区、南大井、大森)
- 所在地
- 東京都品川区南大井6-27-18
- 最寄り駅
- 大森駅徒歩3分
- 竣工
- 1982年
- 規模
- 地上16階・地下1階
- セキュリティ
- 機械警備・有人管理(24時間体制)
- 駐車場設備
- 要確認
日立大森第二ビル の募集区画 (総募集面積 504.70坪)
※月額費用、坪単価 ともに共益費込・税別の価格です
有馬ビル(品川区、南大井、大森、大森海岸)
- 所在地
- 東京都品川区南大井3-6-18
- 最寄り駅
- 大森駅徒歩10分、大森海岸駅徒歩10分、立会川駅徒歩13分
- 竣工
- 1992年
- 規模
- 地上5階・地下1階
- 耐震基準
- 新耐震基準適合
- セキュリティ
- 機械警備(24時間監視)
- 駐車場設備
- 要確認
有馬ビル の募集区画 (総募集面積 29.72坪)
※月額費用、坪単価 ともに共益費込・税別の価格です
JSCビル(品川区、南大井、大森、大森海岸)
- 所在地
- 東京都品川区南大井5-26-12
- 最寄り駅
- 大森駅徒歩9分、大森海岸駅徒歩5分
- 竣工
- 1992年
- 規模
- 地上5階・地下2階
- 耐震基準
- 新耐震基準適合
- セキュリティ
- 機械警備(24時間監視)
- 駐車場設備
- 無
- 設備
- 24時間(要ICカード)、 トイレ男女別
JSCビル の募集区画 (総募集面積 145.66坪)
※月額費用、坪単価 ともに共益費込・税別の価格です
大森ベルポートA館(品川区、南大井、大森、大森海岸)
- 所在地
- 東京都品川区南大井6-26-2
- 最寄り駅
- 大森駅徒歩3分、大森海岸駅徒歩4分、平和島駅徒歩17分
- 竣工
- 1996年
- 規模
- 地上18階・地下3階
- 耐震基準
- 新耐震基準適合
- セキュリティ
- 機械警備・有人管理(24時間体制)
- 駐車場設備
- 有(約500台)
- 設備
- 貸会議室、 非常用発電機、 24時間(要ICカード)、 トイレ男女別
大森ベルポートA館 の募集区画 (総募集面積 267.47坪)
※月額費用、坪単価 ともに共益費込・税別の価格です
第1小田ビル(大田区、大森北、大森、大森海岸)
- 所在地
- 東京都大田区大森北1-23-5
- 最寄り駅
- 大森駅徒歩4分、大森海岸駅徒歩7分
- 竣工
- 1990年
- 規模
- 地上8階
- 耐震基準
- 新耐震基準適合
- セキュリティ
- 機械警備(24時間監視)
- 駐車場設備
- 無
- 設備
- トイレ男女別
第1小田ビル の募集区画 (総募集面積 43.69坪)
※月額費用、坪単価 ともに共益費込・税別の価格です
大森クリエイトビル(大田区、大森北、大森海岸、大森)
- 所在地
- 東京都大田区大森北2-14-2
- 最寄り駅
- 大森海岸駅徒歩1分、大森駅徒歩9分、平和島駅徒歩15分
- 竣工
- 1991年
- 規模
- 地上7階
- 耐震基準
- 新耐震基準適合
- セキュリティ
- 機械警備(24時間監視)
- 駐車場設備
- 要確認
大森クリエイトビル の募集区画 (総募集面積 30.94坪)
※月額費用、坪単価 ともに共益費込・税別の価格です
KT大森北ビル(大田区、大森北、大森、大森海岸)
- 所在地
- 東京都大田区大森北3-4-4
- 最寄り駅
- 大森駅徒歩6分、大森海岸駅徒歩8分、平和島駅徒歩11分
- 竣工
- 1992年
- 規模
- 地上8階
- 耐震基準
- 新耐震基準適合
- 駐車場設備
- 要確認
KT大森北ビル の募集区画 (総募集面積 46.48坪)
※月額費用、坪単価 ともに共益費込・税別の価格です
アトラスビル(大田区、大森北、大森、大森海岸)
- 所在地
- 東京都大田区大森北1-3-5
- 最寄り駅
- 大森駅徒歩4分、大森海岸駅徒歩6分、平和島駅徒歩19分
- 竣工
- 1973年
- 規模
- 地上6階
- 駐車場設備
- 要確認
アトラスビル の募集区画 (総募集面積 58.00坪)
※月額費用、坪単価 ともに共益費込・税別の価格です
YK-15ビル(大田区、大森北、大森、大森海岸)
- 所在地
- 東京都大田区大森北1-1-2
- 最寄り駅
- 大森駅徒歩1分、大森海岸駅徒歩10分、西大井駅徒歩25分
- 竣工
- 1989年
- 規模
- 地上8階・地下1階
- 耐震基準
- 新耐震基準適合
- セキュリティ
- 機械警備(24時間監視)
- 駐車場設備
- 要確認
YK-15ビル の募集区画 (総募集面積 83.90坪)
※月額費用、坪単価 ともに共益費込・税別の価格です
THE CENTRAL OMORI(大田区、大森北、大森、大森海岸)
- 所在地
- 東京都大田区大森北1-2-1
- 最寄り駅
- 大森駅徒歩2分、大森海岸駅徒歩8分、平和島駅徒歩19分
- 竣工
- 1981年
- 規模
- 地上6階・地下1階
- 駐車場設備
- 要確認
THE CENTRAL OMORI の募集区画 (総募集面積 29.00坪)
※月額費用、坪単価 ともに共益費込・税別の価格です
大森センタービル(大田区、大森北、大森、大森海岸)
- 所在地
- 東京都大田区大森北1-17-2
- 最寄り駅
- 大森駅徒歩3分、大森海岸駅徒歩5分、平和島駅徒歩18分
- 竣工
- 1988年
- 規模
- 地上8階・地下2階
- 耐震基準
- 新耐震基準適合
- セキュリティ
- 機械警備(24時間監視)
- 駐車場設備
- 有(機械式)
大森センタービル の募集区画 (総募集面積 104.86坪)
※月額費用、坪単価 ともに共益費込・税別の価格です
d_ll OOMORIビル(大田区、大森北、大森、大森海岸)
- 所在地
- 東京都大田区大森北1-3-7
- 最寄り駅
- 大森駅徒歩1分、大森海岸駅徒歩8分
- 竣工
- 2025年
- 規模
- 地上9階
- 耐震基準
- 新耐震基準適合
- 駐車場設備
- 要確認
d_ll OOMORIビル の募集区画 (総募集面積 452.99坪)
| 図面 | 階数 | 坪数 | 月額費用 | 坪単価 | 入居可能日 | |
|---|---|---|---|---|---|---|
![]() | 2階 | 60.19坪 | お問い合わせください | 即時 | 検討リスト お問い合わせ | |
![]() | 3階 | 60.19坪 | お問い合わせください | 即時 | 検討リスト お問い合わせ | |
![]() | 4階 | 60.19坪 | お問い合わせください | 即時 | 検討リスト お問い合わせ | |
![]() | 5階 | 60.19坪 | お問い合わせください | 即時 | 検討リスト お問い合わせ | |
![]() | 6階 | 60.19坪 | お問い合わせください | 即時 | 検討リスト お問い合わせ | |
![]() | 7階 | 60.19坪 | お問い合わせください | 即時 | 検討リスト お問い合わせ | |
準備中 | 8階 | 60.19坪 | お問い合わせください | 即時 | 検討リスト お問い合わせ | |
![]() | 9階 | 31.66坪 | お問い合わせください | 即時 | 検討リスト お問い合わせ |
※月額費用、坪単価 ともに共益費込・税別の価格です
プティレスト平和島ビル(大田区、大森北、平和島、大森)
- 所在地
- 東京都大田区大森北3-32-17
- 最寄り駅
- 平和島駅徒歩8分、大森駅徒歩17分
- 竣工
- 2025年
- 規模
- 地上4階
- 耐震基準
- 新耐震基準適合
- 駐車場設備
- 要確認
プティレスト平和島ビル の募集区画 (総募集面積 10.52坪)
※月額費用、坪単価 ともに共益費込・税別の価格です
レイヴァ大森(大田区、大森北、大森、大森海岸)
- 所在地
- 東京都大田区大森北1-29
- 最寄り駅
- 大森駅徒歩4分、大森海岸駅徒歩10分
- 竣工
- 1989年
- 規模
- 地上10階
- 耐震基準
- 新耐震基準適合
- 駐車場設備
- 要確認
レイヴァ大森 の募集区画 (総募集面積 63.01坪)
※月額費用、坪単価 ともに共益費込・税別の価格です
大森パークビル(大田区、大森本町、大森海岸、大森)
- 所在地
- 東京都大田区大森本町1-6-1
- 最寄り駅
- 大森海岸駅徒歩3分、大森駅徒歩12分、平和島駅徒歩12分
- 竣工
- 1993年
- 規模
- 地上7階
- 耐震基準
- 新耐震基準適合
- セキュリティ
- 有人管理(警備員常駐)
- 駐車場設備
- 有
- 設備
- トイレ男女別、 リニューアル済み
大森パークビル の募集区画 (総募集面積 916.53坪)
| 図面 | 階数 | 坪数 | 月額費用 | 坪単価 | 入居可能日 | |
|---|---|---|---|---|---|---|
![]() | 2階 | 102.20坪 | お問い合わせください | 2026/7 | 検討リスト お問い合わせ | |
![]() | 7階 | 342.12坪 | お問い合わせください | 即時 | 検討リスト お問い合わせ | |
![]() | 2階 | 130.09坪 | お問い合わせください | 即時 | 検討リスト お問い合わせ | |
![]() | 3階 | 342.12坪 | お問い合わせください | 即時 | 検討リスト お問い合わせ |
※月額費用、坪単価 ともに共益費込・税別の価格です
伊川ビル(大田区、山王、大森、大森海岸)
- 所在地
- 東京都大田区山王2-5-3
- 最寄り駅
- 大森駅徒歩2分、大森海岸駅徒歩12分、立会川駅徒歩22分
- 竣工
- 1967年
- 規模
- 地上10階・地下1階
- セキュリティ
- 機械警備(24時間監視)
- 駐車場設備
- 要確認
伊川ビル の募集区画 (総募集面積 34.95坪)
※月額費用、坪単価 ともに共益費込・税別の価格です
キャビックビル(大田区、山王、大森、大森海岸)
- 所在地
- 東京都大田区山王2-1-6
- 最寄り駅
- 大森駅徒歩1分、大森海岸駅徒歩11分、西大井駅徒歩20分
- 竣工
- 1975年
- 規模
- 地上10階・地下1階
- セキュリティ
- 機械警備(24時間監視)
- 駐車場設備
- 要確認
キャビックビル の募集区画 (総募集面積 34.70坪)
※月額費用、坪単価 ともに共益費込・税別の価格です
山王アーバンライフ(大田区、山王、大森、大森海岸)
- 所在地
- 東京都大田区山王2-1-8
- 最寄り駅
- 大森駅徒歩1分、大森海岸駅徒歩11分
- 竣工
- 1972年
- 規模
- 地上12階
- セキュリティ
- 機械警備(24時間監視)
- 駐車場設備
- 要確認
山王アーバンライフ の募集区画 (総募集面積 10.89坪)
※月額費用、坪単価 ともに共益費込・税別の価格です
シオカワビル(大田区、山王、大森)
- 所在地
- 東京都大田区山王2-3-13
- 最寄り駅
- 大森駅徒歩2分
- 竣工
- 1988年
- 規模
- 地上8階・地下1階
- 耐震基準
- 新耐震基準適合
- セキュリティ
- 機械警備(24時間監視)
- 駐車場設備
- 要確認
シオカワビル の募集区画 (総募集面積 25.00坪)
※月額費用、坪単価 ともに共益費込・税別の価格です
TRCセンタービル(大田区、平和島、流通センター、大森)
- 所在地
- 東京都大田区平和島6-1-1
- 最寄り駅
- 流通センター駅徒歩1分、平和島駅徒歩28分、大森駅徒歩40分
- 竣工
- 1991年
- 規模
- 地上9階・地下1階
- 耐震基準
- 新耐震基準適合
- セキュリティ
- 機械警備・有人管理(24時間体制)
- 駐車場設備
- 要確認
TRCセンタービル の募集区画 (総募集面積 26.00坪)
※月額費用、坪単価 ともに共益費込・税別の価格です
【エリアのオフィス市況】
大森エリアは、駅を挟んで山側の「大田区山王」と、海側の「品川区南大井」で異なる表情を持ちます。特に海側は、大手メーカーやIT、物流関連のオフィスビルが林立する本格的なビジネス街となっており、管理体制の優れた中大型ビルのストックが豊富です。賃料は品川・大井町と比較して安定しており、コストパフォーマンスに優れた実利的なオフィス選びが可能。京急線の「大森海岸駅」も徒歩圏内であり、2路線を使い分けられる点も大きな強みです。
【交通アクセスと採用メリット】
京浜東北線で横浜方面・都心方面の両方へスムーズにアクセス。羽田空港へのアクセスも容易で、出張の多い企業にも適しています。駅直結の「アトレ大森」や西口側の商店街など、生活利便性が極めて高く、職住近接を叶えたい層にとって非常に魅力的な街です。落ち着いた大人の雰囲気がある街並みは、社員が安心して長く働ける環境を提供し、企業の信頼性向上にも寄与します。

























































































































































































































































































































































