平和島駅の賃貸オフィス・貸事務所情報
京急本線「平和島駅」。特急停車駅としての卓越した機動力を持ち、物流や商業の要衝として常に活気に満ちたエリアです。周辺には「平和の森公園」など広大な緑地があり、都市のスピード感と開放感が共存。羽田空港へのアクセスも至便で、国内外をボーダレスに駆け巡るアクティブな企業に最適な拠点です。
検索結果 21 件
DAITO(第35下川)ビル(品川区、南大井、大森、大森海岸)
- 所在地
- 東京都品川区南大井6-24-6
- 最寄り駅
- 大森駅徒歩2分、大森海岸駅徒歩9分、平和島駅徒歩19分
- 竣工
- 1988年
- 規模
- 地上9階・地下1階
- 耐震基準
- 新耐震基準適合
- セキュリティ
- 機械警備(24時間監視)
- 駐車場設備
- 要確認
DAITO(第35下川)ビル の募集区画 (総募集面積 85.85坪)
※月額費用、坪単価 ともに共益費込・税別の価格です
大森ベルポートA館(品川区、南大井、大森、大森海岸)
- 所在地
- 東京都品川区南大井6-26-2
- 最寄り駅
- 大森駅徒歩3分、大森海岸駅徒歩4分、平和島駅徒歩17分
- 竣工
- 1996年
- 規模
- 地上18階・地下3階
- 耐震基準
- 新耐震基準適合
- セキュリティ
- 機械警備・有人管理(24時間体制)
- 駐車場設備
- 有(約500台)
- 設備
- 貸会議室、 非常用発電機
大森ベルポートA館 の募集区画 (総募集面積 267.47坪)
※月額費用、坪単価 ともに共益費込・税別の価格です
カドヤ第10ビル(品川区、南大井、大森、大森海岸)
- 所在地
- 東京都品川区南大井6-24-10
- 最寄り駅
- 大森駅徒歩2分、大森海岸駅徒歩9分、平和島駅徒歩15分
- 竣工
- 1985年
- 規模
- 地上9階・地下1階
- 耐震基準
- 新耐震基準適合
- セキュリティ
- 機械警備(24時間監視)
- 駐車場設備
- 要確認
カドヤ第10ビル の募集区画 (総募集面積 29.31坪)
※月額費用、坪単価 ともに共益費込・税別の価格です
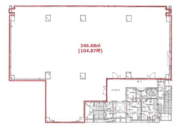
大森センタービル(大田区、大森北、大森、大森海岸)
- 所在地
- 東京都大田区大森北1-17-2
- 最寄り駅
- 大森駅徒歩3分、大森海岸駅徒歩5分、平和島駅徒歩18分
- 竣工
- 1988年
- 規模
- 地上8階・地下2階
- 耐震基準
- 新耐震基準適合
- セキュリティ
- 機械警備(24時間監視)
- 駐車場設備
- 要確認
大森センタービル の募集区画 (総募集面積 209.73坪)
| 図面 | 階数 | 坪数 | 月額費用 | 坪単価 | 入居可能日 | |
|---|---|---|---|---|---|---|
![]() | 6階 | 104.87坪 | お問い合わせください | 2026/2/11 | 検討リスト お問い合わせ | |
![]() | 6階 | 58.04坪 | お問い合わせください | 2026/2/11 | 検討リスト お問い合わせ | |
![]() | 6階 | 46.82坪 | お問い合わせください | 2026/2/11 | 検討リスト お問い合わせ |
※月額費用、坪単価 ともに共益費込・税別の価格です
KT大森北ビル(大田区、大森北、大森、大森海岸)
- 所在地
- 東京都大田区大森北3-4-4
- 最寄り駅
- 大森駅徒歩6分、大森海岸駅徒歩8分、平和島駅徒歩11分
- 竣工
- 1992年
- 規模
- 地上8階
- 耐震基準
- 新耐震基準適合
- 駐車場設備
- 要確認
KT大森北ビル の募集区画 (総募集面積 23.24坪)
※月額費用、坪単価 ともに共益費込・税別の価格です
アトラスビル(大田区、大森北、大森、大森海岸)
- 所在地
- 東京都大田区大森北1-3-5
- 最寄り駅
- 大森駅徒歩4分、大森海岸駅徒歩6分、平和島駅徒歩19分
- 竣工
- 1973年
- 規模
- 地上6階
- 駐車場設備
- 要確認
アトラスビル の募集区画 (総募集面積 58.00坪)
※月額費用、坪単価 ともに共益費込・税別の価格です
THE CENTRAL OMORI(大田区、大森北、大森、大森海岸)
- 所在地
- 東京都大田区大森北1-2-1
- 最寄り駅
- 大森駅徒歩2分、大森海岸駅徒歩8分、平和島駅徒歩19分
- 竣工
- 1981年
- 規模
- 地上6階・地下1階
- 駐車場設備
- 要確認
THE CENTRAL OMORI の募集区画 (総募集面積 29.00坪)
※月額費用、坪単価 ともに共益費込・税別の価格です
プティレスト平和島ビル(大田区、大森北、平和島、大森)
- 所在地
- 東京都大田区大森北3-32-17
- 最寄り駅
- 平和島駅徒歩8分、大森駅徒歩17分
- 竣工
- 2025年
- 規模
- 地上4階
- 耐震基準
- 新耐震基準適合
- 駐車場設備
- 要確認
プティレスト平和島ビル の募集区画 (総募集面積 10.52坪)
※月額費用、坪単価 ともに共益費込・税別の価格です
セブンストーリービル(大田区、大森東、平和島、大森町)
- 所在地
- 東京都大田区大森東1-1-3
- 最寄り駅
- 平和島駅徒歩3分、大森町駅徒歩11分、流通センター駅徒歩21分
- 竣工
- 1989年
- 規模
- 地上7階
- 耐震基準
- 新耐震基準適合
- 駐車場設備
- 要確認
セブンストーリービル の募集区画 (総募集面積 21.14坪)
※月額費用、坪単価 ともに共益費込・税別の価格です
大森パークビル(大田区、大森本町、大森海岸、大森)
- 所在地
- 東京都大田区大森本町1-6-1
- 最寄り駅
- 大森海岸駅徒歩5分、大森駅徒歩12分、平和島駅徒歩12分
- 竣工
- 1993年
- 規模
- 地上7階
- 耐震基準
- 新耐震基準適合
- セキュリティ
- 共用部警備なし(簡易管理)
- 駐車場設備
- 要確認
大森パークビル の募集区画 (総募集面積 916.53坪)
| 図面 | 階数 | 坪数 | 月額費用 | 坪単価 | 入居可能日 | |
|---|---|---|---|---|---|---|
![]() | 2階 | 102.20坪 | お問い合わせください | 2026/6 | 検討リスト お問い合わせ | |
![]() | 7階 | 342.12坪 | お問い合わせください | 即時 | 検討リスト お問い合わせ | |
![]() | 2階 | 130.09坪 | お問い合わせください | 即時 | 検討リスト お問い合わせ | |
![]() | 3階 | 342.12坪 | お問い合わせください | 即時 | 検討リスト お問い合わせ |
※月額費用、坪単価 ともに共益費込・税別の価格です
M&Mビル(大田区、東海、流通センター、昭和島)
- 所在地
- 東京都大田区東海3-9-2
- 最寄り駅
- 流通センター駅徒歩18分、昭和島駅徒歩25分、平和島駅徒歩25分
- 竣工
- 1993年
- 規模
- 地上6階
- 耐震基準
- 新耐震基準適合
- セキュリティ
- 機械警備(24時間監視)
- 駐車場設備
- 要確認
M&Mビル の募集区画 (総募集面積 174.67坪)
| 図面 | 階数 | 坪数 | 月額費用 | 坪単価 | 入居可能日 | |
|---|---|---|---|---|---|---|
![]() | 4階 | 67.00坪 | 546,000円 | 8,149円 | 即時 | 検討リスト お問い合わせ |
![]() | 5階 | 81.19坪 | 659,520円 | 8,123円 | 即時 | 検討リスト お問い合わせ |
![]() | 6階 | 26.48坪 | 221,840円 | 8,378円 | 即時 | 検討リスト お問い合わせ |
※月額費用、坪単価 ともに共益費込・税別の価格です
大田ステイタスビル(大田区、東海、流通センター、昭和島)
- 所在地
- 東京都大田区東海3-9-1
- 最寄り駅
- 流通センター駅徒歩20分、昭和島駅徒歩24分、平和島駅徒歩40分
- 竣工
- 1991年
- 規模
- 地上8階
- 耐震基準
- 新耐震基準適合
- 駐車場設備
- 要確認
大田ステイタスビル の募集区画 (総募集面積 161.54坪)
※月額費用、坪単価 ともに共益費込・税別の価格です
【エリアのオフィス市況】
駅周辺には特急停車駅の利便性を活かした中大型のオフィスビルから、実用的な店舗併用事務所まで多彩な物件が揃います。賃料は利便性に対して合理的で、特に広い床面積を確保したい法人や、物流・サービス拠点を求める企業に高い適性があります。第一京浜や環七通りへのアクセスも容易なため、鉄道と車、両面での機動力を重視する拠点展開において極めて評価の高いマーケットです。
【交通アクセスと採用メリット】
特急利用で品川まで約6分、羽田空港へも約12分という最強クラスのフットワークを誇ります。駅周辺には飲食店やスーパーが充実し、日常の利便性は完璧。広大な公園やアスレチック施設は、従業員にとって最高のリフレッシュ空間となります。この「圧倒的なスピード感と豊かな自然」の両立は、オンとオフを切り替えて働きたい質の高い人材を惹きつけ、組織の活性化と定着をサポートします。




















































































































































