品川駅の賃貸オフィス・貸事務所情報
東海道新幹線の停車駅であり、リニア中央新幹線の始発駅となる予定の「品川駅」。羽田空港へのアクセスにも優れ、世界と地方をつなぐ「東京サウスゲート」の交通結節点として機能します。
検索結果 80 件
大滝ビル(港区、港南、北品川、品川)
- 所在地
- 東京都港区港南2-11-19
- 最寄り駅
- 北品川駅徒歩10分、品川駅徒歩11分、天王洲アイル駅徒歩12分
- 竣工
- 1992年
- 規模
- 地上8階・地下1階
- 耐震基準
- 新耐震基準適合
- セキュリティ
- 機械警備(24時間監視)
- 駐車場設備
- 有(機械式30台)
- 設備
- トイレ男女別
大滝ビル の募集区画 (総募集面積 133.05坪)
※月額費用、坪単価 ともに共益費込・税別の価格です
SOUTH PORT品川(港区、港南、品川、天王洲アイル)
- 所在地
- 東京都港区港南2-12-32
- 最寄り駅
- 品川駅徒歩7分、天王洲アイル駅徒歩9分、北品川駅徒歩14分
- 竣工
- 1994年
- 規模
- 地上12階・地下1階
- 耐震基準
- 新耐震基準適合
- セキュリティ
- 機械警備(24時間監視)
- 駐車場設備
- 有
- 設備
- トイレ男女別
SOUTH PORT品川 の募集区画 (総募集面積 221.14坪)
※月額費用、坪単価 ともに共益費込・税別の価格です
松岡品川埠頭ビル(港区、港南、天王洲アイル、品川)
- 所在地
- 東京都港区港南5-4-38
- 最寄り駅
- 天王洲アイル駅徒歩14分、品川駅徒歩20分
- 竣工
- 1969年
- 規模
- 地上2階
- セキュリティ
- 共用部警備なし(簡易管理)
- 駐車場設備
- 有(平面駐車場)
松岡品川埠頭ビル の募集区画 (総募集面積 40.00坪)
※月額費用、坪単価 ともに共益費込・税別の価格です
品川駅前港南ビル(港区、港南、品川)
- 所在地
- 東京都港区港南2-14-10
- 最寄り駅
- 品川駅徒歩1分
- 竣工
- 2001年
- 規模
- 地上10階・地下1階
- 耐震基準
- 新耐震基準適合
- セキュリティ
- 機械警備(24時間監視)
- 駐車場設備
- 要確認
品川駅前港南ビル の募集区画 (総募集面積 58.82坪)
※月額費用、坪単価 ともに共益費込・税別の価格です
太陽生命品川ビル(港区、港南、品川)
- 所在地
- 東京都港区港南2-16-2
- 最寄り駅
- 品川駅徒歩5分
- 竣工
- 2003年
- 規模
- 地上30階・地下3階
- 耐震基準
- 新耐震基準適合
- セキュリティ
- 機械警備(24時間監視)
- 駐車場設備
- 要確認
- 設備
- 非常用発電機、 喫煙室、 荷捌き場(搬出入ヤード)、 リニューアル済み、 貨物EVあり、 トイレ男女別
太陽生命品川ビル の募集区画 (総募集面積 309.96坪)
※月額費用、坪単価 ともに共益費込・税別の価格です
A-PLACE品川(港区、港南、品川)
- 所在地
- 東京都港区港南1-8-40
- 最寄り駅
- 品川駅徒歩5分
- 竣工
- 1991年
- 規模
- 地上8階・地下1階
- 耐震基準
- 新耐震基準適合
- セキュリティ
- 機械警備(24時間監視)
- 駐車場設備
- 有(詳細要確認)
- 設備
- 24時間(要ICカード)、 防災・BCP
A-PLACE品川 の募集区画 (総募集面積 66.72坪)
※月額費用、坪単価 ともに共益費込・税別の価格です
港南日成ビル(港区、港南、品川)
- 所在地
- 東京都港区港南3-5-16
- 最寄り駅
- 品川駅徒歩10分
- 竣工
- 1986年
- 規模
- 地上6階
- 耐震基準
- 新耐震基準適合
- 駐車場設備
- 要確認
港南日成ビル の募集区画 (総募集面積 91.00坪)
※月額費用、坪単価 ともに共益費込・税別の価格です
品川インターシティC棟(港区、港南、品川、天王洲アイル)
- 所在地
- 東京都港区港南2-15-3
- 最寄り駅
- 品川駅徒歩3分、天王洲アイル駅徒歩16分
- 竣工
- 1998年
- 規模
- 地上31階・地下3階
- 耐震基準
- 新耐震基準適合・制震構造
- セキュリティ
- 機械警備・有人管理(24時間体制)
- 駐車場設備
- 有
品川インターシティC棟 の募集区画 (総募集面積 571.00坪)
※月額費用、坪単価 ともに共益費込・税別の価格です
品川インターシティA棟(28階:サービスオフィス)(港区、港南、品川、北品川)
- 所在地
- 東京都港区港南2-15-1
- 最寄り駅
- 品川駅徒歩2分、北品川駅徒歩8分、泉岳寺駅徒歩21分
- 竣工
- 1998年
- 規模
- 地上32階・地下3階
- 耐震基準
- 新耐震基準適合
- セキュリティ
- 有人管理(警備員常駐)
- 駐車場設備
- 要確認
品川インターシティA棟(28階:サービスオフィス) の募集区画 (総募集面積 4.00坪)
| 図面 | 階数 | 坪数 | 月額費用 | 坪単価 | 入居可能日 | |
|---|---|---|---|---|---|---|
![]() | 28階 | 1.00坪 | 394,700円 | 394,700円 | 即時 | 検討リスト お問い合わせ |
![]() | 28階 | 1.00坪 | 446,000円 | 446,000円 | 即時 | 検討リスト お問い合わせ |
![]() | 28階 | 1.00坪 | 491,400円 | 491,400円 | 即時 | 検討リスト お問い合わせ |
![]() | 28階 | 1.00坪 | 553,340円 | 553,340円 | 即時 | 検討リスト お問い合わせ |
※月額費用、坪単価 ともに共益費込・税別の価格です
エキスパートオフィス品川(港区、港南、品川)
- 所在地
- 東京都港区港南1-9-36
- 最寄り駅
- 品川駅徒歩1分
- 竣工
- 2003年
- 規模
- 地上27階・地下3階
- 耐震基準
- 新耐震基準適合
- セキュリティ
- 機械警備(24時間監視)
- 駐車場設備
- 要確認
エキスパートオフィス品川 の募集区画 (総募集面積 23.71坪)
| 図面 | 階数 | 坪数 | 月額費用 | 坪単価 | 入居可能日 | |
|---|---|---|---|---|---|---|
![]() | 13階 | 4.36坪 | お問い合わせください | 即時 | 検討リスト お問い合わせ | |
![]() | 13階 | 7.78坪 | お問い合わせください | 2026/4/上 | 検討リスト お問い合わせ | |
![]() | 13階 | 2.65坪 | お問い合わせください | 即時 | 検討リスト お問い合わせ | |
![]() | 13階 | 2.54坪 | お問い合わせください | 即時 | 検討リスト お問い合わせ | |
![]() | 13階 | 2.25坪 | お問い合わせください | 即時 | 検討リスト お問い合わせ | |
![]() | 13階 | 4.13坪 | お問い合わせください | 2026/4/上 | 検討リスト お問い合わせ |
※月額費用、坪単価 ともに共益費込・税別の価格です
品川グランドセントラルタワー(港区、港南、品川)
- 所在地
- 東京都港区港南2-16-4
- 最寄り駅
- 品川駅徒歩3分
- 竣工
- 2003年
- 規模
- 地上32階・地下3階
- 耐震基準
- 新耐震基準適合
- セキュリティ
- 機械警備・有人管理(24時間体制)
- 駐車場設備
- 有(平置き113台、機械式346台)
- 設備
- 防災センター、 非常用発電機、 貸会議室、 荷捌き場(搬出入ヤード)、 トイレ男女別、 複合施設、 防災・BCP
品川グランドセントラルタワー の募集区画 (総募集面積 65.63坪)
| 図面 | 階数 | 坪数 | 月額費用 | 坪単価 | 入居可能日 | |
|---|---|---|---|---|---|---|
![]() | 24階 | 10.53坪 | お問い合わせください | 即時 | 検討リスト お問い合わせ | |
![]() | 26階 | 10.53坪 | お問い合わせください | 即時 | 検討リスト お問い合わせ | |
![]() | 26階 | 10.53坪 | お問い合わせください | 即時 | 検討リスト お問い合わせ | |
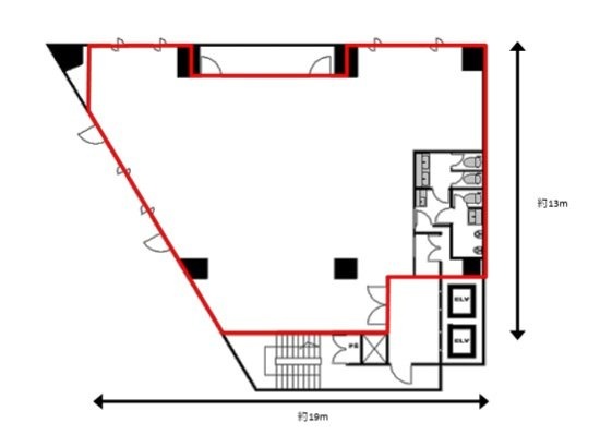
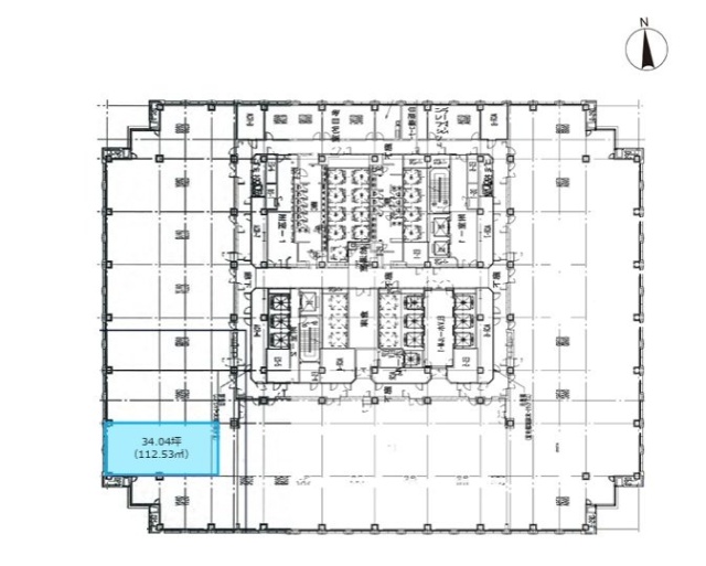
![]() | 9階 | 34.04坪 | お問い合わせください | 2026/5/1 | 検討リスト お問い合わせ |
※月額費用、坪単価 ともに共益費込・税別の価格です
NBF品川タワー(港区、港南、品川、天王洲アイル)
- 所在地
- 東京都港区港南2-16-5
- 最寄り駅
- 品川駅徒歩3分、天王洲アイル駅徒歩19分
- 竣工
- 2003年
- 規模
- 地上29階・地下3階
- 耐震基準
- 新耐震基準適合
- セキュリティ
- 機械警備・有人管理(24時間体制)
- 駐車場設備
- 有(397台)
- 設備
- 非常用発電機、 トイレ男女別、 非接触ICカード、 貸会議室、 共用ラウンジ(テナント専用ラウンジ)、 リフレッシュコーナー
NBF品川タワー の募集区画 (総募集面積 34.67坪)
※月額費用、坪単価 ともに共益費込・税別の価格です
A-PLACE品川東(港区、港南、品川、北品川)
- 所在地
- 東京都港区港南1-7-18
- 最寄り駅
- 品川駅徒歩7分、北品川駅徒歩18分、泉岳寺駅徒歩18分
- 竣工
- 1999年
- 規模
- 地上8階
- 耐震基準
- 新耐震基準適合
- セキュリティ
- 機械警備・有人管理(24時間体制)
- 駐車場設備
- 有
- 設備
- 非接触ICカード、 荷捌き場(搬出入ヤード)、 貨物EVあり、 省エネ・環境配慮
A-PLACE品川東 の募集区画 (総募集面積 92.15坪)
※月額費用、坪単価 ともに共益費込・税別の価格です
田町きよたビル(港区、芝浦、泉岳寺、田町)
- 所在地
- 東京都港区芝浦4-3-4
- 最寄り駅
- 泉岳寺駅徒歩8分、田町駅徒歩11分、三田駅徒歩13分
- 竣工
- 1982年
- 規模
- 地上9階・地下1階
- 耐震基準
- 新耐震基準適合
- セキュリティ
- 機械警備・有人管理(24時間体制)
- 駐車場設備
- 有(73台)
田町きよたビル の募集区画 (総募集面積 255.70坪)
| 図面 | 階数 | 坪数 | 月額費用 | 坪単価 | 入居可能日 | |
|---|---|---|---|---|---|---|
![]() | 6階 | 87.10坪 | お問い合わせください | 2026/4 | 検討リスト お問い合わせ | |
![]() | 7階 | 87.10坪 | お問い合わせください | 2026/4 | 検討リスト お問い合わせ | |
![]() | 6階 | 81.50坪 | お問い合わせください | 2026/4 | 検討リスト お問い合わせ |
※月額費用、坪単価 ともに共益費込・税別の価格です
芝浦NAビル(港区、芝浦、高輪ゲートウェイ、田町)
- 所在地
- 東京都港区芝浦4-17-3
- 最寄り駅
- 高輪ゲートウェイ駅徒歩8分、田町駅徒歩13分、泉岳寺駅徒歩11分
- 竣工
- 1992年
- 規模
- 地上7階・地下1階
- 耐震基準
- 新耐震基準適合
- セキュリティ
- 機械警備(24時間監視)
- 駐車場設備
- 要確認
- 設備
- トイレ男女別
芝浦NAビル の募集区画 (総募集面積 71.85坪)
※月額費用、坪単価 ともに共益費込・税別の価格です
国際高輪ビル(港区、高輪、品川、泉岳寺)
- 所在地
- 東京都港区高輪2-21-40
- 最寄り駅
- 品川駅徒歩7分、泉岳寺駅徒歩3分
- 竣工
- 1985年
- 規模
- 地上8階
- 耐震基準
- 新耐震基準適合
- セキュリティ
- 機械警備(24時間監視)
- 駐車場設備
- 無
国際高輪ビル の募集区画 (総募集面積 137.50坪)
| 図面 | 階数 | 坪数 | 月額費用 | 坪単価 | 入居可能日 | |
|---|---|---|---|---|---|---|
![]() | 3階 | 27.50坪 | 302,500円 | 11,000円 | 即時 | 検討リスト お問い合わせ |
![]() | 5階 | 27.50坪 | 302,500円 | 11,000円 | 即時 | 検討リスト お問い合わせ |
![]() | 6階 | 27.50坪 | 302,500円 | 11,000円 | 2026/4/1 | 検討リスト お問い合わせ |
![]() | 2階 | 27.50坪 | 302,500円 | 11,000円 | 2026/4/1 | 検討リスト お問い合わせ |
![]() | 8階 | 27.50坪 | 302,500円 | 11,000円 | 即時 | 検討リスト お問い合わせ |
※月額費用、坪単価 ともに共益費込・税別の価格です
高輪エンパイヤビル(港区、高輪、品川、高輪ゲートウェイ)
- 所在地
- 東京都港区高輪3-24-18
- 最寄り駅
- 品川駅徒歩3分、高輪ゲートウェイ駅徒歩3分
- 竣工
- 1991年
- 規模
- 地上10階・地下1階
- 耐震基準
- 新耐震基準適合
- セキュリティ
- 機械警備(24時間監視)
- 駐車場設備
- 要確認
高輪エンパイヤビル の募集区画 (総募集面積 100.70坪)
※月額費用、坪単価 ともに共益費込・税別の価格です
KDX高輪台(SIA高輪台)ビル(港区、高輪、高輪台、白金高輪)
- 所在地
- 東京都港区高輪3-5-23
- 最寄り駅
- 高輪台駅徒歩3分、白金高輪駅徒歩10分、泉岳寺駅徒歩10分
- 竣工
- 1985年
- 規模
- 地上9階・地下1階
- 耐震基準
- 新耐震基準適合
- セキュリティ
- 機械警備(24時間監視)
- 駐車場設備
- 有(機械式 33台/平置き13台)
- 設備
- 24時間(要ICカード)、 トイレ男女別
KDX高輪台(SIA高輪台)ビル の募集区画 (総募集面積 43.38坪)
※月額費用、坪単価 ともに共益費込・税別の価格です
大野高輪ビル(港区、高輪、泉岳寺、品川)
- 所在地
- 東京都港区高輪2-21-38
- 最寄り駅
- 泉岳寺駅徒歩2分、品川駅徒歩9分
- 竣工
- 1989年
- 規模
- 地上8階
- 耐震基準
- 新耐震基準適合
- 駐車場設備
- 要確認
大野高輪ビル の募集区画 (総募集面積 88.56坪)
※月額費用、坪単価 ともに共益費込・税別の価格です
サマセット品川東京(港区、高輪、品川、北品川)
- 所在地
- 東京都港区高輪4-24-58
- 最寄り駅
- 品川駅徒歩7分、北品川駅徒歩6分、高輪ゲートウェイ駅徒歩18分
- 竣工
- 1980年
- 規模
- 地上8階・地下2階
- セキュリティ
- 機械警備(24時間監視)
- 駐車場設備
- 有
サマセット品川東京 の募集区画 (総募集面積 55.38坪)
※月額費用、坪単価 ともに共益費込・税別の価格です
グレイス高輪(港区、高輪、高輪ゲートウェイ、品川)
- 所在地
- 東京都港区高輪2-14-17
- 最寄り駅
- 高輪ゲートウェイ駅徒歩6分、品川駅徒歩11分、泉岳寺駅徒歩5分
- 竣工
- 1985年
- 規模
- 地上11階・地下1階
- 耐震基準
- 新耐震基準適合
- セキュリティ
- 機械警備・有人管理(24時間体制)
- 駐車場設備
- 要確認
グレイス高輪 の募集区画 (総募集面積 31.70坪)
※月額費用、坪単価 ともに共益費込・税別の価格です
高輪カネオビル(港区、高輪、品川、泉岳寺)
- 所在地
- 東京都港区高輪3-25-22
- 最寄り駅
- 品川駅徒歩2分、泉岳寺駅徒歩11分、北品川駅徒歩13分
- 竣工
- 1978年
- 規模
- 地上10階・地下1階
- セキュリティ
- 機械警備・有人管理(24時間体制)
- 駐車場設備
- 要確認
高輪カネオビル の募集区画 (総募集面積 53.00坪)
※月額費用、坪単価 ともに共益費込・税別の価格です
フィールド高輪(港区、高輪、品川、北品川)
- 所在地
- 東京都港区高輪4-22-1
- 最寄り駅
- 品川駅徒歩4分、北品川駅徒歩13分、高輪台駅徒歩15分
- 竣工
- 1986年
- 規模
- 地上4階・地下1階
- 耐震基準
- 新耐震基準適合
- 駐車場設備
- 要確認
フィールド高輪 の募集区画 (総募集面積 9.98坪)
※月額費用、坪単価 ともに共益費込・税別の価格です
Ave.Takanawa(港区、高輪、品川、高輪ゲートウェイ)
- 所在地
- 東京都港区高輪3-25-27
- 最寄り駅
- 品川駅徒歩4分、高輪ゲートウェイ駅徒歩7分、泉岳寺駅徒歩11分
- 竣工
- 2026年
- 規模
- 地上10階
- 耐震基準
- 新耐震基準適合・制震構造
- セキュリティ
- 機械警備(24時間監視)
- 駐車場設備
- 有(17台(機械式14台、平置き3台) 1階車寄せ・荷捌きスペース有り)
- 設備
- 非常用発電機、 貸会議室、 屋上テラス(ルーフトップテラス)、 共用ラウンジ(テナント専用ラウンジ)、 省エネ・環境配慮、 防災・BCP、 24時間(要ICカード)、 荷捌き場(搬出入ヤード)、 トイレ男女別
Ave.Takanawa の募集区画 (総募集面積 978.35坪)
| 図面 | 階数 | 坪数 | 月額費用 | 坪単価 | 入居可能日 | |
|---|---|---|---|---|---|---|
![]() | 2階 | 70.99坪 | お問い合わせください | 相談 | 検討リスト お問い合わせ | |
![]() | 2階 | 70.99坪 | お問い合わせください | 相談 | 検討リスト お問い合わせ | |
![]() | 3階 | 278.79坪 | お問い合わせください | 相談 | 検討リスト お問い合わせ | |
![]() | 4階 | 278.79坪 | お問い合わせください | 相談 | 検討リスト お問い合わせ | |
![]() | 9階 | 278.79坪 | お問い合わせください | 相談 | 検討リスト お問い合わせ |
※月額費用、坪単価 ともに共益費込・税別の価格です
光村(ミツムラ)ビル(品川区、大崎、新馬場、品川)
- 所在地
- 東京都品川区大崎1-15-9
- 最寄り駅
- 大崎駅徒歩7分、新馬場駅徒歩10分、品川駅徒歩20分
- 竣工
- 1996年
- 規模
- 地上12階・地下2階
- 耐震基準
- 新耐震基準適合
- セキュリティ
- 機械警備・有人管理(24時間体制)
- 駐車場設備
- 要確認
光村(ミツムラ)ビル の募集区画 (総募集面積 60.50坪)
※月額費用、坪単価 ともに共益費込・税別の価格です
ストークビル北品川(品川区、北品川、品川、天王洲アイル)
- 所在地
- 東京都品川区北品川1-13-10
- 最寄り駅
- 北品川駅徒歩4分、品川駅徒歩9分、天王洲アイル駅徒歩14分
- 竣工
- 1992年
- 規模
- 地上7階
- 耐震基準
- 新耐震基準適合
- 駐車場設備
- 要確認
ストークビル北品川 の募集区画 (総募集面積 19.94坪)
※月額費用、坪単価 ともに共益費込・税別の価格です
御殿山トラストタワー(品川区、北品川、品川、大崎)
- 所在地
- 東京都品川区北品川4-7-35
- 最寄り駅
- 北品川駅徒歩5分、品川駅徒歩10分、大崎駅徒歩14分
- 竣工
- 1990年
- 規模
- 地上21階・地下3階
- 耐震基準
- 新耐震基準適合
- 駐車場設備
- 有(動車:283台(自走式)、自動二輪:11台)
御殿山トラストタワー の募集区画 (総募集面積 274.40坪)
※月額費用、坪単価 ともに共益費込・税別の価格です
【エリアのオフィス市況】
品川駅周辺は、港南口(東口)の港南エリアと、高輪口(西口)の高輪エリアで街の表情が異なります。港南エリアはペデストリアンデッキで直結された大規模ビル群が形成され、大企業の集積地となっています。一方、高輪エリアは再開発が進みつつも緑豊かな環境が残り、ホテルやカンファレンス機能が充実しています。
【交通アクセスと採用メリット】
京急線で羽田空港へ最速十数分で移動できるため、グローバル展開する企業や地方支店に最適です。また、横浜・川崎方面からの通勤アクセスも良く、神奈川エリア在住の人材確保において、都内でも屈指の優位性を持つ立地です。
























































































































































































































































































