都庁前駅、30坪~60坪の賃貸オフィス・貸事務所情報
都営大江戸線「都庁前駅」。東京都庁舎を中心とした超高層ビル群が建ち並ぶ、日本を代表する巨大ビジネスセンターの中枢です。新宿駅も徒歩圏内という圧倒的な機動力と、高度な都市インフラが整ったロケーション。世界基準の機能性と、都心のパノラマを享受できる、企業のアイデンティティを象徴する最高峰の拠点です。
検索結果 38 件
新宿モノリス(新宿区、西新宿、都庁前、新宿)
- 所在地
- 東京都新宿区西新宿2-3-1
- 最寄り駅
- 都庁前駅徒歩2分、新宿駅徒歩3分
- 竣工
- 1990年
- 規模
- 地上30階・地下3階
- 耐震基準
- 新耐震基準適合
- セキュリティ
- 機械警備・有人管理(24時間体制)
- 駐車場設備
- 要確認
新宿モノリス の募集区画 (総募集面積 35.97坪)
※月額費用、坪単価 ともに共益費込・税別の価格です
KDX新宿ビル(新宿区、西新宿、新宿、都庁前)
- 所在地
- 東京都新宿区西新宿3-2-7
- 最寄り駅
- 新宿駅徒歩5分、都庁前駅徒歩7分
- 竣工
- 1993年
- 規模
- 地上11階・地下4階
- 耐震基準
- 新耐震基準適合
- セキュリティ
- 機械警備(24時間監視)
- 駐車場設備
- 有(自走式 50台)
- 設備
- 省エネ・環境配慮、 トイレ男女別、 24時間(要ICカード)、 リニューアル済み
KDX新宿ビル の募集区画 (総募集面積 38.52坪)
※月額費用、坪単価 ともに共益費込・税別の価格です
ハイネスロフティー(新宿区、西新宿、都庁前、初台)
- 所在地
- 東京都新宿区西新宿4-32-4
- 最寄り駅
- 都庁前駅徒歩5分、初台駅徒歩12分、新宿駅徒歩13分
- 竣工
- 1979年
- 規模
- 地上13階
- セキュリティ
- 機械警備・有人管理(24時間体制)
- 駐車場設備
- 要確認
ハイネスロフティー の募集区画 (総募集面積 129.20坪)
| 図面 | 階数 | 坪数 | 月額費用 | 坪単価 | 入居可能日 | |
|---|---|---|---|---|---|---|
![]() | 2階 | 33.12坪 | お問い合わせください | 2026/6/23 | 検討リスト お問い合わせ | |
![]() | 2階 | 48.04坪 | お問い合わせください | 2026/2/14 | 検討リスト お問い合わせ | |
![]() | 3階 | 48.04坪 | お問い合わせください | 即時 | 検討リスト お問い合わせ |
※月額費用、坪単価 ともに共益費込・税別の価格です
新宿タツミビル(新宿区、西新宿、西新宿五丁目、都庁前)
- 所在地
- 東京都新宿区西新宿6-16-6
- 最寄り駅
- 西新宿五丁目駅徒歩5分、都庁前駅徒歩6分、西新宿駅徒歩7分
- 竣工
- 1985年
- 規模
- 地上11階
- 耐震基準
- 新耐震基準適合
- セキュリティ
- 機械警備(24時間監視)
- 駐車場設備
- 要確認
新宿タツミビル の募集区画 (総募集面積 58.15坪)
※月額費用、坪単価 ともに共益費込・税別の価格です
黒須ビル(新宿区、西新宿、西新宿五丁目、都庁前)
- 所在地
- 東京都新宿区西新宿5-11-3
- 最寄り駅
- 西新宿五丁目駅徒歩3分、西新宿駅徒歩11分、都庁前駅徒歩11分
- 竣工
- 1990年
- 規模
- 地上3階
- 耐震基準
- 新耐震基準適合
- 駐車場設備
- 要確認
黒須ビル の募集区画 (総募集面積 108.22坪)
※月額費用、坪単価 ともに共益費込・税別の価格です
パークウエスト(新宿区、西新宿、都庁前、新宿)
- 所在地
- 東京都新宿区西新宿6-12-1
- 最寄り駅
- 西新宿駅徒歩4分、都庁前駅徒歩6分、新宿駅徒歩13分
- 竣工
- 1996年
- 規模
- 地上13階・地下2階
- 耐震基準
- 新耐震基準適合
- セキュリティ
- 機械警備(24時間監視)
- 駐車場設備
- 要確認
パークウエスト の募集区画 (総募集面積 42.43坪)
※月額費用、坪単価 ともに共益費込・税別の価格です
コイトビル(新宿区、西新宿、都庁前、新宿)
- 所在地
- 東京都新宿区西新宿6-12-4
- 最寄り駅
- 西新宿駅徒歩5分、都庁前駅徒歩6分、新宿駅徒歩13分
- 竣工
- 1974年
- 規模
- 地上12階・地下2階
- セキュリティ
- 有人管理(警備員常駐)
- 駐車場設備
- 要確認
コイトビル の募集区画 (総募集面積 66.00坪)
※月額費用、坪単価 ともに共益費込・税別の価格です
菅野ビル(新宿区、西新宿、都庁前、新宿西口)
- 所在地
- 東京都新宿区西新宿6-2-16
- 最寄り駅
- 西新宿駅徒歩2分、都庁前駅徒歩5分、新宿西口駅徒歩6分
- 竣工
- 1995年
- 規模
- 地上9階・地下1階
- 耐震基準
- 新耐震基準適合
- セキュリティ
- 機械警備(24時間監視)
- 駐車場設備
- 要確認
菅野ビル の募集区画 (総募集面積 48.46坪)
※月額費用、坪単価 ともに共益費込・税別の価格です
カメリアビル(新宿区、西新宿、都庁前、大久保)
- 所在地
- 東京都新宿区西新宿8-5-10
- 最寄り駅
- 西新宿駅徒歩1分、都庁前駅徒歩6分、大久保駅徒歩8分
- 竣工
- 1992年
- 規模
- 地上4階
- 耐震基準
- 新耐震基準適合
- セキュリティ
- 機械警備(24時間監視)
- 駐車場設備
- 要確認
カメリアビル の募集区画 (総募集面積 46.65坪)
※月額費用、坪単価 ともに共益費込・税別の価格です
新宿三井ビルディング(新宿区、西新宿、都庁前、新宿)
- 所在地
- 東京都新宿区西新宿2-1-1
- 最寄り駅
- 都庁前駅徒歩1分、西新宿駅徒歩2分、新宿駅徒歩6分
- 竣工
- 1974年
- 規模
- 地上55階・地下3階
- 耐震基準
- 耐震補強済み(新耐震相当)
- セキュリティ
- 機械警備・有人管理(24時間体制)
- 駐車場設備
- 有(290台)
- 設備
- 非常用発電機、 省エネ・環境配慮
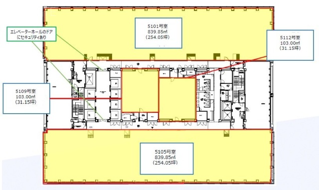
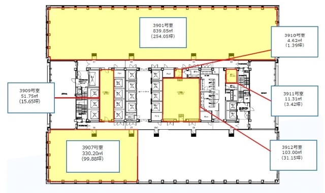
新宿三井ビルディング の募集区画 (総募集面積 166.34坪)
| 図面 | 階数 | 坪数 | 月額費用 | 坪単価 | 入居可能日 | |
|---|---|---|---|---|---|---|
![]() | 51階 | 31.15坪 | お問い合わせください | 2027/6/1 | 検討リスト お問い合わせ | |
![]() | 51階 | 31.15坪 | お問い合わせください | 2027/6/1 | 検討リスト お問い合わせ | |
![]() | 39階 | 31.15坪 | お問い合わせください | 即時 | 検討リスト お問い合わせ | |
![]() | B1階 | 37.31坪 | お問い合わせください | 即時 | 検討リスト お問い合わせ | |
![]() | 1階 | 35.58坪 | お問い合わせください | 即時 | 検討リスト お問い合わせ |
※月額費用、坪単価 ともに共益費込・税別の価格です
渡辺西新宿ビル(新宿区、西新宿、西新宿五丁目、都庁前)
- 所在地
- 東京都新宿区西新宿4-3-12
- 最寄り駅
- 西新宿五丁目駅徒歩2分、都庁前駅徒歩10分、新宿駅徒歩19分
- 竣工
- 1990年
- 規模
- 地上9階
- 耐震基準
- 新耐震基準適合
- セキュリティ
- 機械警備(24時間監視)
- 駐車場設備
- 要確認
渡辺西新宿ビル の募集区画 (総募集面積 57.66坪)
※月額費用、坪単価 ともに共益費込・税別の価格です
TK新都心ビル(新宿区、西新宿、新宿、都庁前)
- 所在地
- 東京都新宿区西新宿1-23-1
- 最寄り駅
- 新宿駅徒歩6分、都庁前駅徒歩7分
- 竣工
- 1992年
- 規模
- 地上10階・地下2階
- 耐震基準
- 新耐震基準適合
- セキュリティ
- 機械警備・有人管理(24時間体制)
- 駐車場設備
- 要確認
TK新都心ビル の募集区画 (総募集面積 95.62坪)
※月額費用、坪単価 ともに共益費込・税別の価格です
新宿第一生命 (旧 小田急第一生命ビル)ビル(新宿区、西新宿、都庁前、新宿)
- 所在地
- 東京都新宿区西新宿2-7-1
- 最寄り駅
- 都庁前駅徒歩2分、西新宿駅徒歩5分、新宿駅徒歩10分
- 竣工
- 1980年
- 規模
- 地上26階・地下4階
- セキュリティ
- 機械警備・有人管理(24時間体制)
- 駐車場設備
- 有
- 設備
- 貸会議室
新宿第一生命 (旧 小田急第一生命ビル)ビル の募集区画 (総募集面積 129.51坪)
| 図面 | 階数 | 坪数 | 月額費用 | 坪単価 | 入居可能日 | |
|---|---|---|---|---|---|---|
![]() | 25階 | 46.60坪 | お問い合わせください | 即時 | 検討リスト お問い合わせ | |
![]() | 6階 | 46.60坪 | お問い合わせください | 2026/6/1 | 検討リスト お問い合わせ | |
![]() | 1階 | 36.31坪 | お問い合わせください | 2026/4/1 | 検討リスト お問い合わせ |
※月額費用、坪単価 ともに共益費込・税別の価格です
アイタウンプラザ(新宿区、西新宿、西新宿五丁目、都庁前)
- 所在地
- 東京都新宿区西新宿6-21-1
- 最寄り駅
- 西新宿駅徒歩6分、西新宿五丁目駅徒歩7分、都庁前駅徒歩8分
- 竣工
- 1994年
- 規模
- 地上30階・地下4階
- 耐震基準
- 新耐震基準適合
- セキュリティ
- 機械警備(24時間監視)
- 駐車場設備
- 要確認
アイタウンプラザ の募集区画 (総募集面積 38.14坪)
※月額費用、坪単価 ともに共益費込・税別の価格です
野村不動産西新宿共同ビル(新宿区、西新宿、都庁前、新宿)
- 所在地
- 東京都新宿区西新宿8-5-1
- 最寄り駅
- 西新宿駅徒歩1分、都庁前駅徒歩7分、新宿駅徒歩10分
- 竣工
- 1993年
- 規模
- 地上8階・地下1階
- 耐震基準
- 新耐震基準適合
- セキュリティ
- 機械警備(24時間監視)
- 駐車場設備
- 要確認
野村不動産西新宿共同ビル の募集区画 (総募集面積 87.60坪)
※月額費用、坪単価 ともに共益費込・税別の価格です
フロンティア新宿タワー(新宿区、西新宿、都庁前、新宿)
- 所在地
- 東京都新宿区西新宿3-9-7
- 最寄り駅
- 都庁前駅徒歩11分、新宿駅徒歩13分、初台駅徒歩5分
- 竣工
- 2018年
- 規模
- 地上24階・地下1階
- 耐震基準
- 新耐震基準適合
- セキュリティ
- 機械警備(24時間監視)
- 駐車場設備
- 要確認
フロンティア新宿タワー の募集区画 (総募集面積 88.83坪)
※月額費用、坪単価 ともに共益費込・税別の価格です
フロンティアグラン西新宿(新宿区、西新宿、初台、都庁前)
- 所在地
- 東京都新宿区西新宿3-7-30
- 最寄り駅
- 初台駅徒歩10分、都庁前駅徒歩9分、新宿駅徒歩15分
- 竣工
- 1990年
- 規模
- 地上12階・地下3階
- 耐震基準
- 新耐震基準適合
- セキュリティ
- 機械警備(24時間監視)
- 駐車場設備
- 要確認
フロンティアグラン西新宿 の募集区画 (総募集面積 50.48坪)
※月額費用、坪単価 ともに共益費込・税別の価格です
新宿野村ビル(新宿区、西新宿、都庁前、新宿)
- 所在地
- 東京都新宿区西新宿1-26-2
- 最寄り駅
- 都庁前駅徒歩3分、西新宿駅徒歩4分、新宿駅徒歩7分
- 竣工
- 1978年
- 規模
- 地上50階・地下5階
- 耐震基準
- 新耐震基準適合・制震構造
- セキュリティ
- 機械警備・有人管理(24時間体制)
- 駐車場設備
- 有(330台(自走式))
新宿野村ビル の募集区画 (総募集面積 348.72坪)
| 図面 | 階数 | 坪数 | 月額費用 | 坪単価 | 入居可能日 | |
|---|---|---|---|---|---|---|
![]() | 5階 | 58.32坪 | お問い合わせください | 即時 | 検討リスト お問い合わせ | |
![]() | 26階 | 48.48坪 | お問い合わせください | 2026/4/1 | 検討リスト お問い合わせ | |
![]() | 26階 | 45.30坪 | お問い合わせください | 2026/5/1 | 検討リスト お問い合わせ | |
![]() | 26階 | 57.54坪 | お問い合わせください | 2026/4/1 | 検討リスト お問い合わせ | |
![]() | 26階 | 36.24坪 | お問い合わせください | 2026/5/1 | 検討リスト お問い合わせ | |
![]() | 26階 | 45.30坪 | お問い合わせください | 2026/4/1 | 検討リスト お問い合わせ | |
![]() | 26階 | 57.54坪 | お問い合わせください | 2026/5/1 | 検討リスト お問い合わせ |
※月額費用、坪単価 ともに共益費込・税別の価格です
新宿ワシントンホテルアネックス(新宿ワシントンホテル新館3階)(新宿区、西新宿、都庁前、新宿)
- 所在地
- 東京都新宿区西新宿3-3-15
- 最寄り駅
- 都庁前駅徒歩5分、新宿駅徒歩8分
- 竣工
- 1986年
- 規模
- 地上18階・地下2階
- 耐震基準
- 新耐震基準適合
- セキュリティ
- 機械警備(24時間監視)
- 駐車場設備
- 無
新宿ワシントンホテルアネックス(新宿ワシントンホテル新館3階) の募集区画 (総募集面積 48.45坪)
※月額費用、坪単価 ともに共益費込・税別の価格です
【エリアのオフィス市況】
国内最高クラスのスペックを誇るハイグレードな超高層ビルが密集するマーケットです。最新の制震・免震構造や強固なセキュリティインフラを享受でき、大手企業や外資系企業の本社が多く集積しています。賃料は高位ですが、都庁前という圧倒的なステータスと社会的信用を得られるため、企業のプレゼンスを盤石にしたい法人に最適です。
【交通アクセスと採用メリット】
大江戸線の分岐点であり、六本木や飯田橋へダイレクトに繋がるほか、新宿駅まで地下通路を介してアクセス可能です。この卓越した利便性は、多方面からの優秀な人材確保において最強の武器となります。新宿中央公園の広大な緑がリフレッシュ空間を提供。整備されたクリーンな環境は働く人々に高い誇りと満足度を与え、圧倒的な採用力を実現します。

















































































































































































































































