都電雑司ヶ谷駅の賃貸オフィス・貸事務所情報
検索結果 16 件
並び替え
K・Bビル(文京区目白台・護国寺・都電雑司ヶ谷・茗荷谷)
編集中
- 所在地
- 東京都文京区目白台2-13-2
- 最寄り駅
- 護国寺駅徒歩6分、都電雑司ヶ谷駅徒歩13分、茗荷谷駅徒歩18分
- 竣工
- 1991年
- 規模
- 地上6階・地下1階
- 耐震基準
- 新耐震基準適合
- セキュリティ
- 機械警備(24時間監視)
- 駐車場設備
- 無
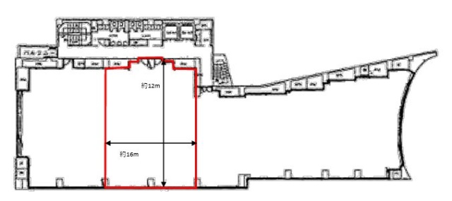
K・Bビルは、文京区目白台の不忍通り沿いに建つ、独立性の高い1フロア1テナントのオフィスです。1991年竣工の新耐震基準適合物件で、4面採光を確保した室内は開放感があり、非常に明るい執務環境を実現しています。オートロック完備で24時間利用可能なため、セキュリティと利便性を両立。専用のトイレや給湯スペースが室内に配置されており、プライバシーを重視する企業に好適です。隣に郵便局、至近にコンビニがある周辺環境の良さも、日々の業務効率を強力にバックアップします。
K・Bビル の募集区画 (総募集面積 34.47坪)
※月額費用、坪単価 ともに共益費込・税別の価格です
池袋KTビル(豊島区西池袋・都電雑司ヶ谷・東池袋)
- 所在地
- 東京都豊島区西池袋2-29-19
- 最寄り駅
- 池袋駅徒歩3分、都電雑司ヶ谷駅徒歩12分、東池袋駅徒歩15分
- 竣工
- 1992年
- 規模
- 地上11階・地下1階
- 耐震基準
- 新耐震基準適合
- セキュリティ
- 機械警備・有人管理(24時間体制)
- 駐車場設備
- 無
ビッグターミナル「池袋駅」から徒歩3分、西池袋の洗練されたエリアに佇むグレード感あふれるオフィスビルです。1992年竣工の地上11階建てで、新耐震基準に適合。同規模のビルとしては珍しくエレベーターを2基実装しており、上下動のストレスを最小限に抑えています。室内は窓面が広く取られ、圧倒的な採光と開放感が魅力。エレベーターホールから室内へ繋がる扉が2つあるため、来客用とスタッフ用など効率的なレイアウトが可能です。男女別トイレは室外に配置され、ビル側で清掃を行うため管理の手間もかかりません。機械警備に加え、日中は管理人が常駐する有人警備体制で、セキュリティ面も万全です。
池袋KTビル の募集区画 (総募集面積 143.08坪)
| 図面 | 階数 | 坪数 | 月額費用 | 坪単価 | 入居可能日 | |
|---|---|---|---|---|---|---|
![]() | 1階 | 35.68坪 | 642,240円 | 18,000円 | 2026/8/1 | 検討リスト お問い合わせ |
![]() | 3階 | 53.70坪 | 966,600円 | 18,000円 | 2026/8/1 | 検討リスト お問い合わせ |
![]() | 4階 | 53.70坪 | 966,600円 | 18,000円 | 2026/8/1 | 検討リスト お問い合わせ |
※月額費用、坪単価 ともに共益費込・税別の価格です
タカセビル別館(豊島区東池袋・都電雑司ヶ谷)
- 所在地
- 東京都豊島区東池袋1-25-8
- 最寄り駅
- 東池袋駅徒歩5分、池袋駅徒歩7分、都電雑司ヶ谷駅徒歩8分
- 竣工
- 1983年
- 規模
- 地上9階
- 耐震基準
- 新耐震基準適合
- セキュリティ
- 機械警備(24時間監視)
- 駐車場設備
- 有
池袋駅と東池袋駅の両駅が徒歩圏内の本物件は、新耐震基準を満たした安心感のある賃貸オフィスです。ワンフロア約70坪の室内は、レイアウトしやすい長方形の間取りが特徴で、天井高2,550mmを確保したゆとりある空間を提供します。男女別トイレを共用部に配置し、専有面積を有効に活用できる設計も魅力です。機械警備や駐車場完備など機能面が充実しているほか、至近のセブンイレブンやサンシャインシティ、豊島区役所前郵便局といった施設がビジネスを強力にバックアップ。利便性の高い東池袋エリアで、機能的かつ安全な就業環境を求める企業に好適な選択肢となります。
タカセビル別館 の募集区画 (総募集面積 241.52坪)
| 図面 | 階数 | 坪数 | 月額費用 | 坪単価 | 入居可能日 | |
|---|---|---|---|---|---|---|
![]() | 6階 | 50.22坪 | 863,784円 | 17,200円 | 即時 | 検討リスト お問い合わせ |
![]() | 8階 | 50.22坪 | 863,784円 | 17,200円 | 2026/7/1 | 検討リスト お問い合わせ |
![]() | 3階 | 70.54坪 | 1,213,288円 | 17,200円 | 2027/4/1 | 検討リスト お問い合わせ |
![]() | 2階 | 70.54坪 | 1,213,288円 | 17,200円 | 2026/1/10 | 検討リスト お問い合わせ |
※月額費用、坪単価 ともに共益費込・税別の価格です
ビック池袋東口ビル(豊島区東池袋・都電雑司ヶ谷)
- 所在地
- 東京都豊島区東池袋1-5-6
- 最寄り駅
- 池袋駅徒歩3分、東池袋駅徒歩11分、都電雑司ヶ谷駅徒歩13分
- 竣工
- 1987年
- 規模
- 地上10階・地下1階
- 耐震基準
- 新耐震基準適合
- セキュリティ
- 機械警備・有人管理(24時間体制)
- 駐車場設備
- 有
池袋駅東口から徒歩1分という圧倒的な駅近立地に建つ、視認性抜群の賃貸オフィスです。大手ゼネコンの竹中工務店施工による堅牢なSRC造で、24時間の有人管理体制により高いセキュリティ水準を維持しています。1フロアの面積が広く、通路への動線が複数確保されているため、自由度の高いオフィスレイアウトが可能です。駅前の利便性と優れたスペックを兼ね備え、企業の拠点として高いブランド力を提供します。
ビック池袋東口ビル の募集区画 (総募集面積 172.34坪)
| 図面 | 階数 | 坪数 | 月額費用 | 坪単価 | 入居可能日 | |
|---|---|---|---|---|---|---|
![]() | 7階 | 172.34坪 | 賃料を確認する (無料・1分) | 2026/5/下 | 検討リスト お問い合わせ |
※月額費用、坪単価 ともに共益費込・税別の価格です
JRE南池袋ビル(豊島区南池袋・都電雑司ヶ谷・東池袋)
- 所在地
- 東京都豊島区南池袋1-13-23
- 最寄り駅
- 池袋駅徒歩6分、都電雑司ヶ谷駅徒歩10分、東池袋駅徒歩13分
- 竣工
- 1989年
- 規模
- 地上8階・地下1階
- 耐震基準
- 新耐震基準適合
- セキュリティ
- 機械警備・有人管理(24時間体制)
- 駐車場設備
- 有
- 設備
- トイレ男女別
JRE南池袋ビルは、ビッグターミナル「池袋」駅から徒歩6分、明治通り沿いの開放的なロケーションに佇むハイグレードな賃貸オフィスビルです。1989年竣工の新耐震基準物件で、ガラス張りと曲線を用いたモダンな外観デザインは、周辺でも高い視認性を誇ります。室内は基準階約220坪の広さを持ち、募集区画(7階・約70坪)も柱のない長方形のシンプルな形状のため、デスク配置や会議室設置などのレイアウト効率が非常に高いのが特徴です。空調はフロアごとに調整可能な個別タイプを採用。共用部には男女別トイレと給湯スペースが完備され、清潔感のある空間が維持されています。セキュリティ面では24時間対応の機械警備に加え、平日の日中は管理人が常駐。安全性とホスピタリティを兼ね備えています。ビル周辺には「カフェ・ベローチェ」やコンビニ、飲食店が充実しており、ランチや打ち合わせにも困らない、池袋エリアでも有数の利便性を誇るビジネス拠点です。
JRE南池袋ビル の募集区画 (総募集面積 69.96坪)
| 図面 | 階数 | 坪数 | 月額費用 | 坪単価 | 入居可能日 | |
|---|---|---|---|---|---|---|
![]() | 7階 | 69.96坪 | 賃料を確認する (無料・1分) | 2026/10/1 | 検討リスト お問い合わせ |
※月額費用、坪単価 ともに共益費込・税別の価格です
山の手ビル東館(豊島区南池袋・都電雑司ヶ谷)
- 所在地
- 東京都豊島区南池袋1-19-12
- 最寄り駅
- 池袋駅徒歩3分、都電雑司ヶ谷駅徒歩9分
- 竣工
- 1974年
- 規模
- 地上12階・地下1階
- セキュリティ
- 機械警備・有人管理(24時間体制)
- 駐車場設備
- 無
- 設備
- トイレ男女別
山の手ビル東館は、巨大ターミナル「池袋駅」からわずか徒歩2分、南池袋エリアの活気あふれるビジネスゾーンに位置する賃貸オフィスビルです。明治通りから一歩入った視認性の高い立地は、来客の多い企業様や、駅近の利便性を最優先する企業様に最適です。
1974年竣工の落ち着いた茶色のパネル張りの外観が特徴で、最大の強みは「管理の行き届いたセキュリティ」にあります。この規模のビルでは希少な有人警備と機械警備を併用しており、23時まで利用可能なビル環境を安全に支えています。
募集中の10階A室(60.07坪)は、窓面が広く取られており、上層階ならではの明るい執務環境が広がっています。トイレや給湯スペースが室外(共用部)に配置されているため、60坪の専有面積をフルに活用した効率的なレイアウトが可能です。個別空調や男女別トイレなど、快適なオフィスライフに欠かせないスペックも標準装備されています。
ビル周辺にはコンビニやカフェ、飲食店が驚くほど充実しており、ランチや打ち合わせ場所に困ることはありません。西武池袋本店も至近で、オンオフともに充実した環境が整う「南池袋の優良拠点」として自信を持っておすすめいたします。
1974年竣工の落ち着いた茶色のパネル張りの外観が特徴で、最大の強みは「管理の行き届いたセキュリティ」にあります。この規模のビルでは希少な有人警備と機械警備を併用しており、23時まで利用可能なビル環境を安全に支えています。
募集中の10階A室(60.07坪)は、窓面が広く取られており、上層階ならではの明るい執務環境が広がっています。トイレや給湯スペースが室外(共用部)に配置されているため、60坪の専有面積をフルに活用した効率的なレイアウトが可能です。個別空調や男女別トイレなど、快適なオフィスライフに欠かせないスペックも標準装備されています。
ビル周辺にはコンビニやカフェ、飲食店が驚くほど充実しており、ランチや打ち合わせ場所に困ることはありません。西武池袋本店も至近で、オンオフともに充実した環境が整う「南池袋の優良拠点」として自信を持っておすすめいたします。
山の手ビル東館 の募集区画 (総募集面積 229.10坪)
| 図面 | 階数 | 坪数 | 月額費用 | 坪単価 | 入居可能日 | |
|---|---|---|---|---|---|---|
![]() | 9階 | 60.07坪 | 1,291,505円 | 21,500円 | 即時 | 検討リスト お問い合わせ |
![]() | 11階 | 48.89坪 | 1,051,135円 | 21,500円 | 即時 | 検討リスト お問い合わせ |
![]() | 8階 | 60.07坪 | 1,291,505円 | 21,500円 | 即時 | 検討リスト お問い合わせ |
![]() | 10階 | 60.07坪 | 1,291,505円 | 21,500円 | 即時 | 検討リスト お問い合わせ |
※月額費用、坪単価 ともに共益費込・税別の価格です
幸伸ビル(豊島区南池袋・都電雑司ヶ谷・東池袋)
- 所在地
- 東京都豊島区南池袋1-19-4
- 最寄り駅
- 池袋駅徒歩2分、都電雑司ヶ谷駅徒歩9分、東池袋駅徒歩10分
- 竣工
- 1980年
- 規模
- 地上9階・地下1階
- セキュリティ
- 機械警備(24時間監視)
- 駐車場設備
- 無
- 設備
- トイレ男女別
幸伸ビルは、巨大ターミナル「池袋駅」からわずか徒歩2分という、南池袋エリア屈指の好立地に建つ賃貸オフィスビルです。
明治通りに面した白タイル張りの外観は清潔感があり、1階に入居するドコモショップが絶好のランドマークとして機能。来客者への案内が非常にスムーズな点は、ビジネス拠点として大きなアドバンテージとなります。
今回募集の複数フロア(計142.61坪)は、1フロア約72坪のまとまった空間を効率的に活用できるプランです。室内は窓面が多く確保されており、明るく開放的な執務環境を実現。OAフロアや個別空調といった基本スペックに加え、室内には男女別トイレと給湯スペースを完備しており、プライバシーに配慮した自社専用の空間作りが可能です。
ビルの並びや周辺には、コメダ珈琲店やスターバックス、ファミリーマートなどの利便施設が密集。ランチや打ち合わせ場所の選択肢に困ることはありません。駅近の利便性を最大限に享受しながら、明治通りの躍動感と共に成長を目指す企業様に最適な、ポテンシャルの高い一棟です。
明治通りに面した白タイル張りの外観は清潔感があり、1階に入居するドコモショップが絶好のランドマークとして機能。来客者への案内が非常にスムーズな点は、ビジネス拠点として大きなアドバンテージとなります。
今回募集の複数フロア(計142.61坪)は、1フロア約72坪のまとまった空間を効率的に活用できるプランです。室内は窓面が多く確保されており、明るく開放的な執務環境を実現。OAフロアや個別空調といった基本スペックに加え、室内には男女別トイレと給湯スペースを完備しており、プライバシーに配慮した自社専用の空間作りが可能です。
ビルの並びや周辺には、コメダ珈琲店やスターバックス、ファミリーマートなどの利便施設が密集。ランチや打ち合わせ場所の選択肢に困ることはありません。駅近の利便性を最大限に享受しながら、明治通りの躍動感と共に成長を目指す企業様に最適な、ポテンシャルの高い一棟です。
幸伸ビル の募集区画 (総募集面積 142.61坪)
※月額費用、坪単価 ともに共益費込・税別の価格です
佐伯池袋ビル(豊島区南池袋・都電雑司ヶ谷・東池袋)
- 所在地
- 東京都豊島区南池袋2-12-1
- 最寄り駅
- 池袋駅徒歩5分、都電雑司ヶ谷駅徒歩5分、東池袋駅徒歩7分
- 竣工
- 1982年
- 規模
- 地上5階
- 駐車場設備
- 要確認
佐伯池袋ビル の募集区画 (総募集面積 21.62坪)
※月額費用、坪単価 ともに共益費込・税別の価格です




























































































