新横浜の賃貸オフィス・貸事務所情報
新横浜エリアは、神奈川県横浜市港北区に位置し、東海道新幹線やJR横浜線、横浜市営地下鉄ブルーライン、相鉄新横浜線、東急新横浜線が乗り入れる「新横浜駅」を中心に広がる地域です。主要施設には「新横浜ラーメン博物館」「日産スタジアム」「横浜アリーナ」「KOSÉ新横浜スケートセンター」などがあり、商業施設やスポーツ施設が充実しています。交通利便性が高く、都内や西日本へのアクセスが良好です。また、オフィス街としても発展しており、再開発が進む地域です。賃貸オフィスを探す企業にとって、利便性と多様な魅力を持つエリアです
検索結果 64 件
明友ビル(横浜市港北区、新横浜、小机)
- 所在地
- 神奈川県横浜市港北区新横浜2-12-2
- 最寄り駅
- 新横浜駅徒歩5分、小机駅徒歩18分
- 竣工
- 1989年
- 規模
- 地上7階・地下1階
- 耐震基準
- 新耐震基準適合
- セキュリティ
- 機械警備(24時間監視)
- 駐車場設備
- 要確認
明友ビル の募集区画 (総募集面積 51.17坪)
※月額費用、坪単価 ともに共益費込・税別の価格です
TPR新横浜ビル(横浜市港北区、新横浜)
- 所在地
- 神奈川県横浜市港北区新横浜2-13-13
- 最寄り駅
- 新横浜駅徒歩5分
- 竣工
- 1993年
- 規模
- 地上8階・地下1階
- 耐震基準
- 新耐震基準適合
- セキュリティ
- 機械警備(24時間監視)
- 駐車場設備
- 有(60台)
- 設備
- リフレッシュコーナー、 喫煙室
TPR新横浜ビル の募集区画 (総募集面積 83.30坪)
※月額費用、坪単価 ともに共益費込・税別の価格です
新横浜UUビル(横浜市港北区、新横浜、小机)
- 所在地
- 神奈川県横浜市港北区新横浜2-5-2
- 最寄り駅
- 新横浜駅徒歩3分、小机駅徒歩22分
- 竣工
- 1990年
- 規模
- 地上9階・地下1階
- 耐震基準
- 新耐震基準適合
- セキュリティ
- 機械警備(24時間監視)
- 駐車場設備
- 要確認
新横浜UUビル の募集区画 (総募集面積 33.37坪)
※月額費用、坪単価 ともに共益費込・税別の価格です
新横浜交通ビル(横浜市港北区、新横浜、北新横浜)
- 所在地
- 神奈川県横浜市港北区新横浜3-18-16
- 最寄り駅
- 新横浜駅徒歩2分、北新横浜駅徒歩15分
- 竣工
- 1983年
- 規模
- 地上7階・地下2階
- 耐震基準
- 新耐震基準適合
- セキュリティ
- 機械警備(24時間監視)
- 駐車場設備
- 有(空車はお問い合わせください)
新横浜交通ビル の募集区画 (総募集面積 99.91坪)
※月額費用、坪単価 ともに共益費込・税別の価格です
LIVMOライジングビル(横浜市港北区、新横浜、菊名)
- 所在地
- 神奈川県横浜市港北区新横浜3-19-1
- 最寄り駅
- 新横浜駅徒歩5分、菊名駅徒歩21分
- 竣工
- 2008年
- 規模
- 地上11階・地下1階
- 耐震基準
- 新耐震基準適合
- セキュリティ
- 機械警備(24時間監視)
- 駐車場設備
- 要確認
LIVMOライジングビル の募集区画 (総募集面積 609.67坪)
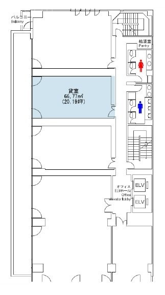
| 図面 | 階数 | 坪数 | 月額費用 | 坪単価 | 入居可能日 | |
|---|---|---|---|---|---|---|
![]() | 6階 | 203.22坪 | お問い合わせください | 2026/5/1 | 検討リスト お問い合わせ | |
![]() | 9階 | 203.22坪 | お問い合わせください | 2026/5/1 | 検討リスト お問い合わせ | |
![]() | 11階 | 203.23坪 | お問い合わせください | 2026/5/1 | 検討リスト お問い合わせ |
※月額費用、坪単価 ともに共益費込・税別の価格です
新横浜千歳観光ビル(横浜市港北区、新横浜)
- 所在地
- 神奈川県横浜市港北区新横浜3-6-4
- 最寄り駅
- 新横浜駅徒歩1分
- 竣工
- 1988年
- 規模
- 地上9階
- 耐震基準
- 新耐震基準適合
- セキュリティ
- 機械警備・有人管理(24時間体制)
- 駐車場設備
- 要確認
新横浜千歳観光ビル の募集区画 (総募集面積 65.51坪)
※月額費用、坪単価 ともに共益費込・税別の価格です
新横浜サンセイビル(横浜市港北区、新横浜)
- 所在地
- 神奈川県横浜市港北区新横浜2-3-24
- 最寄り駅
- 新横浜駅徒歩5分
- 竣工
- 1987年
- 規模
- 地上9階・地下1階
- 耐震基準
- 新耐震基準適合
- セキュリティ
- 機械警備(24時間監視)
- 駐車場設備
- 要確認
新横浜サンセイビル の募集区画 (総募集面積 36.63坪)
※月額費用、坪単価 ともに共益費込・税別の価格です
WISE NEXT新横浜(横浜市港北区、新横浜、北新横浜、菊名)
- 所在地
- 神奈川県横浜市港北区新横浜2-5-14
- 最寄り駅
- 新横浜駅徒歩1分、北新横浜駅徒歩15分、菊名駅徒歩20分
- 竣工
- 1987年
- 規模
- 地上9階・地下1階
- 耐震基準
- 新耐震基準適合
- セキュリティ
- 機械警備・有人管理(24時間体制)
- 駐車場設備
- 有
WISE NEXT新横浜 の募集区画 (総募集面積 162.91坪)
※月額費用、坪単価 ともに共益費込・税別の価格です
新横浜ステーションビル(横浜市港北区、新横浜、北新横浜)
- 所在地
- 神奈川県横浜市港北区新横浜2-6-13
- 最寄り駅
- 新横浜駅徒歩3分、北新横浜駅徒歩15分
- 竣工
- 1987年
- 規模
- 地上10階・地下1階
- 耐震基準
- 新耐震基準適合
- セキュリティ
- 機械警備(24時間監視)
- 駐車場設備
- 有
新横浜ステーションビル の募集区画 (総募集面積 31.60坪)
※月額費用、坪単価 ともに共益費込・税別の価格です
新横浜第一生命ビル(横浜市港北区、新横浜、菊名、北新横浜)
- 所在地
- 神奈川県横浜市港北区新横浜3-6-5
- 最寄り駅
- 新横浜駅徒歩1分、菊名駅徒歩18分、北新横浜駅徒歩19分
- 竣工
- 1986年
- 規模
- 地上9階・地下1階
- 耐震基準
- 新耐震基準適合
- セキュリティ
- 機械警備(24時間監視)
- 駐車場設備
- 有(60台)
新横浜第一生命ビル の募集区画 (総募集面積 120.94坪)
| 図面 | 階数 | 坪数 | 月額費用 | 坪単価 | 入居可能日 | |
|---|---|---|---|---|---|---|
準備中 | 9階 | 50.85坪 | お問い合わせください | 即時 | 検討リスト お問い合わせ | |
準備中 | 6階 | 19.24坪 | お問い合わせください | 2026/5/6 | 検討リスト お問い合わせ | |
![]() | 5階 | 50.85坪 | お問い合わせください | 2026/5/1 | 検討リスト お問い合わせ |
※月額費用、坪単価 ともに共益費込・税別の価格です
パシフィックマークス新横浜ビル(横浜市港北区、新横浜、北新横浜、菊名)
- 所在地
- 神奈川県横浜市港北区新横浜3-18-20
- 最寄り駅
- 新横浜駅徒歩1分、北新横浜駅徒歩16分、菊名駅徒歩20分
- 竣工
- 1991年
- 規模
- 地上10階・地下1階
- 耐震基準
- 新耐震基準適合
- セキュリティ
- 機械警備・有人管理(24時間体制)
- 駐車場設備
- 要確認
パシフィックマークス新横浜ビル の募集区画 (総募集面積 135.79坪)
※月額費用、坪単価 ともに共益費込・税別の価格です
クレシェンドビル(横浜市港北区、新横浜、菊名)
- 所在地
- 神奈川県横浜市港北区新横浜2-3-4
- 最寄り駅
- 新横浜駅徒歩3分、菊名駅徒歩10分
- 竣工
- 1987年
- 規模
- 地上9階・地下1階
- 耐震基準
- 新耐震基準適合
- セキュリティ
- 機械警備(24時間監視)
- 駐車場設備
- 要確認
クレシェンドビル の募集区画 (総募集面積 49.64坪)
※月額費用、坪単価 ともに共益費込・税別の価格です
メットライフ新横浜ビル(横浜市港北区、新横浜)
- 所在地
- 神奈川県横浜市港北区新横浜3-8-11
- 最寄り駅
- 新横浜駅徒歩3分
- 竣工
- 1988年
- 規模
- 地上10階・地下1階
- 耐震基準
- 新耐震基準適合
- セキュリティ
- 機械警備(24時間監視)
- 駐車場設備
- 有(機械式立体駐車場)
- 設備
- 24時間(要ICカード)
メットライフ新横浜ビル の募集区画 (総募集面積 171.98坪)
| 図面 | 階数 | 坪数 | 月額費用 | 坪単価 | 入居可能日 | |
|---|---|---|---|---|---|---|
![]() | 5階 | 19.99坪 | お問い合わせください | 2026/1/19 | 検討リスト お問い合わせ | |
![]() | 4階 | 26.29坪 | お問い合わせください | 即時 | 検討リスト お問い合わせ | |
![]() | 7階 | 39.98坪 | お問い合わせください | 2026/4/1 | 検討リスト お問い合わせ | |
![]() | 4階 | 85.72坪 | お問い合わせください | 即時 | 検討リスト お問い合わせ |
※月額費用、坪単価 ともに共益費込・税別の価格です
tanosio shin-yokohama(タノシオ新横浜)(横浜市港北区、新横浜)
- 所在地
- 神奈川県横浜市港北区新横浜2-5-16
- 最寄り駅
- 新横浜駅徒歩2分
- 竣工
- 1998年
- 規模
- 地上9階・地下3階
- 耐震基準
- 新耐震基準適合
- 駐車場設備
- 要確認
tanosio shin-yokohama(タノシオ新横浜) の募集区画 (総募集面積 652.04坪)
| 図面 | 階数 | 坪数 | 月額費用 | 坪単価 | 入居可能日 | |
|---|---|---|---|---|---|---|
![]() | 8階 | 142.64坪 | お問い合わせください | 即時 | 検討リスト お問い合わせ | |
![]() | 1階 | 103.19坪 | お問い合わせください | 即時 | 検討リスト お問い合わせ | |
![]() | 9階 | 120.93坪 | お問い合わせください | 即時 | 検討リスト お問い合わせ | |
![]() | 7階 | 142.64坪 | お問い合わせください | 即時 | 検討リスト お問い合わせ | |
![]() | 6階 | 142.64坪 | お問い合わせください | 相談 | 検討リスト お問い合わせ |
※月額費用、坪単価 ともに共益費込・税別の価格です
ベネックスSー3(横浜市港北区、新横浜、菊名)
- 所在地
- 神奈川県横浜市港北区新横浜3-20-8
- 最寄り駅
- 新横浜駅徒歩5分、菊名駅徒歩20分
- 竣工
- 1994年
- 規模
- 地上12階・地下1階
- 耐震基準
- 新耐震基準適合
- セキュリティ
- 機械警備(24時間監視)
- 駐車場設備
- 要確認
ベネックスSー3 の募集区画 (総募集面積 200.41坪)
※月額費用、坪単価 ともに共益費込・税別の価格です
日本生命新横浜ビル(横浜市港北区、新横浜、北新横浜、菊名)
- 所在地
- 神奈川県横浜市港北区新横浜2-4-1
- 最寄り駅
- 新横浜駅徒歩1分、北新横浜駅徒歩18分、菊名駅徒歩22分
- 竣工
- 1993年
- 規模
- 地上10階・地下1階
- 耐震基準
- 新耐震基準適合
- 駐車場設備
- 有(機械式17台)
日本生命新横浜ビル の募集区画 (総募集面積 26.75坪)
※月額費用、坪単価 ともに共益費込・税別の価格です
いちご新横浜ビル(横浜市港北区、新横浜、菊名)
- 所在地
- 神奈川県横浜市港北区新横浜3-17-5
- 最寄り駅
- 新横浜駅徒歩4分、菊名駅徒歩20分
- 竣工
- 1992年
- 規模
- 地上9階・地下2階
- 耐震基準
- 新耐震基準適合
- セキュリティ
- 機械警備(24時間監視)
- 駐車場設備
- 要確認
いちご新横浜ビル の募集区画 (総募集面積 291.92坪)
| 図面 | 階数 | 坪数 | 月額費用 | 坪単価 | 入居可能日 | |
|---|---|---|---|---|---|---|
![]() | 6階 | 76.31坪 | お問い合わせください | 2026/2 | 検討リスト お問い合わせ | |
![]() | 7階 | 145.96坪 | お問い合わせください | 2026/2 | 検討リスト お問い合わせ | |
![]() | 6階 | 69.65坪 | お問い合わせください | 即時 | 検討リスト お問い合わせ |
※月額費用、坪単価 ともに共益費込・税別の価格です
新横浜ICビル(横浜市港北区、新横浜、菊名)
- 所在地
- 神奈川県横浜市港北区新横浜3-18-9
- 最寄り駅
- 新横浜駅徒歩3分、菊名駅徒歩20分
- 竣工
- 1988年
- 規模
- 地上9階・地下1階
- 耐震基準
- 新耐震基準適合
- セキュリティ
- 機械警備(24時間監視)
- 駐車場設備
- 要確認
新横浜ICビル の募集区画 (総募集面積 95.08坪)
| 図面 | 階数 | 坪数 | 月額費用 | 坪単価 | 入居可能日 | |
|---|---|---|---|---|---|---|
![]() | 1階 | 13.38坪 | 220,770円 | 16,500円 | 2025/12/1 | 検討リスト お問い合わせ |
![]() | 6階 | 39.96坪 | お問い合わせください | 即時 | 検討リスト お問い合わせ | |
![]() | 9階 | 41.74坪 | お問い合わせください | 2025/12/1 | 検討リスト お問い合わせ |
※月額費用、坪単価 ともに共益費込・税別の価格です
新横浜第二センタービル(横浜市港北区、新横浜、北新横浜、菊名)
- 所在地
- 神奈川県横浜市港北区新横浜3-19-5
- 最寄り駅
- 新横浜駅徒歩3分、北新横浜駅徒歩13分、菊名駅徒歩18分
- 竣工
- 1991年
- 規模
- 地上12階・地下2階
- 耐震基準
- 新耐震基準適合
- セキュリティ
- 機械警備(24時間監視)
- 駐車場設備
- 要確認
新横浜第二センタービル の募集区画 (総募集面積 48.93坪)
※月額費用、坪単価 ともに共益費込・税別の価格です
新横浜KSビル(横浜市港北区、新横浜、菊名、小机)
- 所在地
- 神奈川県横浜市港北区新横浜3-18-3
- 最寄り駅
- 新横浜駅徒歩3分、菊名駅徒歩21分、小机駅徒歩26分
- 竣工
- 1991年
- 規模
- 地上9階・地下1階
- 耐震基準
- 新耐震基準適合
- セキュリティ
- 機械警備(24時間監視)
- 駐車場設備
- 要確認
新横浜KSビル の募集区画 (総募集面積 28.34坪)
※月額費用、坪単価 ともに共益費込・税別の価格です
新横浜SRビル(横浜市港北区、新横浜、菊名)
- 所在地
- 神奈川県横浜市港北区新横浜3-6-1
- 最寄り駅
- 新横浜駅徒歩1分、菊名駅徒歩17分
- 竣工
- 1989年
- 規模
- 地上9階・地下1階
- 耐震基準
- 新耐震基準適合
- セキュリティ
- 機械警備(24時間監視)
- 駐車場設備
- 要確認
新横浜SRビル の募集区画 (総募集面積 22.07坪)
※月額費用、坪単価 ともに共益費込・税別の価格です
新横浜アリーナ通りビル(横浜市港北区、新横浜、菊名)
- 所在地
- 神奈川県横浜市港北区新横浜3-7-7
- 最寄り駅
- 新横浜駅徒歩2分、菊名駅徒歩15分
- 竣工
- 2001年
- 規模
- 地上6階
- 耐震基準
- 新耐震基準適合
- セキュリティ
- 機械警備(24時間監視)
- 駐車場設備
- 要確認
新横浜アリーナ通りビル の募集区画 (総募集面積 24.09坪)
※月額費用、坪単価 ともに共益費込・税別の価格です
アーバンセンター新横浜(横浜市港北区、新横浜、小机)
- 所在地
- 神奈川県横浜市港北区新横浜2-2-8
- 最寄り駅
- 新横浜駅徒歩5分、小机駅徒歩21分
- 竣工
- 1992年
- 規模
- 地上11階・地下1階
- 耐震基準
- 新耐震基準適合
- セキュリティ
- 機械警備・有人管理(24時間体制)
- 駐車場設備
- 要確認
アーバンセンター新横浜 の募集区画 (総募集面積 158.81坪)
※月額費用、坪単価 ともに共益費込・税別の価格です
新横浜SHビル(横浜市港北区、新横浜)
- 所在地
- 神奈川県横浜市港北区新横浜3-9-3
- 最寄り駅
- 新横浜駅徒歩7分
- 竣工
- 2009年
- 規模
- 地上11階・地下2階
- 耐震基準
- 新耐震基準適合
- セキュリティ
- 機械警備(24時間監視)
- 駐車場設備
- 有
新横浜SHビル の募集区画 (総募集面積 693.10坪)
| 図面 | 階数 | 坪数 | 月額費用 | 坪単価 | 入居可能日 | |
|---|---|---|---|---|---|---|
![]() | 3階 | 138.62坪 | お問い合わせください | 即時 | 検討リスト お問い合わせ | |
![]() | 4階 | 138.62坪 | お問い合わせください | 即時 | 検討リスト お問い合わせ | |
![]() | 5階 | 138.62坪 | お問い合わせください | 即時 | 検討リスト お問い合わせ | |
![]() | 7階 | 138.62坪 | お問い合わせください | 即時 | 検討リスト お問い合わせ | |
![]() | 8階 | 138.62坪 | お問い合わせください | 即時 | 検討リスト お問い合わせ |
※月額費用、坪単価 ともに共益費込・税別の価格です
スイテ新横浜(横浜市港北区、新横浜)
- 所在地
- 神奈川県横浜市港北区新横浜3-7-8
- 最寄り駅
- 新横浜駅徒歩5分
- 竣工
- 2025年
- 規模
- 地上14階・地下1階
- 耐震基準
- 新耐震基準適合
- セキュリティ
- 機械警備(24時間監視)
- 駐車場設備
- 要確認
スイテ新横浜 の募集区画 (総募集面積 469.62坪)
| 図面 | 階数 | 坪数 | 月額費用 | 坪単価 | 入居可能日 | |
|---|---|---|---|---|---|---|
![]() | 10階 | 78.38坪 | お問い合わせください | 即時 | 検討リスト お問い合わせ | |
![]() | 3階 | 195.62坪 | お問い合わせください | 即時 | 検討リスト お問い合わせ | |
![]() | 4階 | 195.62坪 | お問い合わせください | 即時 | 検討リスト お問い合わせ |
※月額費用、坪単価 ともに共益費込・税別の価格です
新横浜駅周辺は、新幹線やJR、地下鉄が乗り入れる交通の要所であり、広域アクセスに優れたビジネスエリアです。近年は、オフィスビルの開発が進み、新しいオフィス環境が整備されています。駅周辺には、商業施設やホテル、飲食店も充実しており、利便性が高いのが魅力です。また、横浜アリーナや日産スタジアムなどのイベント施設も近く、活気あふれる雰囲気の中で働くことができます。
















































































































































































































































































































































