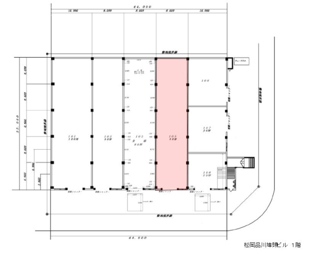
松岡品川埠頭ビル 1階 80.00坪(港区、港南、天王洲アイル、品川)
JR品川駅から都営バス利用で「東京出入国在留管理局前」下車徒歩1分、延床面積約2,929㎡を誇る2階建てのオフィス・倉庫ビルです。鉄骨造の堅牢な造りに加え、室内には個別空調や光ケーブル、ウォシュレット完備の男女別トイレなど、快適な執務環境が整っています。敷地内に駐車場を完備し、事務所と倉庫を一体運用できるため、物流や配送拠点としての機能性を追求する企業に適しています。
募集終了
| 種別(用途) | 倉庫 |
|---|---|
| 階数 | 1階 |
| 部屋番号 | 1F |
| 面積 | 80.00坪 |
| 契約形態・期間 | 普通借家 2年 |
| 空調方式 | なし |
| 床仕様 | スケルトン |
| 天井高 | 5,500mm |
| フロア特徴 | トイレ男女別、 基準階100坪以上の分割区画 |
※月額費用、坪単価ともに税別の価格です
松岡品川埠頭ビル 1階 は現在募集がありません。
この物件の最新状況のご確認は、下記の問合せフォームをご利用ください。
この物件の最新状況のご確認は、下記の問合せフォームをご利用ください。
松岡品川埠頭ビル の情報
- 所在地
- 東京都港区港南5-4-38
- 最寄り駅
- 天王洲アイル駅徒歩14分、品川駅徒歩20分
- 竣工
- 1969年
- 規模
- 地上2階
- 構造
- S造(鉄骨造)
- セキュリティ
- 共用部警備なし(簡易管理)
- エントランス
- 平日開放
- エレベーター総数
- 0基
- 駐車場設備
- 有(平面駐車場)
賃料相場
40件のデータ
松岡品川埠頭ビル の募集区画 (総募集面積 40.00坪)
※月額費用、坪単価 ともに共益費込・税別の価格です
松岡品川埠頭ビル の内装イメージ
2階建てという構造を活かし、事務所機能と倉庫機能を効率よく配置することが可能です。光ケーブルや個別空調、ウォシュレット付きの男女別トイレなど、近年のオフィスに求められる基本スペックを網羅しています。延床面積約886坪のスケールを活かした、大規模な機材保管や配送拠点、あるいは広い執務スペースの確保に対応します。







松岡品川埠頭ビル の募集終了区画
| 図面 | 階数 | 坪数 | 月額費用 | 坪単価 | 入居可能日 | |
|---|---|---|---|---|---|---|
![]() | 1階 | 100.90坪 | お問い合わせください | 募集終了 | 検討リスト | |
![]() | 1階 | 29.00坪 | お問い合わせください | 募集終了 | 検討リスト | |
![]() | 1階 | 36.00坪 | お問い合わせください | 募集終了 | 検討リスト | |
![]() | 1階 | 80.00坪 | お問い合わせください | 募集終了 | 検討リスト | |
![]() | 2階 | 27.00坪 | お問い合わせください | 募集終了 | 検討リスト | |
![]() | 2階 | 43.00坪 | お問い合わせください | 募集終了 | 検討リスト | |
![]() | 2階 | 39.00坪 | お問い合わせください | 募集終了 | 検討リスト | |
![]() | 2階 | 27.10坪 | お問い合わせください | 募集終了 | 検討リスト | |
![]() | 2階 | 20.00坪 | お問い合わせください | 募集終了 | 検討リスト | |
![]() | 2階 | 20.00坪 | お問い合わせください | 募集終了 | 検討リスト | |
![]() | 2階 | 24.00坪 | お問い合わせください | 募集終了 | 検討リスト | |
![]() | 2階 | 39.50坪 | お問い合わせください | 募集終了 | 検討リスト | |
![]() | 2階 | 16.00坪 | お問い合わせください | 募集終了 | 検討リスト | |
![]() | 2階 | 13.00坪 | お問い合わせください | 募集終了 | 検討リスト | |
![]() | 2階 | 17.00坪 | お問い合わせください | 募集終了 | 検討リスト | |
![]() | 2階 | 31.94坪 | お問い合わせください | 募集終了 | 検討リスト |
近くの物件紹介
港区のエリア
近くの駅
| 取扱態様 | 仲介 |
|---|---|
| 取扱会社 | 株式会社アドマイアー 東京都中央区日本橋3-2-3ユニバース第1ビル2F TEL. 03-5204-1031 宅地建物取引業免許 東京都知事(3)第94663号 マンション管理業免許 国土交通大臣(2)第034224号 賃貸住宅管理業免許 国土交通大臣(01)第005938号 |


































