茗荷谷駅の賃貸オフィス・貸事務所情報
東京メトロ丸ノ内線「茗荷谷駅」。お茶の水女子大学をはじめとする多くの教育機関が集まる文教地区であり、播磨坂の桜並木など豊かな緑に包まれた品格あるエリアです。都心への軽快なアクセスと、知的好奇心を刺激する静穏な環境が融合。企業の信頼性を高め、質の高い業務を追求したい法人にふさわしい拠点です。
検索結果 18 件
ラ・トゥール小石川(文京区大塚・茗荷谷・護国寺・白山)
- 所在地
- 東京都文京区大塚3-1-6
- 最寄り駅
- 茗荷谷駅徒歩1分、護国寺駅徒歩13分、白山駅徒歩24分
- 竣工
- 1991年
- 規模
- 地上6階・地下1階
- 耐震基準
- 新耐震基準適合
- 駐車場設備
- 要確認
ラ・トゥール小石川 の募集区画 (総募集面積 16.80坪)
※月額費用、坪単価 ともに共益費込・税別の価格です
林野会館(文京区大塚・茗荷谷・新大塚)
- 所在地
- 東京都文京区大塚3-28-7
- 最寄り駅
- 茗荷谷駅徒歩11分、新大塚駅徒歩10分
- 竣工
- 1977年
- 規模
- 地上9階・地下1階
- 駐車場設備
- 要確認
林野会館 の募集区画 (総募集面積 85.32坪)
※月額費用、坪単価 ともに共益費込・税別の価格です
MBS音羽ビル(文京区音羽・護国寺・江戸川橋・茗荷谷)
- 所在地
- 東京都文京区音羽1-20-14
- 最寄り駅
- 護国寺駅徒歩5分、江戸川橋駅徒歩7分、茗荷谷駅徒歩8分
- 竣工
- 1989年
- 規模
- 地上9階
- 耐震基準
- 新耐震基準適合
- セキュリティ
- 機械警備(24時間監視)
- 駐車場設備
- 無
- 設備
- トイレ男女別
1989年竣工の新耐震基準適合物件で、通り沿いでも目を引くガラス張りの外観は、企業の洗練されたイメージを対外的にアピールします。最大の魅力は、20坪前後のコンパクトなサイズ感ながら「1フロア1テナント」を実現している点。他テナントの干渉を受けず、機密性と独立性を重視する企業様に最適な環境です。
募集中の6階(21.17坪)は、正方形に近い形状で室内に柱がないため、デスク配置の自由度が非常に高いのが特徴です。個別空調により快適な室温管理ができるほか、給湯スペースを室内に、トイレを室外のエレベーターホールに配置することで、執務スペースを最大限に有効活用できる設計となっています。
周辺環境も抜群で、道路を挟んで向かいには郵便局、徒歩1分にはコンビニがあり、日々の業務効率を支えます。護国寺駅・江戸川橋駅の2駅が利用でき、池袋や飯田橋へのアクセスもスムーズ。仲介手数料無料で、都心近傍のスマートな拠点開設を実現します。
MBS音羽ビル の募集区画 (総募集面積 42.34坪)
| 図面 | 階数 | 坪数 | 月額費用 | 坪単価 | 入居可能日 | |
|---|---|---|---|---|---|---|
![]() | 5階 | 21.17坪 | 231,000円 | 10,912円 | 2026/6/中 | 検討リスト お問い合わせ |
![]() | 6階 | 21.17坪 | 229,500円 | 10,841円 | 2026/7/中 | 検討リスト お問い合わせ |
※月額費用、坪単価 ともに共益費込・税別の価格です
PAL音羽ビル(文京区音羽・護国寺・江戸川橋・茗荷谷)
- 所在地
- 東京都文京区音羽1-20-16
- 最寄り駅
- 護国寺駅徒歩4分、江戸川橋駅徒歩7分、茗荷谷駅徒歩15分
- 竣工
- 1986年
- 規模
- 地上8階
- 耐震基準
- 新耐震基準適合
- セキュリティ
- 機械警備(24時間監視)
- 駐車場設備
- 無
- 設備
- 24時間(要ICカード)
PAL音羽ビル の募集区画 (総募集面積 22.46坪)
※月額費用、坪単価 ともに共益費込・税別の価格です
日本生命音羽ビル(文京区音羽・護国寺・新大塚・茗荷谷)
- 所在地
- 東京都文京区音羽2-10-2
- 最寄り駅
- 護国寺駅徒歩1分、新大塚駅徒歩10分、茗荷谷駅徒歩10分
- 竣工
- 1989年
- 規模
- 地上9階・地下1階
- 耐震基準
- 新耐震基準適合
- セキュリティ
- 機械警備・有人管理(24時間体制)
- 駐車場設備
- 有(平面式2台・機械式26台)
- 設備
- 省エネ・環境配慮
日本生命音羽ビル の募集区画 (総募集面積 80.42坪)
| 図面 | 階数 | 坪数 | 月額費用 | 坪単価 | 入居可能日 | |
|---|---|---|---|---|---|---|
![]() | 3階 | 80.42坪 | 賃料を確認する (無料・1分) | 2026/5 | 検討リスト お問い合わせ |
※月額費用、坪単価 ともに共益費込・税別の価格です
第18シグマビルディング小石川(文京区小石川・茗荷谷・江戸川橋・後楽園)
- 所在地
- 東京都文京区小石川4-20-4
- 最寄り駅
- 茗荷谷駅徒歩7分、江戸川橋駅徒歩16分、後楽園駅徒歩18分
- 竣工
- 1996年
- 規模
- 地上10階
- 耐震基準
- 新耐震基準適合
- 駐車場設備
- 要確認
第18シグマビルディング小石川 の募集区画 (総募集面積 8.48坪)
※月額費用、坪単価 ともに共益費込・税別の価格です
三共小石川THビル(文京区小石川・茗荷谷・白山・本駒込)
- 所在地
- 東京都文京区小石川5-36-5
- 最寄り駅
- 茗荷谷駅徒歩6分、白山駅徒歩16分、本駒込駅徒歩23分
- 竣工
- 1994年
- 規模
- 地上7階・地下1階
- 耐震基準
- 新耐震基準適合
- セキュリティ
- 機械警備(24時間監視)
- 駐車場設備
- 有(機械式30台)
- 設備
- 非接触ICカード
三共小石川THビル の募集区画 (総募集面積 161.98坪)
| 図面 | 階数 | 坪数 | 月額費用 | 坪単価 | 入居可能日 | |
|---|---|---|---|---|---|---|
![]() | B1階 | 53.40坪 | 賃料を確認する (無料・1分) | 即時 | 検討リスト お問い合わせ | |
![]() | 2階 | 108.58坪 | 賃料を確認する (無料・1分) | 2026/10/1 | 検討リスト お問い合わせ |
※月額費用、坪単価 ともに共益費込・税別の価格です
共同印刷株式会社本社ビル(文京区小石川・茗荷谷・白山・春日)
- 所在地
- 東京都文京区小石川4-14-12
- 最寄り駅
- 茗荷谷駅徒歩12分、白山駅徒歩12分、春日駅徒歩7分
- 竣工
- 2022年
- 規模
- 地上7階
- 耐震基準
- 新耐震基準適合・免震構造
- セキュリティ
- 機械警備・有人管理(24時間体制)
- 駐車場設備
- 有(収容台数68台)
- 設備
- セキュリティゲート(フラッパーゲート)
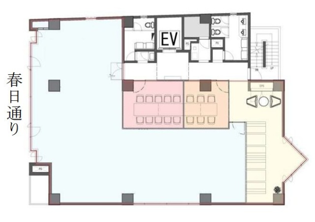
ビルに一歩足を踏み入れると、高い天井を誇る洗練されたエントランスホールとホワイエが来客を迎え、企業の品格を雄弁に物語ります。セキュリティ面では有人管理とフラッパーゲートを組み合わせ、来賓専用のエレベーターホールを備えるなど、トップクラスの安全とホスピタリティを提供します。
募集中の3階(330坪)および2階(470坪)は、1フロアで数百坪を確保できる広大な空間。天井高2,900mmの開放的な室内は、最新の個別空調やOAフロアを備え、クリエイティブなオフィスレイアウトを自由自在に描けます。基幹産業を支える企業の本社ビルならではの、盤石なスペックと安らぎの景観。文京区で圧倒的な存在感を放つ、最高峰のビジネス拠点です。
共同印刷株式会社本社ビル の募集区画 (総募集面積 800.00坪)
| 図面 | 階数 | 坪数 | 月額費用 | 坪単価 | 入居可能日 | |
|---|---|---|---|---|---|---|
![]() | 3階 | 330.00坪 | 7,260,000円 | 22,000円 | 相談 契約締結より6ヶ月後 | 検討リスト お問い合わせ |
![]() | 2階 | 470.00坪 | 10,340,000円 | 22,000円 | 相談 契約締結より6ヶ月後 | 検討リスト お問い合わせ |
※月額費用、坪単価 ともに共益費込・税別の価格です
小石川さくらビル(文京区小石川・茗荷谷)
- 所在地
- 東京都文京区小石川5-10-5
- 最寄り駅
- 茗荷谷駅徒歩5分
- 竣工
- 1997年
- 規模
- 地上4階・地下1階
- 耐震基準
- 新耐震基準適合
- セキュリティ
- 機械警備(24時間監視)
- 駐車場設備
- 有
- 設備
- トイレ男女別
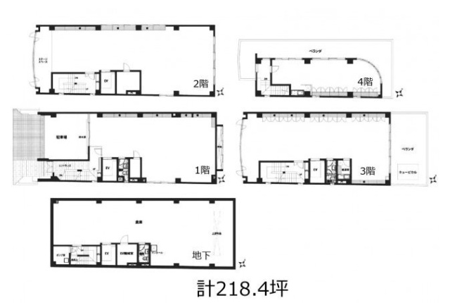
丸ノ内線「茗荷谷駅」から徒歩5分、竹早公園にほど近い閑静な住宅街に位置しており、静穏な環境で業務に集中したい企業様や、プライバシーを重視する本社ビルをお探しの法人様に最適な選択肢となります。
1997年竣工の本物件は、オートロックによる強固なセキュリティに加え、電動シャッター付きの駐車場(2台収容)を備えており、役員車両の入出庫もスムーズかつ安全です。延床面積は約218坪と、組織の各機能をフロアごとに集約できる程よいスケール感。室内には木目調の装飾が施され、落ち着きと高級感を醸し出しています。
設備面も充実しており、各階個別空調や男女別トイレはもちろん、地下には広々とした倉庫スペースを確保。さらに開放感のあるベランダも利用可能です。周辺にはコンビニやドラッグストアが至近にあり、駅周辺の利便性を享受しつつ、格調高い一棟拠点を構築できます。仲介手数料無料で、企業の新たなステージに相応しい理想的なワークプレイスをご提供します。
小石川さくらビル の募集区画 (総募集面積 218.48坪)
※月額費用、坪単価 ともに共益費込・税別の価格です
ACN小石川スクエア(旧 プライム小石川ビル)(文京区小日向・茗荷谷・後楽園・江戸川橋)
- 所在地
- 東京都文京区小日向4-2-6
- 最寄り駅
- 茗荷谷駅徒歩5分、後楽園駅徒歩6分、江戸川橋駅徒歩15分
- 竣工
- 1991年
- 規模
- 地上9階・地下2階
- 耐震基準
- 新耐震基準適合
- セキュリティ
- 機械警備(24時間監視)
- 駐車場設備
- 有
- 設備
- リニューアル済み、 トイレ男女別
ACN小石川スクエア(旧 プライム小石川ビル) の募集区画 (総募集面積 142.12坪)
| 図面 | 階数 | 坪数 | 月額費用 | 坪単価 | 入居可能日 | |
|---|---|---|---|---|---|---|
![]() | 6階 | 71.06坪 | 賃料を確認する (無料・1分) | 即時 | 検討リスト お問い合わせ | |
![]() | 5階 | 71.06坪 | 賃料を確認する (無料・1分) | 2026/6/1 | 検討リスト お問い合わせ |
※月額費用、坪単価 ともに共益費込・税別の価格です
新荒井ビル(文京区関口・江戸川橋・早稲田・茗荷谷)
- 所在地
- 東京都文京区関口1-44-4
- 最寄り駅
- 江戸川橋駅徒歩4分、早稲田駅徒歩12分、茗荷谷駅徒歩20分
- 竣工
- 1988年
- 規模
- 地上8階
- 耐震基準
- 新耐震基準適合
- セキュリティ
- 機械警備(24時間監視)
- 駐車場設備
- 要確認
- 設備
- トイレ男女別
新荒井ビル の募集区画 (総募集面積 90.03坪)
※月額費用、坪単価 ともに共益費込・税別の価格です
白山麻の実ビル(文京区白山・本駒込・茗荷谷)
- 所在地
- 東京都文京区白山5-36-9
- 最寄り駅
- 白山駅徒歩1分、本駒込駅徒歩6分、茗荷谷駅徒歩20分
- 竣工
- 1993年
- 規模
- 地上10階
- 耐震基準
- 新耐震基準適合
- セキュリティ
- 機械警備(24時間監視)
- 駐車場設備
- 有(21台収容・機械式)
- 設備
- リニューアル済み、 トイレ男女別
白山麻の実ビル の募集区画 (総募集面積 46.41坪)
※月額費用、坪単価 ともに共益費込・税別の価格です
K・Bビル(文京区目白台・護国寺・都電雑司ヶ谷・茗荷谷)
- 所在地
- 東京都文京区目白台2-13-2
- 最寄り駅
- 護国寺駅徒歩6分、都電雑司ヶ谷駅徒歩13分、茗荷谷駅徒歩18分
- 竣工
- 1991年
- 規模
- 地上6階・地下1階
- 耐震基準
- 新耐震基準適合
- セキュリティ
- 機械警備(24時間監視)
- 駐車場設備
- 無
K・Bビル の募集区画 (総募集面積 34.47坪)
※月額費用、坪単価 ともに共益費込・税別の価格です
【エリアのオフィス市況】
文教地区らしい落ち着いた街並みに合わせ、管理の行き届いた清潔感のある中小型ビルが豊富なマーケットです。賃料は安定しており、出版、教育関連、コンサルティング、士業など、知的な作業を主とする職種に最適。過度な商業化が進んでいないため、プライバシーを重視する企業にとっても隠れ家的な価値を持ち、落ち着いて長期的に事業を育める投資対効果の高い環境が整っています。
【交通アクセスと採用メリット】
大手町まで約10分、池袋まで約5分。都心の主要ビジネス街へ最短時間で届くフットワークを誇ります。駅周辺には洗練されたベーカリーやカフェが多く、ランチ環境は非常に充実。良好な治安と美しい景観は、働く人々に安心感と誇りを与えます。この「品格ある環境」は、感度の高い専門職や、ワークライフバランスを重視する優秀な人材を惹きつける強力なフックとなり、採用競争力を大きく高めます。



















































































































































