新宿サンエービル 1階【西】 55.10坪(新宿区、西新宿、都庁前、新宿)
| 賃料 | - 最新の募集条件を問い合わせる |
|---|---|
| 所在地 | 東京都新宿区西新宿 |
| 入居可能日 | - |
| 最寄り駅 | 都庁前駅徒歩4分、新宿駅徒歩5分 |
募集終了
| 種別(用途) | 事務所 |
|---|---|
| 階数 | 1階 |
| 部屋番号 | 西 |
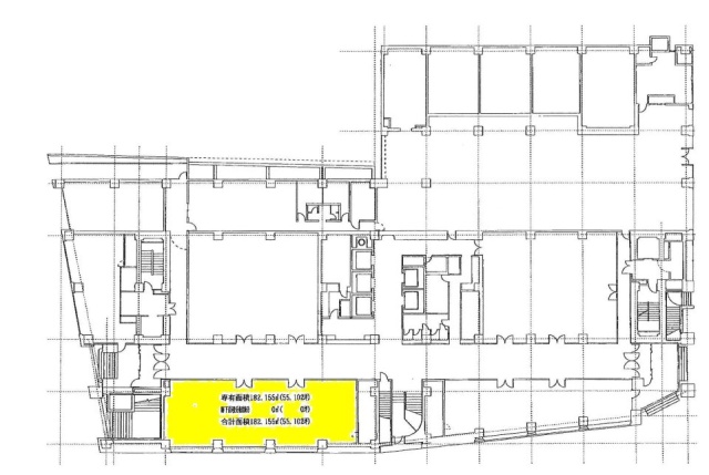
| 面積 | 55.10坪 |
| 契約形態・期間 | 普通借家 |
| 空調方式 | セントラル空調 |
| 床仕様 | 要確認 |
| 天井高 | 4,200mm |
| フロア特徴 | トイレ男女別、 基準階100坪以上の分割区画 |
※月額費用、坪単価ともに税別の価格です
新宿サンエービル 1階【西】 は現在募集がありません。
この物件の最新状況のご確認は、下記の問合せフォームをご利用ください。
この物件の最新状況のご確認は、下記の問合せフォームをご利用ください。
新宿サンエービル の情報
- 所在地
- 東京都新宿区西新宿1-22-2
- 最寄り駅
- 都庁前駅徒歩4分、新宿駅徒歩5分、新宿西口駅徒歩6分
- 竣工
- 1979年
- 規模
- 地上15階・地下1階
- 構造
- S造(鉄骨造)
- セキュリティ
- 機械警備・有人管理(24時間体制)
- エントランス
- 平日開放
- エレベーター総数
- 5基
- 駐車場設備
- 要確認
新宿サンエービル の募集区画 (総募集面積 0.00坪)
現在募集はありません。
新宿サンエービル の内装イメージ
貸室内はOAフロア仕様で、レイアウトの自由度が高く、タイルカーペット敷きで快適な執務環境を実現。天井高も十分で、開放感があります。各フロアには男女別トイレを完備し、清潔感が保たれています。セキュリティ面では機械警備と有人警備を併用し、安心して業務に集中できる環境を提供。エレベーターは5基設置されており、混雑時もスムーズな移動が可能です。さらに、会議室やイベントスペースも充実し、多様なビジネスシーンに対応します。
新宿サンエービル の募集終了区画
| 図面 | 階数 | 坪数 | 月額費用 | 坪単価 | 入居可能日 | |
|---|---|---|---|---|---|---|
![]() | B1階 | 39.05坪 | - | - | 募集終了 | 検討リスト |
![]() | B1階 | 27.15坪 | - | - | 募集終了 | 検討リスト |
![]() | B1階 | 30.87坪 | - | - | 募集終了 | 検討リスト |
![]() | B1階 | 31.19坪 | - | - | 募集終了 | 検討リスト |
![]() | B1階 | 27.15坪 | - | - | 募集終了 | 検討リスト |
![]() | B1階 | 13.73坪 | - | - | 募集終了 | 検討リスト |
![]() | 1階 | 30.30坪 | - | - | 募集終了 | 検討リスト |
![]() | 1階 | 89.72坪 | - | - | 募集終了 | 検討リスト |
![]() | 1階 | 61.38坪 | - | - | 募集終了 | 検討リスト |
![]() | 1階 | 35.00坪 | - | - | 募集終了 | 検討リスト |
![]() | 1階 | 28.00坪 | - | - | 募集終了 | 検討リスト |
![]() | 1階 | 175.91坪 | - | - | 募集終了 | 検討リスト |
![]() | 1階 | 40.57坪 | - | - | 募集終了 | 検討リスト |
![]() | 1階 | 158.63坪 | - | - | 募集終了 | 検討リスト |
![]() | 1階 | 59.43坪 | - | - | 募集終了 | 検討リスト |
![]() | 1階 | 59.43坪 | - | - | 募集終了 | 検討リスト |
![]() | 1階 | 16.13坪 | - | - | 募集終了 | 検討リスト |
![]() | 1階 | 24.80坪 | - | - | 募集終了 | 検討リスト |
![]() | 1階 | 55.10坪 | - | - | 募集終了 | 検討リスト |
![]() | 2階 | 24.80坪 | - | - | 募集終了 | 検討リスト |
![]() | 2階 | 50.97坪 | - | - | 募集終了 | 検討リスト |
![]() | 2階 | 169.37坪 | - | - | 募集終了 | 検討リスト |
![]() | 2階 | 53.07坪 | - | - | 募集終了 | 検討リスト |
![]() | 2階 | 40.49坪 | - | - | 募集終了 | 検討リスト |
![]() | 2階 | 77.87坪 | - | - | 募集終了 | 検討リスト |
![]() | 2階 | 81.27坪 | - | - | 募集終了 | 検討リスト |
![]() | 2階 | 121.77坪 | - | - | 募集終了 | 検討リスト |
![]() | 3階 | 253.15坪 | - | - | 募集終了 | 検討リスト |
![]() | 3階 | 80.76坪 | - | - | 募集終了 | 検討リスト |
![]() | 3階 | 88.61坪 | - | - | 募集終了 | 検討リスト |
![]() | 3階 | 169.37坪 | - | - | 募集終了 | 検討リスト |
![]() | 3階 | 38.83坪 | - | - | 募集終了 | 検討リスト |
![]() | 3階 | 155.79坪 | - | - | 募集終了 | 検討リスト |
![]() | 3階 | 253.15坪 | - | - | 募集終了 | 検討リスト |
![]() | 4階 | 197.58坪 | - | - | 募集終了 | 検討リスト |
![]() | 4階 | 191.43坪 | - | - | 募集終了 | 検討リスト |
![]() | 4階 | 56.74坪 | - | - | 募集終了 | 検討リスト |
![]() | 5階 | 191.43坪 | - | - | 募集終了 | 検討リスト |
![]() | 6階 | 191.43坪 | - | - | 募集終了 | 検討リスト |
![]() | 6階 | 197.58坪 | - | - | 募集終了 | 検討リスト |
![]() | 7階 | 56.62坪 | - | - | 募集終了 | 検討リスト |
![]() | 7階 | 191.43坪 | - | - | 募集終了 | 検討リスト |
![]() | 7階 | 56.62坪 | - | - | 募集終了 | 検討リスト |
![]() | 7階 | 197.59坪 | - | - | 募集終了 | 検討リスト |
![]() | 7階 | 191.43坪 | - | - | 募集終了 | 検討リスト |
![]() | 7階 | 140.96坪 | - | - | 募集終了 | 検討リスト |
![]() | 8階 | 66.41坪 | - | - | 募集終了 | 検討リスト |
![]() | 8階 | 26.15坪 | - | - | 募集終了 | 検討リスト |
![]() | 8階 | 17.90坪 | - | - | 募集終了 | 検討リスト |
![]() | 8階 | 38.83坪 | - | - | 募集終了 | 検討リスト |
![]() | 8階 | 26.15坪 | - | - | 募集終了 | 検討リスト |
![]() | 8階 | 66.41坪 | - | - | 募集終了 | 検討リスト |
![]() | 8階 | 197.58坪 | - | - | 募集終了 | 検討リスト |
![]() | 9階 | 197.59坪 | - | - | 募集終了 | 検討リスト |
![]() | 9階 | 79.21坪 | - | - | 募集終了 | 検討リスト |
![]() | 9階 | 55.48坪 | - | - | 募集終了 | 検討リスト |
![]() | 9階 | 56.74坪 | - | - | 募集終了 | 検討リスト |
![]() | 10階 | 191.43坪 | - | - | 募集終了 | 検討リスト |
![]() | 10階 | 197.59坪 | - | - | 募集終了 | 検討リスト |
![]() | 11階 | 191.43坪 | - | - | 募集終了 | 検討リスト |
![]() | 11階 | 56.62坪 | - | - | 募集終了 | 検討リスト |
![]() | 11階 | 140.96坪 | - | - | 募集終了 | 検討リスト |
![]() | 12階 | 140.96坪 | - | - | 募集終了 | 検討リスト |
![]() | 13階 | 81.00坪 | - | - | 募集終了 | 検討リスト |
![]() | 13階 | 52.98坪 | - | - | 募集終了 | 検討リスト |
![]() | 13階 | 28.79坪 | - | - | 募集終了 | 検討リスト |
![]() | 13階 | 56.74坪 | - | - | 募集終了 | 検討リスト |
![]() | 13階 | 18.71坪 | - | - | 募集終了 | 検討リスト |
![]() | 13階 | 38.02坪 | - | - | 募集終了 | 検討リスト |
![]() | 13階 | 25.73坪 | - | - | 募集終了 | 検討リスト |
![]() | 13階 | 62.24坪 | - | - | 募集終了 | 検討リスト |
![]() | 13階 | 50.62坪 | - | - | 募集終了 | 検討リスト |
![]() | 13階 | 134.69坪 | - | - | 募集終了 | 検討リスト |
![]() | 14階 | 76.77坪 | - | - | 募集終了 | 検討リスト |
![]() | 14階 | 58.35坪 | - | - | 募集終了 | 検討リスト |
![]() | 14階 | 38.39坪 | - | - | 募集終了 | 検討リスト |
![]() | 14階 | 38.38坪 | - | - | 募集終了 | 検討リスト |
![]() | 14階 | 135.13坪 | - | - | 募集終了 | 検討リスト |
![]() | 15階 | 43.48坪 | - | - | 募集終了 | 検討リスト |
![]() | 15階 | 49.48坪 | - | - | 募集終了 | 検討リスト |
![]() | 15階 | 28.63坪 | - | - | 募集終了 | 検討リスト |
![]() | 15階 | 48.14坪 | - | - | 募集終了 | 検討リスト |
![]() | 15階 | 135.13坪 | - | - | 募集終了 | 検討リスト |
![]() | 15階 | 58.36坪 | - | - | 募集終了 | 検討リスト |
近くの物件紹介
新宿区のエリア
近くの駅
| 取扱態様 | 仲介 |
|---|---|
| 取扱会社 | 株式会社アドマイアー 東京都中央区日本橋3-2-3ユニバース第1ビル2F TEL. 03-5204-1031 宅地建物取引業免許 東京都知事(3)第94663号 マンション管理業免許 国土交通大臣(2)第034224号 賃貸住宅管理業免許 国土交通大臣(01)第005938号 |











































































