やまとビル 2階 17.00坪(八王子市明神町・京王片倉)
やまとビルは、八王子の交通の要所である「京王八王子駅」からわずか徒歩1分、JR「八王子駅」からも徒歩4分という、圧倒的な駅近立地を誇る10階建てのビルです。現在、約180㎡(約54坪)の区画が募集中で、現状スケルトン渡しのため、企業のイメージに合わせた自由なオフィスレイアウトや店舗設計が可能です。特筆すべきは、事務所利用だけでなく飲食店も相談可能という柔軟性。フリーレント3ヶ月制度も導入されており、内装工事期間のコストを大幅に削減できる点が大きな魅力です。共用エレベーターに加え、地下区画には専用の階段も備わっており、独立した動線の確保も容易。都市ガス完備、看板設置も相談可能なため、物販・サービス店舗から本格的な飲食拠点、さらには機動力重視の営業本部まで、幅広いニーズに応える八王子エリア屈指の好条件物件です。
募集終了
| 種別(用途) | 事務所 |
|---|---|
| 階数 | 2階 |
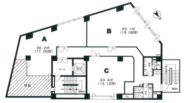
| 部屋番号 | A |
| 面積 | 17.00坪 |
| 契約形態・期間 | 普通借家 3年 |
| 空調方式 | 要確認 |
| 床仕様 | 要確認 |
| 天井高 | 要確認 |
※月額費用、坪単価ともに税別の価格です
やまとビル 2階 は現在募集がありません。
この物件の最新状況のご確認は、下記の問合せフォームをご利用ください。
この物件の最新状況のご確認は、下記の問合せフォームをご利用ください。
やまとビル の情報
- 所在地
- 東京都八王子市明神町4-7-3
- 最寄り駅
- 八王子駅徒歩4分、京王片倉駅徒歩22分
- 竣工
- 1992年
- 規模
- 地上10階・地下1階
- 構造
- 鉄骨造
- 耐震基準
- 新耐震基準適合
- セキュリティ
- 機械警備(24時間監視)
- エントランス
- 平日開放
- エレベーター総数
- 1基
- 駐車場設備
- 有
賃料相場
39件のデータ
やまとビル の募集区画 (総募集面積 0.00坪)
現在募集はありません。
やまとビル の内装イメージ
やまとビルの貸室内は、約180㎡のまとまった面積を確保した整形空間です。現状スケルトンのため、天井高や配線を自由にコントロールでき、こだわりのデザイナーズオフィスや店舗レイアウトを実現可能です。窓面からは駅前の活気ある風景を望むことができ、開放的な執務・営業環境を構築できます。
やまとビル の募集終了区画
近くの物件紹介
八王子市のエリア
近くの駅
| 取扱態様 | 仲介 |
|---|---|
| 取扱会社 | 株式会社アドマイアー 東京都中央区日本橋3-2-3ユニバース第1ビル2F TEL. 03-5204-1031 宅地建物取引業免許 東京都知事(3)第94663号 マンション管理業免許 国土交通大臣(2)第034224号 賃貸住宅管理業免許 国土交通大臣(01)第005938号 |





























