新横浜第一生命ビル 2階 69.74坪(横浜市港北区、新横浜、菊名、北新横浜)
新横浜第一生命ビルディングは、JR新横浜駅からわずか徒歩2分、環状2号線沿いの「新横浜駅入口交差点」に面した一等地に建つ賃貸オフィスビルです。1階には横浜銀行新横浜支店が入居しており、圧倒的な知名度と視認性を誇ります。1986年竣工の新耐震物件ですが、2011年にリニューアルを実施しており、清潔感のある共用部が企業の品格を支えます。募集中の50坪前後の区画は、個別空調やOAフロアといった現代のビジネスニーズを網羅しており、効率的なオフィス構築が可能です。最大の特徴は、駅近でありながら68台という地域トップクラスの収容力を備えた駐車場。新幹線での広域移動に加え、営業車による神奈川県内への機動力も重視する企業にとって、これ以上ない条件が揃っています。駅直結の商業施設「キュービックプラザ新横浜」も至近にあり、ランチや事務用品の調達にも困らない、新横浜エリアを代表するハイグレードなビジネス拠点です。
| 賃料 | - 最新の募集条件を問い合わせる |
|---|---|
| 所在地 | 神奈川県横浜市港北区新横浜 |
| 入居可能日 | 応相談 |
| 最寄り駅 | 新横浜駅徒歩2分、菊名駅徒歩18分 |
募集終了
| 種別(用途) | 事務所 |
|---|---|
| 階数 | 2階 |
| 部屋番号 | 2F |
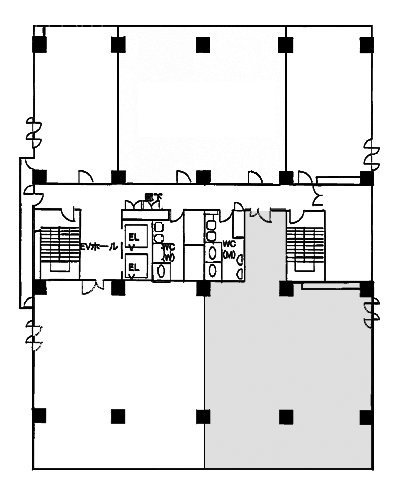
| 面積 | 69.74坪 |
| 契約形態・期間 | 普通借家 |
| 空調方式 | 個別空調 |
| 床仕様 | OAフロア タイルカーペット |
| 天井高 | 2,500mm |
| フロア特徴 | トイレ男女別、 基準階100坪以上の分割区画 |
※月額費用、坪単価ともに税別の価格です
新横浜第一生命ビル 2階 は現在募集がありません。 (最終確認日: 2024年2月5日)
この物件の最新状況のご確認は、下記の問合せフォームをご利用ください。
この物件の最新状況のご確認は、下記の問合せフォームをご利用ください。
新横浜第一生命ビル の情報
- 所在地
- 神奈川県横浜市港北区新横浜3-6-5
- 最寄り駅
- 新横浜駅徒歩2分、菊名駅徒歩18分、北新横浜駅徒歩19分
- 竣工
- 1986年
- リニューアル済み
- 2011年3月リニューアル竣工
- 規模
- 地上9階・地下1階
- 構造
- SRC造(鉄骨鉄筋コンクリート造)
- 耐震基準
- 新耐震基準適合
- セキュリティ
- 機械警備(24時間監視)
- エントランス
- 平日開放
- エレベーター総数
- 2基
- 駐車場設備
- 有(60台)
- 設備
- トイレ男女別
賃料相場
119件のデータ
新横浜第一生命ビル の募集区画 (総募集面積 140.18坪)
| 図面 | 階数 | 坪数 | 月額費用 | 坪単価 | 入居可能日 | |
|---|---|---|---|---|---|---|
![]() | 4階 | 19.24坪 | お問い合わせください | 2026/4/1 | 検討リスト お問い合わせ | |
![]() | 5階 | 50.85坪 | お問い合わせください | 2026/5/1 | 検討リスト お問い合わせ | |
![]() | 6階 | 19.24坪 | お問い合わせください | 2026/5/6 | 検討リスト お問い合わせ | |
![]() | 9階 | 50.85坪 | お問い合わせください | 即時 | 検討リスト お問い合わせ |
※月額費用、坪単価 ともに共益費込・税別の価格です
新横浜第一生命ビル の内装イメージ
新横浜第一生命ビルディングの室内は、天井高2,500mmを確保し、OAフロアや個別空調を備えた機能的な空間です。窓面が広く取られており、明るく開放的な執務環境を構築できます。2011年のリニューアルにより、エントランスやエレベーターホールなどの共用部は現代的でクリーンな印象に刷新されており、入居企業のステータスを高めます。
新横浜第一生命ビル の募集終了区画
| 図面 | 階数 | 坪数 | 月額費用 | 坪単価 | 入居可能日 | |
|---|---|---|---|---|---|---|
準備中 | B1階 | 19.24坪 | お問い合わせください | 募集終了 | 検討リスト | |
![]() | 2階 | 37.73坪 | お問い合わせください | 募集終了 | 検討リスト | |
![]() | 2階 | 69.74坪 | お問い合わせください | 募集終了 | 検討リスト | |
準備中 | 3階 | 19.24坪 | お問い合わせください | 募集終了 | 検討リスト | |
![]() | 3階 | 50.85坪 | お問い合わせください | 募集終了 | 検討リスト | |
準備中 | 3階 | 38.48坪 | お問い合わせください | 募集終了 | 検討リスト | |
![]() | 3階 | 28.21坪 | お問い合わせください | 募集終了 | 検討リスト | |
![]() | 4階 | 50.85坪 | お問い合わせください | 募集終了 | 検討リスト | |
準備中 | 6階 | 97.16坪 | お問い合わせください | 募集終了 | 検討リスト | |
準備中 | 6階 | 46.31坪 | お問い合わせください | 募集終了 | 検討リスト | |
準備中 | 8階 | 174.12坪 | お問い合わせください | 募集終了 | 検討リスト |
近くの物件紹介
横浜市のエリア
近くの駅
| 取扱態様 | 仲介 |
|---|---|
| 取扱会社 | 株式会社アドマイアー 東京都中央区日本橋3-2-3ユニバース第1ビル2F TEL. 03-5204-1031 宅地建物取引業免許 東京都知事(3)第94663号 マンション管理業免許 国土交通大臣(2)第034224号 賃貸住宅管理業免許 国土交通大臣(01)第005938号 |












































