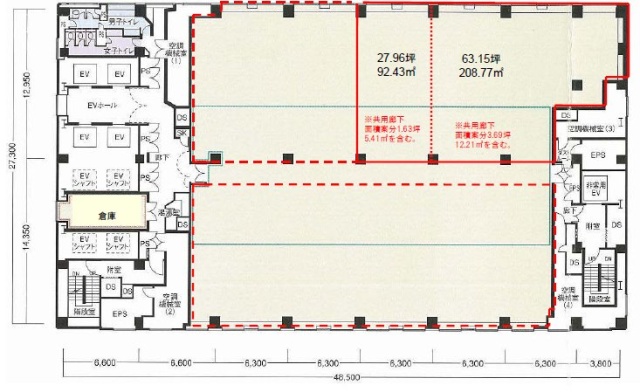
Tennozu Bay Tower 9階 63.15坪(品川区、東品川、天王洲アイル、品川)
| 賃料 | - 最新の募集条件を問い合わせる |
|---|---|
| 所在地 | 東京都品川区東品川 |
| 入居可能日 | - |
| 最寄り駅 | 天王洲アイル駅徒歩1分、品川駅徒歩23分 |
募集終了
| 種別(用途) | 事務所 |
|---|---|
| 階数 | 9階 |
| 部屋番号 | 9F |
| 面積 | 63.15坪 |
| 契約形態・期間 | 普通借家 |
| 空調方式 | 要確認 |
| 床仕様 | OAフロア タイルカーペット |
| 天井高 | 2,600mm |
| フロア特徴 | トイレ男女別、 基準階100坪以上の分割区画 |
※月額費用、坪単価ともに税別の価格です
Tennozu Bay Tower 9階 は現在募集がありません。
この物件の最新状況のご確認は、下記の問合せフォームをご利用ください。
この物件の最新状況のご確認は、下記の問合せフォームをご利用ください。
Tennozu Bay Tower の情報
- 所在地
- 東京都品川区東品川2-3-12
- 最寄り駅
- 天王洲アイル駅徒歩1分、品川駅徒歩23分、新馬場駅徒歩25分
- 竣工
- 1992年
- 規模
- 地上23階・地下1階
- 構造
- SRC造(鉄骨鉄筋コンクリート造)
- 耐震基準
- 新耐震基準適合
- セキュリティ
- 機械警備(24時間監視)
- エントランス
- 平日開放
- エレベーター総数
- 8基
- 駐車場設備
- 要確認
Tennozu Bay Tower の募集区画 (総募集面積 810.38坪)
| 図面 | 階数 | 坪数 | 月額費用 | 坪単価 | 入居可能日 | |
|---|---|---|---|---|---|---|
![]() | 6階 | 64.46坪 | 非公開 | 非公開 | 即時 | 検討リスト お問い合わせ |
![]() | 7階 | 35.18坪 | 非公開 | 非公開 | 2026/3/1 | 検討リスト お問い合わせ |
![]() | 7階 | 42.95坪 | 非公開 | 非公開 | 2026/1/16 | 検討リスト お問い合わせ |
![]() | 9階 | 27.96坪 | 非公開 | 非公開 | 2026/3/16 | 検討リスト お問い合わせ |
![]() | 11階 | 64.56坪 | 非公開 | 非公開 | 即時 | 検討リスト お問い合わせ |
![]() | 11階 | 126.81坪 | 非公開 | 非公開 | 即時 | 検討リスト お問い合わせ |
![]() | 12階 | 284.14坪 | 非公開 | 非公開 | 即時 | 検討リスト お問い合わせ |
![]() | 13階 | 37.04坪 | 非公開 | 非公開 | 2026/1/1 | 検討リスト お問い合わせ |
![]() | 13階 | 34.37坪 | 非公開 | 非公開 | 2026/1/1 | 検討リスト お問い合わせ |
![]() | 13階 | 25.40坪 | 非公開 | 非公開 | 2026/1/1 | 検討リスト お問い合わせ |
![]() | 13階 | 25.40坪 | 非公開 | 非公開 | 2026/1/1 | 検討リスト お問い合わせ |
![]() | 13階 | 42.11坪 | 非公開 | 非公開 | 2026/1/1 | 検討リスト お問い合わせ |
※月額費用、坪単価 ともに共益費込・税別の価格です
Tennozu Bay Tower の内装イメージ
シーフォートスクエアセンタービルディング(品川区東品川)は、セントラル空調で、柱の無い、ゆったりとした間取りが特徴の賃貸オフィスビルです。エレベーターは、人用に4基、貨物用に1基あり、トイレと給湯は、フロア共用です。トイレと洗面は、男女別でとても便利に使って頂けます。駐車場は、機械式と平面式があります。詳しくは、担当者までお気軽にお問合せくださいませ。















Tennozu Bay Tower の募集終了区画
| 図面 | 階数 | 坪数 | 月額費用 | 坪単価 | 入居可能日 | |
|---|---|---|---|---|---|---|
![]() | 1階 | 37.10坪 | - | - | 募集終了 | 検討リスト |
![]() | 1階 | 25.15坪 | - | - | 募集終了 | 検討リスト |
![]() | 1階 | 52.09坪 | - | - | 募集終了 | 検討リスト |
![]() | 1階 | 24.86坪 | - | - | 募集終了 | 検討リスト |
![]() | 1階 | 19.67坪 | - | - | 募集終了 | 検討リスト |
![]() | 1階 | 30.98坪 | - | - | 募集終了 | 検討リスト |
![]() | 1階 | 61.97坪 | - | - | 募集終了 | 検討リスト |
![]() | 1階 | 28.63坪 | - | - | 募集終了 | 検討リスト |
![]() | 1階 | 35.48坪 | - | - | 募集終了 | 検討リスト |
![]() | 1階 | 61.61坪 | - | - | 募集終了 | 検討リスト |
![]() | 1階 | 15.27坪 | - | - | 募集終了 | 検討リスト |
![]() | 1階 | 38.84坪 | - | - | 募集終了 | 検討リスト |
![]() | 1階 | 71.20坪 | - | - | 募集終了 | 検討リスト |
![]() | 1階 | 128.04坪 | - | - | 募集終了 | 検討リスト |
![]() | 1階 | 169.58坪 | - | - | 募集終了 | 検討リスト |
![]() | 2階 | 34.43坪 | - | - | 募集終了 | 検討リスト |
![]() | 2階 | 38.19坪 | - | - | 募集終了 | 検討リスト |
![]() | 2階 | 32.51坪 | - | - | 募集終了 | 検討リスト |
![]() | 2階 | 60.53坪 | - | - | 募集終了 | 検討リスト |
![]() | 2階 | 32.51坪 | - | - | 募集終了 | 検討リスト |
![]() | 2階 | 32.51坪 | - | - | 募集終了 | 検討リスト |
![]() | 2階 | 25.00坪 | - | - | 募集終了 | 検討リスト |
![]() | 2階 | 32.86坪 | - | - | 募集終了 | 検討リスト |
![]() | 2階 | 23.98坪 | - | - | 募集終了 | 検討リスト |
![]() | 2階 | 24.79坪 | - | - | 募集終了 | 検討リスト |
![]() | 2階 | 2.51坪 | - | - | 募集終了 | 検討リスト |
![]() | 2階 | 15.35坪 | - | - | 募集終了 | 検討リスト |
![]() | 2階 | 36.39坪 | - | - | 募集終了 | 検討リスト |
![]() | 2階 | 48.56坪 | - | - | 募集終了 | 検討リスト |
![]() | 6階 | 284.14坪 | - | - | 募集終了 | 検討リスト |
![]() | 6階 | 92.76坪 | - | - | 募集終了 | 検討リスト |
![]() | 6階 | 33.92坪 | - | - | 募集終了 | 検討リスト |
![]() | 6階 | 25.54坪 | - | - | 募集終了 | 検討リスト |
![]() | 6階 | 25.54坪 | - | - | 募集終了 | 検討リスト |
![]() | 6階 | 41.98坪 | - | - | 募集終了 | 検討リスト |
![]() | 7階 | 27.96坪 | - | - | 募集終了 | 検討リスト |
![]() | 7階 | 83.88坪 | - | - | 募集終了 | 検討リスト |
![]() | 7階 | 155.39坪 | - | - | 募集終了 | 検討リスト |
![]() | 7階 | 27.96坪 | - | - | 募集終了 | 検討リスト |
![]() | 7階 | 25.78坪 | - | - | 募集終了 | 検討リスト |
![]() | 7階 | 7.56坪 | - | - | 募集終了 | 検討リスト |
![]() | 7階 | 91.12坪 | - | - | 募集終了 | 検討リスト |
![]() | 7階 | 64.26坪 | - | - | 募集終了 | 検討リスト |
![]() | 7階 | 34.21坪 | - | - | 募集終了 | 検討リスト |
![]() | 7階 | 55.92坪 | - | - | 募集終了 | 検討リスト |
![]() | 7階 | 27.96坪 | - | - | 募集終了 | 検討リスト |
![]() | 7階 | 128.75坪 | - | - | 募集終了 | 検討リスト |
![]() | 7階 | 25.78坪 | - | - | 募集終了 | 検討リスト |
![]() | 7階 | 25.78坪 | - | - | 募集終了 | 検討リスト |
![]() | 7階 | 94.53坪 | - | - | 募集終了 | 検討リスト |
![]() | 7階 | 25.78坪 | - | - | 募集終了 | 検討リスト |
![]() | 8階 | 85.24坪 | - | - | 募集終了 | 検討リスト |
![]() | 8階 | 25.78坪 | - | - | 募集終了 | 検討リスト |
![]() | 8階 | 34.21坪 | - | - | 募集終了 | 検討リスト |
![]() | 8階 | 284.14坪 | - | - | 募集終了 | 検討リスト |
![]() | 8階 | 36.30坪 | - | - | 募集終了 | 検討リスト |
![]() | 8階 | 27.96坪 | - | - | 募集終了 | 検討リスト |
![]() | 8階 | 27.96坪 | - | - | 募集終了 | 検討リスト |
![]() | 8階 | 27.96坪 | - | - | 募集終了 | 検討リスト |
![]() | 8階 | 63.15坪 | - | - | 募集終了 | 検討リスト |
![]() | 8階 | 34.21坪 | - | - | 募集終了 | 検討リスト |
![]() | 8階 | 68.74坪 | - | - | 募集終了 | 検討リスト |
![]() | 8階 | 42.95坪 | - | - | 募集終了 | 検討リスト |
![]() | 9階 | 35.18坪 | - | - | 募集終了 | 検討リスト |
![]() | 9階 | 292.42坪 | - | - | 募集終了 | 検討リスト |
![]() | 9階 | 7.78坪 | - | - | 募集終了 | 検討リスト |
![]() | 9階 | 284.14坪 | - | - | 募集終了 | 検討リスト |
![]() | 9階 | 64.26坪 | - | - | 募集終了 | 検討リスト |
![]() | 9階 | 128.75坪 | - | - | 募集終了 | 検討リスト |
![]() | 9階 | 63.15坪 | - | - | 募集終了 | 検討リスト |
![]() | 9階 | 155.38坪 | - | - | 募集終了 | 検討リスト |
![]() | 9階 | 91.11坪 | - | - | 募集終了 | 検討リスト |
![]() | 10階 | 34.21坪 | - | - | 募集終了 | 検討リスト |
![]() | 10階 | 42.37坪 | - | - | 募集終了 | 検討リスト |
![]() | 10階 | 155.38坪 | - | - | 募集終了 | 検討リスト |
![]() | 10階 | 91.53坪 | - | - | 募集終了 | 検討リスト |
![]() | 10階 | 68.74坪 | - | - | 募集終了 | 検討リスト |
![]() | 10階 | 68.02坪 | - | - | 募集終了 | 検討リスト |
![]() | 10階 | 25.78坪 | - | - | 募集終了 | 検討リスト |
![]() | 11階 | 284.14坪 | - | - | 募集終了 | 検討リスト |
![]() | 11階 | 92.82坪 | - | - | 募集終了 | 検討リスト |
![]() | 13階 | 284.14坪 | - | - | 募集終了 | 検討リスト |
![]() | 14階 | 68.74坪 | - | - | 募集終了 | 検討リスト |
![]() | 14階 | 25.79坪 | - | - | 募集終了 | 検討リスト |
![]() | 15階 | 7.56坪 | - | - | 募集終了 | 検討リスト |
![]() | 15階 | 284.15坪 | - | - | 募集終了 | 検討リスト |
![]() | 16階 | 27.96坪 | - | - | 募集終了 | 検討リスト |
![]() | 16階 | 63.15坪 | - | - | 募集終了 | 検討リスト |
![]() | 16階 | 27.96坪 | - | - | 募集終了 | 検討リスト |
![]() | 16階 | 27.96坪 | - | - | 募集終了 | 検討リスト |
![]() | 16階 | 36.30坪 | - | - | 募集終了 | 検討リスト |
![]() | 16階 | 284.64坪 | - | - | 募集終了 | 検討リスト |
![]() | 16階 | 36.30坪 | - | - | 募集終了 | 検討リスト |
![]() | 16階 | 27.96坪 | - | - | 募集終了 | 検討リスト |
![]() | 16階 | 27.96坪 | - | - | 募集終了 | 検討リスト |
![]() | 16階 | 63.15坪 | - | - | 募集終了 | 検討リスト |
![]() | 16階 | 25.78坪 | - | - | 募集終了 | 検討リスト |
![]() | 16階 | 42.95坪 | - | - | 募集終了 | 検討リスト |
![]() | 17階 | 284.64坪 | - | - | 募集終了 | 検討リスト |
![]() | 18階 | 307.21坪 | - | - | 募集終了 | 検討リスト |
![]() | 18階 | 42.76坪 | - | - | 募集終了 | 検討リスト |
![]() | 18階 | 25.67坪 | - | - | 募集終了 | 検討リスト |
![]() | 18階 | 25.67坪 | - | - | 募集終了 | 検討リスト |
![]() | 18階 | 34.05坪 | - | - | 募集終了 | 検討リスト |
![]() | 18階 | 178.21坪 | - | - | 募集終了 | 検討リスト |
![]() | 19階 | 306.39坪 | - | - | 募集終了 | 検討リスト |
![]() | 20階 | 306.39坪 | - | - | 募集終了 | 検討リスト |
![]() | 21階 | 306.39坪 | - | - | 募集終了 | 検討リスト |
![]() | 22階 | 306.39坪 | - | - | 募集終了 | 検討リスト |
![]() | 23階 | 453.00坪 | - | - | 募集終了 | 検討リスト |
![]() | 23階 | 146.99坪 | - | - | 募集終了 | 検討リスト |
近くの物件紹介
品川区のエリア
近くの駅
| 取扱態様 | 仲介 |
|---|---|
| 取扱会社 | 株式会社アドマイアー 東京都中央区日本橋3-2-3ユニバース第1ビル2F TEL. 03-5204-1031 宅地建物取引業免許 東京都知事(3)第94663号 マンション管理業免許 国土交通大臣(2)第034224号 賃貸住宅管理業免許 国土交通大臣(01)第005938号 |






































































































