御茶ノ水駅、淡路町駅、新御茶ノ水駅の賃貸オフィス・貸事務所情報
検索結果 264 件
藤井第一ビル(千代田区、内神田、小川町、淡路町)
- 所在地
- 東京都千代田区内神田1-11-11
- 最寄り駅
- 小川町駅徒歩3分、淡路町駅徒歩3分、神田駅徒歩5分
- 竣工
- 1978年
- 規模
- 地上6階
- 駐車場設備
- 要確認
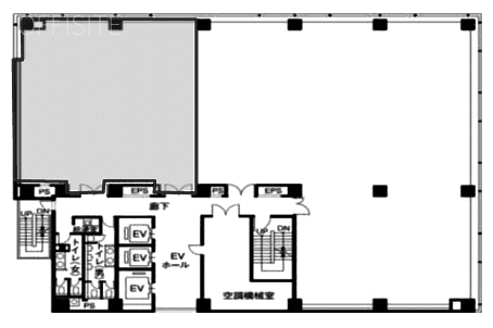
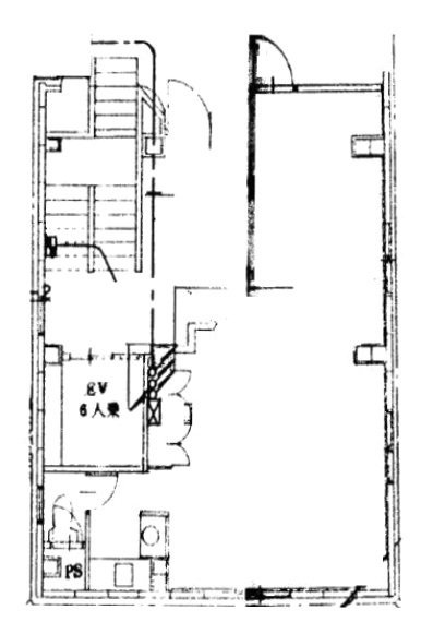
藤井第一ビル の募集区画 (総募集面積 101.00坪)
| 図面 | 階数 | 坪数 | 月額費用 | 坪単価 | 入居可能日 | |
|---|---|---|---|---|---|---|
![]() | 3階 | 43.00坪 | 559,000円 | 13,000円 | 即時 | 検討リスト お問い合わせ |
![]() | 4階 | 43.00坪 | 559,000円 | 13,000円 | 即時 | 検討リスト お問い合わせ |
![]() | 6階 | 15.00坪 | 180,000円 | 12,000円 | 2026/3/中 | 検討リスト お問い合わせ |
※月額費用、坪単価 ともに共益費込・税別の価格です
朝日電機ビル(千代田区、内神田、淡路町、神田)
- 所在地
- 東京都千代田区内神田2-13-6
- 最寄り駅
- 淡路町駅徒歩2分、神田駅徒歩3分、大手町駅徒歩7分
- 竣工
- 1978年
- 規模
- 地上5階
- 駐車場設備
- 要確認
朝日電機ビル の募集区画 (総募集面積 16.34坪)
※月額費用、坪単価 ともに共益費込・税別の価格です
竹橋ビル(千代田区、内神田、神田、小川町)
- 所在地
- 東京都千代田区内神田2-15-15
- 最寄り駅
- 神田駅徒歩3分、小川町駅徒歩3分、淡路町駅徒歩3分
- 竣工
- 1962年
- 規模
- 地上5階
- セキュリティ
- 共用部警備なし(簡易管理)
- 駐車場設備
- 要確認
竹橋ビル の募集区画 (総募集面積 82.38坪)
| 図面 | 階数 | 坪数 | 月額費用 | 坪単価 | 入居可能日 | |
|---|---|---|---|---|---|---|
![]() | 2階 | 27.46坪 | 411,900円 | 15,000円 | 2026/1/上 | 検討リスト お問い合わせ |
![]() | 4階 | 27.46坪 | 411,900円 | 15,000円 | 2026/1/上 | 検討リスト お問い合わせ |
![]() | 3階 | 27.46坪 | 411,900円 | 15,000円 | 2026/1/上 | 検討リスト お問い合わせ |
※月額費用、坪単価 ともに共益費込・税別の価格です
児谷ビル(千代田区、内神田、神田、淡路町)
- 所在地
- 東京都千代田区内神田2-5-3
- 最寄り駅
- 神田駅徒歩5分、淡路町駅徒歩8分
- 竣工
- 1983年
- 規模
- 地上7階・地下1階
- 耐震基準
- 新耐震基準適合
- セキュリティ
- 機械警備(24時間監視)
- 駐車場設備
- 要確認
児谷ビル の募集区画 (総募集面積 21.00坪)
※月額費用、坪単価 ともに共益費込・税別の価格です
新東ビル(千代田区、内神田、神田、淡路町)
- 所在地
- 東京都千代田区内神田2-8-3
- 最寄り駅
- 神田駅徒歩3分、淡路町駅徒歩7分、小川町駅徒歩9分
- 竣工
- 1968年
- 規模
- 地上7階・地下1階
- セキュリティ
- 共用部警備なし(簡易管理)
- 駐車場設備
- 要確認
新東ビル の募集区画 (総募集面積 21.50坪)
※月額費用、坪単価 ともに共益費込・税別の価格です
加藤ビル(千代田区、内神田、神田、新日本橋)
- 所在地
- 東京都千代田区内神田3-5-1
- 最寄り駅
- 神田駅徒歩2分、新日本橋駅徒歩6分、淡路町駅徒歩8分
- 竣工
- 1974年
- 規模
- 地上7階
- 駐車場設備
- 要確認
加藤ビル の募集区画 (総募集面積 10.00坪)
※月額費用、坪単価 ともに共益費込・税別の価格です
内神田東誠ビル(千代田区、内神田、淡路町、神田)
- 所在地
- 東京都千代田区内神田1-18-12
- 最寄り駅
- 淡路町駅徒歩5分、神田駅徒歩5分、小川町駅徒歩5分
- 竣工
- 1987年
- 規模
- 地上9階
- 耐震基準
- 新耐震基準適合
- セキュリティ
- 機械警備(24時間監視)
- 駐車場設備
- 要確認
内神田東誠ビル の募集区画 (総募集面積 111.70坪)
| 図面 | 階数 | 坪数 | 月額費用 | 坪単価 | 入居可能日 | |
|---|---|---|---|---|---|---|
![]() | 3階 | 55.85坪 | 1,005,300円 | 18,000円 | 2026/4/上 | 検討リスト お問い合わせ |
![]() | 4階 | 55.85坪 | 1,005,300円 | 18,000円 | 2026/4/上 | 検討リスト お問い合わせ |
※月額費用、坪単価 ともに共益費込・税別の価格です
荻原ビル(千代田区、内神田、淡路町、神田)
- 所在地
- 東京都千代田区内神田1-17-5
- 最寄り駅
- 淡路町駅徒歩4分、神田駅徒歩6分、小川町駅徒歩6分
- 竣工
- 1991年
- 規模
- 地上7階
- 耐震基準
- 新耐震基準適合
- 駐車場設備
- 要確認
荻原ビル の募集区画 (総募集面積 18.00坪)
※月額費用、坪単価 ともに共益費込・税別の価格です
SDビル(千代田区、内神田、神田、小川町)
- 所在地
- 東京都千代田区内神田3-18-3
- 最寄り駅
- 神田駅徒歩2分、小川町駅徒歩7分、淡路町駅徒歩7分
- 竣工
- 1962年
- 規模
- 地上7階・地下1階
- セキュリティ
- 機械警備(24時間監視)
- 駐車場設備
- 要確認
SDビル の募集区画 (総募集面積 79.54坪)
| 図面 | 階数 | 坪数 | 月額費用 | 坪単価 | 入居可能日 | |
|---|---|---|---|---|---|---|
![]() | 3階 | 39.77坪 | 576,665円 | 14,500円 | 2025/12/上 | 検討リスト お問い合わせ |
![]() | 4階 | 39.77坪 | 576,665円 | 14,500円 | 相談 | 検討リスト お問い合わせ |
※月額費用、坪単価 ともに共益費込・税別の価格です
村越ビル(千代田区、内神田、神田、淡路町)
- 所在地
- 東京都千代田区内神田3-21-6
- 最寄り駅
- 神田駅徒歩1分、淡路町駅徒歩5分
- 竣工
- 1980年
- 規模
- 地上9階・地下1階
- セキュリティ
- 機械警備(24時間監視)
- 駐車場設備
- 要確認
村越ビル の募集区画 (総募集面積 34.62坪)
※月額費用、坪単価 ともに共益費込・税別の価格です
センボービル(千代田区、内神田、神田、淡路町)
- 所在地
- 東京都千代田区内神田2-16-9
- 最寄り駅
- 神田駅徒歩3分、淡路町駅徒歩5分、小川町駅徒歩7分
- 竣工
- 1966年
- 規模
- 地上9階・地下3階
- セキュリティ
- 機械警備(24時間監視)
- 駐車場設備
- 要確認
センボービル の募集区画 (総募集面積 114.40坪)
※月額費用、坪単価 ともに共益費込・税別の価格です
冨士エレベータービル(千代田区、内神田、神田、小川町)
- 所在地
- 東京都千代田区内神田3-4-6
- 最寄り駅
- 神田駅徒歩2分、小川町駅徒歩7分、淡路町駅
- 竣工
- 1978年
- 規模
- 地上7階・地下1階
- セキュリティ
- 機械警備(24時間監視)
- 駐車場設備
- 要確認
冨士エレベータービル の募集区画 (総募集面積 61.85坪)
※月額費用、坪単価 ともに共益費込・税別の価格です
神田松楠ビル(千代田区、内神田、神田、小川町)
- 所在地
- 東京都千代田区内神田2-7-10
- 最寄り駅
- 神田駅徒歩3分、小川町駅徒歩9分、淡路町駅徒歩9分
- 竣工
- 1994年
- 規模
- 地上9階
- 耐震基準
- 新耐震基準適合
- セキュリティ
- 機械警備(24時間監視)
- 駐車場設備
- 要確認
神田松楠ビル の募集区画 (総募集面積 33.00坪)
※月額費用、坪単価 ともに共益費込・税別の価格です
吉川第二ビル(千代田区、内神田、神田、淡路町)
- 所在地
- 東京都千代田区内神田2-9-10
- 最寄り駅
- 神田駅徒歩2分、淡路町駅徒歩6分、小川町駅徒歩8分
- 竣工
- 1978年
- 規模
- 地上5階
- セキュリティ
- 機械警備(24時間監視)
- 駐車場設備
- 要確認
吉川第二ビル の募集区画 (総募集面積 12.50坪)
※月額費用、坪単価 ともに共益費込・税別の価格です
KT-Ⅱビル(千代田区、内神田、大手町、神田)
- 所在地
- 東京都千代田区内神田1-3-9
- 最寄り駅
- 大手町駅徒歩5分、神田駅徒歩6分、淡路町駅徒歩7分
- 竣工
- 2001年
- 規模
- 地上5階・地下1階
- 耐震基準
- 新耐震基準適合
- セキュリティ
- 機械警備(24時間監視)
- 駐車場設備
- 要確認
KT-Ⅱビル の募集区画 (総募集面積 29.24坪)
| 図面 | 階数 | 坪数 | 月額費用 | 坪単価 | 入居可能日 | |
|---|---|---|---|---|---|---|
![]() | 1階 | 12.19坪 | 195,040円 | 16,000円 | 2026/4/中 | 検討リスト お問い合わせ |
![]() | 4階 | 17.05坪 | 255,750円 | 15,000円 | 2026/4/中 | 検討リスト お問い合わせ |
※月額費用、坪単価 ともに共益費込・税別の価格です
トーハン第5ビル(千代田区、内神田、神田、淡路町)
- 所在地
- 東京都千代田区内神田1-18-13
- 最寄り駅
- 神田駅徒歩4分、淡路町駅徒歩5分、小川町駅徒歩7分
- 竣工
- 2007年
- 規模
- 地上10階
- 耐震基準
- 新耐震基準適合
- セキュリティ
- 機械警備(24時間監視)
- 駐車場設備
- 要確認
トーハン第5ビル の募集区画 (総募集面積 15.12坪)
※月額費用、坪単価 ともに共益費込・税別の価格です
金剛ビル(千代田区、内神田、神田、淡路町)
- 所在地
- 東京都千代田区内神田3-16-10
- 最寄り駅
- 神田駅徒歩2分、淡路町駅徒歩6分、小川町駅徒歩8分
- 竣工
- 1961年
- 規模
- 地上5階・地下1階
- セキュリティ
- 共用部警備なし(簡易管理)
- 駐車場設備
- 要確認
金剛ビル の募集区画 (総募集面積 8.50坪)
※月額費用、坪単価 ともに共益費込・税別の価格です
新八光ビル(千代田区、内神田、神田、小川町)
- 所在地
- 東京都千代田区内神田3-22-9
- 最寄り駅
- 神田駅徒歩1分、小川町駅徒歩5分、淡路町駅徒歩5分
- 竣工
- 1994年
- 規模
- 地上5階・地下1階
- 耐震基準
- 新耐震基準適合
- セキュリティ
- 機械警備(24時間監視)
- 駐車場設備
- 要確認
新八光ビル の募集区画 (総募集面積 114.17坪)
| 図面 | 階数 | 坪数 | 月額費用 | 坪単価 | 入居可能日 | |
|---|---|---|---|---|---|---|
![]() | 2階 | 44.17坪 | 927,570円 | 21,000円 | 即時 | 検討リスト お問い合わせ |
![]() | 3階 | 38.30坪 | 804,300円 | 21,000円 | 即時 | 検討リスト お問い合わせ |
![]() | 4階 | 31.70坪 | 665,700円 | 21,000円 | 即時 | 検討リスト お問い合わせ |
※月額費用、坪単価 ともに共益費込・税別の価格です
内神田渋谷ビル(千代田区、内神田、神田、小川町)
- 所在地
- 東京都千代田区内神田2-16-11
- 最寄り駅
- 神田駅徒歩4分、小川町駅徒歩5分、淡路町駅徒歩5分
- 竣工
- 2013年
- 規模
- 地上11階
- 耐震基準
- 新耐震基準適合
- セキュリティ
- 共用部警備なし(簡易管理)
- 駐車場設備
- 要確認
内神田渋谷ビル の募集区画 (総募集面積 13.95坪)
※月額費用、坪単価 ともに共益費込・税別の価格です
一広グローバルビル(千代田区、内神田、神田、淡路町)
- 所在地
- 東京都千代田区内神田2-4-2
- 最寄り駅
- 神田駅徒歩4分、淡路町駅徒歩6分、東京駅徒歩12分
- 竣工
- 2020年
- 規模
- 地上11階
- 耐震基準
- 新耐震基準適合
- セキュリティ
- 機械警備(24時間監視)
- 駐車場設備
- 要確認
一広グローバルビル の募集区画 (総募集面積 37.18坪)
※月額費用、坪単価 ともに共益費込・税別の価格です
KURAMACHIビル(千代田区、内神田、神田、大手町)
- 所在地
- 東京都千代田区内神田1-9-8
- 最寄り駅
- 神田駅徒歩4分、大手町駅徒歩5分、淡路町駅徒歩5分
- 竣工
- 2024年
- 規模
- 地上9階
- 耐震基準
- 新耐震基準適合
- セキュリティ
- 機械警備(24時間監視)
- 駐車場設備
- 要確認
KURAMACHIビル の募集区画 (総募集面積 65.62坪)
※月額費用、坪単価 ともに共益費込・税別の価格です
稲垣ビル(千代田区、鍛冶町、神田、淡路町)
- 所在地
- 東京都千代田区鍛冶町2-7-3
- 最寄り駅
- 神田駅徒歩1分、淡路町駅徒歩8分、岩本町駅徒歩8分
- 竣工
- 1991年
- 規模
- 地上8階
- 耐震基準
- 新耐震基準適合
- セキュリティ
- 機械警備(24時間監視)
- 駐車場設備
- 要確認
稲垣ビル の募集区画 (総募集面積 11.00坪)
※月額費用、坪単価 ともに共益費込・税別の価格です
KA111(千代田区、神田淡路町、淡路町、小川町)
- 所在地
- 東京都千代田区神田淡路町1-1-1
- 最寄り駅
- 淡路町駅徒歩1分、小川町駅徒歩1分、新御茶ノ水駅徒歩3分
- 竣工
- 1989年
- 規模
- 地上11階・地下1階
- 耐震基準
- 新耐震基準適合
- 駐車場設備
- 要確認
KA111 の募集区画 (総募集面積 51.60坪)
※月額費用、坪単価 ともに共益費込・税別の価格です
二引ビル(千代田区、神田淡路町、淡路町、小川町)
- 所在地
- 東京都千代田区神田淡路町1-5-1
- 最寄り駅
- 淡路町駅徒歩1分、小川町駅徒歩1分、御茶ノ水駅徒歩7分
- 竣工
- 1995年
- 規模
- 地上8階
- 耐震基準
- 新耐震基準適合
- セキュリティ
- 機械警備(24時間監視)
- 駐車場設備
- 要確認
二引ビル の募集区画 (総募集面積 56.07坪)
※月額費用、坪単価 ともに共益費込・税別の価格です
淡路町トーセイビル(千代田区、神田淡路町、淡路町、小川町)
- 所在地
- 東京都千代田区神田淡路町2-3-1
- 最寄り駅
- 淡路町駅徒歩2分、小川町駅徒歩2分、新御茶ノ水駅徒歩3分
- 竣工
- 1993年
- 規模
- 地上8階
- 耐震基準
- 新耐震基準適合
- セキュリティ
- 機械警備(24時間監視)
- 駐車場設備
- 有(平置き2台)
淡路町トーセイビル の募集区画 (総募集面積 59.53坪)
※月額費用、坪単価 ともに共益費込・税別の価格です
ルミエールお茶の水ビル(千代田区、神田淡路町、新御茶ノ水、淡路町)
- 所在地
- 東京都千代田区神田淡路町2-23-2
- 最寄り駅
- 新御茶ノ水駅徒歩3分、淡路町駅徒歩4分、御茶ノ水駅徒歩4分
- 竣工
- 1984年
- 規模
- 地上9階
- 耐震基準
- 新耐震基準適合
- 駐車場設備
- 要確認
ルミエールお茶の水ビル の募集区画 (総募集面積 28.34坪)
※月額費用、坪単価 ともに共益費込・税別の価格です
NCO神田淡路町ビル(千代田区、神田淡路町、淡路町、小川町)
- 所在地
- 東京都千代田区神田淡路町2-1-7
- 最寄り駅
- 淡路町駅徒歩1分、小川町駅徒歩1分、新御茶ノ水駅徒歩3分
- 竣工
- 1990年
- 規模
- 地上7階・地下1階
- 耐震基準
- 新耐震基準適合
- セキュリティ
- 機械警備(24時間監視)
- 駐車場設備
- 要確認
NCO神田淡路町ビル の募集区画 (総募集面積 96.61坪)
※月額費用、坪単価 ともに共益費込・税別の価格です
国土淡路町ビル(千代田区、神田淡路町、淡路町、小川町)
- 所在地
- 東京都千代田区神田淡路町1-4-3
- 最寄り駅
- 淡路町駅徒歩1分、小川町駅徒歩1分、新御茶ノ水駅徒歩2分
- 竣工
- 1973年
- 規模
- 地上9階・地下1階
- セキュリティ
- 共用部警備なし(簡易管理)
- 駐車場設備
- 要確認
国土淡路町ビル の募集区画 (総募集面積 19.00坪)
※月額費用、坪単価 ともに共益費込・税別の価格です
木村ビル(千代田区、神田淡路町、新御茶ノ水、小川町)
- 所在地
- 東京都千代田区神田淡路町1-19-1
- 最寄り駅
- 新御茶ノ水駅徒歩1分、小川町駅徒歩1分、淡路町駅徒歩1分
- 竣工
- 1980年
- 規模
- 地上6階・地下1階
- セキュリティ
- 共用部警備なし(簡易管理)
- 駐車場設備
- 要確認
木村ビル の募集区画 (総募集面積 18.49坪)
※月額費用、坪単価 ともに共益費込・税別の価格です
興信(日通住商神田)ビル(千代田区、神田小川町、新御茶ノ水、小川町)
- 所在地
- 東京都千代田区神田小川町1-10
- 最寄り駅
- 新御茶ノ水駅徒歩1分、小川町駅徒歩1分、淡路町駅徒歩1分
- 竣工
- 1984年
- 規模
- 地上8階・地下1階
- 耐震基準
- 新耐震基準適合
- セキュリティ
- 機械警備(24時間監視)
- 駐車場設備
- 無
■ 新御茶ノ水駅徒歩1分・3駅利用可能の好立地
■ OAフロア・個別空調完備の快適空間
興信(日通住商神田)ビル の募集区画 (総募集面積 157.58坪)
※月額費用、坪単価 ともに共益費込・税別の価格です
NBF小川町ビルディング(千代田区、神田小川町、小川町、淡路町)
- 所在地
- 東京都千代田区神田小川町1-3-1
- 最寄り駅
- 小川町駅徒歩1分、淡路町駅徒歩1分、新御茶ノ水駅徒歩3分
- 竣工
- 1986年
- 規模
- 地上10階・地下1階
- 耐震基準
- 新耐震基準適合
- セキュリティ
- 機械警備(24時間監視)
- 駐車場設備
- 有(24台)
NBF小川町ビルディング の募集区画 (総募集面積 94.58坪)
※月額費用、坪単価 ともに共益費込・税別の価格です
サンブリヂ小川町ビル(千代田区、神田小川町、小川町、淡路町)
- 所在地
- 東京都千代田区神田小川町2-2
- 最寄り駅
- 小川町駅徒歩1分、淡路町駅徒歩1分、新御茶ノ水駅徒歩2分
- 竣工
- 1962年
- 規模
- 地上6階・地下1階
- 耐震基準
- 新耐震基準適合
- セキュリティ
- 機械警備(24時間監視)
- 駐車場設備
- 要確認
サンブリヂ小川町ビル の募集区画 (総募集面積 76.00坪)
※月額費用、坪単価 ともに共益費込・税別の価格です
小川町B5ビル(千代田区、神田小川町、小川町、淡路町)
- 所在地
- 東京都千代田区神田小川町2-2-2
- 最寄り駅
- 小川町駅徒歩1分、淡路町駅徒歩3分、御茶ノ水駅徒歩7分
- 竣工
- 1987年
- 規模
- 地上9階
- 耐震基準
- 新耐震基準適合
- セキュリティ
- 機械警備(24時間監視)
- 駐車場設備
- 要確認
小川町B5ビル の募集区画 (総募集面積 31.41坪)
※月額費用、坪単価 ともに共益費込・税別の価格です
いちご神田小川町ビル(千代田区、神田小川町、小川町、淡路町)
- 所在地
- 東京都千代田区神田小川町2-4-16
- 最寄り駅
- 小川町駅徒歩2分、淡路町駅徒歩2分、御茶ノ水駅徒歩2分
- 竣工
- 1993年
- 規模
- 地上10階・地下1階
- 耐震基準
- 新耐震基準適合
- セキュリティ
- 機械警備(24時間監視)
- 駐車場設備
- 有(機械式36台)
■小川町・淡路町・新御茶ノ水の3駅利用可、靖国通り面の好視認性
■天井高2600mm、男女別トイレ完備の基準階60坪台コンパクト設計
いちご神田小川町ビル の募集区画 (総募集面積 70.14坪)
※月額費用、坪単価 ともに共益費込・税別の価格です
タイメイビル(千代田区、神田小川町、小川町、神保町)
- 所在地
- 東京都千代田区神田小川町3-22
- 最寄り駅
- 小川町駅徒歩3分、神保町駅徒歩6分、御茶ノ水駅徒歩7分
- 竣工
- 1983年
- 規模
- 地上7階・地下1階
- 耐震基準
- 新耐震基準適合
- 駐車場設備
- 要確認
タイメイビル の募集区画 (総募集面積 25.77坪)
※月額費用、坪単価 ともに共益費込・税別の価格です
たちばなやビル(千代田区、神田小川町、神保町、新御茶ノ水)
- 所在地
- 東京都千代田区神田小川町3-5-6
- 最寄り駅
- 神保町駅徒歩4分、新御茶ノ水駅徒歩4分、淡路町駅徒歩7分
- 竣工
- 1986年
- 規模
- 地上8階
- 耐震基準
- 新耐震基準適合
- 駐車場設備
- 要確認
たちばなやビル の募集区画 (総募集面積 10.00坪)
※月額費用、坪単価 ともに共益費込・税別の価格です
大栄堂ビル(千代田区、神田小川町、小川町、新御茶ノ水)
- 所在地
- 東京都千代田区神田小川町3-6-5
- 最寄り駅
- 小川町駅徒歩5分、新御茶ノ水駅徒歩5分、淡路町駅徒歩6分
- 竣工
- 1985年
- 規模
- 地上8階・地下1階
- 耐震基準
- 新耐震基準適合
- セキュリティ
- 機械警備(24時間監視)
- 駐車場設備
- 要確認
大栄堂ビル の募集区画 (総募集面積 30.00坪)
※月額費用、坪単価 ともに共益費込・税別の価格です





























































































































































































































































































































































































































































































































































































































