LMN神田ビル 4階 14.82坪(千代田区内神田・淡路町・小川町)
神田駅から徒歩3分、出世不動通りと路地が交差する角地に建つ地上4階建てのオフィスビルです。1990年竣工の新耐震基準適合物件で、旧名称「サトービル」から「LMN神田ビル」へと名称変更されました。グレーのタイル張りの外観は手入れが行き届いた印象を与え、1階に入居する飲食店「かきのおきて」がビルの良好な目印となっています。本物件の最大の特徴は、エレベーターがない階段移動の設計である点です。その分、神田駅至近という立地でありながら賃料コストが適切に抑えられており、実務上のメリットを重視するスタートアップ企業や、来客の少ない事務拠点、クリエイティブな作業場として合理的な選択肢となります。角地による三面採光の明るい室内は、執務環境を良好に保ちます。
| 賃料 | 180,000円 千代田区の平均坪単価: 19,740円(参考) |
|---|---|
| 所在地 | 東京都千代田区内神田 |
| 入居可能日 | 即時 |
| 最寄り駅 | 神田駅徒歩3分、淡路町駅徒歩5分 |
| 最終更新 | 2026年4月14日 |
募集中
| 種別(用途) | 事務所 |
|---|---|
| 階数 | 4階 |
| 部屋番号 | 4F |
| 面積 | 14.82坪 |
| 賃料 | 賃料を確認する(無料・1分) |
| 共益費 | 0円(坪単価0円) |
| 合計 | 180,000円(坪単価12,146円) |
| 敷金・保証金 | 540,000円(3ヶ月) |
| 更新料 | 1ヶ月 |
| 償却 | 1ヶ月 |
| 礼金 | 180,000円(1ヶ月) |
| 契約形態・期間 | 普通借家 3年 |
| 空調方式 | 要確認 |
| 床仕様 | 要確認 |
| 天井高 | 要確認 |
※月額費用、坪単価ともに税別の価格です
LMN神田ビル の情報
- 所在地
- 東京都千代田区内神田2-13-6
- 最寄り駅
- 神田駅徒歩3分、淡路町駅徒歩5分、小川町駅徒歩7分
- 竣工
- 1978年
- 規模
- 地上6階
- 構造
- S造(鉄骨造)
- セキュリティ
- 機械警備(24時間監視)
- エントランス
- 平日開放
- エレベーター総数
- 0基
- 駐車場設備
- 無
- 設備
- トイレ男女別
賃料相場
284件のデータ
LMN神田ビル の募集区画 (総募集面積 34.18坪)
※月額費用、坪単価 ともに共益費込・税別の価格です
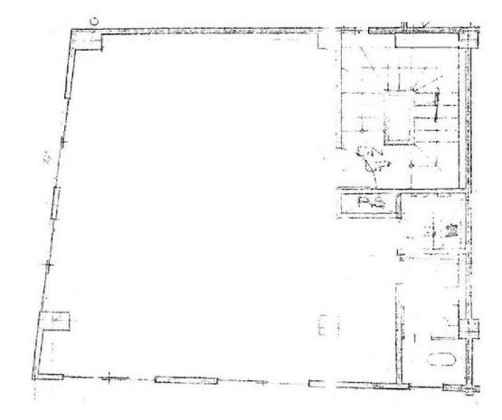
LMN神田ビル の内装イメージ
室内は角地であることを最大限に活かし、三方向の窓から自然光がたっぷりと差し込む明るい空間です。約15坪〜20坪程度の整形フロアで、柱の干渉も少ないため、デスク配置が容易です。個別空調や男女別トイレなど、コンパクトながら必要な設備が整った使い勝手の良い仕様です。
LMN神田ビル の募集終了区画
近くの物件紹介
千代田区のエリア
近くの駅
| 取扱態様 | 仲介 |
|---|---|
| 取扱会社 | 株式会社アドマイアー 東京都中央区日本橋3-2-3ユニバース第1ビル2F TEL. 03-5204-1031 宅地建物取引業免許 東京都知事(3)第94663号 マンション管理業免許 国土交通大臣(2)第034224号 賃貸住宅管理業免許 国土交通大臣(01)第005938号 |



































