さいたま市中央区の賃貸オフィス・貸事務所情報
さいたま市中央区は、さいたま市の中央部に位置し、東は大宮区、西は桜区、南は浦和区、北は北区に隣接するエリアです。JR京浜東北線、埼京線が乗り入れる与野本町駅、南与野駅を中心に、さいたま新都心駅も区内に位置します。さいたまスーパーアリーナや埼玉県立近代美術館などの著名施設があり、ビジネスと文化が融合したエリアです。
検索結果 13 件
並び替え
大宮トーセイビル(さいたま市中央区上落合・大宮)
- 所在地
- 埼玉県さいたま市中央区上落合8-1-19
- 最寄り駅
- 大宮駅徒歩10分
- 竣工
- 1991年
- 規模
- 地上9階・地下1階
- 耐震基準
- 新耐震基準適合
- セキュリティ
- 機械警備(24時間監視)
- 駐車場設備
- 有(平置き9台、機械式82台の合計91台)
大宮トーセイビルは、さいたま市の中心拠点である「大宮」駅から徒歩10分の場所に位置する賃貸オフィスビルです。北与野駅やさいたま新都心駅も徒歩圏内にあり、都心部へのアクセスにも対応しています。地上9階建ての当ビルは、2024年6月に共用部と専有部のバリューアップ工事を実施しており、清潔感のある空間を維持しています。1フロア100坪級の面積を確保し、全館合計で約781坪の1棟貸し運用も可能です。個別空調や男女別トイレといった標準設備のほか、計91台収容可能な大型駐車場を完備しており、車両移動の多い企業や倉庫機能を求める組織のニーズを支える仕様となっています。
大宮トーセイビル の募集区画 (総募集面積 781.59坪)
| 図面 | 階数 | 坪数 | 月額費用 | 坪単価 | 入居可能日 | |
|---|---|---|---|---|---|---|
![]() | 1階 | 781.59坪 | 賃料を確認する (無料・1分) | 即時 | 検討リスト お問い合わせ |
※月額費用、坪単価 ともに共益費込・税別の価格です
明治安田生命さいたま新都心ビル(さいたま市中央区新都心・さいたま新都心・北与野・大宮)
- 所在地
- 埼玉県さいたま市中央区新都心11-2
- 最寄り駅
- さいたま新都心駅徒歩1分、北与野駅徒歩7分、大宮駅徒歩25分
- 竣工
- 2002年
- 規模
- 地上35階・地下3階
- 耐震基準
- 新耐震基準適合
- セキュリティ
- 機械警備(24時間監視)
- 駐車場設備
- 要確認
- 設備
- 省エネ・環境配慮
明治安田生命さいたま新都心ビルは、さいたま新都心駅徒歩1分に位置するエリア最大級のランドマークタワーです。通称「ランド・アクシス・タワー(L.A.タワー)」として親しまれる本物件は、駅からのペデストリアンデッキ直結により、雨天時も濡れずに快適な通勤が可能です。地上35階建ての超高層ビル内には18基のエレベーターが稼働し、スムーズな縦動線を確保しています。基準階約400坪の無柱空間は天井高2,800mmと高く、開放感に満ちた高品質なオフィス環境を提供します。首都高速の出入口も至近で、鉄道・車両の両面で卓越した機動力を発揮する、埼玉県内屈指のビジネス拠点です。
明治安田生命さいたま新都心ビル の募集区画 (総募集面積 84.22坪)
| 図面 | 階数 | 坪数 | 月額費用 | 坪単価 | 入居可能日 | |
|---|---|---|---|---|---|---|
![]() | 20階 | 84.22坪 | 賃料を確認する (無料・1分) | 2026/7/1 | 検討リスト お問い合わせ |
※月額費用、坪単価 ともに共益費込・税別の価格です
FSKビル(さいたま市中央区新都心・北与野・さいたま新都心)
- 所在地
- 埼玉県さいたま市中央区新都心4-1
- 最寄り駅
- 北与野駅徒歩4分、さいたま新都心駅徒歩6分
- 竣工
- 2002年
- 規模
- 地上8階
- 耐震基準
- 新耐震基準適合
- セキュリティ
- 機械警備(24時間監視)
- 駐車場設備
- 有
JR埼京線「北与野」駅から徒歩4分、JR京浜東北線・高崎線・宇都宮線「さいたま新都心」駅から徒歩6分。さいたまスーパーアリーナや官公庁が集まる新都心エリアの一角に位置する、2002年竣工のオフィスビルです。地上8階建ての建物は、新耐震基準を満たしたS造(鉄骨造)で、グレーを基調とした落ち着いた外観が特徴です。基準階は約116坪の整形空間で、OAフロアや個別空調、男女別トイレといった現代のオフィスに求められるスペックを完備しています。北与野駅とさいたま新都心駅を結ぶペデストリアンデッキ(北与野デッキ)からもアクセスしやすく、周辺には商業施設や飲食店が充実しており、ビジネスの利便性と快適な就業環境を両立した物件です。
FSKビル の募集区画 (総募集面積 47.18坪)
| 図面 | 階数 | 坪数 | 月額費用 | 坪単価 | 入居可能日 | |
|---|---|---|---|---|---|---|
![]() | 1階 | 47.18坪 | 賃料を確認する (無料・1分) | 即時 | 検討リスト お問い合わせ |
※月額費用、坪単価 ともに共益費込・税別の価格です
大宮サウスゲート(さいたま市中央区新都心・さいたま新都心・北与野・大宮)
- 所在地
- 埼玉県さいたま市中央区新都心7-2
- 最寄り駅
- さいたま新都心駅徒歩7分、北与野駅徒歩14分、大宮駅徒歩15分
- 竣工
- 2007年
- 規模
- 地上10階
- 耐震基準
- 新耐震基準適合
- セキュリティ
- 機械警備(24時間監視)
- 駐車場設備
- 要確認
- 設備
- 24時間(要ICカード)
大宮サウスゲートは、さいたま新都心駅から徒歩7分の場所に位置する2007年竣工の賃貸オフィスです。地上10階建ての端正な外観を持ち、機械警備や24時間使用可能な体制など、現代のビジネスニーズに応える充実したスペックを備えています。個別空調により、各区画で快適な室温管理が可能なほか、エレベーターを4基設置しておりフロア移動もスムーズです。首都高速「新都心IC」まで車で3分と近く、鉄道・車両の両面で優れた機動力を発揮します。新都心エリアの利便性を享受しつつ、落ち着いた環境で業務に取り組める、バランスの取れたオフィス拠点です。4階にはテナント様専用の食堂もあり、快適なオフィス環境でお過ごしいただけます。
大宮サウスゲート の募集区画 (総募集面積 80.21坪)
| 図面 | 階数 | 坪数 | 月額費用 | 坪単価 | 入居可能日 | |
|---|---|---|---|---|---|---|
![]() | 6階 | 80.21坪 | 賃料を確認する (無料・1分) | 即時 | 検討リスト お問い合わせ |
※月額費用、坪単価 ともに共益費込・税別の価格です
大宮サウスゲートフロント(さいたま市中央区新都心・さいたま新都心・北与野・大宮)
- 所在地
- 埼玉県さいたま市中央区新都心7-2
- 最寄り駅
- さいたま新都心駅徒歩7分、北与野駅徒歩12分、大宮駅徒歩20分
- 竣工
- 2025年
- 規模
- 地上12階・地下1階
- 耐震基準
- 新耐震基準適合
- セキュリティ
- 機械警備(24時間監視)
- 駐車場設備
- 有
- 設備
- トイレ男女別
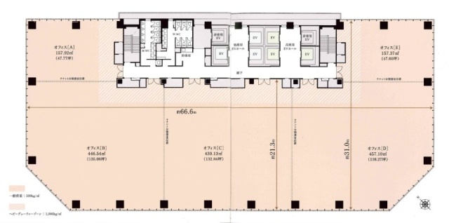
さいたま新都心エリアに誕生した大宮サウスゲートフロントは、2025年12月竣工の最新鋭賃貸オフィスです。JRさいたま新都心駅から徒歩7分の立地にあり、都心へのスムーズなアクセスが可能です。基準階面積は約500坪とエリア内でも希少な広さを誇り、天井高2,800mmの開放感あふれる空間を提供します。482台収容の駐車場を併設しており、営業車両の多い企業や広域展開を図る企業の戦略的拠点として高い利便性を発揮します。2階部分にはコンビニエンスストアが入居予定です。
大宮サウスゲートフロント の募集区画 (総募集面積 1,856.18坪)
| 図面 | 階数 | 坪数 | 月額費用 | 坪単価 | 入居可能日 | |
|---|---|---|---|---|---|---|
![]() | 3階 | 47.60坪 | 賃料を確認する (無料・1分) | 即時 | 検討リスト お問い合わせ | |
![]() | 7階 | 501.56坪 | 賃料を確認する (無料・1分) | 即時 | 検討リスト お問い合わせ | |
![]() | 8階 | 501.56坪 | 賃料を確認する (無料・1分) | 即時 | 検討リスト お問い合わせ | |
![]() | 8階 | 11.33坪 | 賃料を確認する (無料・1分) | 即時 | 検討リスト お問い合わせ | |
![]() | 9階 | 11.33坪 | 賃料を確認する (無料・1分) | 即時 | 検討リスト お問い合わせ | |
![]() | 9階 | 501.56坪 | 賃料を確認する (無料・1分) | 即時 | 検討リスト お問い合わせ | |
![]() | 4階 | 185.87坪 | 賃料を確認する (無料・1分) | 即時 | 検討リスト お問い合わせ | |
![]() | 6階 | 47.77坪 | 賃料を確認する (無料・1分) | 即時 | 検討リスト お問い合わせ | |
![]() | 6階 | 47.60坪 | 賃料を確認する (無料・1分) | 即時 | 検討リスト お問い合わせ |
※月額費用、坪単価 ともに共益費込・税別の価格です




















































