プロスペリティ北大塚 B1階 28.59坪(豊島区、北大塚、大塚、大塚駅前)
募集終了
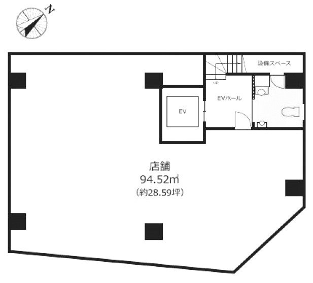
| 種別(用途) | 店舗 |
|---|---|
| 階数 | B1階 |
| 部屋番号 | B1F |
| 面積 | 28.59坪 |
| 契約形態・期間 | 普通借家 3年 |
| 空調方式 | 要確認 |
| 床仕様 | スケルトン |
| 天井高 | 2,650mm |
※月額費用、坪単価ともに税別の価格です
プロスペリティ北大塚 B1階 は現在募集がありません。
この物件の最新状況のご確認は、下記の問合せフォームをご利用ください。
この物件の最新状況のご確認は、下記の問合せフォームをご利用ください。
プロスペリティ北大塚 の情報
- 所在地
- 東京都豊島区北大塚2-7-11
- 最寄り駅
- 大塚駅徒歩2分、大塚駅前駅徒歩2分、巣鴨駅徒歩16分
- 竣工
- 2015年
- 規模
- 地上7階・地下1階
- 構造
- その他
- 耐震基準
- 新耐震基準適合
- セキュリティ
- 機械警備(24時間監視)
- エントランス
- 平日開放
- エレベーター総数
- 1基
- 駐車場設備
- 要確認
賃料相場
34件のデータ
プロスペリティ北大塚 の募集区画 (総募集面積 0.00坪)
現在募集はありません。
プロスペリティ北大塚 の内装イメージ
貸室はスケルトン仕様で、テナントの業種や用途に合わせて自由にレイアウトできます。床はタイルカーペット敷設も可能で、オフィスレイアウトの幅が広がります。室内には水回りと男女共用トイレを完備し、日々の使い勝手も良好。11人乗りのエレベーターが1基設置されており、来客や従業員の移動もスムーズです。新耐震基準をクリアしているため、安心して長くご利用いただけます。築浅物件ならではの優れた設備環境も魅力のひとつです。
プロスペリティ北大塚 の募集終了区画
近くの物件紹介
豊島区のエリア
近くの駅
| 取扱態様 | 仲介 |
|---|---|
| 取扱会社 | 株式会社アドマイアー 東京都中央区日本橋3-2-3ユニバース第1ビル2F TEL. 03-5204-1031 宅地建物取引業免許 東京都知事(3)第94663号 マンション管理業免許 国土交通大臣(2)第034224号 賃貸住宅管理業免許 国土交通大臣(01)第005938号 |



























