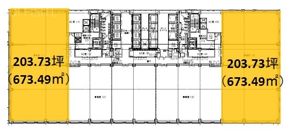
ダイバーシティ東京オフィスタワー 11階【東】 203.73坪(江東区、青海、東京テレポート、台場)
ダイバーシティ東京オフィスタワーは、臨海副都心エリアのシンボルとして圧倒的な存在感を放つ地上22階建ての大型オフィスビルです。東京テレポート駅から徒歩4分という好立地に加え、2012年竣工の最新鋭設備がビジネスを強力にサポートします。最大の特徴は、基準階面積約690坪、天井高2,750mmという開放感溢れる広大な執務空間です。制震構造や有人管理を併用した高いセキュリティ性能、そして足元に広がる多彩な商業施設が、従業員のエンゲージメント向上と業務効率化を高い次元で実現します。
| 賃料 | - 最新の募集条件を問い合わせる |
|---|---|
| 所在地 | 東京都江東区青海 |
| 入居可能日 | 応相談 |
| 最寄り駅 | 東京テレポート駅徒歩3分、台場駅徒歩5分 |
| 最終更新 | 2026年1月5日 |
募集終了
| 種別(用途) | 事務所 |
|---|---|
| 階数 | 11階 |
| 部屋番号 | 東 |
| 面積 | 203.73坪 |
| 契約形態・期間 | 定期借家 3年 |
| 空調方式 | セントラル空調 |
| 床仕様 | OAフロア タイルカーペット |
| 天井高 | 要確認 |
| フロア特徴 | トイレ男女別、 基準階100坪以上の分割区画 |
※月額費用、坪単価ともに税別の価格です
ダイバーシティ東京オフィスタワー 11階【東】 は現在募集がありません。 (最終確認日: 2026年1月5日)
この物件の最新状況のご確認は、下記の問合せフォームをご利用ください。
この物件の最新状況のご確認は、下記の問合せフォームをご利用ください。
ダイバーシティ東京オフィスタワー の情報
- 所在地
- 東京都江東区青海1-1-20
- 最寄り駅
- 東京テレポート駅徒歩3分、台場駅徒歩5分、東京国際クルーズターミナル駅徒歩7分
- 竣工
- 2012年
- 規模
- 地上22階・地下1階
- 構造
- S造(鉄骨造)
- 耐震基準
- 新耐震基準適合・制震構造
- セキュリティ
- 機械警備・有人管理(24時間体制)
- エントランス
- 平日開放
- エレベーター総数
- 16基(低層7基、高層7基、非常用2基 計16基)
- 駐車場設備
- 有(35台)
- 設備
- 貸会議室、 荷捌き場(搬出入ヤード)、 貨物EVあり、 複合施設、 非常用発電機、 トイレ男女別
賃料相場
106件のデータ
ダイバーシティ東京オフィスタワー の募集区画 (総募集面積 1,950.04坪)
| 図面 | 階数 | 坪数 | 月額費用 | 坪単価 | 入居可能日 | |
|---|---|---|---|---|---|---|
![]() | 7階 | 324.99坪 | お問い合わせください | 即時 | 検討リスト お問い合わせ | |
![]() | 7階 | 162.05坪 | お問い合わせください | 即時 | 検討リスト お問い合わせ | |
![]() | 8階 | 690.70坪 | お問い合わせください | 2026/7 | 検討リスト お問い合わせ | |
![]() | 9階 | 690.70坪 | お問い合わせください | 2026/7 | 検討リスト お問い合わせ | |
![]() | 12階 | 81.60坪 | お問い合わせください | 相談 | 検討リスト お問い合わせ |
※月額費用、坪単価 ともに共益費込・税別の価格です
ダイバーシティ東京オフィスタワー の内装イメージ
ダイバーシティ東京オフィスタワーの室内は、基準階面積約690坪という都内有数の広さを誇る整形無柱空間が広がっています。天井高2,750mmに加え、ワイドな窓面からはお台場エリアのパノラマビューを享受でき、圧倒的な開放感の中で業務に励むことが可能です。ゾーン別空調や500kg/㎡の床荷重、最新のOAフロアなど、多様化する現代のワークスタイルに柔軟に対応するスペックが完備されています。効率的なレイアウト設計が可能であり、社員間の円滑なコミュニケーションを促進する次世代型のオフィス環境を提供します。

























ダイバーシティ東京オフィスタワー の募集終了区画
| 図面 | 階数 | 坪数 | 月額費用 | 坪単価 | 入居可能日 | |
|---|---|---|---|---|---|---|
![]() | 2階 | 29.62坪 | お問い合わせください | 募集終了 | 検討リスト | |
![]() | 3階 | 690.75坪 | お問い合わせください | 募集終了 | 検討リスト | |
![]() | 4階 | 690.75坪 | お問い合わせください | 募集終了 | 検討リスト | |
![]() | 5階 | 667.55坪 | お問い合わせください | 募集終了 | 検討リスト | |
![]() | 7階 | 121.25坪 | お問い合わせください | 募集終了 | 検討リスト | |
![]() | 7階 | 487.04坪 | お問い合わせください | 募集終了 | 検討リスト | |
![]() | 8階 | 203.73坪 | お問い合わせください | 募集終了 | 検討リスト | |
![]() | 8階 | 162.05坪 | お問い合わせください | 募集終了 | 検討リスト | |
![]() | 8階 | 121.25坪 | お問い合わせください | 募集終了 | 検討リスト | |
![]() | 8階 | 203.73坪 | お問い合わせください | 募集終了 | 検討リスト | |
![]() | 10階 | 690.70坪 | お問い合わせください | 募集終了 | 検討リスト | |
![]() | 11階 | 283.30坪 | お問い合わせください | 募集終了 | 検討リスト | |
![]() | 11階 | 203.73坪 | お問い合わせください | 募集終了 | 検討リスト | |
![]() | 11階 | 203.73坪 | お問い合わせください | 募集終了 | 検討リスト | |
![]() | 12階 | 121.24坪 | お問い合わせください | 募集終了 | 検討リスト | |
![]() | 12階 | 203.74坪 | お問い合わせください | 募集終了 | 検討リスト | |
![]() | 12階 | 690.70坪 | お問い合わせください | 募集終了 | 検討リスト | |
![]() | 12階 | 365.77坪 | お問い合わせください | 募集終了 | 検討リスト | |
![]() | 13階 | 690.75坪 | お問い合わせください | 募集終了 | 検討リスト | |
![]() | 14階 | 203.73坪 | お問い合わせください | 募集終了 | 検討リスト | |
![]() | 14階 | 487.03坪 | お問い合わせください | 募集終了 | 検討リスト | |
![]() | 14階 | 690.70坪 | お問い合わせください | 募集終了 | 検討リスト | |
![]() | 14階 | 324.97坪 | お問い合わせください | 募集終了 | 検討リスト | |
![]() | 15階 | 284.16坪 | お問い合わせください | 募集終了 | 検討リスト | |
![]() | 15階 | 81.60坪 | お問い合わせください | 募集終了 | 検討リスト | |
![]() | 15階 | 690.70坪 | お問い合わせください | 募集終了 | 検討リスト | |
![]() | 20階 | 690.75坪 | お問い合わせください | 募集終了 | 検討リスト | |
![]() | 20階 | 40.29坪 | お問い合わせください | 募集終了 | 検討リスト | |
![]() | 21階 | 162.05坪 | お問い合わせください | 募集終了 | 検討リスト | |
![]() | 21階 | 40.29坪 | お問い合わせください | 募集終了 | 検討リスト |
近くの物件紹介
江東区のエリア
近くの駅
| 取扱態様 | 仲介 |
|---|---|
| 取扱会社 | 株式会社アドマイアー 東京都中央区日本橋3-2-3ユニバース第1ビル2F TEL. 03-5204-1031 宅地建物取引業免許 東京都知事(3)第94663号 マンション管理業免許 国土交通大臣(2)第034224号 賃貸住宅管理業免許 国土交通大臣(01)第005938号 |




























