東京ファッションタウン(TFTビル東館)(江東区有明・東京ビッグサイト・国際展示場・東京テレポート) の賃貸オフィス情報

- 所在地
- 東京都江東区有明3-6-11
- 最寄り駅
- 東京ビッグサイト駅徒歩1分、国際展示場駅徒歩5分、東京テレポート駅徒歩10分
- 竣工
- 1996年
- 規模
- 地上9階・地下1階
- 構造
- SRC造(鉄骨鉄筋コンクリート造)
- 耐震基準
- 新耐震基準適合
- セキュリティ
- 機械警備(24時間監視)
- エントランス
- 平日開放
- エレベーター総数
- 22基(乗用16基・荷物用6基・合計22基)
- 駐車場設備
- 有(525台完備)
- 設備
- 貸会議室、 リフレッシュコーナー、 喫煙室、 荷捌き場(搬出入ヤード)、 貨物EVあり、 非接触ICカード、 非常用発電機、 保育所
東京ファッションタウン(TFTビル東館) の物件特徴・おすすめポイント
■1フロア最大2,500坪超。大規模なワンフロア運用や部署間のシームレスな連携を可能にします。
■万全のBCP性能。3回線受電や12時間稼働の非常用発電機で、災害時も事業継続をサポート。
■「ビル内完結」の利便性。飲食店、郵便局、保育園、クリニックが揃い、従業員満足度が向上。
■入居者特典の会議室割引。展示会や大規模セミナーを自社ビル内で効率的に開催可能です。
東京ファッションタウン(TFTビル東館) の募集区画 (総募集面積 1,643.20坪)
| 図面 | 階数 | 坪数 | 月額費用 | 坪単価 | 入居可能日 | |
|---|---|---|---|---|---|---|
![]() | 5階 | 646.60坪 | お問い合わせください | 即時 | 検討リスト お問い合わせ | |
![]() | 6階 | 243.97坪 | お問い合わせください | 2026/12 | 検討リスト お問い合わせ | |
![]() | 7階 | 35.06坪 | お問い合わせください | 即時 | 検討リスト お問い合わせ | |
![]() | 7階 | 35.71坪 | お問い合わせください | 即時 | 検討リスト お問い合わせ | |
![]() | 8階 | 93.58坪 | お問い合わせください | 2026/12/1 | 検討リスト お問い合わせ | |
![]() | 8階 | 133.77坪 | お問い合わせください | 2026/12/1 | 検討リスト お問い合わせ | |
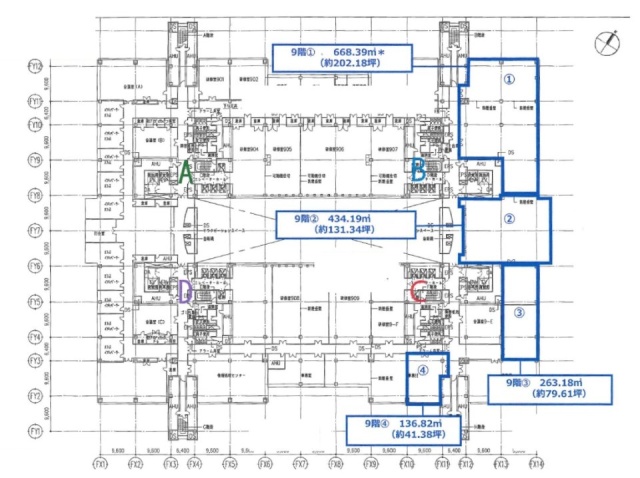
![]() | 9階 | 202.18坪 | お問い合わせください | 2026/10/1 | 検討リスト お問い合わせ | |
![]() | 9階 | 131.34坪 | お問い合わせください | 即時 | 検討リスト お問い合わせ | |
![]() | 9階 | 79.61坪 | お問い合わせください | 即時 | 検討リスト お問い合わせ | |
![]() | 9階 | 41.38坪 | お問い合わせください | 即時 | 検討リスト お問い合わせ |
※月額費用、坪単価 ともに共益費込・税別の価格です
建物に関するよくある質問と回答
A1. ゆりかもめ「東京ビッグサイト駅」から徒歩1分で、屋根付きのデッキを通じて直結しています。また、りんかい線「国際展示場駅」からも徒歩5分で到着でき、渋谷・新宿方面からのアクセスも非常にスムーズです。
Q2. TFTビル(東京ファッションタウンビル)の災害対策(BCP)や耐震性能はどうなっていますか?
A2. 本物件は支持地盤まで強固な杭を打設した耐震構造です。また、3回線のスポットネットワーク受電に加え、非常用発電機(12時間供給)を完備。地域全体で共同溝の整備や液状化対策が施されており、災害に強いオフィスとして評価されています。
Q3. TFTビル(東京ファッションタウンビル)の床荷重や天井高など、スペックについて教えてください?
A3. 天井高は標準2,700mm(一部3,000mm)を確保。床荷重はOAフロア上で300kg/㎡、スラブ上で400kg/㎡に対応しており、重機やサーバー設置にも適した堅牢な設計です。
Q4. TFTビル(東京ファッションタウンビル)館内の共用施設やアメニティにはどのようなものがありますか?
A4. 1階・2階を中心に広大な飲食店街やコンビニ、オフィス用品店、さらには郵便局や銀行、クリニック、保育園まで完備しています。リフレッシュ用のテラスやアトリウムもあり、ビルから出することなく充実した生活を送れます。
Q5. TFTビル(東京ファッションタウンビル)の駐車場や荷物搬入の利便性はどうですか?
A5. 東館・西館合わせて525台の駐車場を完備しています。1階には最大4t車まで対応可能な専用の荷捌き場があり、展示会関連や大規模な資材搬入もスムーズに行える体制が整っています。
地図
東京都江東区有明3-6-11 地図をクリックして拡大できます
東京ファッションタウン(TFTビル東館) の外観イメージ
TFTビルは、丹下・日本・山下設計監理共同企業による意匠が光る、有明エリアのランドマークです。広大な敷地にそびえ立つ東館と西館は、ガラスとメタリックな質感を組み合わせた近未来的なフォルムが特徴。特に2階のアトリウム空間は、巨大な「シャワーツリー35」が流れる吹き抜けとなっており、芸術性と開放感が融合した圧巻のデザインを誇ります。大規模ビルならではの存在感は企業のブランド力を高め、シンボルプロムナード公園の緑豊かな景観とも調和しています。













東京ファッションタウン(TFTビル東館) の周辺イメージ
有明エリアは、計画的な都市開発により広大な公園と最新の商業施設が共存しています。隣接する「有明ガーデン」には大規模モールやホテル、スパが集結し、業務後のリフレッシュや来客の宿泊にも便利です。東京ビッグサイトが至近のため、展示会ビジネスに関連する企業にとっては戦略的な拠点となります。広々とした歩行者専用道路「シンボルプロムナード公園」の並木道や花壇が四季を彩り、都心では味わえない潤いのある就業環境が整っています。

東京ファッションタウン(TFTビル東館) のアクセス・ロケーション
■ 鉄道アクセス(主要駅からの所要時間)
・「大崎駅」よりりんかい線で14分
・「新木場駅」よりりんかい線で5分
・「新橋駅」よりゆりかもめで22分
・「豊洲駅」よりゆりかもめで8分
■ バス・BRTアクセス
・都営バス:東京駅丸の内南口より約31分
・BRT:都心部(新橋・虎ノ門方面)への高速アクセスが予定されており、利便性がさらに向上します。
・空港バス:羽田空港より約25分、成田空港より約60分。
■ 車アクセス
首都高速11号台場線「台場ランプ」、湾岸線「臨海副都心ランプ」「有明ランプ」から各5分。東京港臨海道路の活用により羽田空港まで約15分と、陸海空すべてのアクセスにおいて優位性を持ちます。
東京ファッションタウン(TFTビル東館) の主な入居テナント
東京ファッションタウン(TFTビル東館) の募集終了区画
| 図面 | 階数 | 坪数 | 月額費用 | 坪単価 | 入居可能日 | |
|---|---|---|---|---|---|---|
![]() | 1階 | 22.90坪 | お問い合わせください | 募集終了 | 検討リスト | |
![]() | 1階 | 22.96坪 | お問い合わせください | 募集終了 | 検討リスト | |
![]() | 1階 | 22.07坪 | お問い合わせください | 募集終了 | 検討リスト | |
![]() | 1階 | 42.28坪 | お問い合わせください | 募集終了 | 検討リスト | |
![]() | 2階 | 12.33坪 | お問い合わせください | 募集終了 | 検討リスト | |
![]() | 2階 | 13.03坪 | お問い合わせください | 募集終了 | 検討リスト | |
![]() | 6階 | 1,110.48坪 | お問い合わせください | 募集終了 | 検討リスト | |
![]() | 6階 | 134.00坪 | お問い合わせください | 募集終了 | 検討リスト | |
![]() | 6階 | 122.40坪 | お問い合わせください | 募集終了 | 検討リスト | |
![]() | 6階 | 377.20坪 | お問い合わせください | 募集終了 | 検討リスト | |
![]() | 6階 | 243.20坪 | お問い合わせください | 募集終了 | 検討リスト | |
![]() | 6階 | 975.73坪 | お問い合わせください | 募集終了 | 検討リスト | |
![]() | 6階 | 620.40坪 | お問い合わせください | 募集終了 | 検討リスト | |
![]() | 6階 | 630.79坪 | お問い合わせください | 募集終了 | 検討リスト | |
![]() | 6階 | 716.04坪 | お問い合わせください | 募集終了 | 検討リスト | |
![]() | 6階 | 620.40坪 | お問い合わせください | 募集終了 | 検討リスト | |
![]() | 7階 | 201.37坪 | お問い合わせください | 募集終了 | 検討リスト | |
![]() | 7階 | 231.44坪 | お問い合わせください | 募集終了 | 検討リスト | |
![]() | 8階 | 129.49坪 | お問い合わせください | 募集終了 | 検討リスト | |
![]() | 8階 | 82.88坪 | お問い合わせください | 募集終了 | 検討リスト | |
![]() | 8階 | 132.62坪 | お問い合わせください | 募集終了 | 検討リスト | |
![]() | 8階 | 132.62坪 | お問い合わせください | 募集終了 | 検討リスト | |
![]() | 8階 | 35.71坪 | お問い合わせください | 募集終了 | 検討リスト | |
![]() | 9階 | 336.17坪 | お問い合わせください | 募集終了 | 検討リスト | |
![]() | 9階 | 206.68坪 | お問い合わせください | 募集終了 | 検討リスト | |
![]() | 9階 | 67.13坪 | お問い合わせください | 募集終了 | 検討リスト | |
![]() | 9階 | 13.83坪 | お問い合わせください | 募集終了 | 検討リスト |
東京ファッションタウン(TFTビル東館) が選ばれる理由
■ 圧倒的な「効率性」:都内最大級のフロアプレート
1フロア2,500坪という広大な面積は、部署間の物理的な壁を取り払い、コミュニケーションを活性化させます。エレベーター移動のロスを最小限に抑え、組織の機動力を極限まで高めます。
■ 最高峰の「安全性」:止まらないビジネスを支えるBCP
災害に強いまちづくりがなされた有明の中でも、スポットネットワーク受電、特高変電設備、非常用発電機を備えた当ビルは、ITインフラや重要拠点を置く企業にとって「安全」という何物にも代えがたい価値を提供します。
■ 究極の「快適性」:ビル内エコシステムの完成度
クリニック、保育園、郵便局、そして多彩なレストラン。働く人の生活を支える全てのインフラがビル内に凝縮されています。この充実したアメニティは、人材の採用力強化と従業員のエンゲージメント向上に直接寄与します。
近くの物件紹介
江東区のエリア
近くの駅
| 取扱態様 | 仲介 |
|---|---|
| 取扱会社 | 株式会社アドマイアー 東京都中央区日本橋3-2-3ユニバース第1ビル2F TEL. 03-5204-1031 宅地建物取引業免許 東京都知事(3)第94663号 マンション管理業免許 国土交通大臣(2)第034224号 賃貸住宅管理業免許 国土交通大臣(01)第005938号 |

















































