有明セントラルタワー 17階 357.40坪(江東区、有明、東京ビッグサイト、国際展示場)
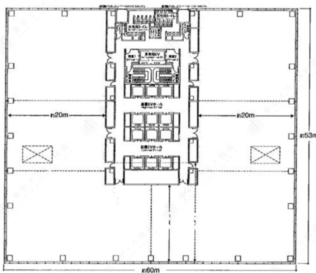
有明セントラルタワーは、東京ビッグサイト駅徒歩4分、国際展示場駅徒歩5分、有明駅徒歩4分の好立地に位置する2011年竣工のオフィスビルです。基準階約750坪の大型整形フロアに加え、天井高2,800mm、OAフロア対応などレイアウト自由度の高い仕様が特徴です。エレベーターは14基設置し、混雑を抑えた効率的な動線を確保。制震構造と充実した設備により、幅広い業種に対応できる快適なワークプレイスを提供します。
| 賃料 | - 最新の募集条件を問い合わせる |
|---|---|
| 所在地 | 東京都江東区有明 |
| 入居可能日 | 応相談 |
| 最寄り駅 | 東京ビッグサイト駅徒歩4分、有明駅徒歩4分 |
募集終了
| 種別(用途) | 事務所 |
|---|---|
| 階数 | 17階 |
| 部屋番号 | 17F |
| 面積 | 357.40坪 |
| 契約形態・期間 | 普通借家 |
| 空調方式 | セントラル空調 |
| 床仕様 | OAフロア タイルカーペット |
| 天井高 | 2,800mm |
| フロア特徴 | 基準階100坪以上の分割区画、 トイレ男女別 |
※月額費用、坪単価ともに税別の価格です
有明セントラルタワー 17階 は現在募集がありません。 (最終確認日: 2023年4月21日)
この物件の最新状況のご確認は、下記の問合せフォームをご利用ください。
この物件の最新状況のご確認は、下記の問合せフォームをご利用ください。
有明セントラルタワー の情報
- 所在地
- 東京都江東区有明3-7-18
- 最寄り駅
- 東京ビッグサイト駅徒歩4分、有明駅徒歩4分、国際展示場駅徒歩5分
- 竣工
- 2011年
- 規模
- 地上20階・地下1階
- 構造
- S造・SRC造併用
- 耐震基準
- 新耐震基準適合・制震構造
- セキュリティ
- 機械警備(24時間監視)
- エントランス
- 平日開放
- エレベーター総数
- 14基
- 駐車場設備
- 有(平置き257台)
- 設備
- 非接触ICカード、 24時間(要ICカード)
有明セントラルタワー の募集区画 (総募集面積 2,117.37坪)
| 図面 | 階数 | 坪数 | 月額費用 | 坪単価 | 入居可能日 | |
|---|---|---|---|---|---|---|
![]() | 6階 | 329.98坪 | お問い合わせください | 即時 | 検討リスト お問い合わせ | |
![]() | 7階 | 210.48坪 | お問い合わせください | 即時 | 検討リスト お問い合わせ | |
![]() | 8階 | 375.47坪 | お問い合わせください | 即時 | 検討リスト お問い合わせ | |
![]() | 10階 | 119.86坪 | お問い合わせください | 即時 | 検討リスト お問い合わせ | |
![]() | 10階 | 119.86坪 | お問い合わせください | 即時 | 検討リスト お問い合わせ | |
![]() | 15階 | 750.94坪 | お問い合わせください | 2026/3/1 | 検討リスト お問い合わせ | |
![]() | 18階 | 210.78坪 | お問い合わせください | 2026/1/1 | 検討リスト お問い合わせ |
※月額費用、坪単価 ともに共益費込・税別の価格です
有明セントラルタワー の内装イメージ
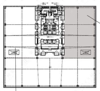
基準階約750坪の整形フロアは、天井高2,800mm、OAフロア、床荷重対応のスペックを備え、設備導入やレイアウトの自由度が高い空間です。エレベーターは14基を設置し、縦移動の効率を高めた設計となっています。共用部には整えられたエントランスホールや駐車場があり、車でのアクセスにも優れています。制震構造による安心感と、周辺施設との連携による利便性を兼ね備えた快適なビジネス環境を提供するオフィスビルです。













有明セントラルタワー の募集終了区画
| 図面 | 階数 | 坪数 | 月額費用 | 坪単価 | 入居可能日 | |
|---|---|---|---|---|---|---|
![]() | 2階 | 36.85坪 | お問い合わせください | 募集終了 | 検討リスト | |
![]() | 6階 | 210.48坪 | お問い合わせください | 募集終了 | 検討リスト | |
![]() | 6階 | 119.86坪 | お問い合わせください | 募集終了 | 検討リスト | |
![]() | 6階 | 90.63坪 | お問い合わせください | 募集終了 | 検討リスト | |
![]() | 9階 | 375.47坪 | お問い合わせください | 募集終了 | 検討リスト | |
![]() | 10階 | 750.94坪 | お問い合わせください | 募集終了 | 検討リスト | |
![]() | 11階 | 750.94坪 | お問い合わせください | 募集終了 | 検討リスト | |
![]() | 12階 | 750.94坪 | お問い合わせください | 募集終了 | 検討リスト | |
![]() | 13階 | 749.00坪 | お問い合わせください | 募集終了 | 検討リスト | |
![]() | 14階 | 749.00坪 | お問い合わせください | 募集終了 | 検討リスト | |
![]() | 16階 | 119.86坪 | お問い合わせください | 募集終了 | 検討リスト | |
![]() | 16階 | 119.87坪 | お問い合わせください | 募集終了 | 検討リスト | |
![]() | 16階 | 210.48坪 | お問い合わせください | 募集終了 | 検討リスト | |
![]() | 16階 | 90.63坪 | お問い合わせください | 募集終了 | 検討リスト | |
![]() | 16階 | 210.49坪 | お問い合わせください | 募集終了 | 検討リスト | |
![]() | 17階 | 210.78坪 | お問い合わせください | 募集終了 | 検討リスト | |
![]() | 17階 | 119.86坪 | お問い合わせください | 募集終了 | 検討リスト | |
![]() | 17階 | 778.96坪 | お問い合わせください | 募集終了 | 検討リスト | |
![]() | 17階 | 357.40坪 | お問い合わせください | 募集終了 | 検討リスト | |
![]() | 17階 | 210.78坪 | お問い合わせください | 募集終了 | 検討リスト | |
![]() | 18階 | 778.96坪 | お問い合わせください | 募集終了 | 検討リスト | |
![]() | 19階 | 389.48坪 | お問い合わせください | 募集終了 | 検討リスト | |
![]() | 20階 | 568.17坪 | お問い合わせください | 募集終了 | 検討リスト | |
![]() | 20階 | 210.78坪 | お問い合わせください | 募集終了 | 検討リスト |
近くの物件紹介
江東区のエリア
近くの駅
| 取扱態様 | 仲介 |
|---|---|
| 取扱会社 | 株式会社アドマイアー 東京都中央区日本橋3-2-3ユニバース第1ビル2F TEL. 03-5204-1031 宅地建物取引業免許 東京都知事(3)第94663号 マンション管理業免許 国土交通大臣(2)第034224号 賃貸住宅管理業免許 国土交通大臣(01)第005938号 |





































