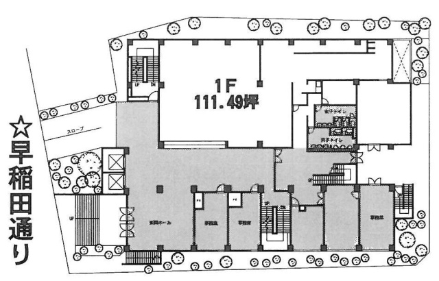
早稲田13時ホール 1階 111.49坪(新宿区、高田馬場、西早稲田)
募集終了
| 種別(用途) | 事務所 |
|---|---|
| 階数 | 1階 |
| 部屋番号 | 1F |
| 面積 | 111.49坪 |
| 契約形態・期間 | 普通借家 2年 |
| 空調方式 | 要確認 |
| 床仕様 | 要確認 |
| 天井高 | 要確認 |
| フロア特徴 | 基準階100坪以上の分割区画、 塾・スクール、 トイレ男女別 |
※月額費用、坪単価ともに税別の価格です
早稲田13時ホール 1階 は現在募集がありません。
この物件の最新状況のご確認は、下記の問合せフォームをご利用ください。
この物件の最新状況のご確認は、下記の問合せフォームをご利用ください。
早稲田13時ホール の情報
- 所在地
- 東京都新宿区高田馬場4-9-9
- 最寄り駅
- 高田馬場駅徒歩1分、西早稲田駅徒歩12分
- 竣工
- 1975年
- 規模
- 地上7階・地下2階
- 構造
- SRC造(鉄骨鉄筋コンクリート造)
- エントランス
- 平日開放
- エレベーター総数
- 2基
- 駐車場設備
- 要確認
早稲田13時ホール の募集区画 (総募集面積 0.00坪)
現在募集はありません。
早稲田13時ホール の内装イメージ








早稲田13時ホール の募集終了区画
近くの物件紹介
新宿区のエリア
近くの駅
| 取扱態様 | 仲介 |
|---|---|
| 取扱会社 | 株式会社アドマイアー 東京都中央区日本橋3-2-3ユニバース第1ビル2F TEL. 03-5204-1031 宅地建物取引業免許 東京都知事(3)第94663号 マンション管理業免許 国土交通大臣(2)第034224号 賃貸住宅管理業免許 国土交通大臣(01)第005938号 |







































