サンシャイン60 11階 114.21坪(豊島区東池袋・向原)
サンシャイン60は、池袋エリアのランドマークとして君臨する、国内屈指の知名度を誇る超高層賃貸オフィスビルです。地上60階の圧倒的な存在感は、入居すること自体が企業のステータスとなり、リクルーティングにおいても強力なブランド力を発揮します。
アクセス面では、東京メトロ有楽町線「東池袋駅」から地下通路で直結。天候に左右されず、雨の日でもスマートに出社できる利便性は、従業員の方々から高い支持を得ています。また、巨大ターミナル「池袋駅」からも徒歩8分という距離にあり、都内全域への機動力は抜群です。
2015年の大規模リニューアルを経て、共用部や水回りは最新のオフィスビルに引けを取らない美しさと機能性を備えています。さらに、このビル最大の特徴は「充実したテナントサポート施設」にあります。リーズナブルに利用できる専用社員食堂、プレゼンテーションに最適な貸会議室、眺望を楽しみながらリフレッシュできる専用スペースなど、大規模ビルならではの恩恵を十分に享受できます。
セキュリティ面では、防災センターによる24時間体制の監視と非接触ICカードリーダーにより、高度な安全性を確保。サンシャインシティ内には銀行、郵便局、無数のレストランやショップが揃っており、ビジネスに必要な全ての要素がこの一画で完結します。
アクセス面では、東京メトロ有楽町線「東池袋駅」から地下通路で直結。天候に左右されず、雨の日でもスマートに出社できる利便性は、従業員の方々から高い支持を得ています。また、巨大ターミナル「池袋駅」からも徒歩8分という距離にあり、都内全域への機動力は抜群です。
2015年の大規模リニューアルを経て、共用部や水回りは最新のオフィスビルに引けを取らない美しさと機能性を備えています。さらに、このビル最大の特徴は「充実したテナントサポート施設」にあります。リーズナブルに利用できる専用社員食堂、プレゼンテーションに最適な貸会議室、眺望を楽しみながらリフレッシュできる専用スペースなど、大規模ビルならではの恩恵を十分に享受できます。
セキュリティ面では、防災センターによる24時間体制の監視と非接触ICカードリーダーにより、高度な安全性を確保。サンシャインシティ内には銀行、郵便局、無数のレストランやショップが揃っており、ビジネスに必要な全ての要素がこの一画で完結します。
| 賃料 | - 豊島区の平均坪単価: 21,335円(参考) 賃料を確認する(無料・1分) |
|---|---|
| 所在地 | 東京都豊島区東池袋 |
| 入居可能日 | 応相談 |
| 最寄り駅 | 東池袋駅徒歩3分、池袋駅徒歩8分 |
募集終了
| 種別(用途) | 事務所 |
|---|---|
| 階数 | 11階 |
| 部屋番号 | 北 |
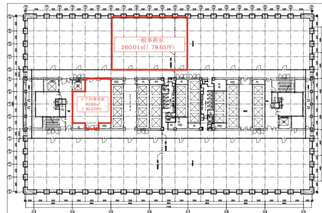
| 面積 | 114.21坪 |
| 契約形態・期間 | 普通借家 |
| 空調方式 | 要確認 |
| 床仕様 | 要確認 |
| 天井高 | 要確認 |
| フロア特徴 | トイレ男女別、 基準階100坪以上の分割区画 |
※月額費用、坪単価ともに税別の価格です
サンシャイン60 11階 は現在募集がありません。
この物件の最新状況のご確認は、下記の問合せフォームをご利用ください。
この物件の最新状況のご確認は、下記の問合せフォームをご利用ください。
サンシャイン60 の情報
- 所在地
- 東京都豊島区東池袋3-1-1
- 最寄り駅
- 東池袋駅徒歩3分、池袋駅徒歩8分、向原駅徒歩10分
- 竣工
- 1978年
- リニューアル済み
- 2015年大規模リニューアル済み
- 規模
- 地上60階・地下4階
- 構造
- 鉄骨造(S造)
- セキュリティ
- 機械警備・有人管理(24時間体制)
- エントランス
- 平日開放
- エレベーター総数
- 37基(人荷用エレベーター3台)
- 駐車場設備
- 有(1,800台収容の大規模地下駐車場)
- 設備
- 非接触ICカード、 貸会議室、 リフレッシュコーナー、 トイレ男女別
賃料相場
89件のデータ
サンシャイン60 の募集区画 (総募集面積 1,666.21坪)
| 図面 | 階数 | 坪数 | 月額費用 | 坪単価 | 入居可能日 | |
|---|---|---|---|---|---|---|
![]() | 19階 | 13.80坪 | 賃料を確認する (無料・1分) | 即時 | 検討リスト お問い合わせ | |
![]() | 19階 | 293.97坪 | 賃料を確認する (無料・1分) | 2026/11 | 検討リスト お問い合わせ | |
![]() | 20階 | 293.97坪 | 賃料を確認する (無料・1分) | 即時 | 検討リスト お問い合わせ | |
![]() | 22階 | 30.22坪 | 賃料を確認する (無料・1分) | 即時 | 検討リスト お問い合わせ | |
![]() | 22階 | 293.97坪 | 賃料を確認する (無料・1分) | 即時 | 検討リスト お問い合わせ | |
![]() | 23階 | 293.97坪 | 賃料を確認する (無料・1分) | 2026/11 | 検討リスト お問い合わせ | |
![]() | 26階 | 13.80坪 | 賃料を確認する (無料・1分) | 2026/7/1 | 検討リスト お問い合わせ | |
![]() | 26階 | 29.72坪 | 賃料を確認する (無料・1分) | 2026/7/1 | 検討リスト お問い合わせ | |
![]() | 26階 | 293.97坪 | 賃料を確認する (無料・1分) | 2026/7/1 | 検討リスト お問い合わせ | |
![]() | 39階 | 20.83坪 | 賃料を確認する (無料・1分) | 2026/11/1 | 検討リスト お問い合わせ | |
![]() | 39階 | 87.99坪 | 賃料を確認する (無料・1分) | 2026/11/1 | 検討リスト お問い合わせ |
※月額費用、坪単価 ともに共益費込・税別の価格です
サンシャイン60 の内装イメージ
募集中のフロアは、天井高2,600mm(一部2,530mm)を確保し、OAフロアを完備した現代的な執務空間です。広大な基準階は約600坪に及びますが、30坪といった小規模な分割区画も用意されており、企業の規模を問わずハイグレードな環境を享受できます。高層階からの眺望は圧巻で、都心のパノラマを背景に創造的なビジネスをサポートします。






サンシャイン60 の募集終了区画
| 図面 | 階数 | 坪数 | 月額費用 | 坪単価 | 入居可能日 | |
|---|---|---|---|---|---|---|
![]() | 2階 | 226.62坪 | - | 募集終了 | 検討リスト | |
![]() | 9階 | 101.10坪 | - | 募集終了 | 検討リスト | |
![]() | 9階 | 293.97坪 | - | 募集終了 | 検討リスト | |
![]() | 9階 | 140.43坪 | - | 募集終了 | 検討リスト | |
![]() | 9階 | 65.55坪 | - | 募集終了 | 検討リスト | |
![]() | 10階 | 114.21坪 | - | 募集終了 | 検討リスト | |
![]() | 10階 | 52.44坪 | - | 募集終了 | 検討リスト | |
![]() | 11階 | 39.33坪 | - | 募集終了 | 検討リスト | |
![]() | 11階 | 114.21坪 | - | 募集終了 | 検討リスト | |
![]() | 12階 | 293.97坪 | - | 募集終了 | 検討リスト | |
![]() | 12階 | 166.65坪 | - | 募集終了 | 検討リスト | |
![]() | 13階 | 293.97坪 | - | 募集終了 | 検討リスト | |
![]() | 13階 | 293.97坪 | - | 募集終了 | 検討リスト | |
![]() | 14階 | 293.97坪 | - | 募集終了 | 検討リスト | |
![]() | 14階 | 293.97坪 | - | 募集終了 | 検討リスト | |
![]() | 15階 | 74.88坪 | - | 募集終了 | 検討リスト | |
![]() | 15階 | 293.97坪 | - | 募集終了 | 検討リスト | |
![]() | 15階 | 153.54坪 | - | 募集終了 | 検討リスト | |
![]() | 15階 | 74.88坪 | - | 募集終了 | 検討リスト | |
![]() | 16階 | 198.56坪 | - | 募集終了 | 検討リスト | |
![]() | 16階 | 219.08坪 | - | 募集終了 | 検討リスト | |
![]() | 17階 | 293.97坪 | - | 募集終了 | 検討リスト | |
![]() | 17階 | 293.97坪 | - | 募集終了 | 検討リスト | |
![]() | 18階 | 293.97坪 | - | 募集終了 | 検討リスト | |
![]() | 18階 | 293.97坪 | - | 募集終了 | 検討リスト | |
![]() | 19階 | 205.98坪 | - | 募集終了 | 検討リスト | |
![]() | 19階 | 39.00坪 | - | 募集終了 | 検討リスト | |
![]() | 19階 | 114.21坪 | - | 募集終了 | 検討リスト | |
![]() | 20階 | 13.80坪 | - | 募集終了 | 検討リスト | |
![]() | 21階 | 293.97坪 | - | 募集終了 | 検討リスト | |
![]() | 21階 | 293.97坪 | - | 募集終了 | 検討リスト | |
![]() | 21階 | 13.80坪 | - | 募集終了 | 検討リスト | |
![]() | 24階 | 30.22坪 | - | 募集終了 | 検討リスト | |
![]() | 24階 | 166.65坪 | - | 募集終了 | 検討リスト | |
![]() | 24階 | 78.65坪 | - | 募集終了 | 検討リスト | |
![]() | 24階 | 293.97坪 | - | 募集終了 | 検討リスト | |
![]() | 25階 | 192.87坪 | - | 募集終了 | 検討リスト | |
![]() | 25階 | 101.10坪 | - | 募集終了 | 検討リスト | |
![]() | 25階 | 13.80坪 | - | 募集終了 | 検討リスト | |
![]() | 25階 | 91.76坪 | - | 募集終了 | 検討リスト | |
![]() | 26階 | 29.72坪 | - | 募集終了 | 検討リスト | |
![]() | 26階 | 293.97坪 | - | 募集終了 | 検討リスト | |
![]() | 27階 | 293.97坪 | - | 募集終了 | 検討リスト | |
![]() | 27階 | 293.97坪 | - | 募集終了 | 検討リスト | |
![]() | 29階 | 13.80坪 | - | 募集終了 | 検討リスト | |
![]() | 29階 | 293.97坪 | - | 募集終了 | 検討リスト | |
![]() | 29階 | 13.80坪 | - | 募集終了 | 検討リスト | |
![]() | 32階 | 293.97坪 | - | 募集終了 | 検討リスト | |
![]() | 32階 | 293.97坪 | - | 募集終了 | 検討リスト | |
![]() | 34階 | 293.97坪 | - | 募集終了 | 検討リスト | |
![]() | 34階 | 293.97坪 | - | 募集終了 | 検討リスト | |
![]() | 36階 | 140.43坪 | - | 募集終了 | 検討リスト | |
![]() | 37階 | 52.44坪 | - | 募集終了 | 検討リスト | |
![]() | 38階 | 293.97坪 | - | 募集終了 | 検討リスト | |
![]() | 39階 | 101.10坪 | - | 募集終了 | 検討リスト | |
![]() | 39階 | 13.80坪 | - | 募集終了 | 検討リスト | |
![]() | 39階 | 293.97坪 | - | 募集終了 | 検討リスト | |
![]() | 40階 | 293.97坪 | - | 募集終了 | 検討リスト | |
![]() | 43階 | 78.65坪 | - | 募集終了 | 検討リスト | |
![]() | 45階 | 179.76坪 | - | 募集終了 | 検討リスト | |
![]() | 45階 | 293.97坪 | - | 募集終了 | 検討リスト | |
![]() | 45階 | 114.21坪 | - | 募集終了 | 検討リスト | |
![]() | 46階 | 293.97坪 | - | 募集終了 | 検討リスト | |
![]() | 46階 | 293.97坪 | - | 募集終了 | 検討リスト | |
![]() | 47階 | 293.97坪 | - | 募集終了 | 検討リスト | |
![]() | 48階 | 30.22坪 | - | 募集終了 | 検討リスト | |
![]() | 48階 | 166.65坪 | - | 募集終了 | 検討リスト | |
![]() | 48階 | 87.99坪 | - | 募集終了 | 検討リスト | |
![]() | 48階 | 30.25坪 | - | 募集終了 | 検討リスト | |
![]() | 49階 | 140.43坪 | - | 募集終了 | 検討リスト | |
![]() | 49階 | 153.54坪 | - | 募集終了 | 検討リスト | |
![]() | 49階 | 293.97坪 | - | 募集終了 | 検討リスト | |
![]() | 49階 | 13.80坪 | - | 募集終了 | 検討リスト | |
![]() | 49階 | 30.25坪 | - | 募集終了 | 検討リスト | |
![]() | 54階 | 61.78坪 | - | 募集終了 | 検討リスト | |
![]() | 56階 | 91.76坪 | - | 募集終了 | 検討リスト | |
![]() | 56階 | 293.97坪 | - | 募集終了 | 検討リスト | |
![]() | 57階 | 293.97坪 | - | 募集終了 | 検討リスト | |
![]() | 57階 | 153.54坪 | - | 募集終了 | 検討リスト |
近くの物件紹介
豊島区のエリア
近くの駅
| 取扱態様 | 仲介 |
|---|---|
| 取扱会社 | 株式会社アドマイアー 東京都中央区日本橋3-2-3ユニバース第1ビル2F TEL. 03-5204-1031 宅地建物取引業免許 東京都知事(3)第94663号 マンション管理業免許 国土交通大臣(2)第034224号 賃貸住宅管理業免許 国土交通大臣(01)第005938号 |













































