南大塚(豊島区)の賃貸オフィス・貸事務所情報
山手線「大塚駅」の南側に広がる、整然としたオフィス街です。駅前広場(TRAMパル大塚)が整備され、新しいビルと昭和レトロな商店街が共存する、利便性の高い穴場エリアです。
検索結果 14 件
並び替え
South新大塚ビル(豊島区南大塚・新大塚・大塚駅前)
- 所在地
- 東京都豊島区南大塚2-25-15
- 最寄り駅
- 新大塚駅徒歩1分、大塚駅徒歩7分、大塚駅前駅徒歩7分
- 竣工
- 1993年
- 規模
- 地上12階・地下1階
- 耐震基準
- 新耐震基準適合
- セキュリティ
- 機械警備・有人管理(24時間体制)
- 駐車場設備
- 有(W1,850×L5,050×H1,550m 1,700kg以内)
- 設備
- トイレ男女別
South新大塚ビルは、東京メトロ丸ノ内線「新大塚」駅から徒歩1分という、一分一秒を惜しむビジネスパーソンにとって理想的な立地に聳える賃貸オフィスビルです。春日通り沿いの角地に位置し、ガラスカーテンウォールが目を引く外観は、周辺エリアでも屈指の視認性と存在感を誇ります。JR山手線「大塚」駅も徒歩7分と近く、都内主要駅へのダブルアクセスが可能です。
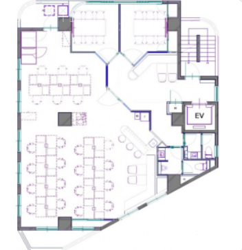
今回募集の2階(183.09坪)は、100席程度のデスク配置が容易な広大な空間。天井高は2,700mmとゆとりがあり、大きな窓面からは自然光がたっぷりと差し込みます。空調はセントラルと個別の併用式を採用しており、ビル全体の安定した空調と、エリアごとの細やかな調整を両立。OAフロア仕様により、大規模な配線工事もスムーズに行えます。
ビル内には3基のエレベーターが完備されており、フロア移動のストレスを軽減。1階には駐車場、隣接地には飲食店、徒歩1分圏内にコンビニと、ビジネスインフラも完璧に整っています。24時間稼働を支える機械警備も導入されており、セキュリティ面も安心。新大塚エリアで「駅近・大規模・高品質」な拠点を求める企業様にとって、これ以上ない選択肢となるはずです。
今回募集の2階(183.09坪)は、100席程度のデスク配置が容易な広大な空間。天井高は2,700mmとゆとりがあり、大きな窓面からは自然光がたっぷりと差し込みます。空調はセントラルと個別の併用式を採用しており、ビル全体の安定した空調と、エリアごとの細やかな調整を両立。OAフロア仕様により、大規模な配線工事もスムーズに行えます。
ビル内には3基のエレベーターが完備されており、フロア移動のストレスを軽減。1階には駐車場、隣接地には飲食店、徒歩1分圏内にコンビニと、ビジネスインフラも完璧に整っています。24時間稼働を支える機械警備も導入されており、セキュリティ面も安心。新大塚エリアで「駅近・大規模・高品質」な拠点を求める企業様にとって、これ以上ない選択肢となるはずです。
South新大塚ビル の募集区画 (総募集面積 106.38坪)
| 図面 | 階数 | 坪数 | 月額費用 | 坪単価 | 入居可能日 | |
|---|---|---|---|---|---|---|
![]() | 5階 | 106.38坪 | 賃料を確認する (無料・1分) | 2026/7/22 | 検討リスト お問い合わせ |
※月額費用、坪単価 ともに共益費込・税別の価格です
藤枝ビル(豊島区南大塚・新大塚・大塚駅前・東池袋)
- 所在地
- 東京都豊島区南大塚3-1-6
- 最寄り駅
- 新大塚駅徒歩2分、大塚駅徒歩7分、大塚駅前駅徒歩6分
- 竣工
- 1988年
- 規模
- 地上7階
- 耐震基準
- 新耐震基準適合
- セキュリティ
- 機械警備(24時間監視)
- 駐車場設備
- 有
- 設備
- トイレ男女別
藤枝ビルは、丸ノ内線「新大塚駅」から徒歩2分、視認性に優れた「春日通り」沿いに建つ賃貸オフィスビルです。池袋駅まで1駅という機動力を持ちながら、落ち着いた周辺環境を兼ね備えた南大塚エリアの優良拠点です。
1988年竣工の建物は新耐震基準に適合しており、ベージュのタイル張りの外観は堅実で誠実な企業イメージを演出します。特筆すべきは、中規模ビルながら「エレベーターが2基」設置されている点です。朝のラッシュ時や外出の多い時間帯でも、待ち時間のストレスなくスムーズな移動を実現します。
基準階は約36坪で、室内には個別空調、そして男女別トイレを完備。水回りがコンパクトにまとめられているため、執務スペースを効率的にレイアウトすることが可能です。窓面が広く、室内は明るく開放的な雰囲気に包まれています。
ビル周辺の利便性は極めて高く、道路を挟んで向かい側にはマルエツプチやマツモトキヨシがあり、日用品の買い物や備品の調達に困ることはありません。大通り沿いの分かりやすさと、裏手に広がる閑静な環境が同居する「藤枝ビル」は、集中して業務に取り組みたい企業様に最適な選択肢です。
1988年竣工の建物は新耐震基準に適合しており、ベージュのタイル張りの外観は堅実で誠実な企業イメージを演出します。特筆すべきは、中規模ビルながら「エレベーターが2基」設置されている点です。朝のラッシュ時や外出の多い時間帯でも、待ち時間のストレスなくスムーズな移動を実現します。
基準階は約36坪で、室内には個別空調、そして男女別トイレを完備。水回りがコンパクトにまとめられているため、執務スペースを効率的にレイアウトすることが可能です。窓面が広く、室内は明るく開放的な雰囲気に包まれています。
ビル周辺の利便性は極めて高く、道路を挟んで向かい側にはマルエツプチやマツモトキヨシがあり、日用品の買い物や備品の調達に困ることはありません。大通り沿いの分かりやすさと、裏手に広がる閑静な環境が同居する「藤枝ビル」は、集中して業務に取り組みたい企業様に最適な選択肢です。
藤枝ビル の募集区画 (総募集面積 36.10坪)
※月額費用、坪単価 ともに共益費込・税別の価格です
日個連会館(豊島区南大塚)
- 所在地
- 東京都豊島区南大塚1-2-12
- 最寄り駅
- 大塚駅徒歩9分
- 竣工
- 2010年
- 規模
- 地上8階
- 耐震基準
- 新耐震基準適合
- セキュリティ
- 機械警備(24時間監視)
- 駐車場設備
- 無
- 設備
- トイレ男女別、 貸会議室
大塚駅から徒歩9分。豊島区南大塚1丁目の落ち着いた事務環境に位置する「日個連会館」。2010年竣工、地上8階建の新耐震基準適合オフィスビルです。堅牢なRC構造を採用。本物件は1フロア1テナントの構成により、他テナントの干渉を抑えた自社専用の執務空間を確保可能です。室内には個別空調、OAフロア、男女別トイレを完備。さらに館内には貸会議室を備えており、来客対応や社内ミーティング等の多様なニーズを物理的にサポートします。24時間機械警備を整え、平日はエントランスを開放。南大塚エリアの信頼性と、2010年竣工の比較的新しいビル機能を重視する企業を支援します。
日個連会館 の募集区画 (総募集面積 22.50坪)
※月額費用、坪単価 ともに共益費込・税別の価格です
高原ビル(豊島区南大塚・新大塚)
- 所在地
- 東京都豊島区南大塚3-43-12
- 最寄り駅
- 大塚駅徒歩4分、新大塚駅徒歩4分
- 竣工
- 1984年
- 規模
- 地上7階
- 耐震基準
- 新耐震基準適合
- セキュリティ
- 機械警備(24時間監視)
- 駐車場設備
- 無
- 設備
- トイレ男女別
高原ビルは、山手線「大塚駅」と丸ノ内線「新大塚駅」のちょうど中間に位置し、どちらの駅からも徒歩4分でアクセスできる非常に利便性の高いオフィスビルです。池袋エリアへも1駅という機動力を持ちながら、落ち着いたビジネス環境を確保できます。
1984年竣工の本物件は、新耐震基準に適合。さらに2019年にはエレベーターのリニューアル工事を実施しており、入居企業様や来訪者がストレスなく利用できるよう配慮されています。ブラウンのタイルを纏った外観は、流行に左右されない安心感を与えます。
募集中の3階(25.17坪)は、奥行きのある長方形の間取り。柱が壁際に寄せられているため、デスクの並列配置やパーテーションによる空間区切りが非常にしやすい設計です。最大の特徴は、月額費用を抑えた「坪単価9,000円台」という設定。この立地でコストを最小限に抑えつつ、清潔感のある拠点を持てる点は大きな強みです。
ビルから徒歩1分の場所にはコンビニや「まいばすけっと」があり、ランチタイムや備品の買い出しにも困りません。コストパフォーマンスを重視しつつ、駅近の利便性と信頼性を求めるスタートアップや営業拠点に自信を持っておすすめできる一棟です。
1984年竣工の本物件は、新耐震基準に適合。さらに2019年にはエレベーターのリニューアル工事を実施しており、入居企業様や来訪者がストレスなく利用できるよう配慮されています。ブラウンのタイルを纏った外観は、流行に左右されない安心感を与えます。
募集中の3階(25.17坪)は、奥行きのある長方形の間取り。柱が壁際に寄せられているため、デスクの並列配置やパーテーションによる空間区切りが非常にしやすい設計です。最大の特徴は、月額費用を抑えた「坪単価9,000円台」という設定。この立地でコストを最小限に抑えつつ、清潔感のある拠点を持てる点は大きな強みです。
ビルから徒歩1分の場所にはコンビニや「まいばすけっと」があり、ランチタイムや備品の買い出しにも困りません。コストパフォーマンスを重視しつつ、駅近の利便性と信頼性を求めるスタートアップや営業拠点に自信を持っておすすめできる一棟です。
高原ビル の募集区画 (総募集面積 25.17坪)
※月額費用、坪単価 ともに共益費込・税別の価格です
大塚サウスコート(豊島区南大塚・向原・新大塚)
- 所在地
- 東京都豊島区南大塚3-51-5
- 最寄り駅
- 大塚駅徒歩3分、向原駅徒歩4分、新大塚駅徒歩7分
- 竣工
- 2020年
- 規模
- 地上5階
- 耐震基準
- 新耐震基準適合
- セキュリティ
- 機械警備(24時間監視)
- 駐車場設備
- 要確認
大塚サウスコート の募集区画 (総募集面積 15.86坪)
※月額費用、坪単価 ともに共益費込・税別の価格です
フサカビル(豊島区南大塚・新大塚・大塚駅前)
- 所在地
- 東京都豊島区南大塚3-44-11
- 最寄り駅
- 大塚駅徒歩2分、新大塚駅徒歩5分、大塚駅前駅徒歩2分
- 竣工
- 1969年
- 規模
- 地上7階
- セキュリティ
- 機械警備(24時間監視)
- 駐車場設備
- 無
- 設備
- トイレ男女別
フサカビルは、JR山手線大塚駅から徒歩2分という交通利便性に優れた賃貸オフィスです。複数路線が利用可能で、都内主要拠点への移動もスムーズに行えます。本物件は角地に立地しているため、二面からの採光が期待できる明るい執務空間が特徴です。また、ワンフロア1テナントの構成により、フロア内の独立性が高く、他社の視線を気にせず業務に専念できる環境が整っています。周辺には金融機関や飲食店が豊富に集積しており、日々の業務やランチ環境においても高い利便性を発揮する物件です。
フサカビル の募集区画 (総募集面積 50.39坪)
※月額費用、坪単価 ともに共益費込・税別の価格です
今井第5ビル(豊島区南大塚・大塚駅前・新大塚)
- 所在地
- 東京都豊島区南大塚3-52-10
- 最寄り駅
- 大塚駅徒歩3分、大塚駅前駅徒歩3分、新大塚駅徒歩6分
- 竣工
- 1971年
- 規模
- 地上6階
- セキュリティ
- 機械警備(24時間監視)
- 駐車場設備
- 無
今井第五ビルは、JR山手線「大塚駅」南口からわずか徒歩3分という、駅近の好立地に建つ賃貸オフィスビルです。
1971年竣工の地上6階建て。白を基調としたシンプルな外観は清潔感があり、角地に位置しているため、初めて来訪されるお客様にも説明しやすい視認性の高さが魅力です。
募集中の2階・4階(各30坪)は、ワンフロアを贅沢に一社で占有できるプラン。長方形に近い素直な形状の室内は、レイアウトの自由度が高く、角地ならではの2面採光により、明るく開放的なワークスペースを実現します。また、トイレや給湯スペースが貸室の外に集約されているため、30坪という面積を隅々まで執務スペースとして有効活用できるのが大きなメリットです。
周辺環境も非常に充実しており、同じ並びには「タリーズコーヒー」、徒歩1分圏内に「ローソン」があり、日々の休憩や買い出しに困ることはありません。大塚駅周辺の活気ある飲食店街も至近で、ランチ環境も抜群。利便性と効率性を重視し、コストパフォーマンスを追求する企業様に最適な、大塚エリアの隠れた優良拠点です。
1971年竣工の地上6階建て。白を基調としたシンプルな外観は清潔感があり、角地に位置しているため、初めて来訪されるお客様にも説明しやすい視認性の高さが魅力です。
募集中の2階・4階(各30坪)は、ワンフロアを贅沢に一社で占有できるプラン。長方形に近い素直な形状の室内は、レイアウトの自由度が高く、角地ならではの2面採光により、明るく開放的なワークスペースを実現します。また、トイレや給湯スペースが貸室の外に集約されているため、30坪という面積を隅々まで執務スペースとして有効活用できるのが大きなメリットです。
周辺環境も非常に充実しており、同じ並びには「タリーズコーヒー」、徒歩1分圏内に「ローソン」があり、日々の休憩や買い出しに困ることはありません。大塚駅周辺の活気ある飲食店街も至近で、ランチ環境も抜群。利便性と効率性を重視し、コストパフォーマンスを追求する企業様に最適な、大塚エリアの隠れた優良拠点です。
今井第5ビル の募集区画 (総募集面積 30.00坪)
※月額費用、坪単価 ともに共益費込・税別の価格です
NOVEL WORK Otsuka(豊島区南大塚・新大塚・大塚駅前)
- 所在地
- 東京都豊島区南大塚3-11-9
- 最寄り駅
- 新大塚駅徒歩4分、大塚駅徒歩5分、大塚駅前駅徒歩5分
- 竣工
- 1988年
- 規模
- 地上7階
- 耐震基準
- 新耐震基準適合
- セキュリティ
- 機械警備(24時間監視)
- 駐車場設備
- 無
- 設備
- 24時間(要ICカード)、 トイレ男女別、 リニューアル済み
NOVEL WORK Otsukaは、豊島区南大塚に位置する利便性の高い賃貸オフィスです。新大塚駅から徒歩4分、大塚駅から徒歩5分と複数路線が利用可能で、都内主要エリアへのスムーズなアクセスを実現します。2026年1月にリニューアル工事が完了した室内は、会議室やテレカンブース、執務用什器を備えたセットアップ仕様となっており、入居後すぐに業務を開始できる環境が整っています。原状回復義務がないプランも提示されており、移転コストの最適化を検討中の企業に好適な物件です。
NOVEL WORK Otsuka の募集区画 (総募集面積 146.07坪)
| 図面 | 階数 | 坪数 | 月額費用 | 坪単価 | 入居可能日 | |
|---|---|---|---|---|---|---|
![]() | 7階 | 33.12坪 | 賃料を確認する (無料・1分) | 即時 | 検討リスト お問い合わせ | |
![]() | 3階 | 37.65坪 | 賃料を確認する (無料・1分) | 即時 | 検討リスト お問い合わせ | |
![]() | 4階 | 37.65坪 | 賃料を確認する (無料・1分) | 即時 | 検討リスト お問い合わせ | |
![]() | 2階 | 37.65坪 | 賃料を確認する (無料・1分) | 即時 | 検討リスト お問い合わせ |
※月額費用、坪単価 ともに共益費込・税別の価格です
ル・シール南大塚ビル(豊島区南大塚・新大塚・向原)
編集中
- 所在地
- 東京都豊島区南大塚3-22-13
- 最寄り駅
- 新大塚駅徒歩6分、向原駅徒歩3分
- 竣工
- 1981年
- 規模
- 地上6階
- セキュリティ
- 機械警備(24時間監視)
- 駐車場設備
- 有
ルシール南大塚は、山手線「大塚駅」から緩やかな歩みで到着できる、落ち着きと利便性が調和した南大塚エリアの物件です。ベージュとブラウンのタイルが施された温かみのある外観に、バルコニーの十字デザインが独自の個性を添えています。
今回募集の1階区画(28.63坪)は、角地に位置する路面スペースとしてのポテンシャルが魅力です。事務所としての活用はもちろん、その視認性の高さを活かした店舗としての利用にも適しています。敷地内には駐車場も備わっており(要確認)、来客対応や営業車両の運用が必要な企業様にも心強いスペックを誇ります。
周辺環境は、大塚駅前の賑わいと、物件周辺の穏やかな空気が絶妙なバランスを保っています。駅ビルの「アトレヴィ大塚」をはじめ、銀行や郵便局、多彩な飲食店が徒歩圏内に揃い、スタッフのランチや日々の事務作業も非常にスムーズです。3路線4駅が利用可能な機動力と、地域に根ざした親しみやすさを併せ持つこの場所で、新たなビジネスをスタートしませんか。
今回募集の1階区画(28.63坪)は、角地に位置する路面スペースとしてのポテンシャルが魅力です。事務所としての活用はもちろん、その視認性の高さを活かした店舗としての利用にも適しています。敷地内には駐車場も備わっており(要確認)、来客対応や営業車両の運用が必要な企業様にも心強いスペックを誇ります。
周辺環境は、大塚駅前の賑わいと、物件周辺の穏やかな空気が絶妙なバランスを保っています。駅ビルの「アトレヴィ大塚」をはじめ、銀行や郵便局、多彩な飲食店が徒歩圏内に揃い、スタッフのランチや日々の事務作業も非常にスムーズです。3路線4駅が利用可能な機動力と、地域に根ざした親しみやすさを併せ持つこの場所で、新たなビジネスをスタートしませんか。
ル・シール南大塚ビル の募集区画 (総募集面積 28.63坪)
※月額費用、坪単価 ともに共益費込・税別の価格です
増原ビル(豊島区南大塚・新大塚)
編集中
- 所在地
- 東京都豊島区南大塚3-11-9
- 最寄り駅
- 大塚駅徒歩3分、新大塚駅徒歩3分
- 竣工
- 1983年
- 規模
- 地上5階
- 耐震基準
- 新耐震基準適合
- 駐車場設備
- 要確認
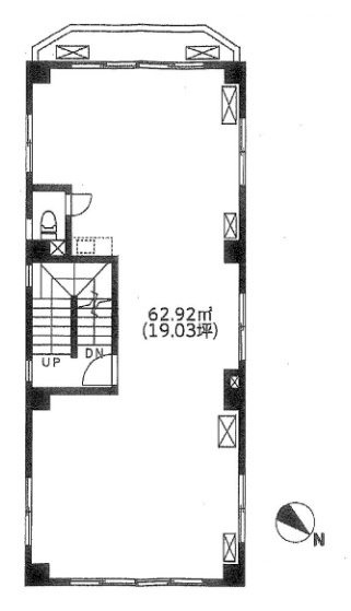
増原ビル の募集区画 (総募集面積 19.03坪)
※月額費用、坪単価 ともに共益費込・税別の価格です
ヒサビル(豊島区南大塚・新大塚)
編集中
- 所在地
- 東京都豊島区南大塚2-39-11
- 最寄り駅
- 大塚駅徒歩3分、新大塚駅徒歩6分
- 竣工
- 1988年
- 規模
- 地上8階・地下1階
- 耐震基準
- 新耐震基準適合
- 駐車場設備
- 要確認
ヒサビル の募集区画 (総募集面積 8.52坪)
※月額費用、坪単価 ともに共益費込・税別の価格です
新大塚駅(丸ノ内線)方面へ向かう広い通り沿いに、しっかりとしたオフィスビルが林立しています。池袋まで1駅という立地ながら、賃料相場は池袋よりも抑えられており、コストパフォーマンスが抜群です。都電荒川線も利用でき、のどかな雰囲気とビジネスの機能性がバランス良く整っています。

































































