東(渋谷区)の賃貸オフィス・貸事務所情報
渋谷、恵比寿、表参道のトライアングルゾーンの中心に位置するエリアです。明治通り沿いに広がり、どの駅からも少し歩きますが、その分賃料が割安で、隠れた人気オフィス街です。
検索結果 38 件
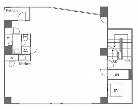
渋谷イースト(SHIBUYA EAST)ビル(渋谷区東)
- 所在地
- 東京都渋谷区東1-26-30
- 最寄り駅
- 渋谷駅徒歩10分
- 竣工
- 1993年
- 規模
- 地上9階
- 耐震基準
- 新耐震基準適合
- セキュリティ
- 機械警備(24時間監視)
- 駐車場設備
- 無
- 設備
- トイレ男女別
渋谷イースト(SHIBUYA EAST)ビル の募集区画 (総募集面積 43.67坪)
| 図面 | 階数 | 坪数 | 月額費用 | 坪単価 | 入居可能日 | |
|---|---|---|---|---|---|---|
![]() | 2階 | 43.67坪 | 賃料を確認する (無料・1分) | 2026/7/1 | 検討リスト お問い合わせ |
※月額費用、坪単価 ともに共益費込・税別の価格です
尚豊ビル(渋谷区東・表参道・代官山)
- 所在地
- 東京都渋谷区東1-4-1
- 最寄り駅
- 渋谷駅徒歩9分、表参道駅徒歩13分、代官山駅徒歩15分
- 竣工
- 1971年
- 規模
- 地上7階・地下1階
- セキュリティ
- 機械警備(24時間監視)
- 駐車場設備
- 要確認
尚豊ビル の募集区画 (総募集面積 14.50坪)
※月額費用、坪単価 ともに共益費込・税別の価格です
JP-BASE渋谷(渋谷区東・恵比寿・代官山)
- 所在地
- 東京都渋谷区東2-17-9
- 最寄り駅
- 恵比寿駅徒歩9分、代官山駅徒歩11分、渋谷駅徒歩11分
- 竣工
- 1985年
- 規模
- 地上8階
- 耐震基準
- 新耐震基準適合
- セキュリティ
- 機械警備(24時間監視)
- 駐車場設備
- 無
- 設備
- トイレ男女別
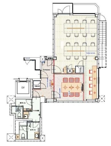
本物件の最大の特徴は、入居後すぐに業務を開始できる「セットアップ区画」であること。長方形のフロア形状を活かし、ソロワーク用のカウンターやグループMTGが可能なソファブースなど、多様な働き方を許容するラウンジ空間が全フロアに散りばめられています。特に7・8階は開放感あふれるメゾネット仕様となっており、バルコニーも備えた希少な空間です。
明治通りに面した大きな窓からは豊かな採光が差し込み、明るい執務環境を約束。隣には「ファミリーマート」、並びには「フレッシュネスバーガー」があり、日々のランチや事務作業の利便性も抜群です。ビル前のバス停からは渋谷・恵比寿駅へのアクセスも容易。内装構築の手間を省き、デザイン性と機能性を両立させた「攻め」の拠点をお探しの企業様に、自信を持っておすすめいたします。
JP-BASE渋谷 の募集区画 (総募集面積 29.31坪)
※月額費用、坪単価 ともに共益費込・税別の価格です
MOビル(渋谷区東・恵比寿・表参道)
- 所在地
- 東京都渋谷区東3-14-15
- 最寄り駅
- 恵比寿駅徒歩7分、表参道駅徒歩13分
- 竣工
- 1992年
- 規模
- 地上10階・地下2階
- 耐震基準
- 新耐震基準適合
- セキュリティ
- 機械警備(24時間監視)
- 駐車場設備
- 要確認
MOビル の募集区画 (総募集面積 68.14坪)
※月額費用、坪単価 ともに共益費込・税別の価格です
渋谷高橋ビル(渋谷区東)
- 所在地
- 東京都渋谷区東1-11-3
- 最寄り駅
- 渋谷駅徒歩9分
- 竣工
- 1991年
- 規模
- 地上3階・地下1階
- 耐震基準
- 新耐震基準適合
- セキュリティ
- 機械警備(24時間監視)
- 駐車場設備
- 無
本物件の最大の魅力は、圧倒的なコストパフォーマンスと初期費用の低さです。渋谷駅から徒歩圏内という好立地にありながら、坪単価は1.4万円台、敷金も3ヶ月という設定は、資金を事業に集中させたいスタートアップや成長企業にとって非常に大きなメリットとなります。
今回募集の2階(21.13坪)は、約70㎡弱の使い勝手の良いサイズ感。個別空調により、自社のスケジュールに合わせた快適な室温管理が可能です。
周辺には大学や図書館、神社などが点在し、緑も多く落ち着いた空気が流れています。徒歩3分圏内の八幡通りに出れば、お洒落なカフェやレストラン、コンビニも充実しており、オンとオフの切り替えもスムーズ。渋谷の利便性と、集中して作業に没頭できる静かな環境。その両方を賢く手に入れたい企業様に、ぜひご検討いただきたい一棟です。
渋谷高橋ビル の募集区画 (総募集面積 21.13坪)
※月額費用、坪単価 ともに共益費込・税別の価格です
古川ビル(渋谷区東・表参道)
- 所在地
- 東京都渋谷区東1-2-7
- 最寄り駅
- 渋谷駅徒歩9分、表参道駅徒歩10分
- 竣工
- 1973年
- 規模
- 地上4階
- セキュリティ
- 機械警備(24時間監視)
- 駐車場設備
- 有
募集中の3階(36.19坪)は、事務所としての利用はもちろん、サービス店舗としての相談も可能。坪単価1.4万円(共益費込)という賃料設定は、コストを抑えつつ渋谷アドレスを保持したい企業様にとって大きな魅力です。室内は個別空調を完備し、24時間の使用も相談できるため、クリエイティブな制作活動や深夜に及ぶ業務にも柔軟に対応します。
エレベーターがない点には留意が必要ですが、その分、静穏な執務環境と高い経済性を手に入れることができます。至近にはコンビニや飲食店が点在し、六本木通りへもすぐ出られるため、日常の利便性も損なわれません。青山学院大学にも近い文教の雰囲気漂うこの地で、独自のビジネススタイルを築きたい方に最適な拠点です。
古川ビル の募集区画 (総募集面積 36.19坪)
※月額費用、坪単価 ともに共益費込・税別の価格です
東海ビル(渋谷区東・恵比寿・代官山)
- 所在地
- 東京都渋谷区東1-27-10
- 最寄り駅
- 渋谷駅徒歩6分、恵比寿駅徒歩11分、代官山駅徒歩13分
- 竣工
- 1989年
- 規模
- 地上8階
- 耐震基準
- 新耐震基準適合
- セキュリティ
- 共用部警備なし(簡易管理)
- 駐車場設備
- 無
- 設備
- トイレ男女別
東海ビル の募集区画 (総募集面積 77.33坪)
| 図面 | 階数 | 坪数 | 月額費用 | 坪単価 | 入居可能日 | |
|---|---|---|---|---|---|---|
![]() | 5階 | 26.08坪 | 530,000円 | 20,322円 | 相談 | 検討リスト お問い合わせ |
![]() | 8階 | 27.26坪 | 570,000円 | 20,910円 | 相談 | 検討リスト お問い合わせ |
![]() | 2階 | 23.99坪 | 490,000円 | 20,425円 | 相談 | 検討リスト お問い合わせ |
※月額費用、坪単価 ともに共益費込・税別の価格です
渋谷第2TYビル(渋谷区東・恵比寿・表参道)
- 所在地
- 東京都渋谷区東2-2-8
- 最寄り駅
- 渋谷駅徒歩10分、恵比寿駅徒歩14分、表参道駅徒歩15分
- 竣工
- 1991年
- 規模
- 地上5階
- 耐震基準
- 新耐震基準適合
- セキュリティ
- 機械警備(24時間監視)
- 駐車場設備
- 無
- 設備
- トイレ男女別
渋谷第2TYビル の募集区画 (総募集面積 41.05坪)
※月額費用、坪単価 ともに共益費込・税別の価格です
A-PLACE恵比寿東(旧 フロンティア恵比寿)(渋谷区東・恵比寿・代官山)
- 所在地
- 東京都渋谷区東3-13-11
- 最寄り駅
- 恵比寿駅徒歩6分、代官山駅徒歩10分、渋谷駅徒歩16分
- 竣工
- 1992年
- 規模
- 地上10階・地下2階
- 耐震基準
- 新耐震基準適合
- セキュリティ
- 機械警備(24時間監視)
- 駐車場設備
- 有(機械式15台)
- 設備
- 省エネ・環境配慮
A-PLACE恵比寿東(旧 フロンティア恵比寿) の募集区画 (総募集面積 91.65坪)
| 図面 | 階数 | 坪数 | 月額費用 | 坪単価 | 入居可能日 | |
|---|---|---|---|---|---|---|
![]() | 5階 | 91.65坪 | 賃料を確認する (無料・1分) | 2026/7/1 | 検討リスト お問い合わせ |
※月額費用、坪単価 ともに共益費込・税別の価格です
TRANS-EBISU(渋谷区東・恵比寿・代官山)
- 所在地
- 東京都渋谷区東3-14-16
- 最寄り駅
- 恵比寿駅徒歩7分、代官山駅徒歩10分
- 竣工
- 1992年
- 規模
- 地上7階
- 耐震基準
- 新耐震基準適合
- セキュリティ
- 機械警備(24時間監視)
- 駐車場設備
- 無
- 設備
- トイレ男女別
TRANS-EBISU の募集区画 (総募集面積 65.85坪)
| 図面 | 階数 | 坪数 | 月額費用 | 坪単価 | 入居可能日 | |
|---|---|---|---|---|---|---|
![]() | 2階 | 21.95坪 | 750,000円 | 34,169円 | 即時 | 検討リスト お問い合わせ |
![]() | 3階 | 21.95坪 | 800,000円 | 36,446円 | 即時 | 検討リスト お問い合わせ |
![]() | 4階 | 21.95坪 | 750,000円 | 34,169円 | 即時 | 検討リスト お問い合わせ |
※月額費用、坪単価 ともに共益費込・税別の価格です
白善ビル(渋谷区東・恵比寿・広尾)
- 所在地
- 東京都渋谷区東3-14-22
- 最寄り駅
- 恵比寿駅徒歩10分、渋谷駅徒歩13分、広尾駅徒歩19分
- 竣工
- 1990年
- 規模
- 地上7階・地下1階
- 耐震基準
- 新耐震基準適合
- セキュリティ
- 機械警備(24時間監視)
- 駐車場設備
- 有
- 設備
- トイレ男女別
募集中の3階区画(30.08坪)は、執務スペースが正方形に近く、デッドスペースの少ない効率的なオフィスレイアウトが可能です。男女別トイレや給湯、光ファイバー対応など、現代のビジネスシーンに欠かせない設備を標準装備。個別空調により、エリアごとの快適な室温管理も容易です。
セキュリティ面では機械警備に加え、夜間オートロックを採用。24時間安心して業務に取り組める体制を整えています。また、都心部では希少な敷地内駐車場を併設しており、社用車の運用がある企業様にとっても大きなメリットとなります。
周辺は閑静なオフィス・住宅街で、徒歩2〜3分圏内に「フレッシュネスバーガー」や「セブンイレブン」があり、ランチや日常の買い物に困ることはありません。恵比寿駅周辺の賑わいと、代官山や渋谷の利便性をバランスよく享受できる、実利的なビジネス拠点です。
白善ビル の募集区画 (総募集面積 30.08坪)
※月額費用、坪単価 ともに共益費込・税別の価格です
ヒューリック恵比寿ビル(渋谷区東・恵比寿・代官山)
- 所在地
- 東京都渋谷区東3-15-7
- 最寄り駅
- 恵比寿駅徒歩6分、代官山駅徒歩10分
- 竣工
- 1992年
- 規模
- 地上7階
- 耐震基準
- 新耐震基準適合
- セキュリティ
- 機械警備(24時間監視)
- 駐車場設備
- 要確認
- 設備
- トイレ男女別
ヒューリック恵比寿ビル の募集区画 (総募集面積 48.10坪)
| 図面 | 階数 | 坪数 | 月額費用 | 坪単価 | 入居可能日 | |
|---|---|---|---|---|---|---|
![]() | 5階 | 48.10坪 | 賃料を確認する (無料・1分) | 2026/9/中 | 検討リスト お問い合わせ |
※月額費用、坪単価 ともに共益費込・税別の価格です
渋谷松永ビル(渋谷区東・代官山・恵比寿)
- 所在地
- 東京都渋谷区東1-13-14
- 最寄り駅
- 渋谷駅徒歩6分、代官山駅徒歩15分、恵比寿駅徒歩17分
- 竣工
- 1991年
- 規模
- 地上3階
- 耐震基準
- 新耐震基準適合
- セキュリティ
- 機械警備(24時間監視)
- 駐車場設備
- 有
- 設備
- トイレ男女別
本物件最大の魅力は、約60坪の広々とした「ワンフロア占有」が叶う点です。地上3階建てという低層ビルならではの落ち着きと、他社との接触を最小限に抑えられる独立性は、プライバシーを重視する企業様や自社ビル感覚での運用を希望される企業様に最適です。
室内は、レイアウト効率の良いほぼ長方形の形状。天井高2,550mmにOAフロアを完備し、三方向からの採光が期待できる明るく開放的な執務空間を提供します。男女別トイレや給湯スペースが室内に集約されているため、動線もスムーズです。
周辺には「ローソン」が徒歩1分にあるほか、人気の「スターバックス」や飲食店も豊富。金王神社の緑が近く、都心の利便性を享受しながらも穏やかに仕事に打ち込める、バランスの取れたビジネス拠点です。
渋谷松永ビル の募集区画 (総募集面積 61.53坪)
※月額費用、坪単価 ともに共益費込・税別の価格です
東京建物東渋谷ビル(渋谷区東・恵比寿)
- 所在地
- 東京都渋谷区東1-26-20
- 最寄り駅
- 渋谷駅徒歩9分、恵比寿駅徒歩12分
- 竣工
- 1993年
- 規模
- 地上14階・地下3階
- 耐震基準
- 新耐震基準適合
- セキュリティ
- 機械警備・有人管理(24時間体制)
- 駐車場設備
- 有(屋内自走式40台)
- 設備
- 非接触ICカード、 喫煙室、 トイレ男女別
東京建物東渋谷ビル の募集区画 (総募集面積 152.66坪)
| 図面 | 階数 | 坪数 | 月額費用 | 坪単価 | 入居可能日 | |
|---|---|---|---|---|---|---|
![]() | 5階 | 152.66坪 | 賃料を確認する (無料・1分) | 即時 | 検討リスト お問い合わせ |
※月額費用、坪単価 ともに共益費込・税別の価格です
恵比寿ビル(渋谷区東・恵比寿・広尾)
- 所在地
- 東京都渋谷区東3-11-10
- 最寄り駅
- 恵比寿駅徒歩4分、広尾駅徒歩17分
- 竣工
- 1992年
- 規模
- 地上9階・地下2階
- 耐震基準
- 新耐震基準適合
- セキュリティ
- 機械警備(24時間監視)
- 駐車場設備
- 無(機械式16台)
- 設備
- トイレ男女別
恵比寿ビル の募集区画 (総募集面積 295.34坪)
| 図面 | 階数 | 坪数 | 月額費用 | 坪単価 | 入居可能日 | |
|---|---|---|---|---|---|---|
![]() | B1階 | 39.44坪 | 賃料を確認する (無料・1分) | 2026/5/1 | 検討リスト お問い合わせ | |
![]() | 9階 | 85.30坪 | 賃料を確認する (無料・1分) | 2026/5/1 | 検討リスト お問い合わせ | |
![]() | 5階 | 85.30坪 | 賃料を確認する (無料・1分) | 2026/5/1 | 検討リスト お問い合わせ | |
![]() | 7階 | 85.30坪 | 賃料を確認する (無料・1分) | 2026/5/1 | 検討リスト お問い合わせ |
※月額費用、坪単価 ともに共益費込・税別の価格です
いちご渋谷イーストビル(渋谷区東・表参道・代官山)
- 所在地
- 東京都渋谷区東1-3-10
- 最寄り駅
- 渋谷駅徒歩7分、表参道駅徒歩14分、代官山駅徒歩15分
- 竣工
- 1985年
- 規模
- 地上6階
- 耐震基準
- 新耐震基準適合
- セキュリティ
- 機械警備(24時間監視)
- 駐車場設備
- 有
- 設備
- トイレ男女別
今回募集の2階(54.05坪)は、角地ならではの2面採光を活かした明るく開放的な執務空間が特徴です。室内はレイアウトのしやすい形状で、OAフロアや個別空調など現代のビジネスに不可欠なインフラが整っています。また、トイレや給湯スペースなどの水回りは共用部に集約されており、専有面積を無駄なく活用できる点も大きなメリットです。
ビル全体も2012年に外壁、2008年に共用部のリニューアルを完了しており、築年数を感じさせない清潔感と信頼感を維持しています。周辺には「金王八幡宮」の緑や、行列の絶えない人気飲食店が点在し、オンとオフを切り替えやすい絶妙なロケーション。機能性とコスト、そして利便性のバランスを重視する成長企業様に、自信を持っておすすめできる一棟です。
500文字(基準:500文字以内)✓
いちご渋谷イーストビル の募集区画 (総募集面積 54.05坪)
| 図面 | 階数 | 坪数 | 月額費用 | 坪単価 | 入居可能日 | |
|---|---|---|---|---|---|---|
![]() | 2階 | 54.05坪 | 賃料を確認する (無料・1分) | 即時 | 検討リスト お問い合わせ |
※月額費用、坪単価 ともに共益費込・税別の価格です
VORT恵比寿maxim(渋谷区東・恵比寿・代官山)
- 所在地
- 東京都渋谷区東3-9-19
- 最寄り駅
- 恵比寿駅徒歩3分、代官山駅徒歩11分
- 竣工
- 1989年
- 規模
- 地上11階・地下1階
- 耐震基準
- 新耐震基準適合
- セキュリティ
- 機械警備(24時間監視)
- 駐車場設備
- 有
- 設備
- トイレ男女別
VORT恵比寿maxim の募集区画 (総募集面積 209.76坪)
| 図面 | 階数 | 坪数 | 月額費用 | 坪単価 | 入居可能日 | |
|---|---|---|---|---|---|---|
![]() | 4階 | 104.88坪 | 賃料を確認する (無料・1分) | 2026/12/1 | 検討リスト お問い合わせ | |
![]() | 8階 | 104.88坪 | 賃料を確認する (無料・1分) | 2026/5/1 | 検討リスト お問い合わせ |
※月額費用、坪単価 ともに共益費込・税別の価格です
渋谷東KMビル(渋谷区東・恵比寿・代官山)
- 所在地
- 東京都渋谷区東1-27-7
- 最寄り駅
- 渋谷駅徒歩11分、恵比寿駅徒歩12分、代官山駅徒歩13分
- 竣工
- 1998年
- 規模
- 地上11階・地下1階
- 耐震基準
- 新耐震基準適合
- セキュリティ
- 機械警備(24時間監視)
- 駐車場設備
- 無
募集中の8階(23.03坪)は、プライバシー性の高い「1フロア1テナント」仕様。室内には専用の給湯スペースとトイレが設置されており、他テナントに気兼ねすることなく業務に集中できます。OAフロアの採用により、煩雑になりがちな配線も床下に集約可能。明治通りに面した大きな窓からは豊かな自然光が差し込み、明るく開放的な執務空間を提供します。
周辺環境の利便性も特筆すべき点です。隣接するコンビニに加え、徒歩2分には大型スーパー「ライフ渋谷東店」、徒歩3分には「スターバックス」があり、スタッフのランチやリフレッシュ環境も抜群。機械警備による強固なセキュリティと、土日祝日も開放されるエントランスにより、多様なワークスタイルに柔軟に対応します。渋谷の利便性を享受しつつ、独立性を重視する企業様に最適な一棟です。
渋谷東KMビル の募集区画 (総募集面積 23.03坪)
※月額費用、坪単価 ともに共益費込・税別の価格です
タチムラビル(渋谷区東・恵比寿・代官山)
- 所在地
- 東京都渋谷区東3-26-4
- 最寄り駅
- 恵比寿駅徒歩1分、代官山駅徒歩10分
- 竣工
- 2002年
- 規模
- 地上8階
- 耐震基準
- 新耐震基準適合
- セキュリティ
- 機械警備(24時間監視)
- 駐車場設備
- 要確認
タチムラビル の募集区画 (総募集面積 6.52坪)
※月額費用、坪単価 ともに共益費込・税別の価格です
住友不動産渋谷ファーストタワービル(渋谷区東・表参道)
- 所在地
- 東京都渋谷区東1-2-20
- 最寄り駅
- 渋谷駅徒歩6分、表参道駅徒歩10分
- 竣工
- 2010年
- 規模
- 地上25階・地下3階
- 耐震基準
- 新耐震基準適合・制震構造
- セキュリティ
- 機械警備・有人管理(24時間体制)
- 駐車場設備
- 有(平置28台、機械式162台)
- 設備
- 24時間(要ICカード)、 省エネ・環境配慮
住友不動産渋谷ファーストタワービル の募集区画 (総募集面積 1,123.98坪)
| 図面 | 階数 | 坪数 | 月額費用 | 坪単価 | 入居可能日 | |
|---|---|---|---|---|---|---|
![]() | 3階 | 561.99坪 | 賃料を確認する (無料・1分) | 2028/11 | 検討リスト お問い合わせ | |
![]() | 4階 | 561.99坪 | 賃料を確認する (無料・1分) | 2028/11 | 検討リスト お問い合わせ |
※月額費用、坪単価 ともに共益費込・税別の価格です
渋谷ふじみビルディング(渋谷区東・恵比寿・代官山)
- 所在地
- 東京都渋谷区東1-26-26
- 最寄り駅
- 渋谷駅徒歩8分、恵比寿駅徒歩13分、代官山駅徒歩13分
- 竣工
- 1998年
- 規模
- 地上8階・地下1階
- 耐震基準
- 新耐震基準適合
- セキュリティ
- 機械警備(24時間監視)
- 駐車場設備
- 無
- 設備
- トイレ男女別
本物件の最大の魅力は、日々の業務効率を最大化する周辺環境の充実度です。同じ並びには大型スーパー「ライフ 渋谷東店」があり、徒歩1分圏内にコンビニや多彩な飲食店が揃っています。さらに郵便局も徒歩3分と近く、事務作業から発送業務、ランチまでがビル周辺で完備されるストレスフリーなロケーションです。
今回募集の5階(41坪)は、1フロアを独占できる独立性の高い区画です。室内は明治通り側の広い窓面から明るい光が差し込み、開放的なワークスペースを実現。男女別トイレや給湯スペースが室内に完備されているため、動線も非常にスムーズです。
渋谷の再開発による恩恵を受けつつ、代官山エリアの落ち着きも感じられる「東1丁目」。機動力と快適性を求める少数精鋭のチームや、来客の多いIT・デザイン企業様に特におすすめしたい一棟です。
渋谷ふじみビルディング の募集区画 (総募集面積 40.98坪)
※月額費用、坪単価 ともに共益費込・税別の価格です
WAVE渋谷(渋谷区東・恵比寿・代官山)
- 所在地
- 東京都渋谷区東2-25-3
- 最寄り駅
- 渋谷駅徒歩10分、恵比寿駅徒歩11分、代官山駅徒歩13分
- 竣工
- 1995年
- 規模
- 地上5階
- 耐震基準
- 新耐震基準適合
- セキュリティ
- 機械警備(24時間監視)
- 駐車場設備
- 有
WAVE渋谷 の募集区画 (総募集面積 42.10坪)
| 図面 | 階数 | 坪数 | 月額費用 | 坪単価 | 入居可能日 | |
|---|---|---|---|---|---|---|
準備中 | 2階 | 19.56坪 | 賃料を確認する (無料・1分) | 即時 | 検討リスト お問い合わせ | |
準備中 | 6階 | 22.54坪 | 賃料を確認する (無料・1分) | 即時 | 検討リスト お問い合わせ |
※月額費用、坪単価 ともに共益費込・税別の価格です
小倉ビル(渋谷区東・恵比寿)
- 所在地
- 東京都渋谷区東3-22-9
- 最寄り駅
- 恵比寿駅徒歩5分
- 竣工
- 1975年
- 規模
- 地上5階・地下1階
- 駐車場設備
- 要確認
小倉ビル の募集区画 (総募集面積 12.29坪)
※月額費用、坪単価 ともに共益費込・税別の価格です
シャトレー渋谷(渋谷区東・恵比寿)
- 所在地
- 東京都渋谷区東2-20-13
- 最寄り駅
- 渋谷駅徒歩9分、恵比寿駅徒歩10分
- 竣工
- 1981年
- 規模
- 地上8階・地下1階
- 耐震基準
- 新耐震基準適合
- セキュリティ
- 機械警備(24時間監視)
- 駐車場設備
- 無
1981年竣工の本物件は、堅牢な鉄骨鉄筋コンクリート造。現在募集中(2026年3月時点)の7階区画は、約102㎡の広さを誇るメゾネットタイプの2SLDK。南西向きの豊富な採光と、最上階層ならではの開放的な眺望が、クリエイティブな発想を促す空間を提供します。過去の掲載履歴からも分かる通り、リノベーションによってモダンなデザイナーズ仕様に生まれ変わった住戸が多く、感度の高いワーカーや居住者に選ばれ続けています。
周辺はコンビニ、スーパー、そして「施設充実度スコア89」が示す通り、多彩なカフェや飲食店が徒歩圏内に集結。渋谷駅・恵比寿駅・代官山駅の3駅が利用可能な機動力は、ビジネスの拠点としても私生活のベースとしても、都心生活を最大限に加速させます。時代を超えて愛される、東エリアのランドマーク的な一棟です。
シャトレー渋谷 の募集区画 (総募集面積 31.09坪)
※月額費用、坪単価 ともに共益費込・税別の価格です
ビーフラットビル(渋谷区東・恵比寿・代官山)
- 所在地
- 東京都渋谷区東3-20-1
- 最寄り駅
- 恵比寿駅徒歩5分、代官山駅徒歩10分、渋谷駅徒歩16分
- 竣工
- 1993年
- 規模
- 地上5階・地下1階
- 耐震基準
- 新耐震基準適合
- 駐車場設備
- 要確認
ビーフラットビル の募集区画 (総募集面積 10.48坪)
※月額費用、坪単価 ともに共益費込・税別の価格です
渋谷ソーシャルハイツ(渋谷区東・恵比寿・代官山)
- 所在地
- 東京都渋谷区東2-23-8
- 最寄り駅
- 渋谷駅徒歩7分、恵比寿駅徒歩10分、代官山駅徒歩11分
- 竣工
- 1980年
- 規模
- 地上7階・地下1階
- 駐車場設備
- 要確認
渋谷ソーシャルハイツ の募集区画 (総募集面積 17.98坪)
※月額費用、坪単価 ともに共益費込・税別の価格です
TRUST VALUE 渋谷東(渋谷区東)
- 所在地
- 東京都渋谷区東1-27-6
- 最寄り駅
- 渋谷駅徒歩7分
- 竣工
- 1990年
- 規模
- 地上7階
- 耐震基準
- 新耐震基準適合
- 駐車場設備
- 要確認
TRUST VALUE 渋谷東 の募集区画 (総募集面積 12.75坪)
※月額費用、坪単価 ともに共益費込・税別の価格です
VORT恵比寿north(渋谷区東・恵比寿)
- 所在地
- 東京都渋谷区東3-20-4
- 最寄り駅
- 恵比寿駅徒歩5分
- 竣工
- 2020年
- 規模
- 地上7階・地下1階
- 耐震基準
- 新耐震基準適合
- 駐車場設備
- 要確認
VORT恵比寿north の募集区画 (総募集面積 21.06坪)
| 図面 | 階数 | 坪数 | 月額費用 | 坪単価 | 入居可能日 | |
|---|---|---|---|---|---|---|
準備中 | B1階 | 21.06坪 | 賃料を確認する (無料・1分) | 2026/9/1 | 検討リスト お問い合わせ |
※月額費用、坪単価 ともに共益費込・税別の価格です
住所が「渋谷区東」となります。國學院大學や氷川神社があり、文教地区の落ち着きがあります。渋谷駅新南口や恵比寿駅から徒歩圏内で、バス便も非常に便利です。IT企業の自社ビルや、広めのフロアを持つオフィスビルが多く、コストパフォーマンスと利便性を両立させたい実務派の企業におすすめです。









































































































































































































































































































































