神宮前(渋谷区)の賃貸オフィス・貸事務所情報
世界中から注目される、ファッションとカルチャーの発信地です。ラフォーレ原宿から表参道ヒルズまで、ブランドショップが立ち並ぶ通り沿いは、ショールーム兼オフィスの最高峰です。
検索結果 98 件
並び替え
渋原XROSS(渋谷区神宮前・明治神宮前〈原宿〉・原宿)
- 所在地
- 東京都渋谷区神宮前6-29-4
- 最寄り駅
- 明治神宮前〈原宿〉駅徒歩1分、原宿駅徒歩6分
- 竣工
- 2026年
- 規模
- 地上9階
- 耐震基準
- 新耐震基準適合
- セキュリティ
- 機械警備(24時間監視)
- 駐車場設備
- 要確認
- 設備
- トイレ男女別
XROSS SHIBUHARAは、2026年1月に誕生した、渋谷と原宿のエネルギーが交差する「神宮前6丁目」の新たなシンボリック・プロジェクトです。明治神宮前駅から徒歩1分、明治通りに面した絶好のロケーションに位置し、地上9階建てのスタイリッシュなファサードが目を引きます。最大の特徴は、渋谷方面と原宿方面の双方へアプローチ可能な「大型2面マルチビジョン(SHIBUHARA VISION)」。企業のブランドを世界へ発信する強力なメディア機能を備えています。屋上には開放感あふれるルーフトップを備え、都心のパノラマを背景にしたクリエイティブな働き方を実現。新築ならではの最新設備と圧倒的な視認性が、企業のプレゼンスを飛躍的に高める次世代型オフィスです。
渋原XROSS の募集区画 (総募集面積 38.19坪)
| 図面 | 階数 | 坪数 | 月額費用 | 坪単価 | 入居可能日 | |
|---|---|---|---|---|---|---|
![]() | 9階 | 38.19坪 | 賃料を確認する (無料・1分) | 即時 | 検討リスト お問い合わせ |
※月額費用、坪単価 ともに共益費込・税別の価格です
RMS原宿ビル(渋谷区神宮前・明治神宮前〈原宿〉・原宿・外苑前)
- 所在地
- 東京都渋谷区神宮前2-18-21
- 最寄り駅
- 明治神宮前〈原宿〉駅徒歩13分、原宿駅徒歩15分、外苑前駅徒歩10分
- 竣工
- 2008年
- 規模
- 地上6階・地下1階
- 耐震基準
- 新耐震基準適合
- セキュリティ
- 機械警備(24時間監視)
- 駐車場設備
- 無
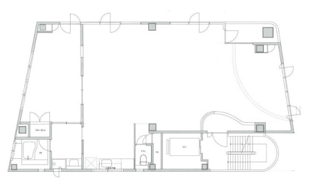
RMS原宿ビルは、渋谷区神宮前の閑静なオフィス街に建つ2008年竣工の賃貸オフィスビルです。L字型の執務スペースは大きな窓に囲まれており、室内には開放感あふれる明るい光が差し込みます。貸室内に水回りが完備されているため独立性が高く、落ち着いた環境でクリエイティブな業務に打ち込むことが可能です。周辺にはコンビニや郵便局が点在し、駅方面へ足を伸ばせば多彩な飲食店も利用できるため、オンとオフを切り替えた効率的なビジネスライフを実現します。原宿・表参道エリアを拠点とする、機能性と静穏性を兼ね備えた魅力的な物件です。
RMS原宿ビル の募集区画 (総募集面積 39.39坪)
※月額費用、坪単価 ともに共益費込・税別の価格です
ニュー関口ビル(渋谷区神宮前・原宿・表参道)
- 所在地
- 東京都渋谷区神宮前6-18-8
- 最寄り駅
- 渋谷駅徒歩8分、原宿駅徒歩12分、表参道駅徒歩14分
- 竣工
- 1975年
- 規模
- 地上9階・地下1階
- セキュリティ
- 機械警備(24時間監視)
- 駐車場設備
- 有
- 設備
- トイレ男女別
ニュー関口ビルは、トレンドの最先端を行く明治通り沿いの角地に立ち、渋谷と原宿を繋ぐエネルギッシュなエリアを象徴する賃貸オフィスビルです。裏手にはキャットストリートが広がり、周辺には洗練されたアパレルショップや話題のカフェが建ち並ぶ、クリエイティビティを刺激する環境が整っています。5階募集区画(64.23坪)は、プライバシー性の高いワンフロア・ワンテナント仕様。角ビルならではの3面採光により、室内は隅々まで自然光が差し込む明るく開放的な空間となっています。設備面もフリーアクセスフロアや男女別トイレ、ビルトインの個別空調など、現代のビジネスニーズを網羅。MIYASHITA PARKも目と鼻の先で、仕事の合間のリフレッシュやランチ環境も都内最高峰です。視認性の高い立地と充実のスペックが、貴社のさらなる成長を強力にバックアップします。
ニュー関口ビル の募集区画 (総募集面積 64.23坪)
※月額費用、坪単価 ともに共益費込・税別の価格です
ジブラルタ生命原宿ビル(渋谷区神宮前・原宿・明治神宮前〈原宿〉・北参道)
- 所在地
- 東京都渋谷区神宮前1-3-12
- 最寄り駅
- 原宿駅徒歩9分、明治神宮前〈原宿〉駅徒歩7分、北参道駅徒歩10分
- 竣工
- 1982年
- 規模
- 地上8階・地下1階
- セキュリティ
- 機械警備(24時間監視)
- 駐車場設備
- 有
- 設備
- トイレ男女別
原宿・神宮前エリアのメインストリート、明治通りに面して建つジブラルタ生命原宿ビル。白を基調としたクリーンな外観は視認性が高く、来客時もスムーズな案内が可能です。1982年竣工ですが、2004年にリニューアルを完了しており、エントランスや共用部は古さを感じさせない整った状態を維持しています。室内は天井高最大2,750mmを確保した開放的な造りで、レイアウトを妨げる柱が少ないため、約70坪のスペースを最大限に活用可能。周辺にはアパレルやデザイン関連の企業が多く、クリエイティブな活気に満ちています。隣のビルにはコンビニがあり、郵便局も徒歩4分と事務環境も良好。複数路線が利用できる交通利便性と、明治通りのブランド力を享受できる戦略的なオフィス拠点です。
ジブラルタ生命原宿ビル の募集区画 (総募集面積 70.31坪)
| 図面 | 階数 | 坪数 | 月額費用 | 坪単価 | 入居可能日 | |
|---|---|---|---|---|---|---|
![]() | B1階 | 70.31坪 | 賃料を確認する (無料・1分) | 即時 | 検討リスト お問い合わせ |
※月額費用、坪単価 ともに共益費込・税別の価格です
(仮)渋谷区神宮前3丁目PJビル(渋谷区神宮前・明治神宮前〈原宿〉・原宿)
- 所在地
- 東京都渋谷区神宮前3-22-12
- 最寄り駅
- 明治神宮前〈原宿〉駅徒歩6分、原宿駅徒歩8分
- 竣工
- 2026年
- 規模
- 地上5階
- 耐震基準
- 新耐震基準適合
- 駐車場設備
- 要確認
明治神宮前駅から徒歩6分、流行の発信地として知られる神宮前3丁目エリアに誕生する、2026年竣工の地上5階建て次世代オフィスビルです。最新の新耐震基準に適合した堅牢なRC造でありながら、新築ならではの洗練された意匠が企業の個性を際立たせます。エントランスは平日に開放され、来客時のスムーズな誘導を可能にします。室内はレイアウト効率に優れた空間設計で、個別空調やOAフロア、男女別トイレなど、現代のワークスタイルに不可欠な設備を完備。クリエイティブな感性が集うこの場所で、最新のビルスペックを享受しながら事業を加速させることができる、希少性の高い最新拠点です。
(仮)渋谷区神宮前3丁目PJビル の募集区画 (総募集面積 356.50坪)
| 図面 | 階数 | 坪数 | 月額費用 | 坪単価 | 入居可能日 | |
|---|---|---|---|---|---|---|
![]() | 1階 | 25.40坪 | 賃料を確認する (無料・1分) | 2026/11 | 検討リスト お問い合わせ | |
![]() | 1階 | 31.20坪 | 賃料を確認する (無料・1分) | 2026/11 | 検討リスト お問い合わせ | |
![]() | 1階 | 33.00坪 | 賃料を確認する (無料・1分) | 2026/11 | 検討リスト お問い合わせ | |
![]() | 2階 | 23.30坪 | 賃料を確認する (無料・1分) | 2026/11 | 検討リスト お問い合わせ | |
![]() | 2階 | 30.60坪 | 賃料を確認する (無料・1分) | 2026/11 | 検討リスト お問い合わせ | |
![]() | 2階 | 35.20坪 | 賃料を確認する (無料・1分) | 2026/11 | 検討リスト お問い合わせ | |
![]() | 3階 | 28.80坪 | 賃料を確認する (無料・1分) | 2026/11 | 検討リスト お問い合わせ | |
![]() | 3階 | 28.10坪 | 賃料を確認する (無料・1分) | 2026/11 | 検討リスト お問い合わせ | |
![]() | 4階 | 24.40坪 | 賃料を確認する (無料・1分) | 2026/11 | 検討リスト お問い合わせ | |
![]() | 4階 | 25.70坪 | 賃料を確認する (無料・1分) | 2026/11 | 検討リスト お問い合わせ | |
![]() | 5階 | 26.90坪 | 賃料を確認する (無料・1分) | 2026/11 | 検討リスト お問い合わせ | |
![]() | 3階 | 26.80坪 | 賃料を確認する (無料・1分) | 2026/11 | 検討リスト お問い合わせ | |
![]() | 4階 | 17.10坪 | 賃料を確認する (無料・1分) | 2026/11 | 検討リスト お問い合わせ |
※月額費用、坪単価 ともに共益費込・税別の価格です
Vista神宮前ビル(渋谷区神宮前・原宿・明治神宮前〈原宿〉・表参道)
- 所在地
- 東京都渋谷区神宮前1-8-17
- 最寄り駅
- 原宿駅徒歩4分、明治神宮前〈原宿〉駅徒歩3分、表参道駅徒歩10分
- 竣工
- 2025年
- 規模
- 地上3階
- 耐震基準
- 新耐震基準適合
- 駐車場設備
- 無
- 設備
- 荷捌き場(搬出入ヤード)
明治神宮前駅から徒歩3分、原宿の賑わいと洗練が交差する神宮前1丁目にVista神宮前ビルは誕生しました。2025年竣工の新築物件であり、3階建ての低層構造を活かした高い視認性とデザイン性を誇ります。外壁には上質な素材が用いられ、昼夜で表情を変える外観は来訪者に深い印象を与えます。表参道や竹下通りに近接したトレンドの中心地に位置し、1階部分にはカフェや物販店舗の入居も想定されています。最新の耐震基準と設備を備えた、感度の高いブランドのオフィスや旗艦店として、これ以上ない唯一無二の環境を提供します。
Vista神宮前ビル の募集区画 (総募集面積 132.19坪)
| 図面 | 階数 | 坪数 | 月額費用 | 坪単価 | 入居可能日 | |
|---|---|---|---|---|---|---|
![]() | 1階 | 46.80坪 | 賃料を確認する (無料・1分) | 即時 | 検討リスト お問い合わせ | |
![]() | 2階 | 44.29坪 | 賃料を確認する (無料・1分) | 即時 | 検討リスト お問い合わせ | |
![]() | 4階 | 41.10坪 | 賃料を確認する (無料・1分) | 即時 | 検討リスト お問い合わせ |
※月額費用、坪単価 ともに共益費込・税別の価格です
東京セントラル表参道(渋谷区神宮前・表参道・明治神宮前〈原宿〉)
- 所在地
- 東京都渋谷区神宮前4-3-15
- 最寄り駅
- 表参道駅徒歩2分、明治神宮前〈原宿〉駅徒歩5分
- 竣工
- 1986年
- 規模
- 地上5階
- 耐震基準
- 新耐震基準適合
- セキュリティ
- 有人管理(警備員常駐)
- 駐車場設備
- 有
表参道駅A2出口からわずか徒歩2分、神宮前4丁目の象徴的なロケーションに建つ東京セントラル表参道ビル。1968年竣工の歴史ある建物ですが、2011年に大規模リニューアルと耐震補強を完了しており、安心感とヴィンテージの趣が共存しています。室内は「ワッフルスラブ天井」を採用した独創的なデザインで、クリエイティブな職種の感性を刺激する空間が広がります。元マンションならではの小規模分割区画が豊富で、スタートアップや士業、アパレル事務所に最適。表参道ヒルズやスターバックスが目と鼻の先という華やかな環境にありながら、一歩路地へ入った場所にあるため、驚くほど静かな執務環境を確保できます。利便性とステータス、そしてデザイン性を兼ね備えた、神宮前エリア屈指の注目物件です。
東京セントラル表参道 の募集区画 (総募集面積 21.20坪)
※月額費用、坪単価 ともに共益費込・税別の価格です
LA GRACIA表参道(ラグラシア表参道)(渋谷区神宮前・表参道・外苑前・明治神宮前〈原宿〉)
- 所在地
- 東京都渋谷区神宮前3-3-4
- 最寄り駅
- 表参道駅徒歩6分、外苑前駅徒歩8分、明治神宮前〈原宿〉駅徒歩12分
- 竣工
- 2019年
- 規模
- 地上4階・地下1階
- 耐震基準
- 新耐震基準適合
- セキュリティ
- 機械警備(24時間監視)
- 駐車場設備
- 無
- 設備
- トイレ男女別
ラグラシア表参道は、日本を代表するファッションとトレンドの発信地「表参道・神宮前」エリアに位置する、2019年竣工の築浅デザイナーズ物件です。表参道駅から徒歩6分という好立地にありながら、都会の喧騒を程よく離れた、洗練された大人が集まる「神宮前3丁目」アドレスが魅力。建物は、透明感あふれるガラスカーテンウォールを多用したモダンな意匠で、訪れるゲストに強烈なインパクトと上質なイメージを与えます。今回募集の2階区画(56.70坪)は、店舗および事務所として利用可能。物販店舗、美容室、ショールーム、あるいはクリエイティブな感性を大切にする企業のオフィスとして、幅広いニーズに応えるフレキシブルな設計となっています。最新のビルスペックを備えた新耐震基準適合物件であり、安全性と機能性も折り紙付き。周辺には世界的なラグジュアリーブランドの路面店や、隠れ家的なカフェが点在し、ビジネスとプライベートの両面で最先端のインスピレーションを得られる環境です。表参道の中心で自社のブランド価値を最大化させたい企業様にとって、これ以上ない舞台となるはずです。
LA GRACIA表参道(ラグラシア表参道) の募集区画 (総募集面積 56.70坪)
| 図面 | 階数 | 坪数 | 月額費用 | 坪単価 | 入居可能日 | |
|---|---|---|---|---|---|---|
![]() | 2階 | 56.70坪 | 賃料を確認する (無料・1分) | 相談 | 検討リスト お問い合わせ |
※月額費用、坪単価 ともに共益費込・税別の価格です
(仮)CASCADEⅡ(渋谷区神宮前・原宿・明治神宮前〈原宿〉・北参道)
- 所在地
- 東京都渋谷区神宮前1-10-37
- 最寄り駅
- 原宿駅徒歩2分、明治神宮前〈原宿〉駅徒歩3分、北参道駅徒歩15分
- 竣工
- 2026年
- 規模
- 地上3階・地下1階
- 耐震基準
- 高耐震構造(新耐震基準適合)
- セキュリティ
- 機械警備(24時間監視)
- 駐車場設備
- 無
(仮)CASCADEⅡ の募集区画 (総募集面積 94.99坪)
| 図面 | 階数 | 坪数 | 月額費用 | 坪単価 | 入居可能日 | |
|---|---|---|---|---|---|---|
![]() | B1階 | 23.77坪 | 賃料を確認する (無料・1分) | 2026/6 | 検討リスト お問い合わせ | |
![]() | B1階 | 13.58坪 | 賃料を確認する (無料・1分) | 2026/6 | 検討リスト お問い合わせ | |
![]() | 2階 | 15.20坪 | 賃料を確認する (無料・1分) | 2026/6 | 検討リスト お問い合わせ | |
![]() | 2階 | 16.76坪 | 賃料を確認する (無料・1分) | 2026/6 | 検討リスト お問い合わせ | |
![]() | 3階 | 17.04坪 | 賃料を確認する (無料・1分) | 2026/6 | 検討リスト お問い合わせ | |
![]() | 3階 | 8.64坪 | 賃料を確認する (無料・1分) | 2026/6 | 検討リスト お問い合わせ |
※月額費用、坪単価 ともに共益費込・税別の価格です
アクシア原宿(渋谷区神宮前・原宿・明治神宮前〈原宿〉・表参道)
- 所在地
- 東京都渋谷区神宮前1-20-4
- 最寄り駅
- 原宿駅徒歩2分、明治神宮前〈原宿〉駅徒歩4分、表参道駅徒歩14分
- 竣工
- 1998年
- 規模
- 地上6階
- 耐震基準
- 新耐震基準適合
- 駐車場設備
- 要確認
アクシア原宿 の募集区画 (総募集面積 14.35坪)
※月額費用、坪単価 ともに共益費込・税別の価格です
エフ・テラス表参道(渋谷区神宮前・表参道・明治神宮前〈原宿〉・原宿)
- 所在地
- 東京都渋谷区神宮前5-1-7
- 最寄り駅
- 表参道駅徒歩1分、明治神宮前〈原宿〉駅徒歩10分、原宿駅徒歩13分
- 竣工
- 2021年
- 規模
- 地上3階
- 耐震基準
- 新耐震基準適合
- セキュリティ
- 機械警備(24時間監視)
- 駐車場設備
- 無
エフ・テラス表参道は、表参道駅A1出口から徒歩1分という圧倒的な駅至近立地を誇る2021年竣工の築浅オフィスビルです。流行の発信地である神宮前5丁目エリアに位置し、現代的で落ち着きのある外観デザインが企業の信頼性を高めます。最新の機械警備とオートロックを完備した高いセキュリティ性能を誇り、周辺には感度の高いショップや飲食店が集積しています。利便性とステータスを両立した、希少性の極めて高いワークプレイスです。
エフ・テラス表参道 の募集区画 (総募集面積 9.90坪)
※月額費用、坪単価 ともに共益費込・税別の価格です
パティオビル(渋谷区神宮前・原宿)
編集中
- 所在地
- 東京都渋谷区神宮前1-12-3
- 最寄り駅
- 原宿駅徒歩3分
- 竣工
- 2004年
- 規模
- 地上2階・地下1階
- 耐震基準
- 新耐震基準適合
- セキュリティ
- 機械警備(24時間監視)
- 駐車場設備
- 無
- 設備
- トイレ男女別
パティオビルは、原宿の象徴である竹下通りから至近、JR原宿駅・明治神宮前駅の両駅から徒歩3分という、これ以上ない絶好のロケーションに建つ一棟貸しビルです。2004年竣工のスタイリッシュな佇まいで、最大の特徴は3,000mmを誇る天井高。開放感あふれる室内は、アパレルのショールームやデザイン事務所、こだわりのフラッグシップショップなど、空間演出を重視する企業様に最適です。約88坪の空間を丸ごと自社専用として利用できるため、フロアごとに「ショップ・受付・執務」と分けるなど、プライバシーと独立性を保った贅沢な使い方が可能です。圧倒的な駅近立地は、来客への案内しやすさはもちろん、優秀な人材の採用力向上にも直結。原宿のエネルギーをダイレクトに享受しながら、企業のアイデンティティを確立できる稀有な一棟です。
パティオビル の募集区画 (総募集面積 88.18坪)
| 図面 | 階数 | 坪数 | 月額費用 | 坪単価 | 入居可能日 | |
|---|---|---|---|---|---|---|
準備中 | 1階 | 88.18坪 | 賃料を確認する (無料・1分) | 即時 | 検討リスト お問い合わせ |
※月額費用、坪単価 ともに共益費込・税別の価格です
リンデ神宮前(渋谷区神宮前・原宿・千駄ケ谷・北参道)
編集中
- 所在地
- 東京都渋谷区神宮前2-22-10
- 最寄り駅
- 原宿駅徒歩10分、千駄ケ谷駅徒歩11分、北参道駅徒歩7分
- 竣工
- 1989年
- 規模
- 地上3階
- 耐震基準
- 新耐震基準適合
- 駐車場設備
- 要確認
リンデ神宮前 の募集区画 (総募集面積 20.06坪)
※月額費用、坪単価 ともに共益費込・税別の価格です
T&Aビル(渋谷区神宮前・明治神宮前〈原宿〉)
- 所在地
- 東京都渋谷区神宮前6-34-17
- 最寄り駅
- 明治神宮前〈原宿〉駅徒歩2分
- 竣工
- 1994年
- 規模
- 地上3階・地下1階
- 耐震基準
- 新耐震基準適合
- セキュリティ
- 共用部警備なし(簡易管理)
- 駐車場設備
- 無
T&Aビルは、原宿・神宮前エリアの躍動感と、落ち着いた住環境が共存する神宮前6丁目に位置する低層賃貸オフィスビルです。最大の魅力は、東京メトロ「明治神宮前駅」徒歩2分、JR「原宿駅」徒歩3分という、複数路線が利用可能な卓越したアクセス性。1994年竣工の本物件は新耐震基準に適合した鉄筋コンクリート造で、低層ビルならではの重厚感と安心感を提供します。今回募集の1階区画(75.36坪)は、家具配置の自由度が高いスクエアな形状が特長。無駄のないスペース構成は、効率的なオフィスレイアウトはもちろん、ショールームやアパレル関係のプレスルームとしても高いポテンシャルを秘めています。周辺はアパレルショップや隠れ家的なカフェが点在する、感度の高い大人が集まるエリア。明治通りや表参道の賑わいから一歩離れた静かな環境は、クリエイティビティを重視する設計事務所やITスタートアップにも最適です。都心の利便性を手放さず、落ち着きある「神宮前アドレス」を拠点にしたい企業様に、ぜひご検討いただきたい一棟です。
T&Aビル の募集区画 (総募集面積 75.36坪)
※月額費用、坪単価 ともに共益費込・税別の価格です
310表参道ビル(渋谷区神宮前・明治神宮前〈原宿〉・原宿)
編集中
- 所在地
- 東京都渋谷区神宮前6-1-2
- 最寄り駅
- 明治神宮前〈原宿〉駅徒歩3分、原宿駅徒歩8分
- 竣工
- 2000年
- 規模
- 地上8階
- 耐震基準
- 新耐震基準適合
- 駐車場設備
- 要確認
310表参道ビル の募集区画 (総募集面積 8.70坪)
※月額費用、坪単価 ともに共益費込・税別の価格です
原宿山田ビル(渋谷区神宮前・明治神宮前〈原宿〉・原宿・表参道)
- 所在地
- 東京都渋谷区神宮前6-12-23
- 最寄り駅
- 明治神宮前〈原宿〉駅徒歩2分、原宿駅徒歩5分、表参道駅徒歩10分
- 竣工
- 1992年
- 規模
- 地上8階
- 耐震基準
- 新耐震基準適合
- セキュリティ
- 機械警備(24時間監視)
- 駐車場設備
- 無
明治通り沿いの好立地に位置する原宿山田ビルは、明治神宮前駅から徒歩2分という卓越した交通利便性を備えています。角地に立つこのビルは、鮮やかな外観で視認性が高く、室内は3面採光による明るい執務空間が広がります。1フロアを1社で独占できるワンフロア・ワンテナント仕様により、プライバシーと独立性を確保。原宿・表参道エリアを拠点とする、機動力と発信力を重視する企業様に最適な賃貸オフィスです。
原宿山田ビル の募集区画 (総募集面積 41.50坪)
※月額費用、坪単価 ともに共益費込・税別の価格です
CASCADE HARAJUKU(カスケード原宿)(渋谷区神宮前・原宿・明治神宮前〈原宿〉・北参道)
- 所在地
- 東京都渋谷区神宮前1-10-37
- 最寄り駅
- 原宿駅徒歩2分、明治神宮前〈原宿〉駅徒歩3分、北参道駅徒歩15分
- 竣工
- 2015年
- 規模
- 地上3階・地下1階
- 耐震基準
- 高耐震構造(新耐震基準適合)
- セキュリティ
- 機械警備(24時間監視)
- 駐車場設備
- 無
CASCADE HARAJUKU(カスケード原宿)は、トレンドの中心地「原宿」駅からわずか徒歩2分、竹下通り裏の閑静なエリアに佇む、洗練されたデザイナーズ複合施設です。2015年竣工、緑豊かな植栽と開放的なテラスが「滝(カスケード)」のように連なる独創的な建築デザインが魅力です。 施設内は地下1階から地上2階までの低層構造で、吹き抜けやメゾネット、テラス付きなど、一般のオフィスビルでは得られないクリエイティブな空間が揃っています。店舗としての利用はもちろん、感度の高いアパレル企業のショールームや、デザイン事務所の拠点としても最適。24時間使用可能で、館内にはこだわりの飲食店が軒を連ね、打ち合わせやリフレッシュの場にも困りません。新耐震基準をクリアした安心の構造と、原宿のエネルギーを感じながらも落ち着いて執務に励める、神宮前1丁目という希少なアドレスを誇るプレミアム物件です。
CASCADE HARAJUKU(カスケード原宿) の募集区画 (総募集面積 72.94坪)
| 図面 | 階数 | 坪数 | 月額費用 | 坪単価 | 入居可能日 | |
|---|---|---|---|---|---|---|
準備中 | 3階 | 21.66坪 | 賃料を確認する (無料・1分) | 2026/7/1 | 検討リスト お問い合わせ | |
準備中 | 3階 | 19.33坪 | 賃料を確認する (無料・1分) | 2026/7/1 | 検討リスト お問い合わせ | |
準備中 | 3階 | 16.00坪 | 賃料を確認する (無料・1分) | 2026/7/1 | 検討リスト お問い合わせ | |
準備中 | 3階 | 15.95坪 | 賃料を確認する (無料・1分) | 2026/7/1 | 検討リスト お問い合わせ |
※月額費用、坪単価 ともに共益費込・税別の価格です
ロングヒル原宿ビル(渋谷区神宮前・外苑前・明治神宮前〈原宿〉・表参道)
- 所在地
- 東京都渋谷区神宮前3-33-5
- 最寄り駅
- 外苑前駅徒歩8分、明治神宮前〈原宿〉駅徒歩9分、表参道駅徒歩11分
- 竣工
- 1992年
- 規模
- 地上3階・地下1階
- 耐震基準
- 新耐震基準適合
- 駐車場設備
- 要確認
ロングヒル原宿ビル の募集区画 (総募集面積 24.83坪)
※月額費用、坪単価 ともに共益費込・税別の価格です
ダイヤモンドビル(渋谷区神宮前・明治神宮前〈原宿〉・原宿)
編集中
- 所在地
- 東京都渋谷区神宮前6-12-17
- 最寄り駅
- 明治神宮前〈原宿〉駅徒歩3分、原宿駅徒歩7分
- 竣工
- 1990年
- 規模
- 地上9階
- 耐震基準
- 新耐震基準適合
- 駐車場設備
- 要確認
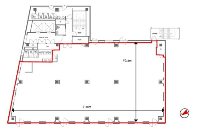
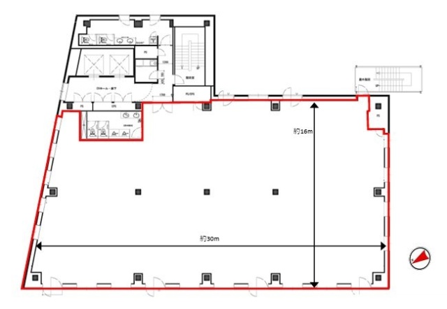
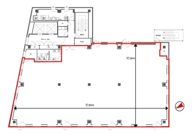
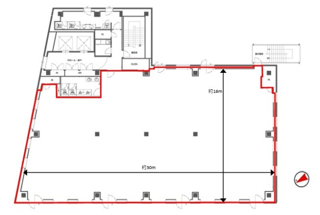
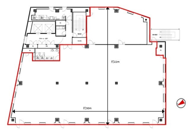
ダイヤモンドビル の募集区画 (総募集面積 1,147.45坪)
| 図面 | 階数 | 坪数 | 月額費用 | 坪単価 | 入居可能日 | |
|---|---|---|---|---|---|---|
![]() | 9階 | 139.09坪 | 賃料を確認する (無料・1分) | 2027/2 | 検討リスト お問い合わせ | |
![]() | 8階 | 140.94坪 | 賃料を確認する (無料・1分) | 2027/2 | 検討リスト お問い合わせ | |
![]() | 7階 | 140.94坪 | 賃料を確認する (無料・1分) | 2027/2 | 検討リスト お問い合わせ | |
![]() | 6階 | 140.94坪 | 賃料を確認する (無料・1分) | 2027/2 | 検討リスト お問い合わせ | |
![]() | 5階 | 140.94坪 | 賃料を確認する (無料・1分) | 2027/2 | 検討リスト お問い合わせ | |
![]() | 4階 | 139.68坪 | 賃料を確認する (無料・1分) | 2027/2 | 検討リスト お問い合わせ | |
![]() | 3階 | 140.31坪 | 賃料を確認する (無料・1分) | 2027/2 | 検討リスト お問い合わせ | |
![]() | 2階 | 164.61坪 | 賃料を確認する (無料・1分) | 2027/2 | 検討リスト お問い合わせ |
※月額費用、坪単価 ともに共益費込・税別の価格です
「神宮前1丁目〜6丁目」という広範囲なエリアです。竹下通り周辺のポップカルチャーから、表参道のラグジュアリーブランド、裏原宿のストリートカルチャーまで、場所によって全く異なる顔を持ちます。アパレル、美容、デザイン、ITなど、トレンドを創り出す企業にとって、ここ以上に刺激的な場所はありません。









































































































































