BIRTH神宮前(渋谷区、神宮前、北参道、国立競技場) の賃貸オフィス情報

- 所在地
- 東京都渋谷区神宮前2-13-9
- 最寄り駅
- 北参道駅徒歩9分、国立競技場駅徒歩9分、外苑前駅徒歩10分
- 竣工
- 2023年
- 規模
- 地上5階
- 構造
- SRC造(鉄骨鉄筋コンクリート造)
- 耐震基準
- 新耐震基準適合
- セキュリティ
- 機械警備(24時間監視)
- エントランス
- 平日開放
- エレベーター総数
- 1基
- 駐車場設備
- 要確認
BIRTH神宮前 の物件特徴・おすすめポイント
■2023年竣工、新耐震基準適合のデザイナーズビル
■全面ガラス張り×コンクリートの洗練された外観
■屋上テラス完備、空と風を感じるリフレッシュ空間
■神宮前2丁目の静かな環境、クリエイティブワークに最適
BIRTH神宮前 の募集区画 (総募集面積 11.49坪)
※月額費用、坪単価 ともに共益費込・税別の価格です
建物に関するよくある質問と回答
A. 東京メトロ副都心線「北参道」駅の2番出口より徒歩9分です。また、都営大江戸線「国立競技場」駅のA2出口からも徒歩9分、銀座線「外苑前」駅の3番出口からは徒歩10分程度で到着します。
Q. 建物のデザインや仕様について教えてください。
A. コンクリート打ちっ放しの躯体に全面ガラスを配したモダンなデザインです。採光性が高く、室内は明るく開放感があります。内装もデザイン性が高く、そのまま使用しても様になる空間です。
Q. 屋上スペースは利用できますか?
A. 入居テナント様が利用できる屋上テラスがございます。神宮前の街並みを望む開放的なスペースで、ランチや休憩、軽いミーティングなどに活用でき、従業員の満足度向上に寄与します。
Q. 周辺のランチや買い物の環境はどうですか?
A. 神宮前2丁目エリアは、隠れ家的なカフェやカレーの名店、多国籍料理店が点在しており、毎日の食事が楽しみになる環境です。コンビニも徒歩圏内にあり、日常の買い物もスムーズです。
Q. セキュリティや利用可能時間について教えてください。
A. 機械警備システムを導入しており、24時間安心して入退館が可能です。夜遅くまでの作業や休日の利用など、フレキシブルな働き方に対応しています。
地図
東京都渋谷区神宮前2-13-9 地図をクリックして拡大できます
BIRTH神宮前 の外観イメージ
神宮前の街並みに溶け込みつつも存在感を放つ、地上5階建てのデザイナーズビルです。ファサードは足元から天井まで続くガラスカーテンウォールと、素材感のあるコンクリートで構成されており、視認性とデザイン性を兼ね備えています。夜間には室内の灯りが漏れ出し、建物の表情を変えるため、昼夜問わず洗練された印象を与えます。








BIRTH神宮前 の周辺イメージ
物件のある神宮前2丁目は、「奥原宿」とも呼ばれる感度の高いエリアです。アパレルブランドのプレスルームやデザイン事務所が多く、街全体にクリエイティブな空気が漂っています。徒歩圏内にはおしゃれなカフェや飲食店が豊富にあり、クライアントとの打ち合わせ場所にも事欠きません。

BIRTH神宮前 のアクセス・ロケーション
3駅3路線を利用できるため、新宿・渋谷・六本木・銀座方面へのアクセスがバランスよく確保されています。
■北参道駅(徒歩9分): 2番出口からアクセス可能。副都心線を利用し、新宿三丁目や池袋、渋谷・横浜方面へダイレクトに移動でき、フットワーク軽く動けます。
■国立競技場駅(徒歩9分): A2出口からアクセス可能。都営大江戸線を利用し、六本木や青山一丁目、大門方面へ乗り換えなしでアクセスできます。
■外苑前駅(徒歩10分): 3番出口からアクセス可能。銀座線を利用し、表参道、赤坂見附、銀座、新橋方面への移動がスムーズで、営業活動に有利な立地です。
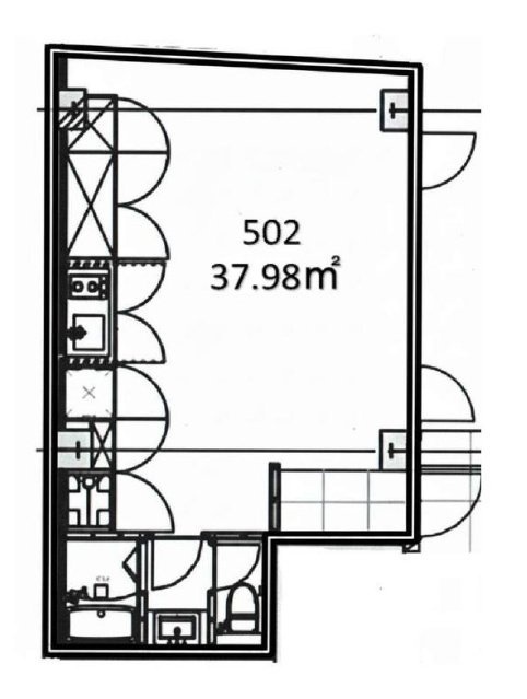
BIRTH神宮前 の募集終了区画
| 図面 | 階数 | 坪数 | 月額費用 | 坪単価 | 入居可能日 | |
|---|---|---|---|---|---|---|
![]() | 1階 | 24.51坪 | お問い合わせください | 募集終了 | 検討リスト | |
![]() | 1階 | 25.55坪 | お問い合わせください | 募集終了 | 検討リスト | |
![]() | 2階 | 13.16坪 | お問い合わせください | 募集終了 | 検討リスト | |
![]() | 2階 | 13.04坪 | お問い合わせください | 募集終了 | 検討リスト | |
![]() | 2階 | 12.36坪 | お問い合わせください | 募集終了 | 検討リスト | |
![]() | 2階 | 12.26坪 | お問い合わせください | 募集終了 | 検討リスト | |
![]() | 3階 | 13.16坪 | お問い合わせください | 募集終了 | 検討リスト | |
![]() | 3階 | 13.79坪 | お問い合わせください | 募集終了 | 検討リスト | |
![]() | 3階 | 13.11坪 | お問い合わせください | 募集終了 | 検討リスト | |
![]() | 3階 | 12.26坪 | お問い合わせください | 募集終了 | 検討リスト | |
![]() | 4階 | 13.16坪 | お問い合わせください | 募集終了 | 検討リスト | |
![]() | 4階 | 13.79坪 | お問い合わせください | 募集終了 | 検討リスト | |
![]() | 4階 | 9.52坪 | お問い合わせください | 募集終了 | 検討リスト | |
![]() | 4階 | 9.54坪 | お問い合わせください | 募集終了 | 検討リスト | |
![]() | 5階 | 10.47坪 | お問い合わせください | 募集終了 | 検討リスト | |
![]() | 5階 | 14.02坪 | お問い合わせください | 募集終了 | 検討リスト |
BIRTH神宮前 が選ばれる理由
■屋上テラスがもたらすウェルビーイング
都心の小規模ビルでは希少な屋上テラスを完備しています。外の空気を吸ってリフレッシュできる環境は、アイデア創出やストレス軽減に直結し、働く人のメンタルヘルスケアとしても機能します。
■クリエイティブを刺激するデザイン空間
2023年竣工のガラス張りデザインは、来訪者に「センスの良い企業」という印象を与えます。コンクリート打ちっ放しの内装は、アパレルやIT、デザイン系の企業ブランディングと親和性が高く、採用活動においてもプラスに働きます。
■神宮前2丁目というブランド立地
「原宿」の喧騒から少し離れた神宮前2丁目は、感度の高い大人が集まるエリアです。この場所にオフィスを構えること自体が、トレンドへの感度や独自のこだわりを持つ企業であることの証明となります。
近くの物件紹介
渋谷区のエリア
近くの駅
| 取扱態様 | 仲介 |
|---|---|
| 取扱会社 | 株式会社アドマイアー 東京都中央区日本橋3-2-3ユニバース第1ビル2F TEL. 03-5204-1031 宅地建物取引業免許 東京都知事(3)第94663号 マンション管理業免許 国土交通大臣(2)第034224号 賃貸住宅管理業免許 国土交通大臣(01)第005938号 |










































