都庁前駅、60坪~100坪の賃貸オフィス・貸事務所情報
都営大江戸線「都庁前駅」。東京都庁舎を中心とした超高層ビル群が建ち並ぶ、日本を代表する巨大ビジネスセンターの中枢です。新宿駅も徒歩圏内という圧倒的な機動力と、高度な都市インフラが整ったロケーション。世界基準の機能性と、都心のパノラマを享受できる、企業のアイデンティティを象徴する最高峰の拠点です。
検索結果 10 件
並び替え
新宿タツミビル(新宿区、西新宿、西新宿五丁目、都庁前)
- 所在地
- 東京都新宿区西新宿6-16-6
- 最寄り駅
- 西新宿五丁目駅徒歩5分、都庁前駅徒歩6分、西新宿駅徒歩7分
- 竣工
- 1985年
- 規模
- 地上11階
- 耐震基準
- 新耐震基準適合
- セキュリティ
- 機械警備(24時間監視)
- 駐車場設備
- 要確認
新宿タツミビル の募集区画 (総募集面積 67.02坪)
※月額費用、坪単価 ともに共益費込・税別の価格です
新宿NSビル(新宿区、西新宿、都庁前、新宿)
- 所在地
- 東京都新宿区西新宿2-4-1
- 最寄り駅
- 都庁前駅徒歩3分、新宿駅徒歩7分
- 竣工
- 1982年
- 規模
- 地上30階・地下3階
- セキュリティ
- 機械警備・有人管理(24時間体制)
- 駐車場設備
- 有(平置き343台)
西新宿エリアの象徴的なランドマークとして知られる地上30階建ての大規模オフィスビルです。新宿駅と地下道で直結しており、都庁に隣接する一等地の利便性とステータスを享受できます。2011年と2019年に基幹設備のリニューアルを完了しており、環境認証も取得済みの高いスペックを誇ります。1フロア約902坪の広大な平面形状は、大規模な集約移転や自由度の高いオフィスレイアウトに最適。テナント専用ラウンジや充実したカンファレンス施設など、従業員のエンゲージメントを高める共用設備も完備されています。
新宿NSビル の募集区画 (総募集面積 65.30坪)
※月額費用、坪単価 ともに共益費込・税別の価格です
新宿野村ビル(新宿区、西新宿、都庁前、新宿)
- 所在地
- 東京都新宿区西新宿1-26-2
- 最寄り駅
- 都庁前駅徒歩3分、西新宿駅徒歩4分、新宿駅徒歩7分
- 竣工
- 1978年
- 規模
- 地上50階・地下5階
- 耐震基準
- 新耐震基準適合・制震構造
- セキュリティ
- 機械警備・有人管理(24時間体制)
- 駐車場設備
- 有(330台(自走式))
西新宿のスカイラインを形成する地上50階・高さ約210mの超高層ビルです。最大の特徴は、2016年に導入された日本初の制震装置「デュアルTMD-NT」による卓越した安全性です。電力不要の装置が、停電時でも長周期地震動に対する制震性能を維持します。基準階は約382坪の整形無柱空間で、1/4フロア単位の空調制御が可能。地下道で新宿駅に直結する利便性に加え、敷地内には330台の大規模駐車場を完備しています。駐車場は時間貸し対応で、日中(6:00~24:00)の最大料金設定もあり、来客や営業車の運用において非常に実用的です。ハード面の強さとソフト面の柔軟さを兼ね備えた、BCP重視の企業に最適な物件です。
新宿野村ビル の募集区画 (総募集面積 155.27坪)
※月額費用、坪単価 ともに共益費込・税別の価格です
黒須ビル(新宿区、西新宿、西新宿五丁目、都庁前)
- 所在地
- 東京都新宿区西新宿5-11-3
- 最寄り駅
- 西新宿五丁目駅徒歩3分、西新宿駅徒歩11分、都庁前駅徒歩11分
- 竣工
- 1990年
- 規模
- 地上3階
- 耐震基準
- 新耐震基準適合
- 駐車場設備
- 要確認
黒須ビル の募集区画 (総募集面積 65.62坪)
※月額費用、坪単価 ともに共益費込・税別の価格です
新宿国際ビルディング新館(新宿区、西新宿、都庁前、新宿)
- 所在地
- 東京都新宿区西新宿6-6-3
- 最寄り駅
- 都庁前駅徒歩2分、西新宿駅徒歩3分、新宿駅徒歩7分
- 竣工
- 1985年
- 規模
- 地上10階・地下2階
- 耐震基準
- 新耐震基準適合
- セキュリティ
- 機械警備・有人管理(24時間体制)
- 駐車場設備
- 要確認
新宿国際ビルディング新館 の募集区画 (総募集面積 87.73坪)
※月額費用、坪単価 ともに共益費込・税別の価格です
新宿三井ビルディング(新宿区、西新宿、都庁前、新宿)
- 所在地
- 東京都新宿区西新宿2-1-1
- 最寄り駅
- 都庁前駅徒歩1分、西新宿駅徒歩2分、新宿駅徒歩6分
- 竣工
- 1974年
- 規模
- 地上55階・地下3階
- 耐震基準
- 耐震補強済み(新耐震相当)
- セキュリティ
- 機械警備・有人管理(24時間体制)
- 駐車場設備
- 有(290台)
- 設備
- 非常用発電機、 省エネ・環境配慮
新宿駅徒歩6分、都庁前駅直結の新宿三井ビルディングは、西新宿を象徴する日本屈指のハイグレード賃貸オフィスです。1フロア約580坪の広大な無柱空間は、最新の個別空調やOAフロアを備え、多様なワークスタイルに対応します。国内最大級の制震装置導入によりPML値0.9%という驚異的な安全性を実現。館内には飲食店や郵便局、クリニックが集積する「55City」を併設しており、利便性とBCP性能を極めたビジネス環境が企業の成長を強力に支援します。
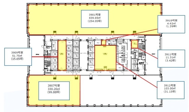
新宿三井ビルディング の募集区画 (総募集面積 99.88坪)
※月額費用、坪単価 ともに共益費込・税別の価格です
新宿セントランドビル(新宿区、西新宿、都庁前、新宿)
- 所在地
- 東京都新宿区西新宿3-5-1
- 最寄り駅
- 都庁前駅徒歩4分、新宿駅徒歩10分、西新宿駅徒歩10分
- 竣工
- 1994年
- 規模
- 地上10階
- 耐震基準
- 新耐震基準適合
- セキュリティ
- 機械警備(24時間監視)
- 駐車場設備
- 要確認
新宿セントランドビル の募集区画 (総募集面積 72.12坪)
※月額費用、坪単価 ともに共益費込・税別の価格です
フロンティアグラン西新宿(新宿区、西新宿、初台、都庁前)
- 所在地
- 東京都新宿区西新宿3-7-30
- 最寄り駅
- 初台駅徒歩10分、都庁前駅徒歩9分、新宿駅徒歩15分
- 竣工
- 1990年
- 規模
- 地上12階・地下3階
- 耐震基準
- 新耐震基準適合
- セキュリティ
- 機械警備(24時間監視)
- 駐車場設備
- 要確認
フロンティアグラン西新宿は、新宿区西新宿の十二社通りに近接する地上12階建てのハイグレードオフィスビルです。2023年2月に大規模な全面リニューアルを実施しており、内装や家具が完備されたフルセットアップオフィスとして提供されています。特筆すべきは入居者専用の付帯施設で、有人対応のビジネスラウンジに加え、本格的なワークアウトエリアやシャワー室、シミュレーションゴルフ、無料のドリンクコーナーまで備えています。最大3,850mmの開放的な天井高を活かした空間設計は、従来の貸事務所の枠を超えたクリエイティブな執務環境を実現しており、企業の生産性向上を強力に支援します。
フロンティアグラン西新宿 の募集区画 (総募集面積 93.20坪)
※月額費用、坪単価 ともに共益費込・税別の価格です
野村不動産西新宿共同ビル(新宿区、西新宿、都庁前、新宿)
- 所在地
- 東京都新宿区西新宿8-5-1
- 最寄り駅
- 西新宿駅徒歩1分、都庁前駅徒歩7分、新宿駅徒歩10分
- 竣工
- 1993年
- 規模
- 地上8階・地下1階
- 耐震基準
- 新耐震基準適合
- セキュリティ
- 機械警備(24時間監視)
- 駐車場設備
- 要確認
野村不動産西新宿共同ビル の募集区画 (総募集面積 95.03坪)
※月額費用、坪単価 ともに共益費込・税別の価格です
【エリアのオフィス市況】
国内最高クラスのスペックを誇るハイグレードな超高層ビルが密集するマーケットです。最新の制震・免震構造や強固なセキュリティインフラを享受でき、大手企業や外資系企業の本社が多く集積しています。賃料は高位ですが、都庁前という圧倒的なステータスと社会的信用を得られるため、企業のプレゼンスを盤石にしたい法人に最適です。
【交通アクセスと採用メリット】
大江戸線の分岐点であり、六本木や飯田橋へダイレクトに繋がるほか、新宿駅まで地下通路を介してアクセス可能です。この卓越した利便性は、多方面からの優秀な人材確保において最強の武器となります。新宿中央公園の広大な緑がリフレッシュ空間を提供。整備されたクリーンな環境は働く人々に高い誇りと満足度を与え、圧倒的な採用力を実現します。





















































































































