新横浜駅、100坪~200坪の賃貸オフィス・貸事務所情報
検索結果 31 件
並び替え
新横浜丸文ビル(横浜市港北区、新横浜、菊名、大倉山)
- 所在地
- 神奈川県横浜市港北区新横浜3-16-8
- 最寄り駅
- 新横浜駅徒歩6分、菊名駅徒歩11分、大倉山駅徒歩15分
- 竣工
- 1993年
- 規模
- 地上9階・地下1階
- 耐震基準
- 新耐震基準適合
- セキュリティ
- 機械警備・有人管理(24時間体制)
- 駐車場設備
- 要確認
新横浜丸文ビル の募集区画 (総募集面積 268.68坪)
※月額費用、坪単価 ともに共益費込・税別の価格です
WISE NEXT新横浜(横浜市港北区、新横浜、北新横浜、菊名)
- 所在地
- 神奈川県横浜市港北区新横浜2-5-14
- 最寄り駅
- 新横浜駅徒歩1分、北新横浜駅徒歩15分、菊名駅徒歩20分
- 竣工
- 1987年
- 規模
- 地上9階・地下1階
- 耐震基準
- 新耐震基準適合
- セキュリティ
- 機械警備・有人管理(24時間体制)
- 駐車場設備
- 有
WISE NEXT新横浜 の募集区画 (総募集面積 134.30坪)
※月額費用、坪単価 ともに共益費込・税別の価格です
tanosio shin-yokohama(タノシオ新横浜)(横浜市港北区、新横浜)
- 所在地
- 神奈川県横浜市港北区新横浜2-5-16
- 最寄り駅
- 新横浜駅徒歩2分
- 竣工
- 1998年
- 規模
- 地上9階・地下3階
- 耐震基準
- 新耐震基準適合
- 駐車場設備
- 要確認
tanosio shin-yokohama(タノシオ新横浜) の募集区画 (総募集面積 652.04坪)
| 図面 | 階数 | 坪数 | 月額費用 | 坪単価 | 入居可能日 | |
|---|---|---|---|---|---|---|
![]() | 8階 | 142.64坪 | お問い合わせください | 即時 | 検討リスト お問い合わせ | |
![]() | 1階 | 103.19坪 | お問い合わせください | 即時 | 検討リスト お問い合わせ | |
![]() | 9階 | 120.93坪 | お問い合わせください | 即時 | 検討リスト お問い合わせ | |
![]() | 7階 | 142.64坪 | お問い合わせください | 即時 | 検討リスト お問い合わせ | |
![]() | 6階 | 142.64坪 | お問い合わせください | 相談 | 検討リスト お問い合わせ |
※月額費用、坪単価 ともに共益費込・税別の価格です
いちご新横浜ビル(横浜市港北区、新横浜、菊名)
- 所在地
- 神奈川県横浜市港北区新横浜3-17-5
- 最寄り駅
- 新横浜駅徒歩4分、菊名駅徒歩20分
- 竣工
- 1992年
- 規模
- 地上9階・地下2階
- 耐震基準
- 新耐震基準適合
- セキュリティ
- 機械警備(24時間監視)
- 駐車場設備
- 要確認
いちご新横浜ビル の募集区画 (総募集面積 145.96坪)
※月額費用、坪単価 ともに共益費込・税別の価格です
Attend on Tower(横浜市港北区、新横浜)
- 所在地
- 神奈川県横浜市港北区新横浜2-8-12
- 最寄り駅
- 新横浜駅徒歩8分
- 竣工
- 2009年
- 規模
- 地上18階・地下1階
- 耐震基準
- 新耐震基準適合
- セキュリティ
- 機械警備(24時間監視)
- 駐車場設備
- 有(空室状況はご確認下さい)
Attend on Towerは、JR横浜線・市営地下鉄・東海道新幹線・東急新横浜線・相鉄新横浜線の5路線が利用可能な新横浜駅より徒歩8分に位置する2009年竣工のハイグレード大型高層ビルです。新耐震基準に適合した地下1階地上18階建ての堅牢な構造。2020年12月にエントランス、2021年4月に各階共用部のリノベーションを実施し、快適性が大幅に向上しています。天井高2,650mm、OAフロア90mm完備で、新横浜エリアを代表するハイグレードオフィスです。
Attend on Tower の募集区画 (総募集面積 146.18坪)
※月額費用、坪単価 ともに共益費込・税別の価格です
EPIC TOWER SHINYOKOHAMA(横浜市港北区、新横浜、菊名)
- 所在地
- 神奈川県横浜市港北区新横浜3-2-3
- 最寄り駅
- 新横浜駅徒歩6分、菊名駅徒歩15分
- 竣工
- 1993年
- 規模
- 地上20階・地下3階
- 耐震基準
- 新耐震基準適合
- セキュリティ
- 有人管理(警備員常駐)
- 駐車場設備
- 有(平置き110台)
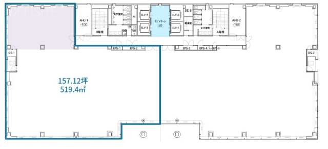
EPIC TOWER SHINYOKOHAMA の募集区画 (総募集面積 708.61坪)
| 図面 | 階数 | 坪数 | 月額費用 | 坪単価 | 入居可能日 | |
|---|---|---|---|---|---|---|
![]() | 8階 | 175.75坪 | お問い合わせください | 即時 | 検討リスト お問い合わせ | |
![]() | 13階 | 175.75坪 | お問い合わせください | 即時 | 検討リスト お問い合わせ | |
![]() | 9階 | 181.36坪 | お問い合わせください | 即時 | 検討リスト お問い合わせ | |
![]() | 18階 | 175.75坪 | お問い合わせください | 即時 | 検討リスト お問い合わせ |
※月額費用、坪単価 ともに共益費込・税別の価格です
アリーナタワー(横浜市港北区、新横浜)
- 所在地
- 神奈川県横浜市港北区新横浜3-1-9
- 最寄り駅
- 新横浜駅徒歩6分
- 竣工
- 2008年
- 規模
- 地上15階・地下1階
- 耐震基準
- 新耐震基準適合
- セキュリティ
- 機械警備・有人管理(24時間体制)
- 駐車場設備
- 要確認
アリーナタワー の募集区画 (総募集面積 296.95坪)
※月額費用、坪単価 ともに共益費込・税別の価格です
アーバンセンター新横浜(横浜市港北区、新横浜、小机)
- 所在地
- 神奈川県横浜市港北区新横浜2-2-8
- 最寄り駅
- 新横浜駅徒歩5分、小机駅徒歩21分
- 竣工
- 1992年
- 規模
- 地上11階・地下1階
- 耐震基準
- 新耐震基準適合
- セキュリティ
- 機械警備・有人管理(24時間体制)
- 駐車場設備
- 要確認
アーバンセンター新横浜 の募集区画 (総募集面積 122.01坪)
※月額費用、坪単価 ともに共益費込・税別の価格です
新横浜TECHビル A館(横浜市港北区、新横浜、菊名)
- 所在地
- 神奈川県横浜市港北区新横浜3-9-18
- 最寄り駅
- 新横浜駅徒歩6分、菊名駅徒歩15分
- 竣工
- 1988年
- 規模
- 地上9階・地下1階
- 耐震基準
- 新耐震基準適合
- セキュリティ
- 有人管理(警備員常駐)
- 駐車場設備
- 有(機械式78台)
新横浜TECHビル A館 の募集区画 (総募集面積 157.39坪)
※月額費用、坪単価 ともに共益費込・税別の価格です
新横浜SHビル(横浜市港北区、新横浜)
- 所在地
- 神奈川県横浜市港北区新横浜3-9-3
- 最寄り駅
- 新横浜駅徒歩7分
- 竣工
- 2009年
- 規模
- 地上11階・地下2階
- 耐震基準
- 新耐震基準適合
- セキュリティ
- 機械警備(24時間監視)
- 駐車場設備
- 有
新横浜SHビル の募集区画 (総募集面積 277.24坪)
※月額費用、坪単価 ともに共益費込・税別の価格です
スイテ新横浜(横浜市港北区、新横浜)
- 所在地
- 神奈川県横浜市港北区新横浜3-7-8
- 最寄り駅
- 新横浜駅徒歩5分
- 竣工
- 2025年
- 規模
- 地上14階・地下1階
- 耐震基準
- 新耐震基準適合
- セキュリティ
- 機械警備(24時間監視)
- 駐車場設備
- 要確認
スイテ新横浜 の募集区画 (総募集面積 1,174.08坪)
| 図面 | 階数 | 坪数 | 月額費用 | 坪単価 | 入居可能日 | |
|---|---|---|---|---|---|---|
![]() | 3階 | 195.62坪 | お問い合わせください | 即時 | 検討リスト お問い合わせ | |
![]() | 4階 | 195.62坪 | お問い合わせください | 即時 | 検討リスト お問い合わせ | |
![]() | 5階 | 195.62坪 | お問い合わせください | 即時 | 検討リスト お問い合わせ | |
![]() | 8階 | 195.62坪 | お問い合わせください | 即時 | 検討リスト お問い合わせ | |
![]() | 9階 | 195.62坪 | お問い合わせください | 即時 | 検討リスト お問い合わせ | |
![]() | 2階 | 195.98坪 | お問い合わせください | 即時 | 検討リスト お問い合わせ |
※月額費用、坪単価 ともに共益費込・税別の価格です
プライム新横浜ビル(横浜市港北区、新横浜、北新横浜、小机)
- 所在地
- 神奈川県横浜市港北区新横浜2-3-19
- 最寄り駅
- 新横浜駅徒歩2分、北新横浜駅徒歩21分、小机駅徒歩22分
- 竣工
- 1995年
- 規模
- 地上10階・地下2階
- 耐震基準
- 新耐震基準適合
- セキュリティ
- 機械警備・有人管理(24時間体制)
- 駐車場設備
- 要確認
プライム新横浜ビル の募集区画 (総募集面積 128.00坪)
※月額費用、坪単価 ともに共益費込・税別の価格です
ルーシッドスクエア新横浜(横浜市港北区、新横浜、北新横浜、菊名)
- 所在地
- 神奈川県横浜市港北区新横浜2-14-30
- 最寄り駅
- 新横浜駅徒歩2分、北新横浜駅徒歩17分、菊名駅徒歩23分
- 竣工
- 1991年
- 規模
- 地上8階・地下1階
- 耐震基準
- 新耐震基準適合
- セキュリティ
- 機械警備(24時間監視)
- 駐車場設備
- 有(機械式27台)
新横浜駅徒歩2分、4路線5駅利用可能の抜群のアクセス環境を誇るオフィスビルです。2021年にエントランス・エレベーターホール、2022年に共用部(給湯室・トイレ)のリニューアルを実施しており、快適な執務環境が整っています。2023年3月の東急新横浜線・相鉄新横浜線開業により、渋谷・目黒方面や二俣川方面へのアクセスも大幅に向上しました。天井高2,660mm、OAフロア40mm採用で、レイアウト自由度の高い空間です。新横浜駅前エリアは飲食店が充実しており、ビジネスホテルも複数棟隣接しているため、来客対応にも最適な立地です。
ルーシッドスクエア新横浜 の募集区画 (総募集面積 109.94坪)
※月額費用、坪単価 ともに共益費込・税別の価格です
サンハマダ(横浜市港北区、新横浜)
- 所在地
- 神奈川県横浜市港北区新横浜1-19-20
- 最寄り駅
- 新横浜駅徒歩7分
- 竣工
- 1993年
- 規模
- 地上8階・地下1階
- 耐震基準
- 新耐震基準適合
- セキュリティ
- 機械警備(24時間監視)
- 駐車場設備
- 要確認
サンハマダ の募集区画 (総募集面積 308.00坪)
※月額費用、坪単価 ともに共益費込・税別の価格です
ベネックスSー3(横浜市港北区、新横浜、菊名)
- 所在地
- 神奈川県横浜市港北区新横浜3-20-8
- 最寄り駅
- 新横浜駅徒歩5分、菊名駅徒歩20分
- 竣工
- 1994年
- 規模
- 地上12階・地下1階
- 耐震基準
- 新耐震基準適合
- セキュリティ
- 機械警備(24時間監視)
- 駐車場設備
- 要確認
ベネックスSー3 の募集区画 (総募集面積 110.00坪)
※月額費用、坪単価 ともに共益費込・税別の価格です










































































































































































































