千代田区、30坪~60坪の賃貸オフィス・貸事務所情報
日本経済と政治の中枢、「丸の内・大手町・永田町」を擁する千代田区。圧倒的なブランド力を持つオフィス街から、交通利便性とコストパフォーマンスを兼ね備えた「神田・飯田橋」エリアまで、オフィサイトでは1,000件以上の豊富な物件情報を取り揃えています。
検索結果 322 件
能楽書林ビル(千代田区神田神保町・九段下・飯田橋)
- 所在地
- 東京都千代田区神田神保町3-6
- 最寄り駅
- 九段下駅徒歩3分、神保町駅徒歩3分、飯田橋駅徒歩16分
- 竣工
- 1990年
- 規模
- 地上6階・地下2階
- 耐震基準
- 新耐震基準適合
- セキュリティ
- 機械警備(24時間監視)
- 駐車場設備
- 有
- 設備
- トイレ男女別
能楽書林ビル の募集区画 (総募集面積 35.50坪)
※月額費用、坪単価 ともに共益費込・税別の価格です
久月神田ビル(千代田区神田神保町・九段下・水道橋)
- 所在地
- 東京都千代田区神田神保町2-4-7
- 最寄り駅
- 神保町駅徒歩1分、九段下駅徒歩4分、水道橋駅徒歩7分
- 竣工
- 1988年
- 規模
- 地上8階
- 耐震基準
- 新耐震基準適合
- セキュリティ
- 機械警備(24時間監視)
- 駐車場設備
- 無
- 設備
- トイレ男女別
久月神田ビル の募集区画 (総募集面積 166.63坪)
| 図面 | 階数 | 坪数 | 月額費用 | 坪単価 | 入居可能日 | |
|---|---|---|---|---|---|---|
![]() | 7階 | 55.55坪 | 賃料を確認する (無料・1分) | 即時 | 検討リスト お問い合わせ | |
![]() | 6階 | 55.56坪 | 賃料を確認する (無料・1分) | 即時 | 検討リスト お問い合わせ | |
![]() | 8階 | 55.52坪 | 賃料を確認する (無料・1分) | 即時 | 検討リスト お問い合わせ |
※月額費用、坪単価 ともに共益費込・税別の価格です
九段下SSTビル(千代田区神田神保町・九段下・水道橋)
- 所在地
- 東京都千代田区神田神保町3-4-29
- 最寄り駅
- 九段下駅徒歩1分、神保町駅徒歩7分、水道橋駅徒歩9分
- 竣工
- 2008年
- 規模
- 地上8階
- 耐震基準
- 新耐震基準適合
- セキュリティ
- 機械警備(24時間監視)
- 駐車場設備
- 無
- 設備
- 24時間(要ICカード)、 トイレ男女別
九段下SSTビル の募集区画 (総募集面積 31.40坪)
| 図面 | 階数 | 坪数 | 月額費用 | 坪単価 | 入居可能日 | |
|---|---|---|---|---|---|---|
![]() | 2階 | 31.40坪 | 賃料を確認する (無料・1分) | 即時 | 検討リスト お問い合わせ |
※月額費用、坪単価 ともに共益費込・税別の価格です
神保町カンナビル(千代田区神田神保町・水道橋)
- 所在地
- 東京都千代田区神田神保町2-22-3
- 最寄り駅
- 神保町駅徒歩2分、水道橋駅徒歩6分
- 竣工
- 1992年
- 規模
- 地上5階・地下1階
- 耐震基準
- 新耐震基準適合
- セキュリティ
- 機械警備(24時間監視)
- 駐車場設備
- 無
- 設備
- トイレ男女別
神保町カンナビル の募集区画 (総募集面積 44.42坪)
※月額費用、坪単価 ともに共益費込・税別の価格です
いちご神保町(三井生命神保町)ビル(千代田区神田神保町・九段下・小川町)
- 所在地
- 東京都千代田区神田神保町1-11-1
- 最寄り駅
- 神保町駅徒歩1分、九段下駅徒歩9分、小川町駅徒歩12分
- 竣工
- 1994年
- 規模
- 地上11階・地下2階
- 耐震基準
- 新耐震基準適合
- セキュリティ
- 機械警備(24時間監視)
- 駐車場設備
- 無
- 設備
- 24時間(要ICカード)、 トイレ男女別
いちご神保町(三井生命神保町)ビル の募集区画 (総募集面積 42.50坪)
| 図面 | 階数 | 坪数 | 月額費用 | 坪単価 | 入居可能日 | |
|---|---|---|---|---|---|---|
![]() | 3階 | 42.50坪 | 賃料を確認する (無料・1分) | 2026/7/1 | 検討リスト お問い合わせ |
※月額費用、坪単価 ともに共益費込・税別の価格です
VORT神保町Ⅳ(千代田区神田神保町・新御茶ノ水・小川町)
- 所在地
- 東京都千代田区神田神保町1-22-2
- 最寄り駅
- 神保町駅徒歩3分、新御茶ノ水駅徒歩7分、小川町駅徒歩7分
- 竣工
- 2022年
- 規模
- 地上11階
- 耐震基準
- 新耐震基準適合
- セキュリティ
- 機械警備(24時間監視)
- 駐車場設備
- 無
VORT神保町Ⅳ の募集区画 (総募集面積 39.44坪)
| 図面 | 階数 | 坪数 | 月額費用 | 坪単価 | 入居可能日 | |
|---|---|---|---|---|---|---|
![]() | 5階 | 39.44坪 | 賃料を確認する (無料・1分) | 2026/7/1 | 検討リスト お問い合わせ |
※月額費用、坪単価 ともに共益費込・税別の価格です
NOVEL WORK Jimbocho(千代田区神田神保町・水道橋)
- 所在地
- 東京都千代田区神田神保町2-8-20
- 最寄り駅
- 神保町駅徒歩3分、水道橋駅徒歩8分
- 竣工
- 1986年
- 規模
- 地上7階
- 耐震基準
- 新耐震基準適合
- セキュリティ
- 機械警備(24時間監視)
- 駐車場設備
- 無
- 設備
- オフィス専用ゾーン制御、 リニューアル済み、 トイレ男女別
NOVEL WORK Jimbocho の募集区画 (総募集面積 50.25坪)
※月額費用、坪単価 ともに共益費込・税別の価格です
塚本ビル(千代田区神田神保町・九段下・水道橋)
- 所在地
- 東京都千代田区神田神保町3-2-9
- 最寄り駅
- 九段下駅徒歩3分、神保町駅徒歩3分、水道橋駅徒歩10分
- 竣工
- 1981年
- 規模
- 地上8階
- セキュリティ
- 共用部警備なし(簡易管理)
- 駐車場設備
- 無
塚本ビル の募集区画 (総募集面積 33.00坪)
※月額費用、坪単価 ともに共益費込・税別の価格です
神保町センタービル(千代田区神田神保町・九段下・竹橋)
- 所在地
- 東京都千代田区神田神保町2-5-11
- 最寄り駅
- 神保町駅徒歩1分、九段下駅徒歩8分、竹橋駅徒歩8分
- 竣工
- 1985年
- 規模
- 地上8階・地下1階
- 耐震基準
- 新耐震基準適合
- セキュリティ
- 機械警備(24時間監視)
- 駐車場設備
- 無
- 設備
- リニューアル済み、 トイレ男女別
神保町センタービル の募集区画 (総募集面積 48.26坪)
| 図面 | 階数 | 坪数 | 月額費用 | 坪単価 | 入居可能日 | |
|---|---|---|---|---|---|---|
![]() | 4階 | 48.26坪 | 賃料を確認する (無料・1分) | 即時 | 検討リスト お問い合わせ |
※月額費用、坪単価 ともに共益費込・税別の価格です
l&Kビル(千代田区神田神保町・九段下・竹橋)
- 所在地
- 東京都千代田区神田神保町2-12-3
- 最寄り駅
- 神保町駅徒歩1分、九段下駅徒歩6分、竹橋駅徒歩10分
- 竣工
- 1974年
- 規模
- 地上7階
- 駐車場設備
- 無
- 設備
- トイレ男女別
l&Kビル の募集区画 (総募集面積 32.58坪)
※月額費用、坪単価 ともに共益費込・税別の価格です
Y’sコーラルビル(千代田区神田神保町・九段下・水道橋)
- 所在地
- 東京都千代田区神田神保町2-20-13
- 最寄り駅
- 神保町駅徒歩2分、九段下駅徒歩5分、水道橋駅徒歩8分
- 竣工
- 1989年
- 規模
- 地上7階
- 耐震基準
- 新耐震基準適合
- セキュリティ
- 機械警備(24時間監視)
- 駐車場設備
- 無
- 設備
- 24時間(要ICカード)、 土日祝エントランス開放
Y’sコーラルビル の募集区画 (総募集面積 43.08坪)
※月額費用、坪単価 ともに共益費込・税別の価格です
神田荒木ビル(千代田区神田須田町・淡路町・小川町・秋葉原)
- 所在地
- 東京都千代田区神田須田町1-14-6
- 最寄り駅
- 淡路町駅徒歩3分、小川町駅徒歩4分、秋葉原駅徒歩7分
- 竣工
- 1982年
- 規模
- 地上10階
- セキュリティ
- 機械警備(24時間監視)
- 駐車場設備
- 要確認
神田荒木ビル の募集区画 (総募集面積 30.03坪)
※月額費用、坪単価 ともに共益費込・税別の価格です
神田須田町117ビルディング(千代田区神田須田町・淡路町・新御茶ノ水・秋葉原)
- 所在地
- 東京都千代田区神田須田町1-17-8
- 最寄り駅
- 淡路町駅徒歩2分、新御茶ノ水駅徒歩2分、秋葉原駅徒歩8分
- 竣工
- 1988年
- 規模
- 地上6階
- 耐震基準
- 新耐震基準適合
- セキュリティ
- 機械警備(24時間監視)
- 駐車場設備
- 無
- 設備
- 非接触ICカード
神田須田町117ビルディング の募集区画 (総募集面積 38.63坪)
※月額費用、坪単価 ともに共益費込・税別の価格です
須田町ビル(千代田区神田須田町・淡路町・秋葉原)
- 所在地
- 東京都千代田区神田須田町1-3-1
- 最寄り駅
- 淡路町駅徒歩2分、神田駅徒歩3分、秋葉原駅徒歩7分
- 竣工
- 1993年
- 規模
- 地上10階・地下1階
- 耐震基準
- 新耐震基準適合
- セキュリティ
- 機械警備(24時間監視)
- 駐車場設備
- 無
- 設備
- トイレ男女別
須田町ビル の募集区画 (総募集面積 63.54坪)
| 図面 | 階数 | 坪数 | 月額費用 | 坪単価 | 入居可能日 | |
|---|---|---|---|---|---|---|
![]() | 2階 | 30.89坪 | 賃料を確認する (無料・1分) | 即時 | 検討リスト お問い合わせ | |
![]() | 7階 | 32.65坪 | 賃料を確認する (無料・1分) | 即時 | 検討リスト お問い合わせ |
※月額費用、坪単価 ともに共益費込・税別の価格です
NCO神田須田町ビル(千代田区神田須田町・淡路町・小川町)
- 所在地
- 東京都千代田区神田須田町1-4-8
- 最寄り駅
- 淡路町駅徒歩2分、小川町駅徒歩2分、神田駅徒歩6分
- 竣工
- 1991年
- 規模
- 地上9階
- 耐震基準
- 新耐震基準適合
- セキュリティ
- 機械警備(24時間監視)
- 駐車場設備
- 無
- 設備
- トイレ男女別
NCO神田須田町ビル の募集区画 (総募集面積 37.68坪)
| 図面 | 階数 | 坪数 | 月額費用 | 坪単価 | 入居可能日 | |
|---|---|---|---|---|---|---|
![]() | 2階 | 37.68坪 | 賃料を確認する (無料・1分) | 即時 | 検討リスト お問い合わせ |
※月額費用、坪単価 ともに共益費込・税別の価格です
Cocoro Kanda Bldg.(千代田区神田須田町・岩本町・秋葉原)
- 所在地
- 東京都千代田区神田須田町2-2-5
- 最寄り駅
- 岩本町駅徒歩3分、神田駅徒歩2分、秋葉原駅徒歩6分
- 竣工
- 1983年
- 規模
- 地上8階・地下2階
- 耐震基準
- 新耐震基準適合
- セキュリティ
- 機械警備(24時間監視)
- 駐車場設備
- 有
- 設備
- トイレ男女別
Cocoro Kanda Bldg. の募集区画 (総募集面積 88.32坪)
| 図面 | 階数 | 坪数 | 月額費用 | 坪単価 | 入居可能日 | |
|---|---|---|---|---|---|---|
![]() | 6階 | 44.16坪 | 賃料を確認する (無料・1分) | 即時 | 検討リスト お問い合わせ | |
![]() | 5階 | 44.16坪 | 賃料を確認する (無料・1分) | 即時 | 検討リスト お問い合わせ |
※月額費用、坪単価 ともに共益費込・税別の価格です
宮川ビル(千代田区神田須田町・岩本町・秋葉原)
- 所在地
- 東京都千代田区神田須田町2-9-2
- 最寄り駅
- 岩本町駅徒歩3分、秋葉原駅徒歩5分、神田駅徒歩8分
- 竣工
- 1980年
- 規模
- 地上9階・地下1階
- 耐震基準
- 耐震補強済み(新耐震相当)
- セキュリティ
- 機械警備(24時間監視)
- 駐車場設備
- 無
- 設備
- トイレ男女別
宮川ビル の募集区画 (総募集面積 50.76坪)
※月額費用、坪単価 ともに共益費込・税別の価格です
クレス不動産神田ビル(千代田区神田須田町・淡路町・小川町)
- 所在地
- 東京都千代田区神田須田町1-32
- 最寄り駅
- 淡路町駅徒歩3分、小川町駅徒歩3分、神田駅徒歩3分
- 竣工
- 1991年
- 規模
- 地上5階・地下1階
- 耐震基準
- 新耐震基準適合
- セキュリティ
- 機械警備(24時間監視)
- 駐車場設備
- 有
- 設備
- トイレ男女別
クレス不動産神田ビル の募集区画 (総募集面積 37.17坪)
※月額費用、坪単価 ともに共益費込・税別の価格です
MA SQUARE AKIHABARA(千代田区神田須田町・岩本町・淡路町・秋葉原)
- 所在地
- 東京都千代田区神田須田町2-1-1
- 最寄り駅
- 神田駅徒歩2分、岩本町駅徒歩3分、淡路町駅徒歩5分
- 竣工
- 1990年
- 規模
- 地上8階・地下1階
- 耐震基準
- 新耐震基準適合
- セキュリティ
- 機械警備(24時間監視)
- 駐車場設備
- 無
- 設備
- リニューアル済み、 トイレ男女別
MA SQUARE AKIHABARA の募集区画 (総募集面積 79.96坪)
| 図面 | 階数 | 坪数 | 月額費用 | 坪単価 | 入居可能日 | |
|---|---|---|---|---|---|---|
![]() | 3階 | 39.98坪 | 959,520円 | 24,000円 | 即時 | 検討リスト お問い合わせ |
![]() | 7階 | 39.98坪 | 959,520円 | 24,000円 | 2026/7/1 | 検討リスト お問い合わせ |
※月額費用、坪単価 ともに共益費込・税別の価格です
弓矢四国ビル(千代田区神田須田町・淡路町・小川町)
- 所在地
- 東京都千代田区神田須田町1-6
- 最寄り駅
- 淡路町駅徒歩1分、小川町駅徒歩1分、神田駅徒歩5分
- 竣工
- 1986年
- 規模
- 地上8階・地下1階
- 耐震基準
- 新耐震基準適合
- 駐車場設備
- 無
弓矢四国ビル の募集区画 (総募集面積 30.00坪)
※月額費用、坪単価 ともに共益費込・税別の価格です
ACN神田須田町ビル(千代田区神田須田町・淡路町・岩本町)
- 所在地
- 東京都千代田区神田須田町1-24-6
- 最寄り駅
- 神田駅徒歩3分、淡路町駅徒歩5分、岩本町駅徒歩5分
- 竣工
- 2008年
- 規模
- 地上11階
- 耐震基準
- 新耐震基準適合
- セキュリティ
- 機械警備(24時間監視)
- 駐車場設備
- 無
- 設備
- トイレ男女別
ACN神田須田町ビル の募集区画 (総募集面積 77.52坪)
| 図面 | 階数 | 坪数 | 月額費用 | 坪単価 | 入居可能日 | |
|---|---|---|---|---|---|---|
![]() | 3階 | 43.06坪 | 賃料を確認する (無料・1分) | 2026/9 | 検討リスト お問い合わせ | |
![]() | 11階 | 34.46坪 | 賃料を確認する (無料・1分) | 2026/8 | 検討リスト お問い合わせ |
※月額費用、坪単価 ともに共益費込・税別の価格です
PMO神田岩本町(千代田区神田須田町・岩本町・秋葉原・淡路町)
- 所在地
- 東京都千代田区神田須田町2-9-2
- 最寄り駅
- 岩本町駅徒歩1分、秋葉原駅徒歩5分、神田駅徒歩5分
- 竣工
- 2017年
- 規模
- 地上10階
- 耐震基準
- 高耐震構造(新耐震基準適合)
- セキュリティ
- 機械警備(24時間監視)
- 駐車場設備
- 有(4台・平置)
- 設備
- 24時間(要ICカード)、 トイレ男女別
PMO神田岩本町 の募集区画 (総募集面積 59.92坪)
| 図面 | 階数 | 坪数 | 月額費用 | 坪単価 | 入居可能日 | |
|---|---|---|---|---|---|---|
![]() | 10階 | 59.92坪 | 賃料を確認する (無料・1分) | 2026/11/15 | 検討リスト お問い合わせ |
※月額費用、坪単価 ともに共益費込・税別の価格です
日宝秋葉原ビル(千代田区神田須田町・岩本町・秋葉原)
- 所在地
- 東京都千代田区神田須田町2-25-16
- 最寄り駅
- 岩本町駅徒歩2分、秋葉原駅徒歩4分、神田駅徒歩7分
- 竣工
- 2010年
- 規模
- 地上13階
- 耐震基準
- 新耐震基準適合
- セキュリティ
- 機械警備(24時間監視)
- 駐車場設備
- 無
- 設備
- 24時間(要ICカード)、 トイレ男女別
日宝秋葉原ビル の募集区画 (総募集面積 40.69坪)
※月額費用、坪単価 ともに共益費込・税別の価格です
Biz Feel Kanda(旧 TRUST VALUE神田須田町)(千代田区神田須田町・小川町・淡路町・新御茶ノ水)
- 所在地
- 東京都千代田区神田須田町1-4-6
- 最寄り駅
- 小川町駅徒歩2分、淡路町駅徒歩2分、神田駅徒歩5分
- 竣工
- 1989年
- 規模
- 地上7階・地下1階
- 耐震基準
- 新耐震基準適合
- セキュリティ
- 機械警備(24時間監視)
- 駐車場設備
- 無
- 設備
- 24時間(要ICカード)、 リニューアル済み、 トイレ男女別
Biz Feel Kanda(旧 TRUST VALUE神田須田町) の募集区画 (総募集面積 35.69坪)
※月額費用、坪単価 ともに共益費込・税別の価格です
D2SM (ディズム)(千代田区神田須田町・淡路町)
- 所在地
- 東京都千代田区神田須田町1-34-3
- 最寄り駅
- 神田駅徒歩1分、淡路町駅徒歩5分
- 竣工
- 2024年
- 規模
- 地上9階
- 耐震基準
- 高耐震構造(新耐震基準適合)
- セキュリティ
- 機械警備(24時間監視)
- 駐車場設備
- 無
D2SM (ディズム) の募集区画 (総募集面積 116.31坪)
| 図面 | 階数 | 坪数 | 月額費用 | 坪単価 | 入居可能日 | |
|---|---|---|---|---|---|---|
![]() | 2階 | 38.77坪 | 賃料を確認する (無料・1分) | 相談 | 検討リスト お問い合わせ | |
![]() | 4階 | 38.77坪 | 賃料を確認する (無料・1分) | 相談 | 検討リスト お問い合わせ | |
![]() | 5階 | 38.77坪 | 賃料を確認する (無料・1分) | 相談 | 検討リスト お問い合わせ |
※月額費用、坪単価 ともに共益費込・税別の価格です
神田ミハマビル(千代田区神田須田町・淡路町・岩本町・小川町)
- 所在地
- 東京都千代田区神田須田町1-7-5
- 最寄り駅
- 神田駅徒歩7分、淡路町駅徒歩5分、岩本町駅徒歩5分
- 竣工
- 1986年
- 規模
- 地上10階
- 耐震基準
- 新耐震基準適合
- セキュリティ
- 機械警備(24時間監視)
- 駐車場設備
- 有
- 設備
- トイレ男女別
神田ミハマビル の募集区画 (総募集面積 34.60坪)
※月額費用、坪単価 ともに共益費込・税別の価格です
駿河台フジヴュービル(千代田区神田駿河台・御茶ノ水・水道橋・神保町)
- 所在地
- 東京都千代田区神田駿河台2-9-12
- 最寄り駅
- 御茶ノ水駅徒歩7分、水道橋駅徒歩8分、神保町駅徒歩9分
- 竣工
- 1988年
- 規模
- 地上9階
- 耐震基準
- 新耐震基準適合
- セキュリティ
- 機械警備(24時間監視)
- 駐車場設備
- 無
- 設備
- トイレ男女別
駿河台フジヴュービル の募集区画 (総募集面積 41.40坪)
| 図面 | 階数 | 坪数 | 月額費用 | 坪単価 | 入居可能日 | |
|---|---|---|---|---|---|---|
![]() | 1階 | 41.40坪 | 賃料を確認する (無料・1分) | 相談 | 検討リスト お問い合わせ |
※月額費用、坪単価 ともに共益費込・税別の価格です
村田ビル(千代田区神田駿河台・御茶ノ水・新御茶ノ水・神保町)
- 所在地
- 東京都千代田区神田駿河台2-5
- 最寄り駅
- 御茶ノ水駅徒歩2分、新御茶ノ水駅徒歩4分、神保町駅徒歩10分
- 竣工
- 1986年
- 規模
- 地上10階・地下1階
- 耐震基準
- 新耐震基準適合
- セキュリティ
- 機械警備(24時間監視)
- 駐車場設備
- 有
村田ビル の募集区画 (総募集面積 38.50坪)
| 図面 | 階数 | 坪数 | 月額費用 | 坪単価 | 入居可能日 | |
|---|---|---|---|---|---|---|
![]() | 4階 | 38.50坪 | 賃料を確認する (無料・1分) | 相談 契約締結から約1か月後 | 検討リスト お問い合わせ |
※月額費用、坪単価 ともに共益費込・税別の価格です
駿河台スカイビル(千代田区神田駿河台・御茶ノ水・水道橋・新御茶ノ水)
- 所在地
- 東京都千代田区神田駿河台2-3-16
- 最寄り駅
- 御茶ノ水駅徒歩5分、水道橋駅徒歩5分、新御茶ノ水駅徒歩7分
- 竣工
- 1990年
- 規模
- 地上7階
- 耐震基準
- 新耐震基準適合
- セキュリティ
- 機械警備(24時間監視)
- 駐車場設備
- 無
- 設備
- トイレ男女別
駿河台スカイビル の募集区画 (総募集面積 34.00坪)
※月額費用、坪単価 ともに共益費込・税別の価格です
駿河台サンライズ(千代田区神田駿河台・御茶ノ水・水道橋・神保町)
- 所在地
- 東京都千代田区神田駿河台2-11-1
- 最寄り駅
- 御茶ノ水駅徒歩6分、水道橋駅徒歩8分、神保町駅徒歩9分
- 竣工
- 1987年
- 規模
- 地上6階・地下2階
- 耐震基準
- 新耐震基準適合
- セキュリティ
- 機械警備(24時間監視)
- 駐車場設備
- 無
- 設備
- トイレ男女別
駿河台サンライズ の募集区画 (総募集面積 106.10坪)
| 図面 | 階数 | 坪数 | 月額費用 | 坪単価 | 入居可能日 | |
|---|---|---|---|---|---|---|
![]() | B2階 | 51.60坪 | 928,800円 | 18,000円 | 即時 | 検討リスト お問い合わせ |
![]() | 3階 | 54.50坪 | 1,144,500円 | 21,000円 | 即時 | 検討リスト お問い合わせ |
※月額費用、坪単価 ともに共益費込・税別の価格です
御茶ノ水駅前ビル(千代田区神田駿河台・御茶ノ水・新御茶ノ水・神保町)
- 所在地
- 東京都千代田区神田駿河台2-1-18
- 最寄り駅
- 御茶ノ水駅徒歩2分、新御茶ノ水駅徒歩3分、神保町駅徒歩10分
- 竣工
- 1988年
- 規模
- 地上7階・地下1階
- 耐震基準
- 新耐震基準適合
- セキュリティ
- 機械警備(24時間監視)
- 駐車場設備
- 有
- 設備
- 24時間(要ICカード)、 トイレ男女別
御茶ノ水駅前ビル の募集区画 (総募集面積 54.42坪)
※月額費用、坪単価 ともに共益費込・税別の価格です
サンジュ共和十番館(千代田区神田駿河台・小川町・淡路町・新御茶ノ水)
- 所在地
- 東京都千代田区神田駿河台3-5-4
- 最寄り駅
- 小川町駅徒歩3分、淡路町駅徒歩3分、新御茶ノ水駅徒歩3分
- 竣工
- 1986年
- 規模
- 地上8階
- 耐震基準
- 新耐震基準適合
- セキュリティ
- 機械警備(24時間監視)
- 駐車場設備
- 無
- 設備
- 24時間(要ICカード)、 リニューアル済み、 トイレ男女別、 土日祝エントランス開放
サンジュ共和十番館 の募集区画 (総募集面積 48.76坪)
※月額費用、坪単価 ともに共益費込・税別の価格です
合人社御茶ノ水ビル(千代田区神田駿河台・水道橋)
- 所在地
- 東京都千代田区神田駿河台2-9-13
- 最寄り駅
- 水道橋駅徒歩7分
- 竣工
- 1995年
- 規模
- 地上8階・地下1階
- 耐震基準
- 新耐震基準適合
- セキュリティ
- 機械警備(24時間監視)
- 駐車場設備
- 無
- 設備
- トイレ男女別
合人社御茶ノ水ビル の募集区画 (総募集面積 42.25坪)
| 図面 | 階数 | 坪数 | 月額費用 | 坪単価 | 入居可能日 | |
|---|---|---|---|---|---|---|
準備中 | B1階 | 42.25坪 | 賃料を確認する (無料・1分) | 即時 | 検討リスト お問い合わせ |
※月額費用、坪単価 ともに共益費込・税別の価格です
(仮)SK-K神田駿河台計画(千代田区神田駿河台・御茶ノ水・新御茶ノ水)
- 所在地
- 東京都千代田区神田駿河台2-10-4
- 最寄り駅
- 御茶ノ水駅徒歩2分、新御茶ノ水駅徒歩2分
- 竣工
- 2026年
- 規模
- 地上9階
- 耐震基準
- 高耐震構造(新耐震基準適合)
- セキュリティ
- 機械警備・有人管理(24時間体制)
- 駐車場設備
- 無
- 設備
- 屋上テラス(ルーフトップテラス)
(仮)SK-K神田駿河台計画 の募集区画 (総募集面積 405.28坪)
| 図面 | 階数 | 坪数 | 月額費用 | 坪単価 | 入居可能日 | |
|---|---|---|---|---|---|---|
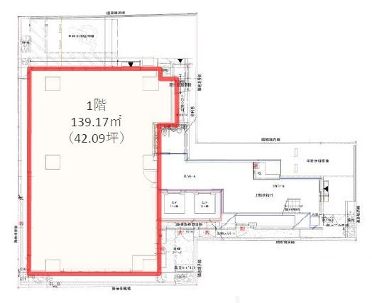
![]() | 1階 | 42.09坪 | 賃料を確認する (無料・1分) | 2026/10/上 | 検討リスト お問い合わせ | |
![]() | 2階 | 43.20坪 | 賃料を確認する (無料・1分) | 2026/10/上 | 検討リスト お問い合わせ | |
![]() | 3階 | 53.14坪 | 1,381,640円 | 26,000円 | 2026/10/上 | 検討リスト お問い合わせ |
![]() | 4階 | 53.37坪 | 1,387,620円 | 26,000円 | 2026/10/上 | 検討リスト お問い合わせ |
![]() | 5階 | 53.37坪 | 1,387,620円 | 26,000円 | 2026/10/上 | 検討リスト お問い合わせ |
![]() | 6階 | 53.37坪 | 1,387,620円 | 26,000円 | 2026/10/上 | 検討リスト お問い合わせ |
![]() | 7階 | 53.37坪 | 1,387,620円 | 26,000円 | 2026/10/上 | 検討リスト お問い合わせ |
![]() | 8階 | 53.37坪 | 1,387,620円 | 26,000円 | 2026/10/上 | 検討リスト お問い合わせ |
※月額費用、坪単価 ともに共益費込・税別の価格です
【千代田区のオフィス市況・特徴】
皇居を中心に、日本を代表する大企業や官公庁が集積する千代田区は、企業の「社会的信用」を最も得やすいエリアです。丸の内・大手町のハイグレードビルは空室率が低く人気ですが、神田や岩本町周辺まで視野を広げると、割安で使い勝手の良い中小規模オフィスも多数見つかります。
【交通アクセス】
巨大ターミナル「東京駅」をはじめ、「大手町」「神田」「秋葉原」「飯田橋」など、区内全域に地下鉄とJR網が張り巡らされています。都内どこへ行くにもアクセスが良く、採用活動においても圧倒的な優位性を持つエリアです。




































































































































































































































































































































































































































