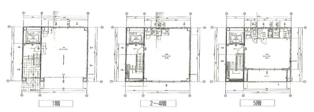
Art inn Ⅱ 1階 61.38坪(台東区蔵前・田原町・浅草橋)
都営浅草線・大江戸線の蔵前駅から徒歩2分、江戸通りから至近の好立地に位置する2016年竣工の築浅デザインビルです。地上5階建てのコンパクトな一棟貸し、あるいはフロア占有に適した規模であり、新耐震基準に適合した堅実な構造と現代的な外観意匠を兼ね備えています。蔵前エリアは近年、古い建物をリノベーションしたカフェやクリエイティブ拠点が集積する「東京のブルックリン」として注目を集めており、本物件の洗練された佇まいはその街並みに調和しています。室内は使い勝手の良い整形フロアで構成され、各階に専用トイレと個別空調を備えるなど、機能面でも妥協がありません。自社のアイデンティティを表現しやすい一棟利用や、独立性を重視するデザイン事務所、スタートアップ企業にとって、エリア内でも希少価値の高い有力な選択肢となります。
| 賃料 | 1,600,000円 台東区の平均坪単価: 15,070円(参考) |
|---|---|
| 所在地 | 東京都台東区蔵前 |
| 入居可能日 | 即時 |
| 最寄り駅 | 蔵前駅徒歩2分、田原町駅徒歩9分 |
| 最終更新 | 2026年3月6日 |
募集中
| 種別(用途) | 事務所 |
|---|---|
| 階数 | 1階 |
| 部屋番号 | 1F~5F |
| 面積 | 61.38坪 |
| 賃料 | 賃料を確認する(無料・1分) |
| 共益費 | 0円(坪単価0円) |
| 合計 | 1,600,000円(坪単価26,067円) |
| 敷金・保証金 | 9,600,000円(6ヶ月) |
| 更新料 | なし |
| 償却 | 1ヶ月 |
| 礼金 | なし |
| 契約形態・期間 | 定期借家 5年 |
| 空調方式 | 要確認 |
| 床仕様 | 要確認 |
| 天井高 | 要確認 |
| フロア特徴 | 1棟貸し |
※月額費用、坪単価ともに税別の価格です
Art inn Ⅱ の情報
- 所在地
- 東京都台東区蔵前2-14-4
- 最寄り駅
- 蔵前駅徒歩2分、田原町駅徒歩9分、浅草橋駅徒歩11分
- 竣工
- 2016年
- 規模
- 地上5階
- 構造
- S造(鉄骨造)
- 耐震基準
- 新耐震基準適合
- セキュリティ
- 機械警備(24時間監視)
- エントランス
- 平日開放
- エレベーター総数
- 1基
- 駐車場設備
- 無
賃料相場
35件のデータ
Art inn Ⅱ の募集区画 (総募集面積 61.38坪)
※月額費用、坪単価 ともに共益費込・税別の価格です
Art inn Ⅱ の内装イメージ
室内は新耐震・築浅物件ならではの清潔感と機能性が同居しています。1フロアあたりの面積は限られていますが、専用トイレや個別空調が独立して配置されているため、各階で完結した業務環境を構築できます。光ファイバー導入に対応し、ITワークスタイルを支えるインフラも整った実務的な仕様です。
近くの物件紹介
台東区のエリア
近くの駅
| 取扱態様 | 仲介 |
|---|---|
| 取扱会社 | 株式会社アドマイアー 東京都中央区日本橋3-2-3ユニバース第1ビル2F TEL. 03-5204-1031 宅地建物取引業免許 東京都知事(3)第94663号 マンション管理業免許 国土交通大臣(2)第034224号 賃貸住宅管理業免許 国土交通大臣(01)第005938号 |


































