浅草橋・蔵前の賃貸オフィス・貸事務所情報
浅草橋・蔵前エリアは台東区に位置し、都営浅草線「浅草橋駅」「蔵前駅」、都営大江戸線「蔵前駅」を中心とした地域です。主要施設には「鳥越神社」「隅田川デッキ」「精華公園」などがあり、江戸時代の歴史を感じられる下町風情が特徴です。問屋街として栄えた浅草橋と、おしゃれなカフェやリノベーション施設が増える蔵前が融合し、賃貸オフィスにも適した利便性の高いエリアです。
検索結果 55 件
信成ビル(台東区、浅草橋、馬喰町、蔵前)
- 所在地
- 東京都台東区浅草橋1-10-7
- 最寄り駅
- 浅草橋駅徒歩1分、馬喰町駅徒歩8分、蔵前駅徒歩8分
- 竣工
- 1989年
- 規模
- 地上5階・地下1階
- 耐震基準
- 新耐震基準適合
- 駐車場設備
- 要確認
信成ビル の募集区画 (総募集面積 49.11坪)
※月額費用、坪単価 ともに共益費込・税別の価格です
鈴武浅草橋駅前ビル(台東区、浅草橋、馬喰町、東日本橋)
- 所在地
- 東京都台東区浅草橋1-11-5
- 最寄り駅
- 浅草橋駅徒歩1分、馬喰町駅徒歩8分、東日本橋駅徒歩12分
- 竣工
- 1992年
- 規模
- 地上6階
- 耐震基準
- 新耐震基準適合
- 駐車場設備
- 要確認
鈴武浅草橋駅前ビル の募集区画 (総募集面積 23.53坪)
※月額費用、坪単価 ともに共益費込・税別の価格です
稲垣ビル(台東区、浅草橋、秋葉原)
- 所在地
- 東京都台東区浅草橋1-34-10
- 最寄り駅
- 浅草橋駅徒歩3分、秋葉原駅徒歩12分
- 竣工
- 1988年
- 規模
- 地上8階
- 耐震基準
- 新耐震基準適合
- セキュリティ
- 機械警備(24時間監視)
- 駐車場設備
- 無
稲垣ビル の募集区画 (総募集面積 29.68坪)
※月額費用、坪単価 ともに共益費込・税別の価格です
マルケービル(台東区、浅草橋、蔵前)
- 所在地
- 東京都台東区浅草橋2-29-11
- 最寄り駅
- 浅草橋駅徒歩4分、蔵前駅徒歩5分
- 竣工
- 1989年
- 規模
- 地上10階・地下1階
- 耐震基準
- 新耐震基準適合
- 駐車場設備
- 要確認
マルケービル の募集区画 (総募集面積 24.60坪)
※月額費用、坪単価 ともに共益費込・税別の価格です
エムズ325ビル(台東区、浅草橋、蔵前、馬喰町)
- 所在地
- 東京都台東区浅草橋3-25-5
- 最寄り駅
- 蔵前駅徒歩5分、浅草橋駅徒歩7分、馬喰町駅徒歩13分
- 竣工
- 1989年
- 規模
- 地上9階・地下1階
- 耐震基準
- 新耐震基準適合
- 駐車場設備
- 要確認
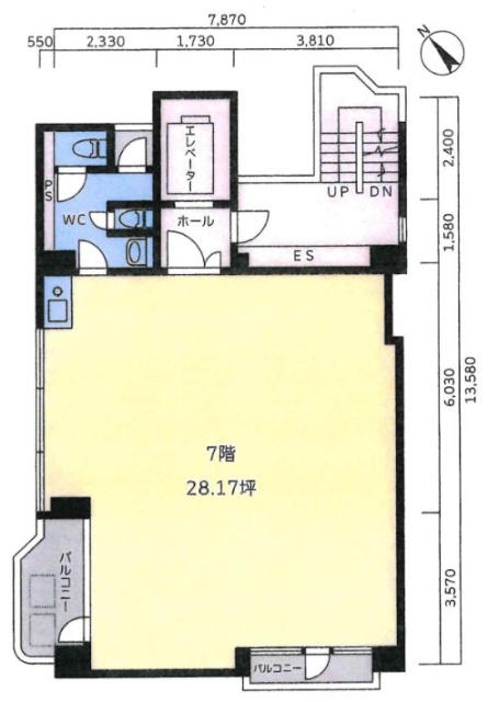
エムズ325ビル の募集区画 (総募集面積 28.17坪)
※月額費用、坪単価 ともに共益費込・税別の価格です
ハシモトビル(台東区、浅草橋)
- 所在地
- 東京都台東区浅草橋5-4-5
- 最寄り駅
- 浅草橋駅徒歩4分
- 竣工
- 1977年
- 規模
- 地上9階・地下1階
- 駐車場設備
- 要確認
ハシモトビル の募集区画 (総募集面積 52.50坪)
| 図面 | 階数 | 坪数 | 月額費用 | 坪単価 | 入居可能日 | |
|---|---|---|---|---|---|---|
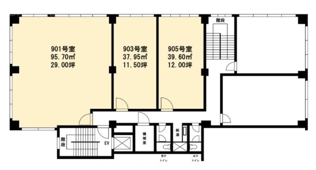
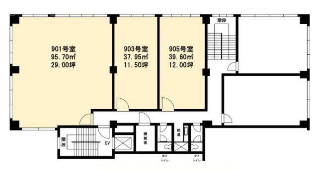
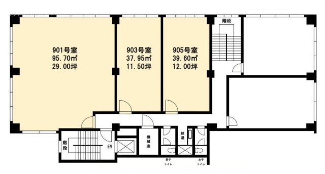
![]() | 9階 | 29.00坪 | 348,000円 | 12,000円 | 即時 | 検討リスト お問い合わせ |
![]() | 9階 | 11.50坪 | 138,000円 | 12,000円 | 即時 | 検討リスト お問い合わせ |
![]() | 9階 | 12.00坪 | 144,000円 | 12,000円 | 即時 | 検討リスト お問い合わせ |
※月額費用、坪単価 ともに共益費込・税別の価格です
杉木立ビル(台東区、浅草橋、馬喰町、秋葉原)
- 所在地
- 東京都台東区浅草橋1-24-3
- 最寄り駅
- 浅草橋駅徒歩1分、馬喰町駅徒歩5分、秋葉原駅徒歩8分
- 竣工
- 1986年
- 規模
- 地上8階
- 耐震基準
- 新耐震基準適合
- セキュリティ
- 機械警備(24時間監視)
- 駐車場設備
- 要確認
杉木立ビル の募集区画 (総募集面積 39.82坪)
※月額費用、坪単価 ともに共益費込・税別の価格です
日東ビル(台東区、浅草橋、馬喰町、馬喰横山)
- 所在地
- 東京都台東区浅草橋1-9-16
- 最寄り駅
- 浅草橋駅徒歩1分、馬喰町駅徒歩10分、馬喰横山駅徒歩10分
- 竣工
- 1992年
- 規模
- 地上10階・地下2階
- 耐震基準
- 新耐震基準適合
- セキュリティ
- 機械警備(24時間監視)
- 駐車場設備
- 要確認
日東ビル の募集区画 (総募集面積 56.18坪)
※月額費用、坪単価 ともに共益費込・税別の価格です
コスモス浅草橋酒井ビル(台東区、浅草橋、馬喰町、馬喰横山)
- 所在地
- 東京都台東区浅草橋1-32-6
- 最寄り駅
- 浅草橋駅徒歩2分、馬喰町駅徒歩8分、馬喰横山駅徒歩10分
- 竣工
- 1990年
- 規模
- 地上8階
- 耐震基準
- 新耐震基準適合
- 駐車場設備
- 要確認
コスモス浅草橋酒井ビル の募集区画 (総募集面積 48.93坪)
※月額費用、坪単価 ともに共益費込・税別の価格です
gran+ASAKUSABASHIⅡ(台東区、浅草橋)
- 所在地
- 東京都台東区浅草橋1-23-5
- 最寄り駅
- 浅草橋駅徒歩1分
- 竣工
- 1983年
- 規模
- 地上4階・地下1階
- 耐震基準
- 新耐震基準適合
- 駐車場設備
- 要確認
gran+ASAKUSABASHIⅡ の募集区画 (総募集面積 90.83坪)
※月額費用、坪単価 ともに共益費込・税別の価格です
Yハヤシビル(台東区、浅草橋、蔵前、秋葉原)
- 所在地
- 東京都台東区浅草橋1-25-10
- 最寄り駅
- 浅草橋駅徒歩1分、蔵前駅徒歩12分、秋葉原駅徒歩13分
- 竣工
- 1988年
- 規模
- 地上4階・地下1階
- 耐震基準
- 新耐震基準適合
- 駐車場設備
- 要確認
Yハヤシビル の募集区画 (総募集面積 40.87坪)
| 図面 | 階数 | 坪数 | 月額費用 | 坪単価 | 入居可能日 | |
|---|---|---|---|---|---|---|
![]() | 2階 | 20.12坪 | 290,000円 | 14,414円 | 相談 | 検討リスト お問い合わせ |
![]() | 4階 | 11.05坪 | 145,000円 | 13,122円 | 相談 | 検討リスト お問い合わせ |
![]() | 4階 | 9.70坪 | 145,000円 | 14,948円 | 相談 | 検討リスト お問い合わせ |
※月額費用、坪単価 ともに共益費込・税別の価格です
鈴和ビル(台東区、浅草橋、秋葉原、新御徒町)
- 所在地
- 東京都台東区浅草橋5-2-3
- 最寄り駅
- 浅草橋駅徒歩5分、秋葉原駅徒歩7分、新御徒町駅徒歩13分
- 竣工
- 1994年
- 規模
- 地上10階
- 耐震基準
- 新耐震基準適合
- セキュリティ
- 機械警備(24時間監視)
- 駐車場設備
- 要確認
鈴和ビル の募集区画 (総募集面積 11.77坪)
※月額費用、坪単価 ともに共益費込・税別の価格です
山口ビル(台東区、浅草橋、浅草)
- 所在地
- 東京都台東区浅草橋2-7-1
- 最寄り駅
- 浅草橋駅、浅草駅徒歩2分
- 竣工
- 1984年
- 規模
- 地上7階
- 耐震基準
- 新耐震基準適合
- セキュリティ
- 共用部警備なし(簡易管理)
- 駐車場設備
- 要確認
山口ビル の募集区画 (総募集面積 19.00坪)
※月額費用、坪単価 ともに共益費込・税別の価格です
浅草橋ミハマビル本館(台東区、浅草橋、蔵前)
- 所在地
- 東京都台東区浅草橋3-20-15
- 最寄り駅
- 蔵前駅徒歩4分、浅草橋駅徒歩4分
- 竣工
- 1989年
- 規模
- 地上9階
- 耐震基準
- 新耐震基準適合
- セキュリティ
- 機械警備(24時間監視)
- 駐車場設備
- 要確認
浅草橋ミハマビル本館 の募集区画 (総募集面積 77.41坪)
※月額費用、坪単価 ともに共益費込・税別の価格です
星野ビル(台東区、浅草橋、馬喰町、秋葉原)
- 所在地
- 東京都台東区浅草橋1-4-4
- 最寄り駅
- 浅草橋駅徒歩1分、馬喰町駅徒歩6分、秋葉原駅徒歩11分
- 竣工
- 1982年
- 規模
- 地上5階
- 駐車場設備
- 要確認
星野ビル の募集区画 (総募集面積 26.90坪)
※月額費用、坪単価 ともに共益費込・税別の価格です
SEIWA EAST FACE(台東区、浅草橋、新御徒町、秋葉原)
- 所在地
- 東京都台東区浅草橋5-19-5
- 最寄り駅
- 浅草橋駅徒歩10分、新御徒町駅徒歩10分、秋葉原駅徒歩14分
- 竣工
- 2020年
- 規模
- 地上5階
- 耐震基準
- 新耐震基準適合
- セキュリティ
- 機械警備(24時間監視)
- 駐車場設備
- 要確認
SEIWA EAST FACE の募集区画 (総募集面積 42.49坪)
※月額費用、坪単価 ともに共益費込・税別の価格です
山畑ビル(台東区、浅草橋、馬喰町、秋葉原)
- 所在地
- 東京都台東区浅草橋4-20-7
- 最寄り駅
- 浅草橋駅徒歩3分、馬喰町駅徒歩9分、秋葉原駅徒歩10分
- 竣工
- 1989年
- 規模
- 地上5階
- 耐震基準
- 新耐震基準適合
- セキュリティ
- 共用部警備なし(簡易管理)
- 駐車場設備
- 要確認
山畑ビル の募集区画 (総募集面積 11.70坪)
※月額費用、坪単価 ともに共益費込・税別の価格です
パレソレイユAKIBAEAST(台東区、浅草橋、蔵前)
- 所在地
- 東京都台東区浅草橋2-29-9
- 最寄り駅
- 浅草橋駅徒歩3分、蔵前駅徒歩10分
- 竣工
- 2009年
- 規模
- 地上15階
- 耐震基準
- 新耐震基準適合
- 駐車場設備
- 要確認
パレソレイユAKIBAEAST の募集区画 (総募集面積 15.58坪)
※月額費用、坪単価 ともに共益費込・税別の価格です
堀ビル(台東区、浅草橋、蔵前、新御徒町)
- 所在地
- 東京都台東区浅草橋3-11-1
- 最寄り駅
- 浅草橋駅徒歩6分、蔵前駅徒歩9分、新御徒町駅徒歩13分
- 竣工
- 1984年
- 規模
- 地上4階
- 耐震基準
- 新耐震基準適合
- 駐車場設備
- 要確認
堀ビル の募集区画 (総募集面積 18.02坪)
※月額費用、坪単価 ともに共益費込・税別の価格です
原田ビル(台東区、浅草橋、秋葉原、御徒町)
- 所在地
- 東京都台東区浅草橋5-9-7
- 最寄り駅
- 浅草橋駅徒歩8分、秋葉原駅徒歩10分、御徒町駅徒歩17分
- 竣工
- 1988年
- 規模
- 地上5階・地下1階
- 耐震基準
- 新耐震基準適合
- 駐車場設備
- 要確認
原田ビル の募集区画 (総募集面積 19.60坪)
※月額費用、坪単価 ともに共益費込・税別の価格です
藤和シティコープ浅草橋Ⅲビル(台東区、浅草橋)
- 所在地
- 東京都台東区浅草橋3-8-11
- 最寄り駅
- 浅草橋駅徒歩5分
- 竣工
- 1993年
- 規模
- 地上10階・地下1階
- 耐震基準
- 新耐震基準適合
- 駐車場設備
- 要確認
藤和シティコープ浅草橋Ⅲビル の募集区画 (総募集面積 53.71坪)
※月額費用、坪単価 ともに共益費込・税別の価格です
三基ビル(台東区、浅草橋、秋葉原、岩本町)
- 所在地
- 東京都台東区浅草橋4-15-5
- 最寄り駅
- 秋葉原駅徒歩5分、浅草橋駅徒歩5分、岩本町駅徒歩9分
- 竣工
- 1985年
- 規模
- 地上8階
- 耐震基準
- 新耐震基準適合
- セキュリティ
- 機械警備(24時間監視)
- 駐車場設備
- 要確認
三基ビル の募集区画 (総募集面積 10.00坪)
※月額費用、坪単価 ともに共益費込・税別の価格です
岡安ビル(台東区、蔵前、新御徒町、浅草橋)
- 所在地
- 東京都台東区蔵前3-12-8
- 最寄り駅
- 蔵前駅徒歩2分、新御徒町駅徒歩12分、浅草橋駅徒歩15分
- 竣工
- 1987年
- 規模
- 地上9階
- 耐震基準
- 新耐震基準適合
- セキュリティ
- 機械警備(24時間監視)
- 駐車場設備
- 要確認
岡安ビル の募集区画 (総募集面積 23.86坪)
※月額費用、坪単価 ともに共益費込・税別の価格です
蔵前イシイビル(台東区、蔵前、浅草橋、新御徒町)
- 所在地
- 東京都台東区蔵前4-11-3
- 最寄り駅
- 蔵前駅徒歩5分、浅草橋駅徒歩7分、新御徒町駅徒歩12分
- 竣工
- 1993年
- 規模
- 地上7階
- 耐震基準
- 新耐震基準適合
- セキュリティ
- 機械警備(24時間監視)
- 駐車場設備
- 要確認
蔵前イシイビル の募集区画 (総募集面積 27.64坪)
※月額費用、坪単価 ともに共益費込・税別の価格です
蔵前酒井ビル(台東区、蔵前、田原町、浅草)
- 所在地
- 東京都台東区蔵前3-15-7
- 最寄り駅
- 蔵前駅徒歩4分、田原町駅徒歩8分、浅草駅徒歩12分
- 竣工
- 1988年
- 規模
- 地上5階・地下1階
- 耐震基準
- 新耐震基準適合
- セキュリティ
- 機械警備(24時間監視)
- 駐車場設備
- 要確認
蔵前酒井ビル の募集区画 (総募集面積 82.38坪)
| 図面 | 階数 | 坪数 | 月額費用 | 坪単価 | 入居可能日 | |
|---|---|---|---|---|---|---|
![]() | 3階 | 68.79坪 | 1,100,640円 | 16,000円 | 2025/12/下 | 検討リスト お問い合わせ |
![]() | 5階 | 13.59坪 | 217,440円 | 16,000円 | 2025/12/下 | 検討リスト お問い合わせ |
※月額費用、坪単価 ともに共益費込・税別の価格です
サングローリビル(台東区、蔵前、浅草橋)
- 所在地
- 東京都台東区蔵前4-17-10
- 最寄り駅
- 蔵前駅徒歩4分、浅草橋駅徒歩11分
- 竣工
- 2001年
- 規模
- 地上4階
- 耐震基準
- 新耐震基準適合
- セキュリティ
- 機械警備(24時間監視)
- 駐車場設備
- 要確認
サングローリビル の募集区画 (総募集面積 30.44坪)
※月額費用、坪単価 ともに共益費込・税別の価格です
ストーク蔵前M&K(台東区、蔵前、御徒町、浅草橋)
- 所在地
- 東京都台東区蔵前4-16-6
- 最寄り駅
- 蔵前駅徒歩5分、御徒町駅徒歩19分、浅草橋駅徒歩11分
- 竣工
- 1988年
- 規模
- 地上7階
- 耐震基準
- 新耐震基準適合
- セキュリティ
- 機械警備(24時間監視)
- 駐車場設備
- 要確認
ストーク蔵前M&K の募集区画 (総募集面積 31.17坪)
※月額費用、坪単価 ともに共益費込・税別の価格です
アンテロープ蔵前(台東区、蔵前、秋葉原)
- 所在地
- 東京都台東区蔵前4-4-5
- 最寄り駅
- 蔵前駅徒歩3分、秋葉原駅徒歩8分
- 竣工
- 2025年
- 規模
- 地上4階
- 耐震基準
- 新耐震基準適合
- セキュリティ
- 機械警備(24時間監視)
- 駐車場設備
- 要確認
アンテロープ蔵前 の募集区画 (総募集面積 17.92坪)
※月額費用、坪単価 ともに共益費込・税別の価格です
Art inn Ⅱ(台東区、蔵前)
- 所在地
- 東京都台東区蔵前2-14-4
- 最寄り駅
- 蔵前駅徒歩2分
- 竣工
- 2016年
- 規模
- 地上5階
- 耐震基準
- 新耐震基準適合
- 駐車場設備
- 要確認
Art inn Ⅱ の募集区画 (総募集面積 61.38坪)
※月額費用、坪単価 ともに共益費込・税別の価格です
平和ビル(台東区、小島、新御徒町、仲御徒町)
- 所在地
- 東京都台東区小島2-6-9
- 最寄り駅
- 新御徒町駅徒歩2分、仲御徒町駅徒歩8分、稲荷町駅徒歩9分
- 竣工
- 1967年
- 規模
- 地上5階
- 駐車場設備
- 要確認
平和ビル の募集区画 (総募集面積 12.06坪)
※月額費用、坪単価 ともに共益費込・税別の価格です
毛利ビル(台東区、小島、新御徒町、稲荷町)
- 所在地
- 東京都台東区小島2-14-5
- 最寄り駅
- 新御徒町駅徒歩1分、稲荷町駅徒歩8分、仲御徒町駅徒歩9分
- 竣工
- 1972年
- 規模
- 地上8階・地下1階
- セキュリティ
- 共用部警備なし(簡易管理)
- 駐車場設備
- 要確認
毛利ビル の募集区画 (総募集面積 17.87坪)
※月額費用、坪単価 ともに共益費込・税別の価格です
SMKビル(台東区、寿、蔵前、田原町)
- 所在地
- 東京都台東区寿1-11-6
- 最寄り駅
- 蔵前駅徒歩4分、田原町駅徒歩6分、新御徒町駅徒歩8分
- 竣工
- 1990年
- 規模
- 地上9階
- 耐震基準
- 新耐震基準適合
- セキュリティ
- 機械警備(24時間監視)
- 駐車場設備
- 要確認
SMKビル の募集区画 (総募集面積 19.34坪)
※月額費用、坪単価 ともに共益費込・税別の価格です
メゾン・ド・ムラタ(台東区、寿、蔵前、田原町)
- 所在地
- 東京都台東区寿3-9-6
- 最寄り駅
- 蔵前駅徒歩3分、田原町駅徒歩4分
- 竣工
- 1988年
- 規模
- 地上5階
- 耐震基準
- 新耐震基準適合
- 駐車場設備
- 要確認
メゾン・ド・ムラタ の募集区画 (総募集面積 24.92坪)
※月額費用、坪単価 ともに共益費込・税別の価格です
TCRE上野浅草(台東区、寿、蔵前、田原町)
- 所在地
- 東京都台東区寿3-15-6
- 最寄り駅
- 蔵前駅徒歩4分、田原町駅徒歩6分
- 竣工
- 1975年
- 規模
- 地上6階
- 駐車場設備
- 要確認
TCRE上野浅草 の募集区画 (総募集面積 19.77坪)
※月額費用、坪単価 ともに共益費込・税別の価格です
297ビル(台東区、三筋、新御徒町、御徒町)
- 所在地
- 東京都台東区三筋2-9-7
- 最寄り駅
- 新御徒町駅徒歩2分、御徒町駅徒歩8分、蔵前駅徒歩10分
- 竣工
- 1983年
- 規模
- 地上9階・地下1階
- 耐震基準
- 新耐震基準適合
- 駐車場設備
- 要確認
297ビル の募集区画 (総募集面積 17.50坪)
※月額費用、坪単価 ともに共益費込・税別の価格です
貝原ビル(台東区、元浅草、新御徒町、御徒町)
- 所在地
- 東京都台東区元浅草1-4-3
- 最寄り駅
- 新御徒町駅徒歩1分、御徒町駅徒歩8分
- 竣工
- 1985年
- 規模
- 地上8階・地下1階
- 耐震基準
- 新耐震基準適合
- セキュリティ
- 共用部警備なし(簡易管理)
- 駐車場設備
- 要確認
■ 新御徒町駅徒歩1分の駅前立地
■ 個別空調・OAフロア完備の効率空間
貝原ビル の募集区画 (総募集面積 44.00坪)
※月額費用、坪単価 ともに共益費込・税別の価格です
Uビル(台東区、元浅草、田原町、新御徒町)
- 所在地
- 東京都台東区元浅草3-13-12
- 最寄り駅
- 田原町駅徒歩5分、新御徒町駅徒歩5分、蔵前駅徒歩7分
- 竣工
- 1992年
- 規模
- 地上8階
- 耐震基準
- 新耐震基準適合
- セキュリティ
- 機械警備(24時間監視)
- 駐車場設備
- 要確認
Uビル の募集区画 (総募集面積 269.00坪)
| 図面 | 階数 | 坪数 | 月額費用 | 坪単価 | 入居可能日 | |
|---|---|---|---|---|---|---|
![]() | 4階 | 38.43坪 | 540,000円 | 14,052円 | 即時 | 検討リスト お問い合わせ |
![]() | 8階 | 38.42坪 | 540,000円 | 14,055円 | 即時 | 検討リスト お問い合わせ |
![]() | 8階 | 76.86坪 | 1,080,000円 | 14,052円 | 2025/10/下 | 検討リスト お問い合わせ |
![]() | 8階 | 115.29坪 | 1,542,000円 | 13,375円 | 2025/10/下 | 検討リスト お問い合わせ |
※月額費用、坪単価 ともに共益費込・税別の価格です
五宝堂ビル(台東区、元浅草、新御徒町)
- 所在地
- 東京都台東区元浅草2-4-10
- 最寄り駅
- 新御徒町駅徒歩5分
- 竣工
- 1991年
- 規模
- 地上7階
- 耐震基準
- 新耐震基準適合
- 駐車場設備
- 要確認
五宝堂ビル の募集区画 (総募集面積 31.00坪)
※月額費用、坪単価 ともに共益費込・税別の価格です
大島屋浅草橋ビル(台東区、柳橋、浅草橋、馬喰町)
- 所在地
- 東京都台東区柳橋1-13-5
- 最寄り駅
- 浅草橋駅徒歩1分、馬喰町駅徒歩6分、馬喰横山駅徒歩6分
- 竣工
- 1977年
- 規模
- 地上6階
- 駐車場設備
- 要確認
大島屋浅草橋ビル の募集区画 (総募集面積 16.00坪)
※月額費用、坪単価 ともに共益費込・税別の価格です
浅草橋・蔵前エリアは、昔ながらの問屋街の雰囲気を残しつつ、近年はクリエイターやスタートアップ企業が集まるエリアとして注目されています。浅草橋駅周辺は、問屋街として栄え、雑貨やアクセサリーなどの卸売店が多く、活気にあふれています。蔵前駅周辺は、隅田川沿いの景色が美しく、おしゃれなカフェや雑貨店、ゲストハウスなどが点在し、落ち着いた雰囲気です。オフィス環境としては、中小規模のオフィスビルや、SOHO向けの物件が多く、クリエイターや個人事業主に人気です。近年は、倉庫や工場をリノベーションした、個性的なオフィスも増えています。交通アクセスは、JR総武線、都営浅草線、都営大江戸線などが利用でき、都内各地へのアクセスも便利です。
















































































































































































































































































































































































































































































