目白寛永堂ビル 7階 50.22坪(豊島区、目白、池袋、東池袋)
募集終了
| 種別(用途) | 事務所 |
|---|---|
| 階数 | 7階 |
| 部屋番号 | 7F |
| 面積 | 50.22坪 |
| 契約形態・期間 | 定期借家 5年 |
| 空調方式 | 個別空調 |
| 床仕様 | OAフロア タイルカーペット |
| 天井高 | 要確認 |
※月額費用、坪単価ともに税別の価格です
目白寛永堂ビル 7階 は現在募集がありません。
この物件の最新状況のご確認は、下記の問合せフォームをご利用ください。
この物件の最新状況のご確認は、下記の問合せフォームをご利用ください。
目白寛永堂ビル の情報
- 所在地
- 東京都豊島区目白3-14-3
- 最寄り駅
- 目白駅徒歩2分、池袋駅徒歩13分、東池袋駅徒歩15分
- 竣工
- 1989年
- 規模
- 地上8階
- 構造
- SRC造(鉄骨鉄筋コンクリート造)
- 耐震基準
- 新耐震基準適合
- セキュリティ
- 機械警備(24時間監視)
- エントランス
- 平日開放
- エレベーター総数
- 1基
- 駐車場設備
- 要確認
目白寛永堂ビル の募集区画 (総募集面積 0.00坪)
現在募集はありません。
目白寛永堂ビル の内装イメージ
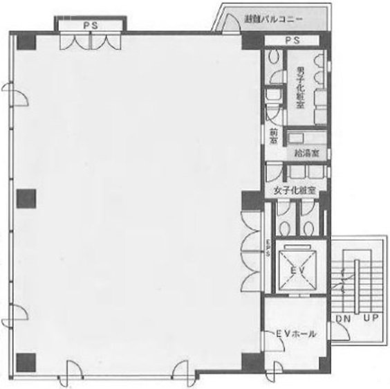
基準階約50坪の貸室は、広々とした開放感に溢れる天井高約3,160mmで快適な環境オフィスを実現。OAフロアにより配線が整えやすく、ITインフラの整備に適しています。男女別トイレを室内に完備し、24時間稼働可能な機械警備システムが安全性を高めます。エレベーターも設置されており、スムーズな移動をサポート。快適性と機能性のバランスが取れた設備が、働きやすい環境づくりに設置します。









目白寛永堂ビル の募集終了区画
近くの物件紹介
豊島区のエリア
近くの駅
| 取扱態様 | 仲介 |
|---|---|
| 取扱会社 | 株式会社アドマイアー 東京都中央区日本橋3-2-3ユニバース第1ビル2F TEL. 03-5204-1031 宅地建物取引業免許 東京都知事(3)第94663号 マンション管理業免許 国土交通大臣(2)第034224号 賃貸住宅管理業免許 国土交通大臣(01)第005938号 |






























