物件情報を探す
検索結果 705 件
TOKYO TORCH 常盤橋タワー(千代田区、大手町、東京、日本橋)
- 所在地
- 東京都千代田区大手町2-6-4
- 最寄り駅
- 大手町駅徒歩1分、東京駅徒歩8分、日本橋駅徒歩13分
- 竣工
- 2021年
- 規模
- 地上38階・地下5階
- 耐震基準
- 新耐震基準適合・免震構造(2018/7)
- セキュリティ
- 機械警備・有人管理(24時間体制)
- 駐車場設備
- 有(自走式 64台、機械式 112台 計 176台。自転車用 111台、バイク用 20台)
- 設備
- 24時間(要ICカード)、 防災センター、 非接触ICカード、 非常用発電機、 貸会議室、 リフレッシュコーナー、 駐輪場、 荷捌き場(搬出入ヤード)
最大の特徴は、「人が動き、熱が生まれる」というコンセプトを具現化した共用施設群です。3階のカフェテリアラウンジ「MY Shokudo」や8階のオフィスサポートフロアは、従業員の健康増進だけでなく、組織の枠を超えた偶発的な出会いやコミュニケーションを誘発する「仕掛け」として機能します。これは、リモートワークでは得難いリアルオフィスの価値を最大化し、組織のイノベーション能力を底上げします。
立地・アクセス面では、東京駅日本橋口の目の前という、日本国内のみならず世界と繋がる最強のロケーションを誇ります。新幹線や空港へのアクセスがスムーズであることは、グローバルに展開する企業にとって、移動時間の削減=経営スピードの向上に直結します。 基準階約780坪のメガプレートに加え、小規模セットアップオフィスも用意されており、事業フェーズに合わせた柔軟な運用が可能。次世代の成長を目指す企業にとって、最強の経営資源となる物件です。
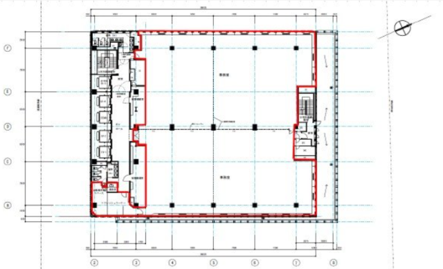
TOKYO TORCH 常盤橋タワー の募集区画 (総募集面積 1,564.96坪)
| 図面 | 階数 | 坪数 | 月額費用 | 坪単価 | 入居可能日 | |
|---|---|---|---|---|---|---|
![]() | 14階 | 782.48坪 | お問い合わせください | 2026/12/1 | 検討リスト お問い合わせ | |
![]() | 13階 | 782.48坪 | お問い合わせください | 2026/12/1 | 検討リスト お問い合わせ |
※月額費用、坪単価 ともに共益費込・税別の価格です
霞が関コモンゲート西館(千代田区、霞が関、虎ノ門、霞ケ関)
- 所在地
- 東京都千代田区霞が関3-2-1
- 最寄り駅
- 虎ノ門駅徒歩1分、霞ケ関駅徒歩2分、国会議事堂前駅徒歩6分
- 竣工
- 2007年
- 規模
- 地上38階・地下3階
- 耐震基準
- 新耐震基準適合・制震構造
- セキュリティ
- 機械警備・有人管理(24時間体制)
- 駐車場設備
- 有(機械式54台 自走式69台)
- 設備
- 非常用発電機
特筆すべきは、その圧倒的なBCP性能です。「官庁施設1類相当」という、防災拠点となる建物と同等の耐震性能(制震構造)を有しており、万が一の災害時にも事業を止めない強固な基盤を提供します。これは、株主や取引先に対する企業の社会的責任(CSR)を果たす上でも強力なメッセージとなります。
また、虎ノ門駅直結という利便性に加え、地下1階には格式ある車寄せを配置。駐車場も123台確保されており、公共交通機関と車両移動の双方において、トップエグゼクティブの時間を無駄にしません。 基準階約610坪のメガプレートは、組織の統合や効率化を促進。日本を代表する企業が本社を構えるに相応しい、揺るぎない価値を持つ物件です。
霞が関コモンゲート西館 の募集区画 (総募集面積 330.14坪)
※月額費用、坪単価 ともに共益費込・税別の価格です
oak神田鍛冶町(千代田区、神田鍛冶町、神田、岩本町)
- 所在地
- 東京都千代田区神田鍛冶町3-4
- 最寄り駅
- 神田駅徒歩2分、岩本町駅徒歩7分
- 竣工
- 2017年
- 規模
- 地上9階
- 耐震基準
- 新耐震基準適合
- セキュリティ
- 機械警備(24時間監視)
- 駐車場設備
- 要確認
oak神田鍛冶町 の募集区画 (総募集面積 215.00坪)
※月額費用、坪単価 ともに共益費込・税別の価格です
日本生命九段センタービル(千代田区、九段北、市ヶ谷、市ケ谷)
- 所在地
- 東京都千代田区九段北4-1-7
- 最寄り駅
- 市ヶ谷駅徒歩1分、市ケ谷駅徒歩4分、九段下駅徒歩13分
- 竣工
- 1989年
- 規模
- 地上11階・地下2階
- 耐震基準
- 新耐震基準適合
- セキュリティ
- 機械警備(24時間監視)
- 駐車場設備
- 有(平置き9台、機械式72台)
- 設備
- 喫煙室、 貸会議室、 リフレッシュコーナー
日本生命九段センタービル の募集区画 (総募集面積 923.08坪)
※月額費用、坪単価 ともに共益費込・税別の価格です
麹町ビル(千代田区、九段南、市ケ谷、半蔵門)
- 所在地
- 東京都千代田区九段南3-3-6
- 最寄り駅
- 市ケ谷駅徒歩6分、半蔵門駅徒歩9分、九段下駅徒歩12分
- 竣工
- 1988年
- 規模
- 地上7階・地下1階
- 耐震基準
- 新耐震基準適合
- セキュリティ
- 機械警備(24時間監視)
- 駐車場設備
- 要確認
麹町ビル の募集区画 (総募集面積 274.27坪)
※月額費用、坪単価 ともに共益費込・税別の価格です
ヒューリック麹町ビル(千代田区、麹町、半蔵門、四ツ谷)
- 所在地
- 東京都千代田区麹町3-2-10
- 最寄り駅
- 麹町駅徒歩1分、半蔵門駅徒歩5分、四ツ谷駅徒歩10分
- 竣工
- 2010年
- 規模
- 地上9階・地下1階
- 耐震基準
- 新耐震基準適合・免震構造
- セキュリティ
- 機械警備(24時間監視)
- 駐車場設備
- 有(機械式24台、身障者用1台、荷捌き用2台)
■ 麹町駅徒歩1分のアクセス至便な立地
■ 天井高2,800mm・OAフロア仕様の快適オフィス空間
ヒューリック麹町ビル の募集区画 (総募集面積 400.74坪)
※月額費用、坪単価 ともに共益費込・税別の価格です
三番町UFビル(千代田区、三番町、半蔵門、九段下)
- 所在地
- 東京都千代田区三番町6-3
- 最寄り駅
- 半蔵門駅徒歩7分、九段下駅徒歩11分、市ケ谷駅徒歩13分
- 竣工
- 1989年
- 規模
- 地上6階・地下1階
- 耐震基準
- 新耐震基準適合
- セキュリティ
- 機械警備(24時間監視)
- 駐車場設備
- 要確認
三番町UFビル の募集区画 (総募集面積 242.47坪)
※月額費用、坪単価 ともに共益費込・税別の価格です
泉館文人通り(旧精糖会館)ビル(千代田区、三番町、半蔵門、市ヶ谷)
- 所在地
- 東京都千代田区三番町5-7
- 最寄り駅
- 半蔵門駅徒歩4分、市ヶ谷駅徒歩9分、麹町駅徒歩10分
- 竣工
- 1992年
- 規模
- 地上7階・地下1階
- 耐震基準
- 新耐震基準適合
- セキュリティ
- 機械警備(24時間監視)
- 駐車場設備
- 有(平置駐車場 (高さ2.2m未満まで)
泉館文人通り(旧精糖会館)ビル の募集区画 (総募集面積 254.25坪)
※月額費用、坪単価 ともに共益費込・税別の価格です
朝風二号館ビル(千代田区、外神田、秋葉原、神田)
- 所在地
- 東京都千代田区外神田1-16-9
- 最寄り駅
- 秋葉原駅徒歩1分、神田駅徒歩5分、岩本町駅徒歩8分
- 竣工
- 1979年
- 規模
- 地上9階・地下1階
- セキュリティ
- 機械警備・有人管理(24時間体制)
- 駐車場設備
- 要確認
朝風二号館ビル の募集区画 (総募集面積 217.74坪)
※月額費用、坪単価 ともに共益費込・税別の価格です
赤坂エイトワンビル(千代田区、永田町、赤坂見附、赤坂)
- 所在地
- 東京都千代田区永田町2-13-5
- 最寄り駅
- 赤坂見附駅徒歩1分、永田町駅徒歩6分、赤坂駅徒歩6分
- 竣工
- 1985年
- 規模
- 地上8階・地下3階
- 耐震基準
- 新耐震基準適合
- セキュリティ
- 機械警備・有人管理(24時間体制)
- 駐車場設備
- 要確認
赤坂エイトワンビル の募集区画 (総募集面積 231.37坪)
※月額費用、坪単価 ともに共益費込・税別の価格です
山王グランドビル(千代田区、永田町、赤坂見附、溜池山王)
- 所在地
- 東京都千代田区永田町2-14-2
- 最寄り駅
- 赤坂見附駅徒歩1分、永田町駅徒歩3分、溜池山王駅徒歩7分
- 竣工
- 1966年
- 規模
- 地上9階・地下2階
- 耐震基準
- 耐震補強済み(新耐震相当)
- セキュリティ
- 機械警備・有人管理(24時間体制)
- 駐車場設備
- 要確認
山王グランドビル の募集区画 (総募集面積 279.04坪)
※月額費用、坪単価 ともに共益費込・税別の価格です
東神田ビル(千代田区、東神田、岩本町、秋葉原)
- 所在地
- 東京都千代田区東神田2-8-12
- 最寄り駅
- 岩本町駅徒歩3分、秋葉原駅徒歩5分、馬喰町駅徒歩6分
- 竣工
- 1973年
- 規模
- 地上7階
- 駐車場設備
- 要確認
東神田ビル の募集区画 (総募集面積 241.41坪)
※月額費用、坪単価 ともに共益費込・税別の価格です
丸の内トラストタワー本館(千代田区、丸の内、東京、大手町)
- 所在地
- 東京都千代田区丸の内1-8-3
- 最寄り駅
- 東京駅徒歩1分、大手町駅徒歩2分、日本橋駅徒歩4分
- 竣工
- 2008年
- 規模
- 地上37階・地下4階
- 耐震基準
- 新耐震基準適合
- セキュリティ
- 機械警備(24時間監視)
- 駐車場設備
- 要確認
丸の内トラストタワー本館 の募集区画 (総募集面積 542.40坪)
※月額費用、坪単価 ともに共益費込・税別の価格です
グラントウキョウサウスタワー(千代田区、丸の内、東京、京橋)
- 所在地
- 東京都千代田区丸の内1-9-2
- 最寄り駅
- 東京駅徒歩1分、京橋駅徒歩4分、二重橋前駅徒歩6分
- 竣工
- 2007年
- 規模
- 地上42階・地下4階
- 耐震基準
- 新耐震基準適合・制震構造
- セキュリティ
- 機械警備(24時間監視)
- 駐車場設備
- 有(地下2階と3階に約234台完備、地上1階と地下2階にはVIP対応の車寄せも)
- 設備
- 非常用発電機、 リフレッシュコーナー、 喫煙室
グラントウキョウサウスタワー の募集区画 (総募集面積 679.40坪)
※月額費用、坪単価 ともに共益費込・税別の価格です
丸の内北口ビル(千代田区、丸の内、大手町、東京)
- 所在地
- 東京都千代田区丸の内1-6-5
- 最寄り駅
- 大手町駅徒歩1分、東京駅徒歩3分、日本橋駅徒歩12分
- 竣工
- 2004年
- 規模
- 地上29階・地下4階
- 耐震基準
- 新耐震基準適合
- セキュリティ
- 有人管理(警備員常駐)
- 駐車場設備
- 無
- 設備
- 共用ラウンジ(テナント専用ラウンジ)、 再エネ導入、 保育所
■ 東京駅・大手町駅直結で雨に濡れない駅直アクセスを実現
■ 各階4分割VAV空調方式と天井高2,800mm確保で快適なワークスペース
丸の内北口ビル の募集区画 (総募集面積 249.40坪)
※月額費用、坪単価 ともに共益費込・税別の価格です
丸の内二丁目ビル(千代田区、丸の内、二重橋前、東京)
- 所在地
- 東京都千代田区丸の内2-5-1
- 最寄り駅
- 二重橋前駅徒歩2分、東京駅徒歩3分、大手町駅徒歩6分
- 竣工
- 1964年
- 規模
- 地上10階・地下4階
- セキュリティ
- 有人管理(警備員常駐)
- 駐車場設備
- 有(62台 (高さ 2,100mm))
- 設備
- 再エネ導入
■ 東京駅徒歩3分・屋根付き通路で雨に濡れずアクセス可能
■ DBJ Green Building認証4つ星・再エネ導入による高い環境性能
丸の内二丁目ビル の募集区画 (総募集面積 914.16坪)
※月額費用、坪単価 ともに共益費込・税別の価格です
東京宝塚ビル(千代田区、有楽町、日比谷、二重橋前)
- 所在地
- 東京都千代田区有楽町1-1-3
- 最寄り駅
- 日比谷駅徒歩2分、有楽町駅徒歩2分、二重橋前駅徒歩3分
- 竣工
- 2000年
- 規模
- 地上19階・地下4階
- 耐震基準
- 新耐震基準適合
- セキュリティ
- 機械警備(24時間監視)
- 駐車場設備
- 要確認
東京宝塚ビル の募集区画 (総募集面積 300.91坪)
※月額費用、坪単価 ともに共益費込・税別の価格です
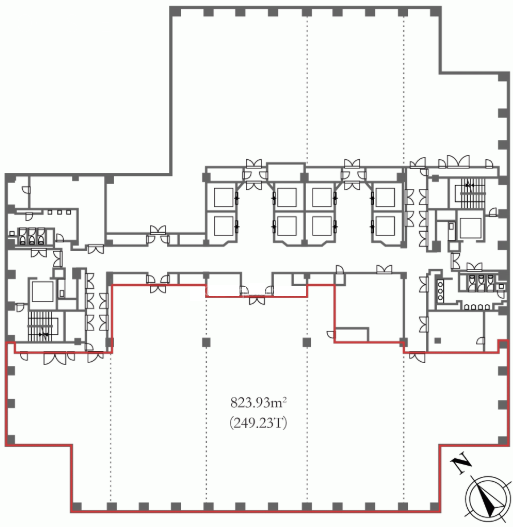
聖路加タワー(中央区、明石町、築地、新富町)
- 所在地
- 東京都中央区明石町8-1
- 最寄り駅
- 築地駅徒歩7分、新富町駅徒歩8分、築地市場駅徒歩15分
- 竣工
- 1994年
- 規模
- 地上51階・地下4階
- 耐震基準
- 新耐震基準適合
- セキュリティ
- 機械警備(24時間監視)
- 駐車場設備
- 有(平置き350台)
- 設備
- 貸会議室
聖路加タワー の募集区画 (総募集面積 493.93坪)
| 図面 | 階数 | 坪数 | 月額費用 | 坪単価 | 入居可能日 | |
|---|---|---|---|---|---|---|
![]() | 36階 | 249.24坪 | お問い合わせください | 2026/1/1 | 検討リスト お問い合わせ | |
![]() | 17階 | 244.69坪 | お問い合わせください | 2026/1/1 | 検討リスト お問い合わせ |
※月額費用、坪単価 ともに共益費込・税別の価格です
FOREFRONT TOWERⅡ(中央区、勝どき)
- 所在地
- 東京都中央区勝どき3-13-1
- 最寄り駅
- 勝どき駅徒歩5分
- 竣工
- 1994年
- 規模
- 地上13階・地下1階
- 耐震基準
- 新耐震基準適合
- セキュリティ
- 機械警備・有人管理(24時間体制)
- 駐車場設備
- 有(平置き14台、機械式29台)
- 設備
- 省エネ・環境配慮
FOREFRONT TOWERⅡ の募集区画 (総募集面積 285.56坪)
※月額費用、坪単価 ともに共益費込・税別の価格です
FOREFRONT TOWER(中央区、勝どき、月島、築地市場)
- 所在地
- 東京都中央区勝どき3-12-1
- 最寄り駅
- 勝どき駅徒歩5分、月島駅徒歩8分、築地市場駅徒歩18分
- 竣工
- 1991年
- 規模
- 地上18階・地下1階
- 耐震基準
- 新耐震基準適合
- セキュリティ
- 機械警備・有人管理(24時間体制)
- 駐車場設備
- 有(平置き7台、機械式46台)
- 設備
- 省エネ・環境配慮
FOREFRONT TOWER の募集区画 (総募集面積 1,097.24坪)
| 図面 | 階数 | 坪数 | 月額費用 | 坪単価 | 入居可能日 | |
|---|---|---|---|---|---|---|
![]() | 7階 | 274.31坪 | お問い合わせください | 2026/1/1 | 検討リスト お問い合わせ | |
![]() | 8階 | 274.31坪 | お問い合わせください | 2026/1/1 | 検討リスト お問い合わせ | |
![]() | 9階 | 274.31坪 | お問い合わせください | 2026/1/1 | 検討リスト お問い合わせ | |
![]() | 11階 | 274.31坪 | お問い合わせください | 2026/1/1 | 検討リスト お問い合わせ |
※月額費用、坪単価 ともに共益費込・税別の価格です
ミュージアムタワー京橋(中央区、京橋、東京、日本橋)
- 所在地
- 東京都中央区京橋1-7-2
- 最寄り駅
- 東京駅徒歩4分、日本橋駅徒歩4分、京橋駅徒歩4分
- 竣工
- 2019年
- 規模
- 地上23階・地下2階
- 耐震基準
- 新耐震基準適合・免震構造
- セキュリティ
- 機械警備・有人管理(24時間体制)
- 駐車場設備
- 有(機械式駐車場63台分)
- 設備
- 24時間(要ICカード)、 非常用発電機、 複合施設
ミュージアムタワー京橋 の募集区画 (総募集面積 397.23坪)
※月額費用、坪単価 ともに共益費込・税別の価格です
京橋エドグラン(中央区、京橋、宝町、銀座一丁目)
- 所在地
- 東京都中央区京橋2-2-1
- 最寄り駅
- 京橋駅徒歩0分、宝町駅徒歩3分、銀座一丁目駅徒歩5分
- 竣工
- 2016年
- 規模
- 地上32階・地下3階
- 耐震基準
- 新耐震基準適合
- セキュリティ
- 機械警備(24時間監視)
- 駐車場設備
- 要確認
京橋エドグラン の募集区画 (総募集面積 269.45坪)
※月額費用、坪単価 ともに共益費込・税別の価格です
WORK VILLA YAESU(中央区、京橋、宝町、日本橋)
- 所在地
- 東京都中央区京橋1-18-1
- 最寄り駅
- 宝町駅徒歩4分、京橋駅徒歩6分、日本橋駅徒歩6分
- 竣工
- 2026年
- 規模
- 地上13階・地下2階
- 耐震基準
- 新耐震基準適合
- セキュリティ
- 機械警備・有人管理(24時間体制)
- 駐車場設備
- 有(機械式 33台(ハイルーフ 13台/ ノーマル 20台))
- 設備
- 非常用発電機、 貸会議室、 屋上テラス(ルーフトップテラス)、 共用ラウンジ(テナント専用ラウンジ)、 リフレッシュコーナー、 駐輪場、 24時間(要ICカード)、 防災センター、 非接触ICカード、 省エネ・環境配慮
WORK VILLA YAESU の募集区画 (総募集面積 2,622.16坪)
| 図面 | 階数 | 坪数 | 月額費用 | 坪単価 | 入居可能日 | |
|---|---|---|---|---|---|---|
![]() | 12階 | 263.30坪 | お問い合わせください | 2026/5/22 | 検討リスト お問い合わせ | |
![]() | 11階 | 263.30坪 | お問い合わせください | 2026/5/22 | 検討リスト お問い合わせ | |
![]() | 2階 | 253.70坪 | お問い合わせください | 2026/5/22 | 検討リスト お問い合わせ | |
![]() | 9階 | 263.30坪 | お問い合わせください | 2026/5/22 | 検討リスト お問い合わせ | |
![]() | 8階 | 525.98坪 | お問い合わせください | 2026/5/22 | 検討リスト お問い合わせ | |
![]() | 6階 | 263.30坪 | お問い合わせください | 2026/5/22 | 検討リスト お問い合わせ | |
![]() | 5階 | 263.30坪 | お問い合わせください | 2026/5/22 | 検討リスト お問い合わせ | |
![]() | 4階 | 525.98坪 | お問い合わせください | 2026/5/22 | 検討リスト お問い合わせ |
※月額費用、坪単価 ともに共益費込・税別の価格です
銀座ファーストビル(中央区、銀座、銀座一丁目、東銀座)
- 所在地
- 東京都中央区銀座1-10-6
- 最寄り駅
- 銀座一丁目駅徒歩1分、銀座駅徒歩4分、東銀座駅徒歩4分
- 竣工
- 1998年
- 規模
- 地上11階・地下3階
- 耐震基準
- 新耐震基準適合
- セキュリティ
- 機械警備・有人管理(24時間体制)
- 駐車場設備
- 有
銀座ファーストビル の募集区画 (総募集面積 233.03坪)
※月額費用、坪単価 ともに共益費込・税別の価格です
交詢ビルディング(中央区、銀座、東銀座、有楽町)
- 所在地
- 東京都中央区銀座6-8-7
- 最寄り駅
- 銀座駅徒歩4分、東銀座駅徒歩7分、有楽町駅徒歩8分
- 竣工
- 2004年
- 規模
- 地上10階・地下2階
- 耐震基準
- 新耐震基準適合
- セキュリティ
- 機械警備(24時間監視)
- 駐車場設備
- 要確認
交詢ビルディング の募集区画 (総募集面積 242.75坪)
※月額費用、坪単価 ともに共益費込・税別の価格です
野村不動産銀座ビル(中央区、銀座、築地市場、東銀座)
- 所在地
- 東京都中央区銀座6-18-2
- 最寄り駅
- 築地市場駅徒歩4分、東銀座駅徒歩6分、銀座駅徒歩8分
- 竣工
- 1982年
- 規模
- 地上17階・地下5階
- セキュリティ
- 機械警備(24時間監視)
- 駐車場設備
- 要確認
野村不動産銀座ビル の募集区画 (総募集面積 1,239.65坪)
| 図面 | 階数 | 坪数 | 月額費用 | 坪単価 | 入居可能日 | |
|---|---|---|---|---|---|---|
![]() | 5階 | 410.90坪 | お問い合わせください | 2026/4/1 | 検討リスト お問い合わせ | |
![]() | 13階 | 281.76坪 | お問い合わせください | 2026/4/1 | 検討リスト お問い合わせ | |
![]() | 14階 | 271.21坪 | お問い合わせください | 2026/4/1 | 検討リスト お問い合わせ | |
![]() | 15階 | 275.78坪 | お問い合わせください | 2026/4/1 | 検討リスト お問い合わせ |
※月額費用、坪単価 ともに共益費込・税別の価格です
ヒューリック銀座7丁目ビル(中央区、銀座、新橋)
- 所在地
- 東京都中央区銀座7-3-5
- 最寄り駅
- 銀座駅徒歩4分、新橋駅徒歩6分
- 竣工
- 1962年
- 規模
- 地上9階・地下5階
- 耐震基準
- 耐震補強済み(新耐震相当)
- セキュリティ
- 機械警備(24時間監視)
- 駐車場設備
- 無
■ SRC造・2009年耐震補強済の安心構造
■ 基準階340坪超・整形フロアの汎用性
ヒューリック銀座7丁目ビル の募集区画 (総募集面積 309.49坪)
※月額費用、坪単価 ともに共益費込・税別の価格です
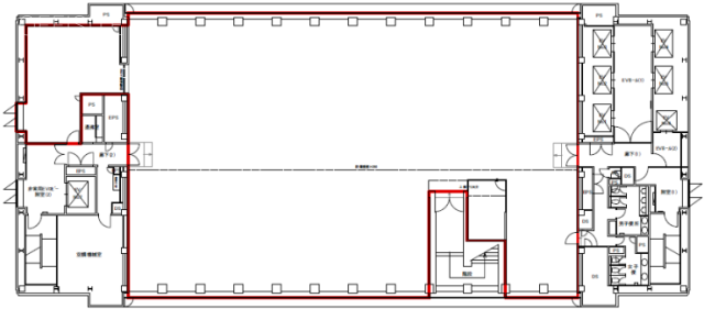
東京ダイヤビルディング2号館(中央区、新川、八丁堀、茅場町)
- 所在地
- 東京都中央区新川1-28-38
- 最寄り駅
- 八丁堀駅徒歩7分、茅場町駅徒歩8分
- 竣工
- 1974年
- 規模
- 地上11階・地下1階
- 駐車場設備
- 要確認
東京ダイヤビルディング2号館 の募集区画 (総募集面積 833.94坪)
| 図面 | 階数 | 坪数 | 月額費用 | 坪単価 | 入居可能日 | |
|---|---|---|---|---|---|---|
![]() | 4階 | 277.98坪 | お問い合わせください | 2026/4 | 検討リスト お問い合わせ | |
![]() | 10階 | 277.98坪 | お問い合わせください | 2026/4 | 検討リスト お問い合わせ | |
![]() | 11階 | 277.98坪 | お問い合わせください | 2026/4 | 検討リスト お問い合わせ |
※月額費用、坪単価 ともに共益費込・税別の価格です
茅場町ファーストビル(中央区、新川、茅場町、八丁堀)
- 所在地
- 東京都中央区新川1-17-21
- 最寄り駅
- 茅場町駅徒歩5分、八丁堀駅徒歩7分、水天宮前駅徒歩7分
- 竣工
- 2003年
- 規模
- 地上12階
- 耐震基準
- 新耐震基準適合
- セキュリティ
- 機械警備(24時間監視)
- 駐車場設備
- 要確認
茅場町ファーストビル の募集区画 (総募集面積 463.95坪)
※月額費用、坪単価 ともに共益費込・税別の価格です
汐留イーストサイドビル(中央区、築地、築地市場、新橋)
- 所在地
- 東京都中央区築地5-4-18
- 最寄り駅
- 築地市場駅徒歩5分、新橋駅徒歩11分、東銀座駅徒歩13分
- 竣工
- 2007年
- 規模
- 地上8階
- 耐震基準
- 新耐震基準適合
- セキュリティ
- 機械警備・有人管理(24時間体制)
- 駐車場設備
- 要確認
汐留イーストサイドビル の募集区画 (総募集面積 368.67坪)
※月額費用、坪単価 ともに共益費込・税別の価格です
Daiwa月島ビル(中央区、月島、勝どき、築地)
- 所在地
- 東京都中央区月島4-16-13
- 最寄り駅
- 月島駅徒歩5分、勝どき駅徒歩5分、築地駅徒歩19分
- 竣工
- 1996年
- 規模
- 地上5階
- 耐震基準
- 新耐震基準適合
- セキュリティ
- 機械警備(24時間監視)
- 駐車場設備
- 要確認
Daiwa月島ビル の募集区画 (総募集面積 554.34坪)
※月額費用、坪単価 ともに共益費込・税別の価格です



































































































































































































































































































































































































