芝大門(港区)の賃貸オフィス・貸事務所情報
増上寺の「大門」がシンボルの、浜松町駅と増上寺の間に位置するエリアです。参道沿いには飲食店が多く、大通りのオフィスビルと路地裏の老舗が共存する活気ある街です。
検索結果 50 件
芝大門116ビル(港区芝大門・浜松町・御成門)
- 所在地
- 東京都港区芝大門1-16-3
- 最寄り駅
- 大門駅徒歩2分、浜松町駅徒歩6分、御成門駅徒歩9分
- 竣工
- 1994年
- 規模
- 地上9階・地下1階
- 耐震基準
- 新耐震基準適合
- セキュリティ
- 機械警備(24時間監視)
- 駐車場設備
- 有(平面式3台)
芝大門116ビル の募集区画 (総募集面積 96.31坪)
| 図面 | 階数 | 坪数 | 月額費用 | 坪単価 | 入居可能日 | |
|---|---|---|---|---|---|---|
![]() | 5階 | 96.31坪 | 賃料を確認する (無料・1分) | 2026/7/21 | 検討リスト お問い合わせ |
※月額費用、坪単価 ともに共益費込・税別の価格です
芝大門旭ビル(港区芝大門・御成門・浜松町)
- 所在地
- 東京都港区芝大門1-2-23
- 最寄り駅
- 大門駅徒歩4分、御成門駅徒歩4分、浜松町駅徒歩9分
- 竣工
- 1985年
- 規模
- 地上4階・地下1階
- 耐震基準
- 新耐震基準適合
- セキュリティ
- 機械警備(24時間監視)
- 駐車場設備
- 要確認
芝大門旭ビル の募集区画 (総募集面積 34.34坪)
※月額費用、坪単価 ともに共益費込・税別の価格です
YSKビル(港区芝大門・御成門・浜松町)
- 所在地
- 東京都港区芝大門1-3-11
- 最寄り駅
- 大門駅徒歩2分、御成門駅徒歩5分、浜松町駅徒歩7分
- 竣工
- 1977年
- 規模
- 地上8階
- セキュリティ
- 機械警備(24時間監視)
- 駐車場設備
- 要確認
YSKビル の募集区画 (総募集面積 50.00坪)
※月額費用、坪単価 ともに共益費込・税別の価格です
玉家ビル(港区芝大門・浜松町・御成門)
- 所在地
- 東京都港区芝大門1-3-17
- 最寄り駅
- 大門駅徒歩3分、浜松町駅徒歩6分、御成門駅徒歩4分
- 竣工
- 1990年
- 規模
- 地上6階
- 耐震基準
- 新耐震基準適合
- セキュリティ
- 機械警備(24時間監視)
- 駐車場設備
- 無
玉家ビル の募集区画 (総募集面積 20.24坪)
※月額費用、坪単価 ともに共益費込・税別の価格です
喜多ビル(港区芝大門・御成門・浜松町)
- 所在地
- 東京都港区芝大門1-3-6
- 最寄り駅
- 御成門駅徒歩5分、大門駅徒歩4分、浜松町駅徒歩8分
- 竣工
- 1984年
- 規模
- 地上9階
- 耐震基準
- 新耐震基準適合
- セキュリティ
- 機械警備(24時間監視)
- 駐車場設備
- 無
- 設備
- トイレ男女別
喜多ビル の募集区画 (総募集面積 64.72坪)
※月額費用、坪単価 ともに共益費込・税別の価格です
黒田ビル(港区芝大門・芝公園・浜松町)
- 所在地
- 東京都港区芝大門2-10-2
- 最寄り駅
- 大門駅徒歩3分、芝公園駅徒歩5分、浜松町駅徒歩5分
- 竣工
- 1984年
- 規模
- 地上7階
- 耐震基準
- 新耐震基準適合
- セキュリティ
- 共用部警備なし(簡易管理)
- 駐車場設備
- 有
- 設備
- トイレ男女別
黒田ビル の募集区画 (総募集面積 32.56坪)
※月額費用、坪単価 ともに共益費込・税別の価格です
共生ビル別館(港区芝大門・芝公園・浜松町)
- 所在地
- 東京都港区芝大門2-11-4
- 最寄り駅
- 大門駅徒歩3分、芝公園駅徒歩7分、浜松町駅徒歩2分
- 竣工
- 1987年
- 規模
- 地上7階
- 耐震基準
- 新耐震基準適合
- セキュリティ
- 機械警備(24時間監視)
- 駐車場設備
- 要確認
共生ビル別館 の募集区画 (総募集面積 46.59坪)
| 図面 | 階数 | 坪数 | 月額費用 | 坪単価 | 入居可能日 | |
|---|---|---|---|---|---|---|
![]() | 3階 | 46.59坪 | 賃料を確認する (無料・1分) | 即時 | 検討リスト お問い合わせ |
※月額費用、坪単価 ともに共益費込・税別の価格です
芝柳生(しばりゅうせい)ビル(港区芝大門・浜松町)
- 所在地
- 東京都港区芝大門2-12-3
- 最寄り駅
- 浜松町駅徒歩3分、大門駅徒歩3分
- 竣工
- 1990年
- 規模
- 地上9階
- 耐震基準
- 新耐震基準適合
- 駐車場設備
- 要確認
芝柳生(しばりゅうせい)ビル の募集区画 (総募集面積 8.63坪)
※月額費用、坪単価 ともに共益費込・税別の価格です
門前ビル(港区芝大門・芝公園・浜松町)
- 所在地
- 東京都港区芝大門2-2-8
- 最寄り駅
- 大門駅徒歩3分、芝公園駅徒歩7分、浜松町駅徒歩7分
- 竣工
- 1990年
- 規模
- 地上7階
- 耐震基準
- 新耐震基準適合
- セキュリティ
- 機械警備(24時間監視)
- 駐車場設備
- 無
門前ビル の募集区画 (総募集面積 24.69坪)
※月額費用、坪単価 ともに共益費込・税別の価格です
芝藤ビル(港区芝大門・御成門・浜松町・新橋)
- 所在地
- 東京都港区芝大門1-1-15
- 最寄り駅
- 大門駅徒歩4分、御成門駅徒歩5分、浜松町駅徒歩8分
- 竣工
- 1990年
- 規模
- 地上6階
- 耐震基準
- 新耐震基準適合
- セキュリティ
- 機械警備(24時間監視)
- 駐車場設備
- 要確認
芝藤ビル の募集区画 (総募集面積 73.00坪)
※月額費用、坪単価 ともに共益費込・税別の価格です
須田ビル(港区芝大門・御成門・浜松町)
- 所在地
- 東京都港区芝大門1-5-2
- 最寄り駅
- 大門駅徒歩3分、御成門駅徒歩5分、浜松町駅徒歩7分
- 竣工
- 1984年
- 規模
- 地上7階・地下1階
- 耐震基準
- 新耐震基準適合
- セキュリティ
- 共用部警備なし(簡易管理)
- 駐車場設備
- 要確認
須田ビル の募集区画 (総募集面積 22.70坪)
※月額費用、坪単価 ともに共益費込・税別の価格です
シバ・パークビル(港区芝大門・御成門・浜松町)
- 所在地
- 東京都港区芝大門1-10-5
- 最寄り駅
- 大門駅徒歩3分、御成門駅徒歩4分、浜松町駅徒歩14分
- 竣工
- 1974年
- 規模
- 地上6階
- 駐車場設備
- 要確認
シバ・パークビル の募集区画 (総募集面積 19.00坪)
※月額費用、坪単価 ともに共益費込・税別の価格です
関口ビル(港区芝大門・御成門・浜松町)
- 所在地
- 東京都港区芝大門1-2-6
- 最寄り駅
- 大門駅徒歩3分、御成門駅徒歩3分、浜松町駅徒歩7分
- 竣工
- 1986年
- 規模
- 地上6階・地下1階
- 耐震基準
- 新耐震基準適合
- セキュリティ
- 機械警備(24時間監視)
- 駐車場設備
- 要確認
関口ビル の募集区画 (総募集面積 15.25坪)
※月額費用、坪単価 ともに共益費込・税別の価格です
サクセス芝大門ビル(港区芝大門・芝公園・浜松町)
- 所在地
- 東京都港区芝大門2-8-13
- 最寄り駅
- 大門駅徒歩4分、芝公園駅徒歩4分、浜松町駅徒歩6分
- 竣工
- 2001年
- 規模
- 地上9階
- 耐震基準
- 新耐震基準適合
- セキュリティ
- 共用部警備なし(簡易管理)
- 駐車場設備
- 要確認
サクセス芝大門ビル の募集区画 (総募集面積 50.62坪)
| 図面 | 階数 | 坪数 | 月額費用 | 坪単価 | 入居可能日 | |
|---|---|---|---|---|---|---|
![]() | 9階 | 50.62坪 | 賃料を確認する (無料・1分) | 即時 | 検討リスト お問い合わせ |
※月額費用、坪単価 ともに共益費込・税別の価格です
+SHIFT SHIBADAIMON(港区芝大門・芝公園・浜松町)
- 所在地
- 東京都港区芝大門2-1-16
- 最寄り駅
- 大門駅徒歩2分、芝公園駅徒歩5分、浜松町駅徒歩6分
- 竣工
- 1990年
- 規模
- 地上8階・地下1階
- 耐震基準
- 新耐震基準適合
- セキュリティ
- 機械警備(24時間監視)
- 駐車場設備
- 無
- 設備
- トイレ男女別、 リニューアル済み
+SHIFT SHIBADAIMON の募集区画 (総募集面積 200.77坪)
| 図面 | 階数 | 坪数 | 月額費用 | 坪単価 | 入居可能日 | |
|---|---|---|---|---|---|---|
![]() | 5階 | 77.89坪 | 2,336,700円 | 30,000円 | 即時 | 検討リスト お問い合わせ |
![]() | 6階 | 77.89坪 | 2,336,700円 | 30,000円 | 即時 | 検討リスト お問い合わせ |
![]() | 1階 | 44.99坪 | 1,259,720円 | 28,000円 | 2026/5/1 | 検討リスト お問い合わせ |
※月額費用、坪単価 ともに共益費込・税別の価格です
芝大門RUビル(港区芝大門・御成門・浜松町)
- 所在地
- 東京都港区芝大門1-6-10
- 最寄り駅
- 大門駅徒歩2分、御成門駅徒歩8分、浜松町駅徒歩5分
- 竣工
- 2002年
- 規模
- 地上6階
- 耐震基準
- 新耐震基準適合
- セキュリティ
- 機械警備(24時間監視)
- 駐車場設備
- 要確認
- 設備
- トイレ男女別
芝大門RUビル の募集区画 (総募集面積 35.63坪)
※月額費用、坪単価 ともに共益費込・税別の価格です
芝大門ABC館(港区芝大門・浜松町・御成門)
- 所在地
- 東京都港区芝大門1-15-7
- 最寄り駅
- 大門駅徒歩1分、浜松町駅徒歩5分、御成門駅徒歩7分
- 竣工
- 1997年
- 規模
- 地上9階
- 耐震基準
- 新耐震基準適合
- セキュリティ
- 機械警備(24時間監視)
- 駐車場設備
- 要確認
芝大門ABC館 の募集区画 (総募集面積 17.29坪)
※月額費用、坪単価 ともに共益費込・税別の価格です
PMO芝大門(港区芝大門・御成門・浜松町)
- 所在地
- 東京都港区芝大門1-10-18
- 最寄り駅
- 御成門駅徒歩3分、大門駅徒歩4分、浜松町駅徒歩8分
- 竣工
- 2014年
- 規模
- 地上9階
- 耐震基準
- 高耐震構造(新耐震基準適合)
- セキュリティ
- 機械警備(24時間監視)
- 駐車場設備
- 無
- 設備
- 24時間(要ICカード)、 トイレ男女別
PMO芝大門 の募集区画 (総募集面積 55.33坪)
| 図面 | 階数 | 坪数 | 月額費用 | 坪単価 | 入居可能日 | |
|---|---|---|---|---|---|---|
![]() | 8階 | 55.33坪 | 賃料を確認する (無料・1分) | 2026/6/1 | 検討リスト お問い合わせ |
※月額費用、坪単価 ともに共益費込・税別の価格です
コスモタワービル(港区芝大門・御成門・浜松町)
- 所在地
- 東京都港区芝大門1-3-10
- 最寄り駅
- 大門駅徒歩3分、御成門駅徒歩5分、浜松町駅徒歩7分
- 竣工
- 1991年
- 規模
- 地上10階
- 耐震基準
- 新耐震基準適合
- セキュリティ
- 機械警備(24時間監視)
- 駐車場設備
- 無
コスモタワービル の募集区画 (総募集面積 20.13坪)
※月額費用、坪単価 ともに共益費込・税別の価格です
富士ビル(港区芝大門・浜松町・芝公園)
- 所在地
- 東京都港区芝大門2-11-1
- 最寄り駅
- 大門駅徒歩4分、浜松町駅徒歩5分、芝公園駅徒歩6分
- 竣工
- 1973年
- 規模
- 地上7階
- セキュリティ
- 機械警備(24時間監視)
- 駐車場設備
- 要確認
富士ビル の募集区画 (総募集面積 92.50坪)
※月額費用、坪単価 ともに共益費込・税別の価格です
芝大門スクエア(港区芝大門・御成門・浜松町)
- 所在地
- 東京都港区芝大門1-3-5
- 最寄り駅
- 大門駅徒歩4分、御成門駅徒歩4分、浜松町駅徒歩7分
- 竣工
- 1984年
- 規模
- 地上5階
- 耐震基準
- 新耐震基準適合
- セキュリティ
- 機械警備(24時間監視)
- 駐車場設備
- 無
- 設備
- オフィス専用ゾーン制御、 リニューアル済み、 トイレ男女別
芝大門スクエア の募集区画 (総募集面積 29.40坪)
※月額費用、坪単価 ともに共益費込・税別の価格です
小松ビル(港区芝大門・浜松町・御成門)
- 所在地
- 東京都港区芝大門1-11-4
- 最寄り駅
- 大門駅徒歩2分、浜松町駅徒歩5分、御成門駅徒歩5分
- 竣工
- 1998年
- 規模
- 地上4階
- 耐震基準
- 新耐震基準適合
- セキュリティ
- 共用部警備なし(簡易管理)
- 駐車場設備
- 要確認
小松ビル の募集区画 (総募集面積 37.36坪)
※月額費用、坪単価 ともに共益費込・税別の価格です
グランファースト芝大門(港区芝大門・御成門・浜松町)
- 所在地
- 東京都港区芝大門1-3-4
- 最寄り駅
- 大門駅徒歩4分、御成門駅徒歩5分、浜松町駅徒歩8分
- 竣工
- 1988年
- 規模
- 地上9階
- 耐震基準
- 新耐震基準適合
- セキュリティ
- 機械警備(24時間監視)
- 駐車場設備
- 要確認
- 設備
- トイレ男女別
グランファースト芝大門 の募集区画 (総募集面積 552.21坪)
| 図面 | 階数 | 坪数 | 月額費用 | 坪単価 | 入居可能日 | |
|---|---|---|---|---|---|---|
![]() | 2階 | 110.54坪 | 賃料を確認する (無料・1分) | 即時 | 検討リスト お問い合わせ | |
![]() | 5階 | 110.54坪 | 3,316,200円 | 30,000円 | 即時 | 検討リスト お問い合わせ |
![]() | 6階 | 110.54坪 | 賃料を確認する (無料・1分) | 即時 | 検討リスト お問い合わせ | |
![]() | 7階 | 110.54坪 | 賃料を確認する (無料・1分) | 即時 | 検討リスト お問い合わせ | |
![]() | 8階 | 110.05坪 | 3,411,550円 | 31,000円 | 即時 | 検討リスト お問い合わせ |
※月額費用、坪単価 ともに共益費込・税別の価格です
IZUMIビル(港区芝大門・浜松町・芝公園)
- 所在地
- 東京都港区芝大門2-4-1
- 最寄り駅
- 大門駅徒歩1分、浜松町駅徒歩3分、芝公園駅徒歩9分
- 竣工
- 1988年
- 規模
- 地上10階・地下1階
- 耐震基準
- 新耐震基準適合
- セキュリティ
- 機械警備(24時間監視)
- 駐車場設備
- 有
- 設備
- トイレ男女別
IZUMIビル の募集区画 (総募集面積 28.55坪)
※月額費用、坪単価 ともに共益費込・税別の価格です
芝大門一丁目(港区芝大門・浜松町・新橋)
- 所在地
- 東京都港区芝大門1-6-4
- 最寄り駅
- 大門駅徒歩2分、浜松町駅徒歩7分、新橋駅徒歩9分
- 竣工
- 2018年
- 規模
- 地上2階
- 耐震基準
- 新耐震基準適合
- セキュリティ
- 共用部警備なし(簡易管理)
- 駐車場設備
- 要確認
芝大門一丁目 の募集区画 (総募集面積 12.87坪)
※月額費用、坪単価 ともに共益費込・税別の価格です
T&G浜松町ビル(港区芝大門・浜松町・御成門)
- 所在地
- 東京都港区芝大門2-12-10
- 最寄り駅
- 大門駅徒歩4分、浜松町駅徒歩5分、御成門駅徒歩5分
- 竣工
- 1988年
- 規模
- 地上9階・地下1階
- 耐震基準
- 新耐震基準適合
- セキュリティ
- 共用部警備なし(簡易管理)
- 駐車場設備
- 有
- 設備
- リニューアル済み、 トイレ男女別
T&G浜松町ビル の募集区画 (総募集面積 74.00坪)
| 図面 | 階数 | 坪数 | 月額費用 | 坪単価 | 入居可能日 | |
|---|---|---|---|---|---|---|
![]() | 3階 | 74.00坪 | 賃料を確認する (無料・1分) | 2026/7/22 | 検討リスト お問い合わせ |
※月額費用、坪単価 ともに共益費込・税別の価格です
VORT芝大門Ⅲ(港区芝大門・芝公園・浜松町)
- 所在地
- 東京都港区芝大門2-9-4
- 最寄り駅
- 大門駅徒歩6分、芝公園駅徒歩5分、浜松町駅徒歩7分
- 竣工
- 2021年
- 規模
- 地上9階
- 耐震基準
- 新耐震基準適合
- セキュリティ
- 機械警備(24時間監視)
- 駐車場設備
- 無
- 設備
- トイレ男女別
VORT芝大門Ⅲ の募集区画 (総募集面積 29.99坪)
| 図面 | 階数 | 坪数 | 月額費用 | 坪単価 | 入居可能日 | |
|---|---|---|---|---|---|---|
![]() | 3階 | 29.99坪 | 賃料を確認する (無料・1分) | 2026/10/1 | 検討リスト お問い合わせ |
※月額費用、坪単価 ともに共益費込・税別の価格です
VILLA芝大門(港区芝大門・浜松町・芝公園)
- 所在地
- 東京都港区芝大門2-3-7
- 最寄り駅
- 大門駅徒歩2分、浜松町駅徒歩6分、芝公園駅徒歩6分
- 竣工
- 2022年
- 規模
- 地上11階
- 耐震基準
- 高耐震構造(新耐震基準適合)
- セキュリティ
- 機械警備(24時間監視)
- 駐車場設備
- 有
- 設備
- トイレ男女別
VILLA芝大門 の募集区画 (総募集面積 60.00坪)
| 図面 | 階数 | 坪数 | 月額費用 | 坪単価 | 入居可能日 | |
|---|---|---|---|---|---|---|
![]() | 4階 | 20.62坪 | 577,360円 | 28,000円 | 即時 | 検討リスト お問い合わせ |
![]() | 9階 | 20.62坪 | 577,360円 | 28,000円 | 即時 | 検討リスト お問い合わせ |
![]() | 10階 | 18.76坪 | 431,480円 | 23,000円 | 即時 | 検討リスト お問い合わせ |
※月額費用、坪単価 ともに共益費込・税別の価格です
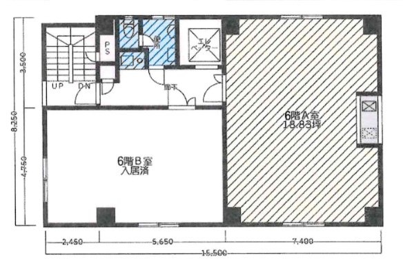
中根ビル(港区芝大門・浜松町)
- 所在地
- 東京都港区芝大門2-4-4
- 最寄り駅
- 大門駅徒歩1分、浜松町駅徒歩3分
- 竣工
- 1980年
- 規模
- 地上10階
- セキュリティ
- 共用部警備なし(簡易管理)
- 駐車場設備
- 要確認
中根ビル の募集区画 (総募集面積 18.83坪)
※月額費用、坪単価 ともに共益費込・税別の価格です
エンスイテ芝大門(港区芝大門・御成門)
- 所在地
- 東京都港区芝大門2-607-1
- 最寄り駅
- 大門駅徒歩6分、御成門駅徒歩3分
- 竣工
- 2001年
- 規模
- 地上9階・地下1階
- 耐震基準
- 新耐震基準適合
- 駐車場設備
- 有
エンスイテ芝大門 の募集区画 (総募集面積 578.21坪)
| 図面 | 階数 | 坪数 | 月額費用 | 坪単価 | 入居可能日 | |
|---|---|---|---|---|---|---|
準備中 | 9階 | 51.74坪 | 賃料を確認する (無料・1分) | 2026/8 | 検討リスト お問い合わせ | |
準備中 | 2階 | 75.21坪 | 賃料を確認する (無料・1分) | 2026/8 | 検討リスト お問い合わせ | |
準備中 | 3階 | 75.21坪 | 賃料を確認する (無料・1分) | 2026/8 | 検討リスト お問い合わせ | |
準備中 | 4階 | 75.21坪 | 賃料を確認する (無料・1分) | 2026/8 | 検討リスト お問い合わせ | |
準備中 | 5階 | 75.21坪 | 賃料を確認する (無料・1分) | 2026/8 | 検討リスト お問い合わせ | |
準備中 | 6階 | 75.21坪 | 賃料を確認する (無料・1分) | 2026/8 | 検討リスト お問い合わせ | |
準備中 | 7階 | 75.21坪 | 賃料を確認する (無料・1分) | 2026/8 | 検討リスト お問い合わせ | |
準備中 | 8階 | 75.21坪 | 賃料を確認する (無料・1分) | 2026/8 | 検討リスト お問い合わせ |
※月額費用、坪単価 ともに共益費込・税別の価格です
欧文ビル(港区芝大門)
- 所在地
- 東京都港区芝大門2-6-11
- 最寄り駅
- 大門駅徒歩3分
- 竣工
- 1994年
- 規模
- 地上5階
- 耐震基準
- 新耐震基準適合
- 駐車場設備
- 要確認
欧文ビル の募集区画 (総募集面積 7.54坪)
※月額費用、坪単価 ともに共益費込・税別の価格です
GSハイム芝大門(港区芝大門・芝公園・浜松町)
- 所在地
- 東京都港区芝大門2-1-18
- 最寄り駅
- 大門駅徒歩3分、芝公園駅徒歩5分、浜松町駅徒歩8分
- 竣工
- 1984年
- 規模
- 地上10階
- 耐震基準
- 新耐震基準適合
- 駐車場設備
- 要確認
GSハイム芝大門 の募集区画 (総募集面積 7.70坪)
※月額費用、坪単価 ともに共益費込・税別の価格です
シャンデールビル(港区芝大門・浜松町・芝公園)
- 所在地
- 東京都港区芝大門2-9-8
- 最寄り駅
- 大門駅徒歩4分、浜松町駅徒歩5分、芝公園駅徒歩5分
- 竣工
- 1985年
- 規模
- 地上6階
- 耐震基準
- 新耐震基準適合
- セキュリティ
- 共用部警備なし(簡易管理)
- 駐車場設備
- 要確認
シャンデールビル の募集区画 (総募集面積 10.45坪)
※月額費用、坪単価 ともに共益費込・税別の価格です
浜松町駅と大門駅からすぐの好立地です。第一京浜沿いには大型ビルが立ち並びます。ランチスポットが非常に充実しており、東京タワーもすぐ近くに見えるため、働く環境として満足度の高いエリアです。士業、商社、広告関連など幅広い業種の企業が入居しています。






























































































































































































































































































































































































