京急川崎駅の賃貸オフィス・貸事務所情報
検索結果 50 件
並び替え
JTB川崎共同ビル(川崎市川崎区、砂子、京急川崎、川崎)
- 所在地
- 神奈川県川崎市川崎区砂子1-1-14
- 最寄り駅
- 京急川崎駅徒歩2分、川崎駅徒歩4分
- 竣工
- 1991年
- 規模
- 地上9階・地下1階
- 耐震基準
- 新耐震基準適合
- セキュリティ
- 機械警備(24時間監視)
- 駐車場設備
- 要確認
JTB川崎共同ビル の募集区画 (総募集面積 33.18坪)
※月額費用、坪単価 ともに共益費込・税別の価格です
JMFビル川崎01(川崎市川崎区、日進町、川崎、京急川崎)
- 所在地
- 神奈川県川崎市川崎区日進町1-14
- 最寄り駅
- 川崎駅徒歩4分、京急川崎駅徒歩8分
- 竣工
- 1982年
- 規模
- 地上10階・地下2階
- 駐車場設備
- 要確認
JMFビル川崎01 の募集区画 (総募集面積 1,165.17坪)
※月額費用、坪単価 ともに共益費込・税別の価格です
川崎日進町ビル(川崎市川崎区、日進町、八丁畷、川崎)
- 所在地
- 神奈川県川崎市川崎区日進町7-1
- 最寄り駅
- 八丁畷駅徒歩6分、川崎駅徒歩10分、京急川崎駅徒歩10分
- 竣工
- 1992年
- 規模
- 地上15階・地下2階
- 耐震基準
- 新耐震基準適合
- セキュリティ
- 機械警備・有人管理(24時間体制)
- 駐車場設備
- 有(平置き5台、機械式100台)
川崎日進町ビル の募集区画 (総募集面積 53.68坪)
※月額費用、坪単価 ともに共益費込・税別の価格です
パレール三井ビル(川崎市川崎区、東田町、京急川崎、川崎)
- 所在地
- 神奈川県川崎市川崎区東田町8
- 最寄り駅
- 京急川崎駅徒歩6分、川崎駅徒歩8分
- 竣工
- 1990年
- 規模
- 地上20階・地下1階
- 耐震基準
- 新耐震基準適合
- セキュリティ
- 機械警備(24時間監視)
- 駐車場設備
- 有(231台)
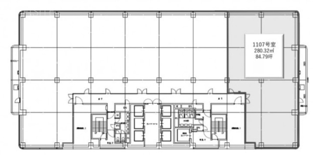
パレール三井ビルディングは、川崎駅徒歩8分、京急川崎駅中央口徒歩6分に位置する地上20階建てのオフィスビルです。1990年竣工、多機能複合施設「パレール」内に立地し、商業・行政・住宅が一体化した高い利便性を誇ります。基準階278.09坪の使いやすいフロアプランに、天井高2,500mm、OAフロア50mm、床荷重300kg/㎡の充実した仕様を備えます。非接触型ICカードと24時間監視体制による安心感の高いセキュリティ体制を整えています。
パレール三井ビル の募集区画 (総募集面積 419.71坪)
| 図面 | 階数 | 坪数 | 月額費用 | 坪単価 | 入居可能日 | |
|---|---|---|---|---|---|---|
![]() | 9階 | 56.83坪 | 非公開 | 非公開 | 2026/4/1 | 検討リスト お問い合わせ |
![]() | 11階 | 84.79坪 | 非公開 | 非公開 | 即時 | 検討リスト お問い合わせ |
![]() | 20階 | 278.09坪 | 非公開 | 非公開 | 2026/2/1 | 検討リスト お問い合わせ |
※月額費用、坪単価 ともに共益費込・税別の価格です
いちご川崎ビル(川崎市川崎区、東田町、川崎、京急川崎)
- 所在地
- 神奈川県川崎市川崎区東田町1-2
- 最寄り駅
- 川崎駅徒歩5分、京急川崎駅徒歩5分
- 竣工
- 1990年
- 規模
- 地上9階・地下2階
- 耐震基準
- 新耐震基準適合
- セキュリティ
- 有人管理(警備員常駐)
- 駐車場設備
- 要確認
いちご川崎ビル の募集区画 (総募集面積 64.66坪)
※月額費用、坪単価 ともに共益費込・税別の価格です
日本生命川崎ビル(川崎市川崎区、南町、川崎、京急川崎)
- 所在地
- 神奈川県川崎市川崎区南町1-1
- 最寄り駅
- 川崎駅徒歩5分、京急川崎駅徒歩9分
- 竣工
- 1981年
- 規模
- 地上12階・地下1階
- セキュリティ
- 機械警備(24時間監視)
- 駐車場設備
- 有(平置き2台、機械式90台)
日本生命川崎ビル の募集区画 (総募集面積 196.47坪)
| 図面 | 階数 | 坪数 | 月額費用 | 坪単価 | 入居可能日 | |
|---|---|---|---|---|---|---|
![]() | 5階 | 60.59坪 | 非公開 | 非公開 | 即時 | 検討リスト お問い合わせ |
![]() | 10階 | 76.70坪 | 非公開 | 非公開 | 即時 | 検討リスト お問い合わせ |
![]() | 3階 | 59.18坪 | 非公開 | 非公開 | 2025/12 | 検討リスト お問い合わせ |
※月額費用、坪単価 ともに共益費込・税別の価格です
明治安田生命川崎ビル(川崎市川崎区、宮本町、京急川崎、川崎)
- 所在地
- 神奈川県川崎市川崎区宮本町6-1
- 最寄り駅
- 京急川崎駅徒歩6分、川崎駅徒歩8分
- 竣工
- 1983年
- 規模
- 地上13階・地下1階
- 耐震基準
- 新耐震基準適合
- 駐車場設備
- 要確認
明治安田生命川崎ビル の募集区画 (総募集面積 1,129.79坪)
| 図面 | 階数 | 坪数 | 月額費用 | 坪単価 | 入居可能日 | |
|---|---|---|---|---|---|---|
![]() | 2階 | 186.86坪 | 非公開 | 非公開 | 即時 | 検討リスト お問い合わせ |
![]() | 3階 | 188.06坪 | 非公開 | 非公開 | 即時 | 検討リスト お問い合わせ |
![]() | 4階 | 188.06坪 | 非公開 | 非公開 | 即時 | 検討リスト お問い合わせ |
![]() | 5階 | 79.78坪 | 非公開 | 非公開 | 2026/3 | 検討リスト お問い合わせ |
![]() | 7階 | 188.07坪 | 非公開 | 非公開 | 相談 | 検討リスト お問い合わせ |
![]() | 8階 | 188.08坪 | 非公開 | 非公開 | 相談 | 検討リスト お問い合わせ |
![]() | 6階 | 31.39坪 | 非公開 | 非公開 | 2026/3 | 検討リスト お問い合わせ |
![]() | 6階 | 79.49坪 | 非公開 | 非公開 | 2026/3 | 検討リスト お問い合わせ |
※月額費用、坪単価 ともに共益費込・税別の価格です
ミューザ川崎セントラルタワー(川崎市幸区、大宮町、川崎、京急川崎)
- 所在地
- 神奈川県川崎市幸区大宮町1310
- 最寄り駅
- 川崎駅徒歩1分、京急川崎駅徒歩1分
- 竣工
- 2003年
- 規模
- 地上27階・地下2階
- 耐震基準
- 新耐震基準適合
- セキュリティ
- 機械警備(24時間監視)
- 駐車場設備
- 要確認
ミューザ川崎セントラルタワー の募集区画 (総募集面積 472.56坪)
| 図面 | 階数 | 坪数 | 月額費用 | 坪単価 | 入居可能日 | |
|---|---|---|---|---|---|---|
![]() | 13階 | 124.48坪 | 非公開 | 非公開 | 2026/3/1 | 検討リスト お問い合わせ |
![]() | 24階 | 174.04坪 | 非公開 | 非公開 | 即時 | 検討リスト お問い合わせ |
![]() | 26階 | 174.04坪 | 非公開 | 非公開 | 即時 | 検討リスト お問い合わせ |
※月額費用、坪単価 ともに共益費込・税別の価格です
ソリッドスクエア西館(川崎市幸区、堀川町、京急川崎、川崎)
- 所在地
- 神奈川県川崎市幸区堀川町580
- 最寄り駅
- 京急川崎駅徒歩4分、川崎駅徒歩5分、尻手駅徒歩22分
- 竣工
- 1995年
- 規模
- 地上24階・地下2階
- 耐震基準
- 新耐震基準適合
- セキュリティ
- 機械警備(24時間監視)
- 駐車場設備
- 要確認
ソリッドスクエア西館 の募集区画 (総募集面積 1,742.85坪)
| 図面 | 階数 | 坪数 | 月額費用 | 坪単価 | 入居可能日 | |
|---|---|---|---|---|---|---|
![]() | 15階 | 220.44坪 | 非公開 | 非公開 | 即時 | 検討リスト お問い合わせ |
![]() | 5階 | 320.06坪 | 非公開 | 非公開 | 即時 | 検討リスト お問い合わせ |
![]() | 17階 | 248.19坪 | 非公開 | 非公開 | 即時 | 検討リスト お問い合わせ |
![]() | 15階 | 245.08坪 | 非公開 | 非公開 | 即時 | 検討リスト お問い合わせ |
![]() | 16階 | 311.89坪 | 非公開 | 非公開 | 2025/12/1 | 検討リスト お問い合わせ |
![]() | 16階 | 220.44坪 | 非公開 | 非公開 | 2025/12/1 | 検討リスト お問い合わせ |
![]() | 18階 | 176.75坪 | 非公開 | 非公開 | 2025/12/1 | 検討リスト お問い合わせ |
※月額費用、坪単価 ともに共益費込・税別の価格です
川崎テックセンター(川崎市幸区、堀川町、京急川崎、川崎)
- 所在地
- 神奈川県川崎市幸区堀川町580-16
- 最寄り駅
- 京急川崎駅徒歩6分、川崎駅徒歩6分、尻手駅徒歩24分
- 竣工
- 1988年
- 規模
- 地上20階・地下3階
- 耐震基準
- 新耐震基準適合
- セキュリティ
- 機械警備・有人管理(24時間体制)
- 駐車場設備
- 有(平置き137台)
川崎テックセンター の募集区画 (総募集面積 440.27坪)
| 図面 | 階数 | 坪数 | 月額費用 | 坪単価 | 入居可能日 | |
|---|---|---|---|---|---|---|
![]() | 4階 | 174.84坪 | 非公開 | 非公開 | 即時 | 検討リスト お問い合わせ |
![]() | 13階 | 79.98坪 | 非公開 | 非公開 | 即時 | 検討リスト お問い合わせ |
![]() | 20階 | 185.45坪 | 非公開 | 非公開 | 2025/12/16 | 検討リスト お問い合わせ |
※月額費用、坪単価 ともに共益費込・税別の価格です
興和川崎西口ビル(川崎市幸区、堀川町、京急川崎、川崎)
- 所在地
- 神奈川県川崎市幸区堀川町66-2
- 最寄り駅
- 京急川崎駅徒歩6分、川崎駅徒歩8分、尻手駅徒歩24分
- 竣工
- 1988年
- 規模
- 地上21階・地下2階
- 耐震基準
- 新耐震基準適合
- セキュリティ
- 有人管理(警備員常駐)
- 駐車場設備
- 要確認
興和川崎西口ビル の募集区画 (総募集面積 855.22坪)
| 図面 | 階数 | 坪数 | 月額費用 | 坪単価 | 入居可能日 | |
|---|---|---|---|---|---|---|
![]() | 9階 | 283.50坪 | 非公開 | 非公開 | 即時 | 検討リスト お問い合わせ |
![]() | 8階 | 154.95坪 | 非公開 | 非公開 | 即時 | 検討リスト お問い合わせ |
![]() | 3階 | 29.61坪 | 非公開 | 非公開 | 即時 | 検討リスト お問い合わせ |
![]() | 3階 | 28.84坪 | 非公開 | 非公開 | 即時 | 検討リスト お問い合わせ |
![]() | 3階 | 28.84坪 | 非公開 | 非公開 | 即時 | 検討リスト お問い合わせ |
![]() | 3階 | 28.84坪 | 非公開 | 非公開 | 即時 | 検討リスト お問い合わせ |
![]() | 3階 | 28.84坪 | 非公開 | 非公開 | 即時 | 検討リスト お問い合わせ |
![]() | 3階 | 28.84坪 | 非公開 | 非公開 | 即時 | 検討リスト お問い合わせ |
![]() | 3階 | 28.84坪 | 非公開 | 非公開 | 即時 | 検討リスト お問い合わせ |
![]() | 3階 | 64.09坪 | 非公開 | 非公開 | 即時 | 検討リスト お問い合わせ |
![]() | 3階 | 63.51坪 | 非公開 | 非公開 | 即時 | 検討リスト お問い合わせ |
![]() | 3階 | 28.84坪 | 非公開 | 非公開 | 即時 | 検討リスト お問い合わせ |
![]() | 3階 | 28.84坪 | 非公開 | 非公開 | 即時 | 検討リスト お問い合わせ |
![]() | 3階 | 28.84坪 | 非公開 | 非公開 | 即時 | 検討リスト お問い合わせ |
※月額費用、坪単価 ともに共益費込・税別の価格です
ソリッドスクエア東館(川崎市幸区、堀川町、京急川崎、川崎)
- 所在地
- 神奈川県川崎市幸区堀川町580
- 最寄り駅
- 京急川崎駅徒歩4分、川崎駅徒歩5分、尻手駅徒歩22分
- 竣工
- 1995年
- 規模
- 地上24階・地下2階
- 耐震基準
- 新耐震基準適合
- セキュリティ
- 機械警備(24時間監視)
- 駐車場設備
- 要確認
ソリッドスクエア東館 の募集区画 (総募集面積 643.87坪)
| 図面 | 階数 | 坪数 | 月額費用 | 坪単価 | 入居可能日 | |
|---|---|---|---|---|---|---|
![]() | 2階 | 32.65坪 | 非公開 | 非公開 | 即時 | 検討リスト お問い合わせ |
![]() | 17階 | 248.19坪 | 非公開 | 非公開 | 即時 | 検討リスト お問い合わせ |
![]() | 15階 | 220.44坪 | 非公開 | 非公開 | 2025/12/1 | 検討リスト お問い合わせ |
![]() | 9階 | 142.59坪 | 非公開 | 非公開 | 2025/12/24 | 検討リスト お問い合わせ |
※月額費用、坪単価 ともに共益費込・税別の価格です
川崎砂子ビル(川崎市川崎区、砂子、京急川崎、川崎)
- 所在地
- 神奈川県川崎市川崎区砂子1-2-4
- 最寄り駅
- 京急川崎駅徒歩2分、川崎駅徒歩3分
- 竣工
- 1990年
- 規模
- 地上12階・地下1階
- 耐震基準
- 新耐震基準適合
- セキュリティ
- 機械警備(24時間監視)
- 駐車場設備
- 要確認












































































































































































































































































































