馬喰町駅、東日本橋駅、馬喰横山駅の賃貸オフィス・貸事務所情報
JR総武線快速が通る「馬喰町駅」。都営新宿線「馬喰横山駅」、都営浅草線「東日本橋駅」と地下通路で結ばれた3駅利用可能な交通の要所であり、日本最大の現金問屋街から、現在はアートとデザインが融合する高感度なオフィス街へと変貌しています。
検索結果 140 件
日本橋BSビル(中央区、日本橋富沢町、東日本橋、馬喰横山)
- 所在地
- 東京都中央区日本橋富沢町10-14
- 最寄り駅
- 東日本橋駅徒歩5分、馬喰横山駅徒歩4分、人形町駅徒歩5分
- 竣工
- 1994年
- 規模
- 地上8階・地下1階
- 耐震基準
- 新耐震基準適合
- セキュリティ
- 機械警備(24時間監視)
- 駐車場設備
- 有
- 設備
- トイレ男女別
日本橋BSビル の募集区画 (総募集面積 68.20坪)
※月額費用、坪単価 ともに共益費込・税別の価格です
エマーレ日本橋富沢町(中央区、日本橋富沢町、東日本橋、馬喰横山)
- 所在地
- 東京都中央区日本橋富沢町15-6-1
- 最寄り駅
- 東日本橋駅徒歩3分、馬喰横山駅徒歩3分、人形町駅徒歩6分
- 竣工
- 2019年
- 規模
- 地上6階
- 耐震基準
- 新耐震基準適合
- セキュリティ
- 共用部警備なし(簡易管理)
- 駐車場設備
- 要確認
エマーレ日本橋富沢町 の募集区画 (総募集面積 11.81坪)
※月額費用、坪単価 ともに共益費込・税別の価格です
THE GATE 日本橋人形町(中央区、日本橋富沢町、人形町、東日本橋)
- 所在地
- 東京都中央区日本橋富沢町7-16
- 最寄り駅
- 人形町駅徒歩4分、東日本橋駅徒歩7分、浜町駅徒歩7分
- 竣工
- 1992年
- 規模
- 地上9階・地下1階
- 耐震基準
- 新耐震基準適合
- 駐車場設備
- 無
- 設備
- 24時間(要ICカード)、 リニューアル済み、 トイレ男女別
THE GATE 日本橋人形町 の募集区画 (総募集面積 62.65坪)
※月額費用、坪単価 ともに共益費込・税別の価格です
TWG日本橋イーストⅡ(旧 LDB日本橋富沢町)(中央区、日本橋富沢町、東日本橋、馬喰横山)
- 所在地
- 東京都中央区日本橋富沢町10-11
- 最寄り駅
- 東日本橋駅徒歩3分、馬喰横山駅徒歩3分、人形町駅徒歩5分
- 竣工
- 2021年
- 規模
- 地上10階
- 耐震基準
- 新耐震基準適合
- セキュリティ
- 機械警備(24時間監視)
- 駐車場設備
- 無
TWG日本橋イーストⅡ(旧 LDB日本橋富沢町) の募集区画 (総募集面積 90.18坪)
| 図面 | 階数 | 坪数 | 月額費用 | 坪単価 | 入居可能日 | |
|---|---|---|---|---|---|---|
![]() | 5階 | 30.06坪 | お問い合わせください | 即時 | 検討リスト お問い合わせ | |
![]() | 6階 | 30.06坪 | お問い合わせください | 2026/4/1 | 検討リスト お問い合わせ | |
![]() | 9階 | 30.06坪 | お問い合わせください | 2026/4/1 | 検討リスト お問い合わせ |
※月額費用、坪単価 ともに共益費込・税別の価格です
THE CORNER 日本橋人形町(中央区、日本橋人形町、人形町、馬喰横山)
- 所在地
- 東京都中央区日本橋人形町3-11-7
- 最寄り駅
- 人形町駅徒歩2分、馬喰横山駅徒歩8分、水天宮前駅徒歩7分
- 竣工
- 1988年
- 規模
- 地上7階・地下1階
- 耐震基準
- 新耐震基準適合
- セキュリティ
- 機械警備(24時間監視)
- 駐車場設備
- 有(機械式)
- 設備
- 24時間(要ICカード)、 リニューアル済み、 トイレ男女別
THE CORNER 日本橋人形町 の募集区画 (総募集面積 43.47坪)
※月額費用、坪単価 ともに共益費込・税別の価格です
レイフォリア人形町ビル(中央区、日本橋人形町、人形町、水天宮前)
- 所在地
- 東京都中央区日本橋人形町2-7-13
- 最寄り駅
- 人形町駅徒歩1分、水天宮前駅徒歩6分、馬喰横山駅徒歩8分
- 竣工
- 2025年
- 規模
- 地上10階
- 耐震基準
- 新耐震基準適合
- セキュリティ
- 機械警備(24時間監視)
- 駐車場設備
- 無
レイフォリア人形町ビル の募集区画 (総募集面積 16.84坪)
※月額費用、坪単価 ともに共益費込・税別の価格です
セントピアビル(中央区、日本橋馬喰町、馬喰町、浅草橋)
- 所在地
- 東京都中央区日本橋馬喰町2-3-2
- 最寄り駅
- 馬喰町駅徒歩4分、浅草橋駅徒歩4分
- 竣工
- 1982年
- 規模
- 地上10階・地下1階
- 耐震基準
- 耐震補強済み(新耐震相当)
- セキュリティ
- 機械警備(24時間監視)
- 駐車場設備
- 有
- 設備
- トイレ男女別
セントピアビル の募集区画 (総募集面積 283.30坪)
| 図面 | 階数 | 坪数 | 月額費用 | 坪単価 | 入居可能日 | |
|---|---|---|---|---|---|---|
![]() | 6階 | 94.34坪 | 1,509,440円 | 16,000円 | 即時 | 検討リスト お問い合わせ |
![]() | 8階 | 94.48坪 | 1,511,680円 | 16,000円 | 即時 | 検討リスト お問い合わせ |
![]() | 9階 | 94.48坪 | 1,511,680円 | 16,000円 | 即時 | 検討リスト お問い合わせ |
※月額費用、坪単価 ともに共益費込・税別の価格です
ラスパイユビル(中央区、日本橋馬喰町、馬喰横山、馬喰町)
- 所在地
- 東京都中央区日本橋馬喰町1-5-11
- 最寄り駅
- 馬喰横山駅徒歩1分、馬喰町駅徒歩2分、東日本橋駅徒歩4分
- 竣工
- 1975年
- 規模
- 地上7階・地下1階
- 駐車場設備
- 要確認
ラスパイユビル の募集区画 (総募集面積 15.17坪)
※月額費用、坪単価 ともに共益費込・税別の価格です
早川ビル(中央区、日本橋馬喰町、馬喰町、東日本橋)
- 所在地
- 東京都中央区日本橋馬喰町1-12-4
- 最寄り駅
- 馬喰町駅徒歩1分、東日本橋駅徒歩5分、馬喰横山駅徒歩5分
- 竣工
- 1972年
- 規模
- 地上5階
- 耐震基準
- 新耐震基準適合
- セキュリティ
- 機械警備(24時間監視)
- 駐車場設備
- 無
早川ビル の募集区画 (総募集面積 23.26坪)
※月額費用、坪単価 ともに共益費込・税別の価格です
茄子倉ビル(中央区、日本橋馬喰町、馬喰町、馬喰横山)
- 所在地
- 東京都中央区日本橋馬喰町1-9-8
- 最寄り駅
- 馬喰町駅徒歩1分、馬喰横山駅徒歩3分、東日本橋駅徒歩6分
- 竣工
- 1989年
- 規模
- 地上7階
- 耐震基準
- 新耐震基準適合
- 駐車場設備
- 要確認
茄子倉ビル の募集区画 (総募集面積 17.79坪)
※月額費用、坪単価 ともに共益費込・税別の価格です
リレント日本橋(中央区、日本橋馬喰町、馬喰町、東日本橋)
- 所在地
- 東京都中央区日本橋馬喰町1-13-8
- 最寄り駅
- 馬喰町駅徒歩3分、東日本橋駅徒歩4分、馬喰横山駅徒歩4分
- 竣工
- 1993年
- 規模
- 地上11階・地下1階
- 耐震基準
- 新耐震基準適合
- 駐車場設備
- 要確認
リレント日本橋 の募集区画 (総募集面積 15.45坪)
※月額費用、坪単価 ともに共益費込・税別の価格です
FMビル(中央区、日本橋馬喰町、馬喰町、馬喰横山)
- 所在地
- 東京都中央区日本橋馬喰町1-13-12
- 最寄り駅
- 馬喰町駅徒歩1分、馬喰横山駅徒歩2分、東日本橋駅徒歩5分
- 竣工
- 1974年
- 規模
- 地上7階・地下1階
- 駐車場設備
- 無
- 設備
- 土日祝エントランス開放
FMビル の募集区画 (総募集面積 30.05坪)
※月額費用、坪単価 ともに共益費込・税別の価格です
CIRCLES日本橋馬喰町(中央区、日本橋馬喰町、馬喰町、馬喰横山)
- 所在地
- 東京都中央区日本橋馬喰町1-5-12
- 最寄り駅
- 馬喰町駅徒歩1分、馬喰横山駅徒歩2分、東日本橋駅徒歩2分
- 竣工
- 2019年
- 規模
- 地上11階
- 耐震基準
- 新耐震基準適合
- セキュリティ
- 機械警備(24時間監視)
- 駐車場設備
- 有(平置き2台・荷捌き用含む)
- 設備
- 貸会議室、 屋上テラス(ルーフトップテラス)
CIRCLES日本橋馬喰町 の募集区画 (総募集面積 58.16坪)
※月額費用、坪単価 ともに共益費込・税別の価格です
Imas Works Bakurocho(中央区、日本橋馬喰町、馬喰町、馬喰横山)
- 所在地
- 東京都中央区日本橋馬喰町1-6-8
- 最寄り駅
- 馬喰町駅徒歩1分、馬喰横山駅徒歩3分、東日本橋駅徒歩3分
- 竣工
- 2002年
- 規模
- 地上8階・地下1階
- 耐震基準
- 新耐震基準適合
- セキュリティ
- 機械警備(24時間監視)
- 駐車場設備
- 無
Imas Works Bakurocho の募集区画 (総募集面積 44.31坪)
※月額費用、坪単価 ともに共益費込・税別の価格です
Daiwa日本橋馬喰町Ⅱ(旧 S-GATE FIT日本橋馬喰町)(中央区、日本橋馬喰町、馬喰町、東日本橋)
- 所在地
- 東京都中央区日本橋馬喰町1-11-10
- 最寄り駅
- 馬喰町駅徒歩1分、東日本橋駅徒歩4分、浅草橋駅徒歩5分
- 竣工
- 2023年
- 規模
- 地上11階
- 耐震基準
- 新耐震基準適合
- セキュリティ
- 機械警備(24時間監視)
- 駐車場設備
- 有(機械式13台)
- 設備
- 非接触ICカード、 屋上テラス(ルーフトップテラス)、 喫煙室、 トイレ男女別
Daiwa日本橋馬喰町Ⅱ(旧 S-GATE FIT日本橋馬喰町) の募集区画 (総募集面積 226.24坪)
| 図面 | 階数 | 坪数 | 月額費用 | 坪単価 | 入居可能日 | |
|---|---|---|---|---|---|---|
![]() | 10階 | 113.12坪 | お問い合わせください | 2026/8/1 | 検討リスト お問い合わせ | |
![]() | 11階 | 113.12坪 | お問い合わせください | 2026/8/1 | 検討リスト お問い合わせ |
※月額費用、坪単価 ともに共益費込・税別の価格です
THE CORNER 日本橋 east(中央区、日本橋馬喰町、馬喰町、馬喰横山)
- 所在地
- 東京都中央区日本橋馬喰町1-9-1
- 最寄り駅
- 馬喰町駅徒歩1分、馬喰横山駅徒歩4分、浅草橋駅徒歩7分
- 竣工
- 1991年
- 規模
- 地上7階・地下2階
- 耐震基準
- 新耐震基準適合
- セキュリティ
- 機械警備(24時間監視)
- 駐車場設備
- 無
THE CORNER 日本橋 east の募集区画 (総募集面積 25.79坪)
※月額費用、坪単価 ともに共益費込・税別の価格です
高田パッケージビル(中央区、日本橋馬喰町、馬喰町、浅草橋)
- 所在地
- 東京都中央区日本橋馬喰町2-6-11
- 最寄り駅
- 馬喰町駅徒歩5分、浅草橋駅徒歩3分、馬喰横山駅徒歩7分
- 竣工
- 2012年
- 規模
- 地上8階
- 耐震基準
- 新耐震基準適合
- セキュリティ
- 機械警備(24時間監視)
- 駐車場設備
- 有
高田パッケージビル の募集区画 (総募集面積 42.72坪)
※月額費用、坪単価 ともに共益費込・税別の価格です
カズキビル(中央区、日本橋浜町、浜町、東日本橋)
- 所在地
- 東京都中央区日本橋浜町2-36-8
- 最寄り駅
- 浜町駅徒歩1分、東日本橋駅徒歩6分、馬喰横山駅徒歩7分
- 竣工
- 1980年
- 規模
- 地上6階
- セキュリティ
- 機械警備(24時間監視)
- 駐車場設備
- 有
カズキビル の募集区画 (総募集面積 48.12坪)
※月額費用、坪単価 ともに共益費込・税別の価格です
ハイパーク日本橋(中央区、日本橋浜町、浜町、人形町)
- 所在地
- 東京都中央区日本橋浜町2-45-4
- 最寄り駅
- 浜町駅徒歩1分、人形町駅徒歩6分、東日本橋駅徒歩10分
- 竣工
- 1990年
- 規模
- 地上7階
- 耐震基準
- 新耐震基準適合
- セキュリティ
- 機械警備(24時間監視)
- 駐車場設備
- 有
ハイパーク日本橋 の募集区画 (総募集面積 21.53坪)
※月額費用、坪単価 ともに共益費込・税別の価格です
プラザANSビル(中央区、日本橋浜町、浜町、東日本橋)
- 所在地
- 東京都中央区日本橋浜町1-1-12
- 最寄り駅
- 浜町駅徒歩4分、東日本橋駅徒歩7分、人形町駅徒歩9分
- 竣工
- 1987年
- 規模
- 地上8階
- 耐震基準
- 新耐震基準適合
- セキュリティ
- 機械警備(24時間監視)
- 駐車場設備
- 有
- 設備
- トイレ男女別
プラザANSビル の募集区画 (総募集面積 28.98坪)
※月額費用、坪単価 ともに共益費込・税別の価格です
MUTOH浜町ビル(中央区、日本橋浜町、浜町、人形町)
- 所在地
- 東京都中央区日本橋浜町2-13-6
- 最寄り駅
- 浜町駅徒歩3分、人形町駅徒歩6分、東日本橋駅徒歩6分
- 竣工
- 1988年
- 規模
- 地上8階・地下1階
- 耐震基準
- 新耐震基準適合
- セキュリティ
- 機械警備(24時間監視)
- 駐車場設備
- 有(機械式)
- 設備
- トイレ男女別
MUTOH浜町ビル の募集区画 (総募集面積 99.85坪)
※月額費用、坪単価 ともに共益費込・税別の価格です
ACE日本橋ビル(中央区、日本橋久松町、馬喰横山、東日本橋)
- 所在地
- 東京都中央区日本橋久松町13-5
- 最寄り駅
- 馬喰横山駅徒歩1分、東日本橋駅徒歩2分、馬喰町駅徒歩5分
- 竣工
- 1964年
- 規模
- 地上9階・地下1階
- セキュリティ
- 共用部警備なし(簡易管理)
- 駐車場設備
- 要確認
ACE日本橋ビル の募集区画 (総募集面積 17.00坪)
※月額費用、坪単価 ともに共益費込・税別の価格です
シティープライム日本橋(中央区、日本橋久松町、東日本橋、馬喰横山)
- 所在地
- 東京都中央区日本橋久松町11-8
- 最寄り駅
- 東日本橋駅徒歩4分、馬喰横山駅徒歩4分、人形町駅徒歩6分
- 竣工
- 1988年
- 規模
- 地上8階
- 耐震基準
- 新耐震基準適合
- 駐車場設備
- 要確認
シティープライム日本橋 の募集区画 (総募集面積 13.26坪)
※月額費用、坪単価 ともに共益費込・税別の価格です
久松町ロータリービル(中央区、日本橋久松町、東日本橋、馬喰横山)
- 所在地
- 東京都中央区日本橋久松町4-7
- 最寄り駅
- 東日本橋駅徒歩2分、馬喰横山駅徒歩2分、馬喰町駅徒歩5分
- 竣工
- 1987年
- 規模
- 地上8階
- 耐震基準
- 新耐震基準適合
- 駐車場設備
- 要確認
久松町ロータリービル の募集区画 (総募集面積 14.47坪)
※月額費用、坪単価 ともに共益費込・税別の価格です
Biz Feel 東日本橋(中央区、日本橋久松町、浜町、馬喰町)
- 所在地
- 東京都中央区日本橋久松町9-8
- 最寄り駅
- 浜町駅徒歩4分、馬喰町駅徒歩8分、東日本橋駅徒歩4分
- 竣工
- 1991年
- 規模
- 地上9階
- 耐震基準
- 新耐震基準適合
- セキュリティ
- 機械警備(24時間監視)
- 駐車場設備
- 無
- 設備
- リニューアル済み、 トイレ男女別
Biz Feel 東日本橋 の募集区画 (総募集面積 23.48坪)
※月額費用、坪単価 ともに共益費込・税別の価格です
THE CROSS 日本橋人形町(中央区、日本橋久松町、東日本橋、馬喰横山)
- 所在地
- 東京都中央区日本橋久松町10-6
- 最寄り駅
- 東日本橋駅徒歩3分、馬喰横山駅徒歩3分、浜町駅徒歩4分
- 竣工
- 1988年
- 規模
- 地上9階
- 耐震基準
- 新耐震基準適合
- セキュリティ
- 機械警備(24時間監視)
- 駐車場設備
- 無
- 設備
- 24時間(要ICカード)、 リニューアル済み、 トイレ男女別
THE CROSS 日本橋人形町 の募集区画 (総募集面積 182.85坪)
| 図面 | 階数 | 坪数 | 月額費用 | 坪単価 | 入居可能日 | |
|---|---|---|---|---|---|---|
![]() | 3階 | 60.95坪 | 1,340,900円 | 22,000円 | 2026/6/中 | 検討リスト お問い合わせ |
![]() | 5階 | 60.95坪 | 1,401,850円 | 23,000円 | 2026/6/上 | 検討リスト お問い合わせ |
![]() | 8階 | 60.95坪 | 1,310,425円 | 21,500円 | 2026/6/中 | 検討リスト お問い合わせ |
※月額費用、坪単価 ともに共益費込・税別の価格です
日本橋人形町スクエア(中央区、日本橋堀留町、小伝馬町、人形町)
- 所在地
- 東京都中央区日本橋堀留町1-8-11
- 最寄り駅
- 小伝馬町駅徒歩6分、人形町駅徒歩3分、馬喰横山駅徒歩6分
- 竣工
- 1985年
- 規模
- 地上9階
- 耐震基準
- 新耐震基準適合
- セキュリティ
- 機械警備(24時間監視)
- 駐車場設備
- 無
- 設備
- オフィス専用ゾーン制御、 屋上テラス(ルーフトップテラス)、 リニューアル済み、 トイレ男女別
日本橋人形町スクエア の募集区画 (総募集面積 61.34坪)
※月額費用、坪単価 ともに共益費込・税別の価格です
人形町PREX(中央区、日本橋堀留町、人形町、小伝馬町)
- 所在地
- 東京都中央区日本橋堀留町1-9-8
- 最寄り駅
- 人形町駅徒歩4分、小伝馬町駅徒歩5分、馬喰横山駅徒歩7分
- 竣工
- 2021年
- 規模
- 地上10階
- 耐震基準
- 新耐震基準適合
- セキュリティ
- 機械警備(24時間監視)
- 駐車場設備
- 有(平面駐車場17台 (内、賃貸用15台/機械式、身障者用1台/機械式兼用、荷捌用1台/平面))
人形町PREX の募集区画 (総募集面積 158.06坪)
※月額費用、坪単価 ともに共益費込・税別の価格です
STYビル(中央区、日本橋横山町、馬喰横山、馬喰町)
- 所在地
- 東京都中央区日本橋横山町3-12
- 最寄り駅
- 馬喰横山駅徒歩1分、馬喰町駅徒歩3分、東日本橋駅徒歩4分
- 竣工
- 1988年
- 規模
- 地上8階
- 耐震基準
- 新耐震基準適合
- セキュリティ
- 機械警備(24時間監視)
- 駐車場設備
- 無
- 設備
- トイレ男女別
STYビル の募集区画 (総募集面積 49.44坪)
| 図面 | 階数 | 坪数 | 月額費用 | 坪単価 | 入居可能日 | |
|---|---|---|---|---|---|---|
![]() | 1階 | 30.91坪 | 510,015円 | 16,500円 | 2026/6/1 | 検討リスト お問い合わせ |
![]() | 4階 | 18.53坪 | 277,950円 | 15,000円 | 即時 | 検討リスト お問い合わせ |
※月額費用、坪単価 ともに共益費込・税別の価格です
日工薬会館(中央区、日本橋横山町、馬喰横山、馬喰町)
- 所在地
- 東京都中央区日本橋横山町3-13
- 最寄り駅
- 馬喰横山駅徒歩1分、馬喰町駅徒歩2分、東日本橋駅徒歩4分
- 竣工
- 1965年
- 規模
- 地上6階
- セキュリティ
- 機械警備(24時間監視)
- 駐車場設備
- 無
- 設備
- トイレ男女別
日工薬会館 の募集区画 (総募集面積 80.01坪)
※月額費用、坪単価 ともに共益費込・税別の価格です
丹波屋ビル(中央区、日本橋横山町、馬喰横山、馬喰町)
- 所在地
- 東京都中央区日本橋横山町7-17
- 最寄り駅
- 馬喰横山駅徒歩3分、馬喰町駅徒歩2分、東日本橋駅徒歩4分
- 竣工
- 1979年
- 規模
- 地上7階・地下1階
- 駐車場設備
- 要確認
- 設備
- トイレ男女別
丹波屋ビル の募集区画 (総募集面積 61.38坪)
※月額費用、坪単価 ともに共益費込・税別の価格です
プライム東日本橋一丁目ビル(中央区、東日本橋、馬喰横山、馬喰町)
- 所在地
- 東京都中央区東日本橋1-1-4
- 最寄り駅
- 東日本橋駅徒歩2分、馬喰横山駅徒歩2分、馬喰町駅徒歩2分
- 竣工
- 1987年
- 規模
- 地上9階・地下1階
- 耐震基準
- 新耐震基準適合
- セキュリティ
- 機械警備(24時間監視)
- 駐車場設備
- 有
- 設備
- トイレ男女別
プライム東日本橋一丁目ビル の募集区画 (総募集面積 141.13坪)
※月額費用、坪単価 ともに共益費込・税別の価格です
STR東日本橋(中央区、東日本橋)
- 所在地
- 東京都中央区東日本橋2-1-15
- 最寄り駅
- 東日本橋駅徒歩1分
- 竣工
- 1973年
- 規模
- 地上5階
- 駐車場設備
- 要確認
STR東日本橋 の募集区画 (総募集面積 12.50坪)
※月額費用、坪単価 ともに共益費込・税別の価格です
GLOWTHIA東日本橋 (旧 サンブライト東日本橋)(中央区、東日本橋、馬喰横山、馬喰町)
- 所在地
- 東京都中央区東日本橋2-2-10
- 最寄り駅
- 東日本橋駅徒歩1分、馬喰横山駅徒歩3分、馬喰町駅徒歩4分
- 竣工
- 1989年
- 規模
- 地上6階・地下1階
- 耐震基準
- 新耐震基準適合
- セキュリティ
- 機械警備(24時間監視)
- 駐車場設備
- 無
- 設備
- トイレ男女別
GLOWTHIA東日本橋 (旧 サンブライト東日本橋) の募集区画 (総募集面積 22.81坪)
※月額費用、坪単価 ともに共益費込・税別の価格です
第5高野ビル(中央区、東日本橋、馬喰町、馬喰横山)
- 所在地
- 東京都中央区東日本橋3-12-12
- 最寄り駅
- 東日本橋駅徒歩1分、馬喰町駅徒歩3分、馬喰横山駅徒歩3分
- 竣工
- 1986年
- 規模
- 地上9階
- 耐震基準
- 新耐震基準適合
- セキュリティ
- 機械警備(24時間監視)
- 駐車場設備
- 無
- 設備
- 24時間(要ICカード)
第5高野ビル の募集区画 (総募集面積 22.33坪)
※月額費用、坪単価 ともに共益費込・税別の価格です
さつきビル(中央区、東日本橋、馬喰横山、馬喰町)
- 所在地
- 東京都中央区東日本橋3-6-6
- 最寄り駅
- 馬喰横山駅徒歩2分、東日本橋駅徒歩3分、馬喰町駅徒歩4分
- 竣工
- 1986年
- 規模
- 地上5階
- 耐震基準
- 新耐震基準適合
- 駐車場設備
- 無
さつきビル の募集区画 (総募集面積 16.60坪)
※月額費用、坪単価 ともに共益費込・税別の価格です
MYS東日本橋(中央区、東日本橋、馬喰町、浅草橋)
- 所在地
- 東京都中央区東日本橋2-23-3
- 最寄り駅
- 馬喰町駅徒歩5分、東日本橋駅徒歩3分、浅草橋駅徒歩6分
- 竣工
- 1991年
- 規模
- 地上7階
- 耐震基準
- 新耐震基準適合
- セキュリティ
- 共用部警備なし(簡易管理)
- 駐車場設備
- 無
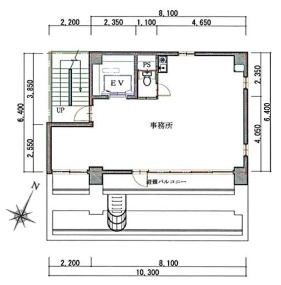
まず、馬喰町・東日本橋・浅草橋の3駅が徒歩3分圏内という立地は、営業活動の機動力を高めるだけでなく、従業員の通勤ストレスを軽減し、採用競争力の向上に寄与します。 建物は1991年竣工の新耐震基準適合物件で、企業の安全配慮義務を満たします。特筆すべきは貸室形状で、正方形に近い整形空間はレイアウトのロスが少なく、坪単価以上の収容効率を発揮します。
華美な設備よりも「使い勝手」と「立地」を重視し、ランニングコストを最適化したい企業にとって、経営戦略上、非常に合理的な選択肢となる物件です。
MYS東日本橋 の募集区画 (総募集面積 32.05坪)
※月額費用、坪単価 ともに共益費込・税別の価格です
山一織物ビル(中央区、東日本橋、馬喰横山、馬喰町)
- 所在地
- 東京都中央区東日本橋3-6-17
- 最寄り駅
- 馬喰横山駅徒歩2分、東日本橋駅徒歩2分、馬喰町駅徒歩5分
- 竣工
- 1987年
- 規模
- 地上7階
- 耐震基準
- 新耐震基準適合
- セキュリティ
- 機械警備(24時間監視)
- 駐車場設備
- 要確認
山一織物ビル の募集区画 (総募集面積 46.83坪)
※月額費用、坪単価 ともに共益費込・税別の価格です
VORT東日本橋(中央区、東日本橋、馬喰町、馬喰横山)
- 所在地
- 東京都中央区東日本橋2-15-5
- 最寄り駅
- 東日本橋駅徒歩3分、馬喰町駅徒歩4分、馬喰横山駅徒歩5分
- 竣工
- 1984年
- 規模
- 地上8階
- 耐震基準
- 新耐震基準適合
- セキュリティ
- 機械警備(24時間監視)
- 駐車場設備
- 無
- 設備
- リニューアル済み
VORT東日本橋 の募集区画 (総募集面積 93.13坪)
※月額費用、坪単価 ともに共益費込・税別の価格です
石田ビル(中央区、東日本橋、馬喰横山)
- 所在地
- 東京都中央区東日本橋3-3-14
- 最寄り駅
- 馬喰横山駅徒歩2分
- 竣工
- 1991年
- 規模
- 地上4階・地下1階
- 耐震基準
- 新耐震基準適合
- 駐車場設備
- 要確認
石田ビル の募集区画 (総募集面積 14.39坪)
※月額費用、坪単価 ともに共益費込・税別の価格です
【エリアのオフィス市況】
馬喰町エリアは、かつての繊維問屋街の堅牢なビル構造を活かした「リノベーションオフィス」のメッカとして、クリエイティブ業界から絶大な支持を得ています。高い天井や広い間口を持つ物件が多く、アパレル、デザイン事務所、ITベンチャーなどがこぞって拠点を構えています。周辺の東日本橋や小伝馬町を含め、感度の高いギャラリーやカフェが点在する独自のコミュニティが形成されており、クリエイティビティを重視する企業にとって刺激的な環境です。
【交通アクセスと採用メリット】
3駅3路線が利用可能で、東京・品川・新宿・東銀座・羽田空港・成田空港のすべてにダイレクトにアクセスできる利便性は驚異的です。この圧倒的な機動力に加え、近年は「住みたくなる街」としても人気が高まっており、感度の高い若手クリエイターやエンジニアの採用において、馬喰町というエリア選択は非常に強力なフックとなります。













































































































































































































































































































































































































































































































