川崎市幸区の賃貸オフィス・貸事務所情報
川崎市幸区エリアは、川崎市の南東部に位置し、面積は約10.01km²と市内で最も小さい区です。人口密度は高く、多摩川や鶴見川、矢上川に挟まれた比較的平坦な地形が特徴です。交通アクセスはJR南武線の「尻手駅」や「矢向駅」が利用可能で、川崎駅からもアクセスが良好です。エリア内には「夢見ヶ崎公園」や「加瀬山」などの自然豊かなスポットがあり、近年は工場跡地に大規模な集合住宅が建設され、新たな都市開発が進んでいます。
検索結果 45 件
並び替え
ミューザ川崎セントラルタワー(川崎市幸区大宮町・京急川崎)
- 所在地
- 神奈川県川崎市幸区大宮町1310
- 最寄り駅
- 川崎駅徒歩1分、京急川崎駅徒歩1分
- 竣工
- 2003年
- 規模
- 地上27階・地下2階
- 耐震基準
- 新耐震基準適合・制震構造
- セキュリティ
- 機械警備・有人管理(24時間体制)
- 駐車場設備
- 有
- 設備
- 防災センター、 セキュリティゲート(フラッパーゲート)、 トイレ男女別
ミューザ川崎セントラルタワーは、JR川崎駅西口からペデストリアンデッキで直結徒歩1分、川崎エリアを代表する地上27階建てのランドマークビルです。最新鋭の設備を備えたインテリジェンスビルとして、基準階面積は約600坪の広大な空間を提供。天井高2,700mmの開放的な室内は、柱の少ない設計により自由度の高いレイアウトが可能です。環境性能でも「CASBEE」最高ランクのSランクを取得しており、企業の社会的信頼性を高めます。セキュリティ面では、ロビーへの入退館ゲート設置やカードリーダーによる徹底した管理に加え、24時間稼働の防災センターが安全を監視。地震や風揺れに強い制震構造を採用しており、BCP対策も万全です。利便性・安全性・快適性のすべてを極めた、地域最高峰のビジネス拠点です。
ミューザ川崎セントラルタワー の募集区画 (総募集面積 720.52坪)
| 図面 | 階数 | 坪数 | 月額費用 | 坪単価 | 入居可能日 | |
|---|---|---|---|---|---|---|
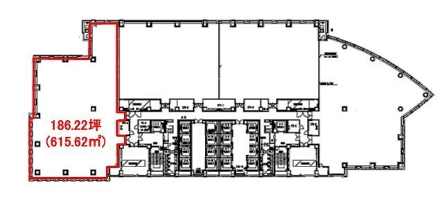
![]() | 12階 | 186.22坪 | 賃料を確認する (無料・1分) | 2026/8/1 | 検討リスト お問い合わせ | |
![]() | 24階 | 174.04坪 | 賃料を確認する (無料・1分) | 即時 | 検討リスト お問い合わせ | |
![]() | 26階 | 174.04坪 | 賃料を確認する (無料・1分) | 即時 | 検討リスト お問い合わせ | |
![]() | 23階 | 186.22坪 | 賃料を確認する (無料・1分) | 2026/8/1 | 検討リスト お問い合わせ |
※月額費用、坪単価 ともに共益費込・税別の価格です
新川崎ツインタワー(川崎市幸区鹿島田・新川崎)
- 所在地
- 神奈川県川崎市幸区鹿島田1-1-2
- 最寄り駅
- 鹿島田駅徒歩3分、新川崎駅徒歩3分
- 竣工
- 1989年
- 規模
- 地上31階・地下2階
- 耐震基準
- 新耐震基準適合
- セキュリティ
- 機械警備・有人管理(24時間体制)
- 駐車場設備
- 有(最大191台・24時間利用可)
- 設備
- 貸会議室、 リフレッシュコーナー、 喫煙室、 トイレ男女別
新川崎ツインタワーは、JR「新川崎駅」と「鹿島田駅」の両駅から徒歩3分、ペデストリアンデッキで直結する地上31階建ての超高層ランドマークタワーです。1989年竣工の「パークシティ新川崎」を象徴するこのビルは、八角形の独特なフォルムにより、全方位からの優れた採光と眺望を確保しています。最大の特徴は、一般的なオフィス機能に加え、研究開発拠点としてのニーズに応える「ラボ対応区画」を設けている点です。給排水の引き込み相談が可能な区画もあり、新川崎エリアに集積するR&D施設とのシナジーを期待する企業様に最適。ビル内には広大なアトリウム、リフレッシュラウンジ、貸会議室、自走式駐車場を完備し、さらに有人警備による24時間体制の安心がビジネスを支えます。品川・東京・横浜へダイレクトにアクセスできる機動力と、先進的な研究環境を両立した、川崎エリアを代表するハイグレード物件です。
新川崎ツインタワー の募集区画 (総募集面積 1,948.19坪)
| 図面 | 階数 | 坪数 | 月額費用 | 坪単価 | 入居可能日 | |
|---|---|---|---|---|---|---|
![]() | 21階 | 190.77坪 | 賃料を確認する (無料・1分) | 即時 | 検討リスト お問い合わせ | |
![]() | 19階 | 190.77坪 | 賃料を確認する (無料・1分) | 即時 | 検討リスト お問い合わせ | |
![]() | 19階 | 190.77坪 | 賃料を確認する (無料・1分) | 即時 | 検討リスト お問い合わせ | |
![]() | 2階 | 137.25坪 | 賃料を確認する (無料・1分) | 即時 | 検討リスト お問い合わせ | |
![]() | 14階 | 190.77坪 | 賃料を確認する (無料・1分) | 即時 | 検討リスト お問い合わせ | |
![]() | 14階 | 190.77坪 | 賃料を確認する (無料・1分) | 即時 | 検討リスト お問い合わせ | |
![]() | 15階 | 190.77坪 | 賃料を確認する (無料・1分) | 即時 | 検討リスト お問い合わせ | |
![]() | 11階 | 190.77坪 | 賃料を確認する (無料・1分) | 即時 | 検討リスト お問い合わせ | |
![]() | 11階 | 190.77坪 | 賃料を確認する (無料・1分) | 即時 | 検討リスト お問い合わせ | |
![]() | 23階 | 94.01坪 | 賃料を確認する (無料・1分) | 即時 | 検討リスト お問い合わせ | |
![]() | 10階 | 190.77坪 | 賃料を確認する (無料・1分) | 2026/10/1 | 検討リスト お問い合わせ |
※月額費用、坪単価 ともに共益費込・税別の価格です
川崎テックセンター(川崎市幸区堀川町・京急川崎)
- 所在地
- 神奈川県川崎市幸区堀川町580-16
- 最寄り駅
- 京急川崎駅徒歩7分、川崎駅徒歩8分
- 竣工
- 1988年
- 規模
- 地上20階・地下3階
- 耐震基準
- 新耐震基準適合
- セキュリティ
- 機械警備・有人管理(24時間体制)
- 駐車場設備
- 有(平置き137台)
- 設備
- 24時間(要ICカード)、 非常用発電機、 貸会議室、 喫煙室
川崎テックセンターは、JR川崎駅西口エリアの広大な敷地にそびえ立つ、地上20階建てのインテリジェントビルです。「テックセンター」の名の通り、ITや研究開発、BCPを重視する企業に特化したスペックが最大の特徴。2基の非常用発電機を備え、貸室内への電力供給が可能なほか、3階から13階にはCPU区画(レンタルラボ対応相談)を設け、高度な機材・サーバー運用にも対応します。基準階は約360坪のワイドスパンな空間で、高層階からはパノラマビューが広がります。館内にはテナント様が無料で利用できる貸会議室やコンビニを完備し、さらに徒歩1分の郵便局、徒歩5分のラゾーナ川崎プラザなど周辺環境も完璧。24時間有人警備とICカードによる厳重なセキュリティ、そして135台収容の自走式駐車場を兼ね備えた、川崎エリアで比類なき機動力と安心感を提供するプレミアムなUSPを持つ拠点です。
川崎テックセンター の募集区画 (総募集面積 620.41坪)
| 図面 | 階数 | 坪数 | 月額費用 | 坪単価 | 入居可能日 | |
|---|---|---|---|---|---|---|
![]() | 4階 | 174.84坪 | 賃料を確認する (無料・1分) | 即時 | 検討リスト お問い合わせ | |
![]() | 13階 | 79.98坪 | 賃料を確認する (無料・1分) | 即時 | 検討リスト お問い合わせ | |
![]() | 20階 | 185.45坪 | 賃料を確認する (無料・1分) | 即時 | 検討リスト お問い合わせ | |
![]() | 9階 | 180.14坪 | 賃料を確認する (無料・1分) | 2026/7/1 | 検討リスト お問い合わせ |
※月額費用、坪単価 ともに共益費込・税別の価格です
ソリッドスクエア西館(川崎市幸区堀川町・京急川崎・尻手)
- 所在地
- 神奈川県川崎市幸区堀川町580
- 最寄り駅
- 京急川崎駅徒歩5分、川崎駅徒歩7分、尻手駅徒歩22分
- 竣工
- 1995年
- 規模
- 地上24階・地下2階
- 耐震基準
- 新耐震基準適合・制震構造
- セキュリティ
- 機械警備・有人管理(24時間体制)
- 駐車場設備
- 有(地下2階・325台(平面118台、機械式196台、二段式40台))
- 設備
- 貸会議室、 防災センター、 非接触ICカード、 非常用発電機、 トイレ男女別、 複合施設
ソリッドスクエア西館は、川崎エリアのビジネスを牽引する地上24階建ての超高層ツインタワーの一翼を担う特Aクラスオフィスです。京急川崎駅から徒歩5分という好立地に加え、1フロア約328坪の広大なプレートは3.2mモジュールを採用した整形無柱空間で、効率的なレイアウトを可能にします。ビル内にはパスポートセンターや郵便局、多彩な飲食店が揃い、業務の合間の用事も施設内で完結する圧倒的な利便性が魅力です。制震構造の採用や24時間有人警備、特高3回線受電といった盤石なインフラが、企業の信頼性と従業員の安全を高い次元で支える、まさに地域を代表するフラッグシップ拠点といえます。
ソリッドスクエア西館 の募集区画 (総募集面積 1,052.94坪)
| 図面 | 階数 | 坪数 | 月額費用 | 坪単価 | 入居可能日 | |
|---|---|---|---|---|---|---|
![]() | 3階 | 23.80坪 | 賃料を確認する (無料・1分) | 2026/6/11 | 検討リスト お問い合わせ | |
![]() | 5階 | 320.06坪 | 賃料を確認する (無料・1分) | 即時 | 検討リスト お問い合わせ | |
![]() | 16階 | 311.89坪 | 賃料を確認する (無料・1分) | 即時 | 検討リスト お問い合わせ | |
![]() | 16階 | 220.44坪 | 賃料を確認する (無料・1分) | 即時 | 検討リスト お問い合わせ | |
![]() | 18階 | 176.75坪 | 賃料を確認する (無料・1分) | 即時 | 検討リスト お問い合わせ |
※月額費用、坪単価 ともに共益費込・税別の価格です
ソリッドスクエア東館(川崎市幸区堀川町・京急川崎・尻手)
- 所在地
- 神奈川県川崎市幸区堀川町580
- 最寄り駅
- 京急川崎駅徒歩3分、川崎駅徒歩5分、尻手駅徒歩22分
- 竣工
- 1995年
- 規模
- 地上24階・地下2階
- 耐震基準
- 新耐震基準適合
- セキュリティ
- 機械警備・有人管理(24時間体制)
- 駐車場設備
- 有(合計354台(平面118台、機械式196台、二段式40台))
- 設備
- 貸会議室
ソリッドスクエアは、川崎エリアを代表する大型複合施設です。美しいアトリウム空間とツインタワーの外観は圧倒的な存在感を放ちます。基準階約640坪の広大なフロアは、企業の成長に合わせた柔軟なレイアウトが可能。館内にはコンビニ、カフェ、レストラン、クリニック、さらにパスポートセンターまで揃っており、一つの「街」のような利便性を提供します。羽田空港へのアクセスも良く、グローバルな活動拠点として自信を持っておすすめできる物件です。
ソリッドスクエア東館 の募集区画 (総募集面積 395.67坪)
| 図面 | 階数 | 坪数 | 月額費用 | 坪単価 | 入居可能日 | |
|---|---|---|---|---|---|---|
![]() | 10階 | 142.58坪 | 賃料を確認する (無料・1分) | 即時 | 検討リスト お問い合わせ | |
![]() | 2階 | 32.65坪 | 賃料を確認する (無料・1分) | 即時 | 検討リスト お問い合わせ | |
![]() | 15階 | 220.44坪 | 賃料を確認する (無料・1分) | 即時 | 検討リスト お問い合わせ |
※月額費用、坪単価 ともに共益費込・税別の価格です
興和川崎西口ビル(川崎市幸区堀川町・京急川崎)
- 所在地
- 神奈川県川崎市幸区堀川町66-2
- 最寄り駅
- 京急川崎駅徒歩6分、川崎駅徒歩7分
- 竣工
- 1988年
- 規模
- 地上21階・地下2階
- 耐震基準
- 新耐震基準適合
- セキュリティ
- 有人管理(警備員常駐)
- 駐車場設備
- 有(地下1階に平面自走式94台)
興和川崎西口ビルは、川崎エリアで「拡張性」と「グレード感」を両立させたい企業様に最適な大規模オフィスです。特筆すべきは、基準階約606坪(貸室面積約584坪)という圧倒的なフロアスケールです。柱のない完全な整形無柱空間を実現しており、数百名規模の執務エリアもワンフロアで見渡せるため、部署間の連携強化やコミュニケーション活性化に大きく寄与します。
1988年竣工ですが、2017年に共用部を中心とした大規模リニューアル、2021年には空調設備の改修工事を実施済みです。エントランスの美観や執務室の快適性は新築ビルと比較しても遜色なく、コストパフォーマンスに優れた選択肢と言えます。また、都心・横浜・羽田空港のトライアングル中心に位置する立地は、フットワークを重視する企業の事業成長を支える戦略的プラットフォームとして機能します。
1988年竣工ですが、2017年に共用部を中心とした大規模リニューアル、2021年には空調設備の改修工事を実施済みです。エントランスの美観や執務室の快適性は新築ビルと比較しても遜色なく、コストパフォーマンスに優れた選択肢と言えます。また、都心・横浜・羽田空港のトライアングル中心に位置する立地は、フットワークを重視する企業の事業成長を支える戦略的プラットフォームとして機能します。
興和川崎西口ビル の募集区画 (総募集面積 855.22坪)
| 図面 | 階数 | 坪数 | 月額費用 | 坪単価 | 入居可能日 | |
|---|---|---|---|---|---|---|
![]() | 9階 | 283.50坪 | 賃料を確認する (無料・1分) | 即時 | 検討リスト お問い合わせ | |
![]() | 8階 | 154.95坪 | 賃料を確認する (無料・1分) | 即時 | 検討リスト お問い合わせ | |
![]() | 3階 | 29.61坪 | 賃料を確認する (無料・1分) | 即時 | 検討リスト お問い合わせ | |
![]() | 3階 | 28.84坪 | 賃料を確認する (無料・1分) | 即時 | 検討リスト お問い合わせ | |
![]() | 3階 | 28.84坪 | 賃料を確認する (無料・1分) | 即時 | 検討リスト お問い合わせ | |
![]() | 3階 | 28.84坪 | 賃料を確認する (無料・1分) | 即時 | 検討リスト お問い合わせ | |
![]() | 3階 | 28.84坪 | 賃料を確認する (無料・1分) | 即時 | 検討リスト お問い合わせ | |
![]() | 3階 | 28.84坪 | 賃料を確認する (無料・1分) | 即時 | 検討リスト お問い合わせ | |
![]() | 3階 | 28.84坪 | 賃料を確認する (無料・1分) | 即時 | 検討リスト お問い合わせ | |
![]() | 3階 | 64.09坪 | 賃料を確認する (無料・1分) | 即時 | 検討リスト お問い合わせ | |
![]() | 3階 | 63.51坪 | 賃料を確認する (無料・1分) | 即時 | 検討リスト お問い合わせ | |
![]() | 3階 | 28.84坪 | 賃料を確認する (無料・1分) | 即時 | 検討リスト お問い合わせ | |
![]() | 3階 | 28.84坪 | 賃料を確認する (無料・1分) | 即時 | 検討リスト お問い合わせ | |
![]() | 3階 | 28.84坪 | 賃料を確認する (無料・1分) | 即時 | 検討リスト お問い合わせ |
※月額費用、坪単価 ともに共益費込・税別の価格です
ニチエーイン川崎25(川崎市幸区南幸町)
- 所在地
- 神奈川県川崎市幸区南幸町3-1-2
- 最寄り駅
- 川崎駅徒歩10分
- 竣工
- 1993年
- 規模
- 地上6階
- 耐震基準
- 新耐震基準適合
- 駐車場設備
- 要確認
JR「川崎駅」から徒歩10分、川崎市幸区南幸町の落ち着いたビジネスエリアに位置するオフィスビルです。1993年竣工の新耐震基準適合物件で、地上6階建ての堅牢なRC造。募集中の2階フロアは約49.14坪のゆとりある面積を確保しており、中規模の事務所や作業スペースとして最適です。敷金・礼金といった初期費用の設定もリーズナブルで、坪単価約1万円という高いコストパフォーマンスを実現。川崎駅周辺の利便性を享受しつつ、賢く機能的な拠点を構えたい企業様に最適な一台です。
ニチエーイン川崎25 の募集区画 (総募集面積 49.14坪)
※月額費用、坪単価 ともに共益費込・税別の価格です
SYLA KAWASAKI(川崎市幸区柳町・尻手)
編集中
- 所在地
- 神奈川県川崎市幸区柳町1-3
- 最寄り駅
- 川崎駅徒歩6分、尻手駅徒歩9分
- 竣工
- 2025年
- 規模
- 地上10階
- 耐震基準
- 新耐震基準適合
- セキュリティ
- 機械警備(24時間監視)
- 駐車場設備
- 無
JR「川崎駅」から徒歩6分、2025年12月に誕生したばかりの最新鋭オフィスビルです。地上10階建てのスタイリッシュな鉄骨造で、新耐震基準に適合。1階から3階は重飲食も相談可能な店舗フロア、4階以上はサービス店舗としての利用も検討可能な事務所フロアとなっており、多様なビジネスニーズに応えます。1フロア約23.7坪の空間は、新築ならではの清潔感と最新設備が魅力。室内には男女別トイレを完備し、24時間フレキシブルな稼働をサポートします。川崎駅西口側の発展著しい柳町エリアに位置し、尻手駅や京急川崎駅も徒歩圏内。新時代のワークスタイルを象徴する、視認性と利便性を兼ね備えたフラッグシップビルです。
SYLA KAWASAKI の募集区画 (総募集面積 71.13坪)
| 図面 | 階数 | 坪数 | 月額費用 | 坪単価 | 入居可能日 | |
|---|---|---|---|---|---|---|
![]() | 9階 | 23.71坪 | 409,091円 | 17,254円 | 即時 | 検討リスト お問い合わせ |
![]() | 6階 | 23.71坪 | 409,091円 | 17,254円 | 即時 | 検討リスト お問い合わせ |
![]() | 5階 | 23.71坪 | 409,091円 | 17,254円 | 即時 | 検討リスト お問い合わせ |
※月額費用、坪単価 ともに共益費込・税別の価格です

































































































