PMO田町Ⅳ 11階 99.39坪(港区、芝、三田、田町)
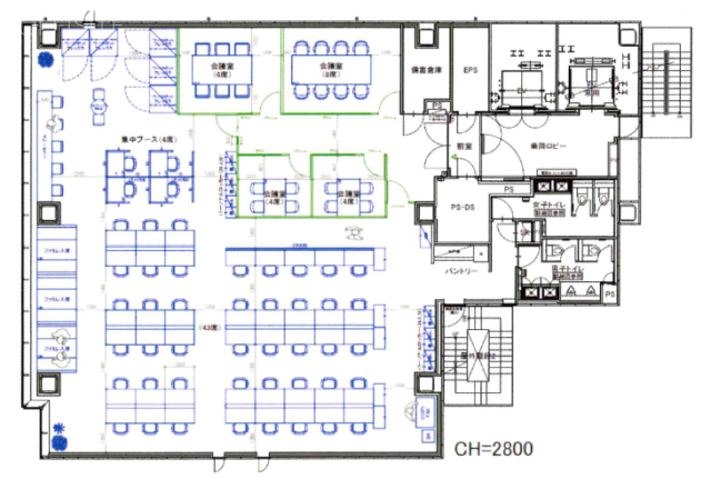
港区芝5丁目の進化を続けるアジアヘッドクォーター特区内に位置するPMO田町Ⅳは、三田駅徒歩4分、田町駅徒歩5分の利便性を誇る2022年竣工の賃貸オフィスです。全面ガラス張りのスタイリッシュな外観が企業の信頼性を高め、室内は天井高2,800mmの開放的な無柱空間を実現しています。5分割の個別空調や異系統2回線受電など、BCP対応も含む最新スペックを標準装備。内装済みのセットアップオフィス区画も用意されており、デザイン性と機能性を両立した空間が、グローバル化を推進する企業の新たなビジネスステージとして高いパフォーマンスを発揮します。
| 賃料 | - 最新の募集条件を問い合わせる |
|---|---|
| 所在地 | 東京都港区芝 |
| 入居可能日 | 応相談 |
| 最寄り駅 | 三田駅徒歩4分、田町駅徒歩5分 |
募集終了
| 種別(用途) | 事務所 |
|---|---|
| 階数 | 11階 |
| 部屋番号 | 11F |
| 面積 | 99.39坪 |
| 契約形態・期間 | 定期借家 3年 |
| 空調方式 | 要確認 |
| 床仕様 | OAフロア タイルカーペット |
| 天井高 | 要確認 |
| フロア特徴 | トイレ男女別 |
※月額費用、坪単価ともに税別の価格です
PMO田町Ⅳ 11階 は現在募集がありません。 (最終確認日: 2025年4月1日)
この物件の最新状況のご確認は、下記の問合せフォームをご利用ください。
この物件の最新状況のご確認は、下記の問合せフォームをご利用ください。
PMO田町Ⅳ の情報
- 所在地
- 東京都港区芝5-29-19
- 最寄り駅
- 三田駅徒歩4分、田町駅徒歩5分、芝公園駅徒歩11分
- 竣工
- 2022年
- 規模
- 地上11階
- 構造
- S造(鉄骨造・一部CFT構造)
- 耐震基準
- 高耐震構造(新耐震基準適合)
- セキュリティ
- 機械警備(24時間監視)
- エントランス
- 平日開放
- エレベーター総数
- 2基
- 駐車場設備
- 有(12台)
- 設備
- トイレ男女別
賃料相場
182件のデータ
PMO田町Ⅳ の募集区画 (総募集面積 298.17坪)
| 図面 | 階数 | 坪数 | 月額費用 | 坪単価 | 入居可能日 | |
|---|---|---|---|---|---|---|
![]() | 6階 | 99.39坪 | お問い合わせください | 即時 | 検討リスト お問い合わせ | |
![]() | 7階 | 99.39坪 | お問い合わせください | 即時 | 検討リスト お問い合わせ | |
![]() | 8階 | 99.39坪 | お問い合わせください | 2026/8/1 | 検討リスト お問い合わせ |
※月額費用、坪単価 ともに共益費込・税別の価格です
PMO田町Ⅳ の内装イメージ
PMO田町Ⅳの室内は、天井高2,800mmを誇る開放的な整形無柱空間となっており、スペースを隅々まで有効活用できる自由度の高さが特徴です。大型の窓面からは豊かな外光が差し込み、明るく健康的な執務環境を創出します。5分割の個別空調や自動調光LED照明などの最新設備に加え、一部フロアには高品質な内装を施したセットアップオフィスも用意されています。実際の働くシーンを想起させる使い心地の良い設計と、無柱空間によるスムーズな動線確保が、日々の業務効率の向上とワーカーの集中力維持を強力にサポートします。















PMO田町Ⅳ の募集終了区画
近くの物件紹介
港区のエリア
近くの駅
| 取扱態様 | 仲介 |
|---|---|
| 取扱会社 | 株式会社アドマイアー 東京都中央区日本橋3-2-3ユニバース第1ビル2F TEL. 03-5204-1031 宅地建物取引業免許 東京都知事(3)第94663号 マンション管理業免許 国土交通大臣(2)第034224号 賃貸住宅管理業免許 国土交通大臣(01)第005938号 |





























