いちご東五反田ビル B2階 45.66坪(品川区、東五反田、五反田)
いちご東五反田ビルは、1990年2月竣工、地上9階・地下2階建ての東五反田エリアを代表する大規模オフィスビルです。JR・私鉄各線が乗り入れる「五反田駅」から徒歩5分、視認性に優れたソニー通り沿いに位置します。設計・施工は大手ゼネコンの西松建設が手掛けており、延床面積約2,139坪を誇る堅牢かつ重厚な佇まいが魅力。基準階は約200坪超の広々とした無柱空間を実現しており、大規模なワンフロア利用やフレキシブルなレイアウトが可能です。いちごグループによる質の高い管理体制でセキュリティレベルの向上にも寄与。個別空調や充実したエレベーター基数、地下駐車場を完備し、品格と機能性を求める成長企業に最適なビジネス環境を提供します。
| 賃料 | - 最新の募集条件を問い合わせる |
|---|---|
| 所在地 | 東京都品川区東五反田 |
| 入居可能日 | 応相談 |
| 最寄り駅 | 五反田駅徒歩5分 |
募集終了
| 種別(用途) | 倉庫 |
|---|---|
| 階数 | B2階 |
| 部屋番号 | B2F |
| 面積 | 45.66坪 |
| 契約形態・期間 | 普通借家 |
| 空調方式 | 個別空調 |
| 床仕様 | OAフロア |
| 天井高 | 2,500mm |
| フロア特徴 | トイレ男女別、 基準階100坪以上の分割区画 |
※月額費用、坪単価ともに税別の価格です
いちご東五反田ビル B2階 は現在募集がありません。 (最終確認日: 2023年5月30日)
この物件の最新状況のご確認は、下記の問合せフォームをご利用ください。
この物件の最新状況のご確認は、下記の問合せフォームをご利用ください。
いちご東五反田ビル の情報
- 所在地
- 東京都品川区東五反田1-6-3
- 最寄り駅
- 五反田駅徒歩5分
- 竣工
- 1990年
- 規模
- 地上9階・地下2階
- 構造
- SRC造(鉄骨鉄筋コンクリート造)
- 耐震基準
- 新耐震基準適合
- セキュリティ
- 機械警備(24時間監視)
- エントランス
- 平日開放(月~金 8:00~18:30土・日祝 終日閉※暗証番号入力により24時間ビル使用可能)
- エレベーター総数
- 2基
- 駐車場設備
- 有
- 設備
- 省エネ・環境配慮、 24時間(要ICカード)、 トイレ男女別
賃料相場
168件のデータ
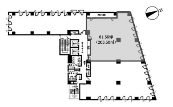
いちご東五反田ビル の募集区画 (総募集面積 61.55坪)
※月額費用、坪単価 ともに共益費込・税別の価格です
いちご東五反田ビル の内装イメージ
エントランスからエレベーターホールにかけて、大規模ビルに相応しい開放感と清潔感に溢れた空間が広がります。貸室内は基準階約200坪超の広大な無柱空間を確保。個別空調完備により、エリアごとの細やかな温度設定が可能です。窓面が多く採光性に優れており、明るく風通しの良い、ワーカーが最高のパフォーマンスを発揮できる執務環境が整っています。
いちご東五反田ビル の募集終了区画
| 図面 | 階数 | 坪数 | 月額費用 | 坪単価 | 入居可能日 | |
|---|---|---|---|---|---|---|
![]() | B2階 | 45.66坪 | お問い合わせください | 募集終了 | 検討リスト | |
![]() | B1階 | 25.17坪 | お問い合わせください | 募集終了 | 検討リスト | |
![]() | B1階 | 107.52坪 | お問い合わせください | 募集終了 | 検討リスト | |
![]() | 1階 | 72.49坪 | お問い合わせください | 募集終了 | 検討リスト | |
![]() | 2階 | 31.58坪 | お問い合わせください | 募集終了 | 検討リスト | |
![]() | 2階 | 99.30坪 | お問い合わせください | 募集終了 | 検討リスト | |
![]() | 2階 | 78.25坪 | お問い合わせください | 募集終了 | 検討リスト | |
![]() | 3階 | 46.66坪 | お問い合わせください | 募集終了 | 検討リスト | |
![]() | 3階 | 130.91坪 | お問い合わせください | 募集終了 | 検討リスト | |
![]() | 3階 | 69.35坪 | お問い合わせください | 募集終了 | 検討リスト | |
![]() | 4階 | 69.35坪 | お問い合わせください | 募集終了 | 検討リスト | |
![]() | 4階 | 177.57坪 | お問い合わせください | 募集終了 | 検討リスト | |
![]() | 5階 | 114.66坪 | お問い合わせください | 募集終了 | 検討リスト | |
![]() | 5階 | 114.66坪 | お問い合わせください | 募集終了 | 検討リスト | |
![]() | 5階 | 46.66坪 | お問い合わせください | 募集終了 | 検討リスト | |
![]() | 6階 | 161.32坪 | お問い合わせください | 募集終了 | 検討リスト | |
![]() | 7階 | 105.08坪 | お問い合わせください | 募集終了 | 検討リスト | |
![]() | 7階 | 51.08坪 | お問い合わせください | 募集終了 | 検討リスト | |
![]() | 8階 | 105.08坪 | お問い合わせください | 募集終了 | 検討リスト | |
![]() | 9階 | 26.65坪 | お問い合わせください | 募集終了 | 検討リスト | |
![]() | 9階 | 21.05坪 | お問い合わせください | 募集終了 | 検討リスト | |
![]() | 9階 | 30.17坪 | お問い合わせください | 募集終了 | 検討リスト | |
![]() | 9階 | 27.19坪 | お問い合わせください | 募集終了 | 検討リスト |
近くの物件紹介
品川区のエリア
近くの駅
| 取扱態様 | 仲介 |
|---|---|
| 取扱会社 | 株式会社アドマイアー 東京都中央区日本橋3-2-3ユニバース第1ビル2F TEL. 03-5204-1031 宅地建物取引業免許 東京都知事(3)第94663号 マンション管理業免許 国土交通大臣(2)第034224号 賃貸住宅管理業免許 国土交通大臣(01)第005938号 |





















































