SDI五反田ビル 8階 76.05坪(品川区、西五反田、大崎広小路、五反田)
募集終了
| 種別(用途) | 事務所 |
|---|---|
| 階数 | 8階 |
| 部屋番号 | 8F |
| 面積 | 76.05坪 |
| 契約形態・期間 | 普通借家 |
| 空調方式 | 個別空調 |
| 床仕様 | OAフロア タイルカーペット |
| 天井高 | 要確認 |
| フロア特徴 | トイレ男女別 |
※月額費用、坪単価ともに税別の価格です
SDI五反田ビル 8階 は現在募集がありません。 (最終確認日: 2023年6月27日)
この物件の最新状況のご確認は、下記の問合せフォームをご利用ください。
この物件の最新状況のご確認は、下記の問合せフォームをご利用ください。
SDI五反田ビル の情報
- 所在地
- 東京都品川区西五反田7-13-6
- 最寄り駅
- 大崎広小路駅徒歩5分、五反田駅徒歩7分、不動前駅徒歩10分
- 竣工
- 1990年
- 規模
- 地上10階
- 構造
- SRC造(鉄骨鉄筋コンクリート造)
- 耐震基準
- 新耐震基準適合
- セキュリティ
- 機械警備(24時間監視)
- エントランス
- 平日開放
- エレベーター総数
- 1基
- 駐車場設備
- 要確認
SDI五反田ビル の募集区画 (総募集面積 0.00坪)
現在募集はありません。
SDI五反田ビル の内装イメージ
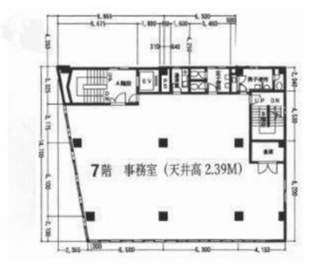
基準階は約80坪で、長方形に近いL字型レイアウト。OAフロア仕様で配線やIT機器の設置も容易、タイルカーペット敷きで快適な執務環境を実現します。エレベーター2基、個別空調、光ファイバー、男女別トイレを完備。機械警備システムによるセキュリティも万全で、24時間利用可能。ワンフロア・ワンテナント仕様のため、レイアウトの自由度が高く、企業の多様なニーズに柔軟に対応できる点が魅力です。







SDI五反田ビル の募集終了区画
近くの物件紹介
品川区のエリア
近くの駅
| 取扱態様 | 仲介 |
|---|---|
| 取扱会社 | 株式会社アドマイアー 東京都中央区日本橋3-2-3ユニバース第1ビル2F TEL. 03-5204-1031 宅地建物取引業免許 東京都知事(3)第94663号 マンション管理業免許 国土交通大臣(2)第034224号 賃貸住宅管理業免許 国土交通大臣(01)第005938号 |









































