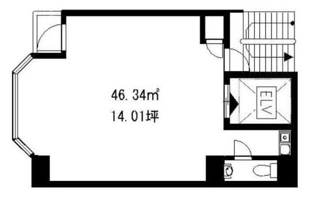
五反田YMビル 3階 14.01坪(品川区東五反田・大崎広小路・高輪台)
募集終了
| 種別(用途) | 事務所 |
|---|---|
| 階数 | 3階 |
| 部屋番号 | 3F |
| 面積 | 14.01坪 |
| 契約形態・期間 | 普通借家 2年 |
| 空調方式 | 要確認 |
| 床仕様 | 要確認 |
| 天井高 | 要確認 |
※月額費用、坪単価ともに税別の価格です
五反田YMビル 3階 は現在募集がありません。 (最終確認日: 2024年2月14日)
この物件の最新状況のご確認は、下記の問合せフォームをご利用ください。
この物件の最新状況のご確認は、下記の問合せフォームをご利用ください。
五反田YMビル の情報
- 所在地
- 東京都品川区東五反田5-24-8
- 最寄り駅
- 五反田駅徒歩3分、大崎広小路駅徒歩8分、高輪台駅徒歩17分
- 竣工
- 1992年
- 規模
- 地上8階
- 構造
- RC造(鉄筋コンクリート造)
- 耐震基準
- 新耐震基準適合
- エントランス
- 平日開放
- エレベーター総数
- 1基
- 駐車場設備
- 要確認
賃料相場
158件のデータ
五反田YMビル の募集区画 (総募集面積 0.00坪)
現在募集はありません。
五反田YMビル の内装イメージ

五反田YMビル の募集終了区画
近くの物件紹介
品川区のエリア
近くの駅
| 取扱態様 | 仲介 |
|---|---|
| 取扱会社 | 株式会社アドマイアー 東京都中央区日本橋3-2-3ユニバース第1ビル2F TEL. 03-5204-1031 宅地建物取引業免許 東京都知事(3)第94663号 マンション管理業免許 国土交通大臣(2)第034224号 賃貸住宅管理業免許 国土交通大臣(01)第005938号 |































