浅草橋ミハマビル本館 8階 107.17坪(台東区、浅草橋、蔵前)
| 賃料 | - 最新の募集条件を問い合わせる |
|---|---|
| 所在地 | 東京都台東区浅草橋 |
| 入居可能日 | - |
| 最寄り駅 | 蔵前駅徒歩4分、浅草橋駅徒歩5分 |
募集終了
| 種別(用途) | 事務所 |
|---|---|
| 階数 | 8階 |
| 部屋番号 | 8F |
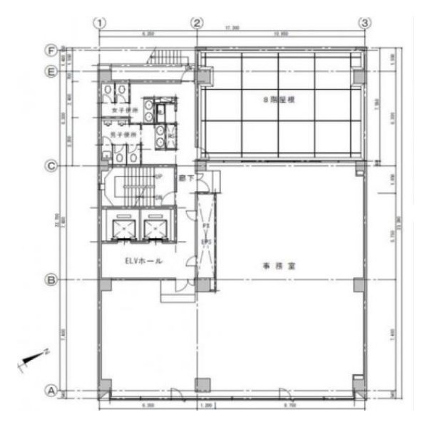
| 面積 | 107.17坪 |
| 契約形態・期間 | 普通借家 |
| 空調方式 | 個別空調 |
| 床仕様 | 相談 |
| 天井高 | 2,500mm |
| フロア特徴 | 基準階100坪以上の分割区画、 トイレ男女別 |
※月額費用、坪単価ともに税別の価格です
浅草橋ミハマビル本館 8階 は現在募集がありません。
この物件の最新状況のご確認は、下記の問合せフォームをご利用ください。
この物件の最新状況のご確認は、下記の問合せフォームをご利用ください。
浅草橋ミハマビル本館 の情報
- 所在地
- 東京都台東区浅草橋3-20-15
- 最寄り駅
- 蔵前駅徒歩4分、浅草橋駅徒歩4分
- 竣工
- 1989年
- 規模
- 地上9階
- 構造
- SRC造(鉄骨鉄筋コンクリート造)
- 耐震基準
- 新耐震基準適合
- セキュリティ
- 機械警備(24時間監視)
- エントランス
- 平日開放
- エレベーター総数
- 2基
- 駐車場設備
- 要確認
浅草橋ミハマビル本館 の募集区画 (総募集面積 136.42坪)
| 図面 | 階数 | 坪数 | 月額費用 | 坪単価 | 入居可能日 | |
|---|---|---|---|---|---|---|
![]() | 8階 | 59.01坪 | 885,150円 | 15,000円 | 即時 | 検討リスト お問い合わせ |
![]() | 9階 | 77.41坪 | 1,315,970円 | 17,000円 | 2026/1/中 | 検討リスト お問い合わせ |
※月額費用、坪単価 ともに共益費込・税別の価格です
浅草橋ミハマビル本館 の内装イメージ
基準階は約59坪の無柱空間で、レイアウト効率が高い設計。OAフロア、個別空調、男女別トイレ、24時間利用可能な機械警備、エレベーター2基を完備しています。機械式立体駐車場(月額35,000円・税別)も併設されており、車利用にも対応。新耐震基準で安心して長く利用できる機能的なオフィスビルです。快適な執務環境とセキュリティの良好さが魅力です。
浅草橋ミハマビル本館 の募集終了区画
近くの物件紹介
台東区のエリア
近くの駅
| 取扱態様 | 仲介 |
|---|---|
| 取扱会社 | 株式会社アドマイアー 東京都中央区日本橋3-2-3ユニバース第1ビル2F TEL. 03-5204-1031 宅地建物取引業免許 東京都知事(3)第94663号 マンション管理業免許 国土交通大臣(2)第034224号 賃貸住宅管理業免許 国土交通大臣(01)第005938号 |












































