東京デザインビル 2階 22.74坪(品川区、東五反田、五反田)
募集終了
| 種別(用途) | 事務所 |
|---|---|
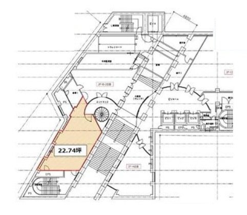
| 階数 | 2階 |
| 部屋番号 | 2F |
| 面積 | 22.74坪 |
| 契約形態・期間 | 普通借家 2年 |
| 空調方式 | 個別空調 |
| 床仕様 | スケルトン |
| 天井高 | 2,600mm |
| フロア特徴 | 基準階100坪以上の分割区画 |
※月額費用、坪単価ともに税別の価格です
東京デザインビル 2階 は現在募集がありません。 (最終確認日: 2025年7月14日)
この物件の最新状況のご確認は、下記の問合せフォームをご利用ください。
この物件の最新状況のご確認は、下記の問合せフォームをご利用ください。
東京デザインビル の情報
- 所在地
- 東京都品川区東五反田5-25-19
- 最寄り駅
- 五反田駅徒歩3分
- 竣工
- 1989年
- 規模
- 地上9階・地下2階
- 耐震基準
- 新耐震基準適合
- セキュリティ
- 共用部警備なし(簡易管理)
- エントランス
- 平日開放
- エレベーター総数
- 4基
- 駐車場設備
- 要確認
東京デザインビル の募集区画 (総募集面積 0.00坪)
現在募集はありません。
東京デザインビル の内装イメージ
室内はOAフロアとタイルカーペットを採用し、快適なオフィス環境を実現しています。個別空調や機械警備、男女別トイレなど、働く人にとってうれしい設備がしっかり整っています。エレベーターは24時間利用可能で、駐車場も完備。白を基調とした明るい内装に、可動式のデスクや椅子、ホワイトボードも揃っているので、会議やセミナーにもぴったり。新耐震基準にも対応しており、安心して長く使えるオフィスです。
東京デザインビル の募集終了区画
近くの物件紹介
品川区のエリア
近くの駅
| 取扱態様 | 仲介 |
|---|---|
| 取扱会社 | 株式会社アドマイアー 東京都中央区日本橋3-2-3ユニバース第1ビル2F TEL. 03-5204-1031 宅地建物取引業免許 東京都知事(3)第94663号 マンション管理業免許 国土交通大臣(2)第034224号 賃貸住宅管理業免許 国土交通大臣(01)第005938号 |









































