Biz Feel Kyobashi 3階 22.31坪(中央区、京橋、宝町、銀座一丁目)
京橋駅徒歩圏に位置し、スタイリッシュな外観と整形区画が魅力の洗練されたデザインオフィス。
募集終了
| 種別(用途) | 事務所 |
|---|---|
| 階数 | 3階 |
| 部屋番号 | 3F |
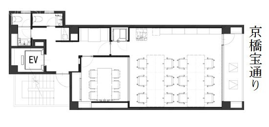
| 面積 | 22.31坪 |
| 契約形態・期間 | 普通借家 2年 |
| 空調方式 | 個別空調 |
| 床仕様 | OAフロア タイルカーペット |
| 天井高 | 要確認 |
| フロア特徴 | セットアップ |
※月額費用、坪単価ともに税別の価格です
Biz Feel Kyobashi 3階 は現在募集がありません。 (最終確認日: 2025年9月17日)
この物件の最新状況のご確認は、下記の問合せフォームをご利用ください。
この物件の最新状況のご確認は、下記の問合せフォームをご利用ください。
Biz Feel Kyobashi の情報
- 所在地
- 東京都中央区京橋2-11-7
- 最寄り駅
- 宝町駅徒歩1分、京橋駅徒歩2分、銀座一丁目駅徒歩6分
- 竣工
- 1987年
- 規模
- 地上6階・地下1階
- 構造
- SRC造(鉄骨鉄筋コンクリート造)
- 耐震基準
- 新耐震基準適合
- セキュリティ
- 機械警備(24時間監視)
- エントランス
- 平日開放
- エレベーター総数
- 1基
- 駐車場設備
- 要確認
- 設備
- 24時間(要ICカード)
Biz Feel Kyobashi の募集区画 (総募集面積 0.00坪)
現在募集はありません。
Biz Feel Kyobashi の内装イメージ
Biz Feel Kyobashiビルの室内は全館がセットアップ仕様で提供され、入居後すぐに業務開始が可能です。基準階22.31坪のコンパクトなフロアは整形で、レイアウト効率が高く無駄のない配置が可能です。天井高3,000mmを確保しており、コンパクトながら開放感を実現。OAフロア床高仕様とタイルカーペットを採用しており、配線処理が容易で快適なワークスペースを構築できます。空調は個別方式で、時間帯や利用人数に応じた柔軟な調整が可能。共用部には男女別トイレを備え、エレベーター1基と機械警備によるセキュリティで24時間利用可能な環境が整っています。















Biz Feel Kyobashi の募集終了区画
近くの物件紹介
中央区のエリア
近くの駅
| 取扱態様 | 仲介 |
|---|---|
| 取扱会社 | 株式会社アドマイアー 東京都中央区日本橋3-2-3ユニバース第1ビル2F TEL. 03-5204-1031 宅地建物取引業免許 東京都知事(3)第94663号 マンション管理業免許 国土交通大臣(2)第034224号 賃貸住宅管理業免許 国土交通大臣(01)第005938号 |






































