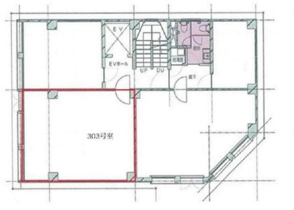
秋和(しゅうわ)ビル 3階【303】 13.00坪(千代田区、神田三崎町、水道橋、神保町)
募集中
| 種別(用途) | 事務所 |
|---|---|
| 階数 | 3階 |
| 部屋番号 | 303 |
| 面積 | 13.00坪 |
| 賃料 | 136,500円(坪単価10,500円) |
| 共益費 | 19,500円(坪単価1,500円) |
| 合計 | 156,000円(坪単価12,000円) |
| 敷金・保証金 | 682,500円(5ヶ月) |
| 更新料 | 1ヶ月 |
| 償却 | 2ヶ月 |
| 礼金 | なし |
| 契約形態・期間 | 普通借家 2年 |
| 空調方式 | 個別空調 |
| 床仕様 | OAフロア タイルカーペット |
| 天井高 | 要確認 |
※月額費用、坪単価ともに税別の価格です
秋和(しゅうわ)ビル の情報
- 所在地
- 東京都千代田区神田三崎町3-2-13
- 最寄り駅
- 水道橋駅徒歩4分、神保町駅徒歩9分、飯田橋駅徒歩15分
- 竣工
- 1972年
- 規模
- 地上7階
- 構造
- RC造(鉄筋コンクリート造)
- エントランス
- 平日開放
- エレベーター総数
- 1基
- 駐車場設備
- 要確認
秋和(しゅうわ)ビル の募集区画 (総募集面積 25.50坪)
| 図面 | 階数 | 坪数 | 月額費用 | 坪単価 | 入居可能日 | |
|---|---|---|---|---|---|---|
![]() | 3階 | 13.00坪 | 156,000円 | 12,000円 | 2026/1/7 | 検討リスト お問い合わせ |
![]() | 4階 | 12.50坪 | 150,000円 | 12,000円 | 2025/12/17 | 検討リスト お問い合わせ |
※月額費用、坪単価 ともに共益費込・税別の価格です
秋和(しゅうわ)ビル の内装イメージ




秋和(しゅうわ)ビル の募集終了区画
近くの物件紹介
千代田区のエリア
近くの駅
| 取扱態様 | 仲介 |
|---|---|
| 取扱会社 | 株式会社アドマイアー 東京都中央区日本橋3-2-3ユニバース第1ビル2F TEL. 03-5204-1031 宅地建物取引業免許 東京都知事(3)第94663号 マンション管理業免許 国土交通大臣(2)第034224号 賃貸住宅管理業免許 国土交通大臣(01)第005938号 |





























