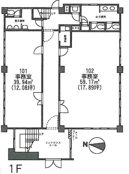
新宿山崎ビル 1階【102】 17.89坪(新宿区、新宿、新宿三丁目、東新宿)
募集終了
| 種別(用途) | 事務所 |
|---|---|
| 階数 | 1階 |
| 部屋番号 | 102 |
| 面積 | 17.89坪 |
| 契約形態・期間 | 普通借家 2年 |
| 空調方式 | 個別空調 |
| 床仕様 | タイルカーペット |
| 天井高 | 要確認 |
| フロア特徴 | トイレ男女別 |
※月額費用、坪単価ともに税別の価格です
新宿山崎ビル 1階【102】 は現在募集がありません。
この物件の最新状況のご確認は、下記の問合せフォームをご利用ください。
この物件の最新状況のご確認は、下記の問合せフォームをご利用ください。
新宿山崎ビル の情報
- 所在地
- 東京都新宿区新宿6-8-5
- 最寄り駅
- 新宿三丁目駅徒歩6分、東新宿駅徒歩7分、新宿駅徒歩13分
- 竣工
- 1963年
- 規模
- 地上4階
- 構造
- RC造(鉄筋コンクリート造)
- セキュリティ
- 機械警備(24時間監視)
- エントランス
- 平日開放
- エレベーター総数
- 0基
- 駐車場設備
- 要確認
新宿山崎ビル の募集区画 (総募集面積 0.00坪)
現在募集はありません。
新宿山崎ビル の募集終了区画
近くの物件紹介
新宿区のエリア
近くの駅
| 取扱態様 | 仲介 |
|---|---|
| 取扱会社 | 株式会社アドマイアー 東京都中央区日本橋3-2-3ユニバース第1ビル2F TEL. 03-5204-1031 宅地建物取引業免許 東京都知事(3)第94663号 マンション管理業免許 国土交通大臣(2)第034224号 賃貸住宅管理業免許 国土交通大臣(01)第005938号 |
































