関内駅東側(海側)の賃貸オフィス・貸事務所情報
関内駅東側(海側)エリアは、横浜市中区の日本大通り、海岸通り、本町通りを中心に広がる地域です。主要駅はJR関内駅やみなとみらい線「日本大通り駅」で、交通利便性が抜群です。このエリアには「横浜三塔」(キング・クイーン・ジャック)や「赤レンガ倉庫」、歴史的建造物が点在し、文化的魅力にあふれています。また、官公庁やオフィスビルが集積しており、賃料が比較的割安なため、新規設立企業や外資系企業にも人気のビジネスエリアです。
検索結果 90 件
横浜相生町ビル(横浜市中区、相生町、桜木町、馬車道)
- 所在地
- 神奈川県横浜市中区相生町6-104-2
- 最寄り駅
- 桜木町駅徒歩3分、馬車道駅徒歩3分、関内駅徒歩10分
- 竣工
- 1993年
- 規模
- 地上10階・地下1階
- 耐震基準
- 新耐震基準適合
- セキュリティ
- 機械警備(24時間監視)
- 駐車場設備
- 要確認
横浜相生町ビル の募集区画 (総募集面積 39.17坪)
※月額費用、坪単価 ともに共益費込・税別の価格です
東源元町ビル(横浜市中区、石川町、元町・中華街)
- 所在地
- 神奈川県横浜市中区石川町1-15-6
- 最寄り駅
- 石川町駅徒歩2分、元町・中華街駅徒歩8分
- 竣工
- 1992年
- 規模
- 地上8階・地下1階
- 耐震基準
- 新耐震基準適合
- 駐車場設備
- 要確認
東源元町ビル の募集区画 (総募集面積 21.48坪)
※月額費用、坪単価 ともに共益費込・税別の価格です
横浜馬車道ビル(横浜市中区、太田町、馬車道、関内)
- 所在地
- 神奈川県横浜市中区太田町4-55-2
- 最寄り駅
- 馬車道駅徒歩3分、関内駅徒歩3分、日本大通り駅徒歩8分
- 竣工
- 1988年
- 規模
- 地上9階・地下1階
- 耐震基準
- 新耐震基準適合
- セキュリティ
- 機械警備・有人管理(24時間体制)
- 駐車場設備
- 有(32台)
横浜馬車道ビル の募集区画 (総募集面積 71.60坪)
※月額費用、坪単価 ともに共益費込・税別の価格です
大樹生命横浜桜木町(旧 三井生命横浜桜木町ビル)ビル(横浜市中区、太田町、馬車道、桜木町)
- 所在地
- 神奈川県横浜市中区太田町6-84-2
- 最寄り駅
- 馬車道駅徒歩3分、桜木町駅徒歩5分、関内駅徒歩5分
- 竣工
- 1988年
- 規模
- 地上8階・地下1階
- 耐震基準
- 新耐震基準適合
- セキュリティ
- 機械警備・有人管理(24時間体制)
- 駐車場設備
- 有(機械式58台)
- 設備
- 喫煙室
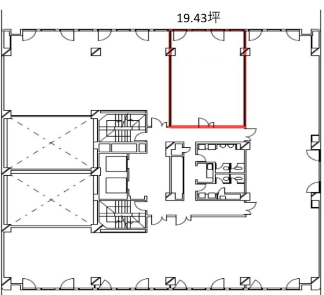
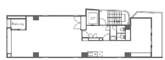
大樹生命横浜桜木町(旧 三井生命横浜桜木町ビル)ビル の募集区画 (総募集面積 19.43坪)
※月額費用、坪単価 ともに共益費込・税別の価格です
横浜日光ビル(横浜市中区、太田町、日本大通り、関内)
- 所在地
- 神奈川県横浜市中区太田町1-7-1
- 最寄り駅
- 日本大通り駅徒歩3分、関内駅徒歩10分、桜木町駅徒歩13分
- 竣工
- 2019年
- 規模
- 地上8階
- 耐震基準
- 新耐震基準適合
- セキュリティ
- 機械警備(24時間監視)
- 駐車場設備
- 要確認
横浜日光ビル の募集区画 (総募集面積 61.37坪)
※月額費用、坪単価 ともに共益費込・税別の価格です
アブソルート横浜馬車道ビル(横浜市中区、太田町、馬車道、関内)
- 所在地
- 神奈川県横浜市中区太田町6-79
- 最寄り駅
- 馬車道駅徒歩2分、関内駅徒歩6分、桜木町駅徒歩8分
- 竣工
- 1985年
- 規模
- 地上8階・地下1階
- 耐震基準
- 新耐震基準適合
- セキュリティ
- 機械警備(24時間監視)
- 駐車場設備
- 要確認
アブソルート横浜馬車道ビル の募集区画 (総募集面積 25.68坪)
※月額費用、坪単価 ともに共益費込・税別の価格です
横浜尾上町ビルディング(横浜市中区、尾上町、関内、馬車道)
- 所在地
- 神奈川県横浜市中区尾上町4-57
- 最寄り駅
- 関内駅徒歩5分、馬車道駅徒歩8分
- 竣工
- 1971年
- 規模
- 地上11階・地下2階
- セキュリティ
- 機械警備(24時間監視)
- 駐車場設備
- 要確認
横浜尾上町ビルディング の募集区画 (総募集面積 63.50坪)
※月額費用、坪単価 ともに共益費込・税別の価格です
LIST EAST BLD.(横浜市中区、尾上町、関内、馬車道)
- 所在地
- 神奈川県横浜市中区尾上町3-35
- 最寄り駅
- 関内駅徒歩2分、馬車道駅徒歩8分、日本大通り駅徒歩10分
- 竣工
- 1963年
- 規模
- 地上8階・地下2階
- セキュリティ
- 有人管理(警備員常駐)
- 駐車場設備
- 要確認
LIST EAST BLD. の募集区画 (総募集面積 38.51坪)
※月額費用、坪単価 ともに共益費込・税別の価格です
ニッセイ横浜尾上町ビル(横浜市中区、尾上町、関内、馬車道)
- 所在地
- 神奈川県横浜市中区尾上町6-81
- 最寄り駅
- 関内駅徒歩4分、馬車道駅徒歩5分
- 竣工
- 1981年
- 規模
- 地上8階・地下1階
- セキュリティ
- 機械警備(24時間監視)
- 駐車場設備
- 有(平置き3台、機械式36台)
- 設備
- 喫煙室、 非接触ICカード、 防災・BCP
ニッセイ横浜尾上町ビル の募集区画 (総募集面積 168.40坪)
※月額費用、坪単価 ともに共益費込・税別の価格です
関内董友ビル(横浜市中区、尾上町、馬車道、関内)
- 所在地
- 神奈川県横浜市中区尾上町6-86-1
- 最寄り駅
- 馬車道駅徒歩5分、関内駅徒歩5分、桜木町駅徒歩8分
- 竣工
- 1990年
- 規模
- 地上9階・地下1階
- 耐震基準
- 新耐震基準適合
- セキュリティ
- 機械警備(24時間監視)
- 駐車場設備
- 要確認
関内董友ビル の募集区画 (総募集面積 30.01坪)
※月額費用、坪単価 ともに共益費込・税別の価格です
オーク関内ビル(横浜市中区、尾上町、関内、馬車道)
- 所在地
- 神奈川県横浜市中区尾上町5-78
- 最寄り駅
- 関内駅徒歩3分、馬車道駅徒歩7分
- 竣工
- 1992年
- 規模
- 地上9階・地下1階
- 耐震基準
- 新耐震基準適合
- セキュリティ
- 機械警備(24時間監視)
- 駐車場設備
- 有(機械式36台)
- 設備
- トイレ男女別
オーク関内ビル の募集区画 (総募集面積 135.27坪)
※月額費用、坪単価 ともに共益費込・税別の価格です
ファインズビルみなとみらい(横浜市中区、海岸通、馬車道)
- 所在地
- 神奈川県横浜市中区海岸通4-20-1
- 最寄り駅
- 馬車道駅徒歩4分
- 竣工
- 1994年
- 規模
- 地上10階
- 耐震基準
- 新耐震基準適合
- セキュリティ
- 機械警備(24時間監視)
- 駐車場設備
- 要確認
ファインズビルみなとみらい の募集区画 (総募集面積 14.04坪)
※月額費用、坪単価 ともに共益費込・税別の価格です
(仮称)横浜市中区海岸通計画(A-1地区)(横浜市中区、海岸通、馬車道)
- 所在地
- 神奈川県横浜市中区海岸通3-9-4
- 最寄り駅
- 馬車道駅徒歩5分
- 竣工
- 2027年
- 規模
- 地上21階・地下1階
- 耐震基準
- 新耐震基準適合
- セキュリティ
- 機械警備(24時間監視)
- 駐車場設備
- 要確認
(仮称)横浜市中区海岸通計画(A-1地区) の募集区画 (総募集面積 923.95坪)
| 図面 | 階数 | 坪数 | 月額費用 | 坪単価 | 入居可能日 | |
|---|---|---|---|---|---|---|
![]() | 8階 | 589.21坪 | お問い合わせください | 2027/2/1 | 検討リスト お問い合わせ | |
![]() | 7階 | 334.74坪 | お問い合わせください | 2027/2/1 | 検討リスト お問い合わせ |
※月額費用、坪単価 ともに共益費込・税別の価格です
NSTビルディングⅥ(横浜市中区、北仲通、馬車道)
- 所在地
- 神奈川県横浜市中区北仲通4-44
- 最寄り駅
- 馬車道駅徒歩1分
- 竣工
- 2023年
- 規模
- 地上9階
- 耐震基準
- 新耐震基準適合
- セキュリティ
- 機械警備(24時間監視)
- 駐車場設備
- 要確認
NSTビルディングⅥ の募集区画 (総募集面積 35.65坪)
※月額費用、坪単価 ともに共益費込・税別の価格です
関内トーセイビルⅡ(横浜市中区、住吉町、関内、馬車道)
- 所在地
- 神奈川県横浜市中区住吉町4-45-1
- 最寄り駅
- 関内駅徒歩2分、馬車道駅徒歩5分
- 竣工
- 1984年
- 規模
- 地上12階・地下1階
- 耐震基準
- 新耐震基準適合
- セキュリティ
- 有人管理(警備員常駐)
- 駐車場設備
- 有(機械式58台)
関内トーセイビルⅡ の募集区画 (総募集面積 35.69坪)
※月額費用、坪単価 ともに共益費込・税別の価格です
みなとビル(横浜市中区、住吉町、関内、馬車道)
- 所在地
- 神奈川県横浜市中区住吉町4-49
- 最寄り駅
- 関内駅徒歩1分、馬車道駅徒歩4分、日本大通り駅徒歩12分
- 竣工
- 2024年
- 規模
- 地上6階
- 耐震基準
- 新耐震基準適合
- セキュリティ
- 機械警備(24時間監視)
- 駐車場設備
- 要確認
みなとビル の募集区画 (総募集面積 27.74坪)
※月額費用、坪単価 ともに共益費込・税別の価格です
belle横浜(横浜市中区、住吉町、関内、日本大通り)
- 所在地
- 神奈川県横浜市中区住吉町1-12-1
- 最寄り駅
- 関内駅徒歩3分、日本大通り駅徒歩5分
- 竣工
- 1988年
- 規模
- 地上9階
- 耐震基準
- 新耐震基準適合
- セキュリティ
- 機械警備(24時間監視)
- 駐車場設備
- 要確認
belle横浜 の募集区画 (総募集面積 89.36坪)
※月額費用、坪単価 ともに共益費込・税別の価格です
スカーフ会館ビル(横浜市中区、住吉町、日本大通り)
- 所在地
- 神奈川県横浜市中区住吉町1-2
- 最寄り駅
- 日本大通り駅徒歩4分
- 竣工
- 1985年
- 規模
- 地上9階
- 耐震基準
- 新耐震基準適合
- セキュリティ
- 機械警備(24時間監視)
- 駐車場設備
- 要確認
スカーフ会館ビル の募集区画 (総募集面積 289.07坪)
| 図面 | 階数 | 坪数 | 月額費用 | 坪単価 | 入居可能日 | |
|---|---|---|---|---|---|---|
![]() | 6階 | 144.54坪 | 1,879,020円 | 13,000円 | 2026/3/上 | 検討リスト お問い合わせ |
![]() | 6階 | 33.94坪 | 441,220円 | 13,000円 | 相談 | 検討リスト お問い合わせ |
![]() | 6階 | 28.02坪 | 364,260円 | 13,000円 | 相談 | 検討リスト お問い合わせ |
![]() | 6階 | 82.57坪 | 1,073,410円 | 13,000円 | 相談 | 検討リスト お問い合わせ |
※月額費用、坪単価 ともに共益費込・税別の価格です
KY常盤町ビル(横浜市中区、常盤町、関内)
- 所在地
- 神奈川県横浜市中区常盤町2-11
- 最寄り駅
- 関内駅徒歩4分
- 竣工
- 1987年
- 規模
- 地上7階・地下1階
- 駐車場設備
- 要確認
KY常盤町ビル の募集区画 (総募集面積 31.00坪)
※月額費用、坪単価 ともに共益費込・税別の価格です
KRCビル(横浜市中区、日本大通、日本大通り、関内)
- 所在地
- 神奈川県横浜市中区日本大通18
- 最寄り駅
- 日本大通り駅徒歩2分、関内駅徒歩9分
- 竣工
- 1973年
- 規模
- 地上9階・地下2階
- セキュリティ
- 機械警備・有人管理(24時間体制)
- 駐車場設備
- 要確認(機械式35台)
KRCビル の募集区画 (総募集面積 1,016.99坪)
| 図面 | 階数 | 坪数 | 月額費用 | 坪単価 | 入居可能日 | |
|---|---|---|---|---|---|---|
![]() | 4階 | 64.13坪 | お問い合わせください | 相談 契約締結後原状回復工事 | 検討リスト お問い合わせ | |
![]() | 8階 | 627.91坪 | お問い合わせください | 即時 | 検討リスト お問い合わせ | |
![]() | 7階 | 190.31坪 | お問い合わせください | 相談 | 検討リスト お問い合わせ | |
![]() | 3階 | 80.92坪 | お問い合わせください | 相談 契約締結後原状回復工事 | 検討リスト お問い合わせ | |
![]() | 7階 | 23.50坪 | お問い合わせください | 相談 | 検討リスト お問い合わせ | |
![]() | 3階 | 30.22坪 | お問い合わせください | 相談 契約締結後原状回復工事 | 検討リスト お問い合わせ |
※月額費用、坪単価 ともに共益費込・税別の価格です
馬車道スクエアビル(横浜市中区、弁天通、馬車道、関内)
- 所在地
- 神奈川県横浜市中区弁天通4-67-1
- 最寄り駅
- 馬車道駅徒歩1分、関内駅徒歩3分
- 竣工
- 1983年
- 規模
- 地上9階
- 耐震基準
- 新耐震基準適合
- セキュリティ
- 機械警備(24時間監視)
- 駐車場設備
- 要確認
馬車道スクエアビル の募集区画 (総募集面積 172.32坪)
※月額費用、坪単価 ともに共益費込・税別の価格です
横浜弁天通第一生命ビル(横浜市中区、弁天通、馬車道、関内)
- 所在地
- 神奈川県横浜市中区弁天通4-59
- 最寄り駅
- 馬車道駅徒歩3分、関内駅徒歩4分、桜木町駅徒歩9分
- 竣工
- 1986年
- 規模
- 地上9階・地下1階
- 耐震基準
- 新耐震基準適合
- セキュリティ
- 機械警備(24時間監視)
- 駐車場設備
- 要確認
横浜弁天通第一生命ビル の募集区画 (総募集面積 72.55坪)
※月額費用、坪単価 ともに共益費込・税別の価格です
宇徳ビル(横浜市中区、弁天通、馬車道、桜木町)
- 所在地
- 神奈川県横浜市中区弁天通6-85
- 最寄り駅
- 馬車道駅徒歩2分、桜木町駅徒歩6分、関内駅徒歩8分
- 竣工
- 1973年
- 規模
- 地上9階・地下3階
- セキュリティ
- 有人管理(警備員常駐)
- 駐車場設備
- 要確認
宇徳ビル の募集区画 (総募集面積 420.24坪)
| 図面 | 階数 | 坪数 | 月額費用 | 坪単価 | 入居可能日 | |
|---|---|---|---|---|---|---|
![]() | 9階 | 234.03坪 | 2,925,375円 | 12,500円 | 即時 | 検討リスト お問い合わせ |
![]() | 7階 | 45.88坪 | 527,620円 | 11,500円 | 即時 | 検討リスト お問い合わせ |
![]() | 5階 | 23.05坪 | 288,125円 | 12,500円 | 2026/2 | 検討リスト お問い合わせ |
![]() | 4階 | 117.28坪 | 1,348,720円 | 11,500円 | 即時 | 検討リスト お問い合わせ |
※月額費用、坪単価 ともに共益費込・税別の価格です
TIMECROSS YOKOHAMA(横浜市中区、本町、馬車道、関内)
- 所在地
- 神奈川県横浜市中区本町3-30-7
- 最寄り駅
- 馬車道駅徒歩2分、関内駅徒歩7分、桜木町駅徒歩10分
- 竣工
- 1986年
- 規模
- 地上9階・地下1階
- 耐震基準
- 新耐震基準適合
- セキュリティ
- 機械警備(24時間監視)
- 駐車場設備
- 有
- 設備
- リフレッシュコーナー、 喫煙室
TIMECROSS YOKOHAMA の募集区画 (総募集面積 83.40坪)
※月額費用、坪単価 ともに共益費込・税別の価格です
横浜第一ビル(横浜市中区、本町、馬車道、日本大通り)
- 所在地
- 神奈川県横浜市中区本町4-40-1
- 最寄り駅
- 馬車道駅徒歩1分、日本大通り駅徒歩7分
- 竣工
- 1992年
- 規模
- 地上9階・地下1階
- 耐震基準
- 新耐震基準適合
- セキュリティ
- 機械警備(24時間監視)
- 駐車場設備
- 要確認
横浜第一ビル の募集区画 (総募集面積 107.75坪)
※月額費用、坪単価 ともに共益費込・税別の価格です
横浜アイランドタワー(横浜市中区、本町、馬車道、桜木町)
- 所在地
- 神奈川県横浜市中区本町6-50-1
- 最寄り駅
- 馬車道駅徒歩1分、桜木町駅徒歩8分、関内駅徒歩9分
- 竣工
- 2003年
- 規模
- 地上27階・地下3階
- 耐震基準
- 新耐震基準適合・免震構造
- セキュリティ
- 機械警備・有人管理(24時間体制)
- 駐車場設備
- 有(123台(ハイルーフ用有))
- 設備
- 防災センター、 非常用発電機
横浜アイランドタワー の募集区画 (総募集面積 140.36坪)
※月額費用、坪単価 ともに共益費込・税別の価格です
A-PLACE馬車道(横浜市中区、本町、馬車道、桜木町)
- 所在地
- 神奈川県横浜市中区本町4-43
- 最寄り駅
- 馬車道駅徒歩1分、桜木町駅徒歩8分、関内駅徒歩8分
- 竣工
- 1975年
- 規模
- 地上12階・地下2階
- セキュリティ
- 機械警備・有人管理(24時間体制)
- 駐車場設備
- 要確認
A-PLACE馬車道 の募集区画 (総募集面積 26.92坪)
※月額費用、坪単価 ともに共益費込・税別の価格です
関内駅前第二ビル(横浜市中区、港町、日ノ出町)
- 所在地
- 神奈川県横浜市中区港町2-9
- 最寄り駅
- 日ノ出町駅徒歩16分
- 竣工
- 1973年
- 規模
- 地上6階・地下1階
- セキュリティ
- 有人管理(警備員常駐)
- 駐車場設備
- 要確認
関内駅前第二ビル の募集区画 (総募集面積 34.18坪)
※月額費用、坪単価 ともに共益費込・税別の価格です
BASEGATE横浜関内タワー(横浜市中区、港町、関内、日本大通り)
- 所在地
- 神奈川県横浜市中区港町1-1-1
- 最寄り駅
- 関内駅徒歩1分、日本大通り駅徒歩7分
- 竣工
- 2025年
- 規模
- 地上33階・地下1階
- 耐震基準
- 新耐震基準適合
- セキュリティ
- 機械警備(24時間監視)
- 駐車場設備
- 有(敷地内:街区共用228台(機械式駐車場)、敷地外:街区共用150台(自走式立体駐車場))
- 設備
- 非常用発電機、 省エネ・環境配慮、 複合施設
BASEGATE横浜関内タワー の募集区画 (総募集面積 5,498.10坪)
| 図面 | 階数 | 坪数 | 月額費用 | 坪単価 | 入居可能日 | |
|---|---|---|---|---|---|---|
![]() | 19階 | 674.53坪 | お問い合わせください | 即時 | 検討リスト お問い合わせ | |
![]() | 20階 | 674.53坪 | お問い合わせください | 即時 | 検討リスト お問い合わせ | |
![]() | 22階 | 674.53坪 | お問い合わせください | 即時 | 検討リスト お問い合わせ | |
![]() | 23階 | 674.53坪 | お問い合わせください | 即時 | 検討リスト お問い合わせ | |
![]() | 24階 | 677.18坪 | お問い合わせください | 即時 | 検討リスト お問い合わせ | |
![]() | 25階 | 707.60坪 | お問い合わせください | 即時 | 検討リスト お問い合わせ | |
![]() | 26階 | 707.60坪 | お問い合わせください | 即時 | 検討リスト お問い合わせ | |
![]() | 27階 | 707.60坪 | お問い合わせください | 即時 | 検討リスト お問い合わせ |
※月額費用、坪単価 ともに共益費込・税別の価格です
関内駅東側エリアは、横浜港に面しており、開放的で美しい景観が魅力です。横浜スタジアムや横浜公園などのレジャースポットも充実しており、仕事とプライベートを両立しやすい環境です。また、歴史的な建造物も多く残っており、落ち着いた雰囲気も持ち合わせています。近年は、スタートアップ企業やクリエイター向けのオフィスも増えており、多様な働き方に対応できる環境が整っています。交通アクセスも良好で、JR根岸線や横浜市営地下鉄ブルーラインが利用可能です。





































































































































































































































































































