渋谷(渋谷区)の賃貸オフィス・貸事務所情報
100年に一度と言われる再開発により、世界最先端の都市へと進化する「渋谷」。Googleなどの巨大IT企業が本社を構えるビットバレーの中心地であり、圧倒的なエネルギーとブランド力を手に入れられる場所です。
検索結果 105 件
並び替え
アートビル(渋谷区渋谷・表参道)
- 所在地
- 東京都渋谷区渋谷2-12-8
- 最寄り駅
- 渋谷駅徒歩7分、表参道駅徒歩7分
- 竣工
- 1980年
- 規模
- 地上5階
- セキュリティ
- 機械警備(24時間監視)
- 駐車場設備
- 無
- 設備
- トイレ男女別
渋谷駅と表参道駅の中間に位置する渋谷2丁目エリアのアートビル。両駅から徒歩7分という利便性を誇り、六本木通りや青山通りにも近い絶好のロケーションです。ベージュの吹付が落ち着いた印象を与える5階建てのビルで、室内は長方形に近い使いやすい形状。トイレや給湯スペースが室外に設置されているため、約26坪のスペースを最大限に執務室として活用できるのが大きな魅力です。個別空調や機械警備を備え、快適かつ安全なビジネス環境をサポート。周辺にはセブン-イレブンやファミリーマートが至近にあり、お洒落なショップや飲食店も点在しています。静かな環境で集中して業務に取り組みたい、スタートアップやクリエイティブな企業様に最適な小規模オフィスです。
アートビル の募集区画 (総募集面積 9.15坪)
※月額費用、坪単価 ともに共益費込・税別の価格です
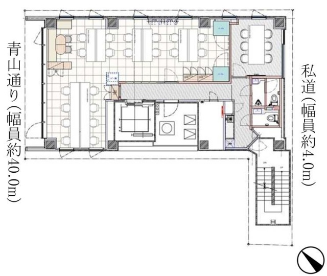
S-Frontier渋谷青山通り(渋谷区渋谷・表参道)
- 所在地
- 東京都渋谷区渋谷2-10-15
- 最寄り駅
- 渋谷駅徒歩6分、表参道駅徒歩7分
- 竣工
- 2014年
- 規模
- 地上10階
- 耐震基準
- 新耐震基準適合
- セキュリティ
- 機械警備(24時間監視)
- 駐車場設備
- 無
渋谷駅と表参道駅の中間に位置し、青山通りから一本入った利便性と静穏を兼ね備えた地上10階建てのオフィスビルです。2014年竣工と比較的新しく、新耐震基準に適合した鉄骨造の構造が企業の安全性を支えます。24時間監視の機械警備を導入しており、セキュリティ面でも高い信頼を誇ります。室内は効率的なレイアウトが可能な整形空間で、個別空調やOAフロア、男女別トイレといった実務に不可欠な設備が整っています。エントランスは平日に開放され、来客時の案内もスムーズです。都心の中枢でありながら、落ち着いて業務に打ち込める環境が、クリエイティブな事業運営を強力にバックアップします。
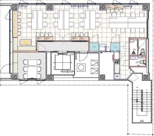
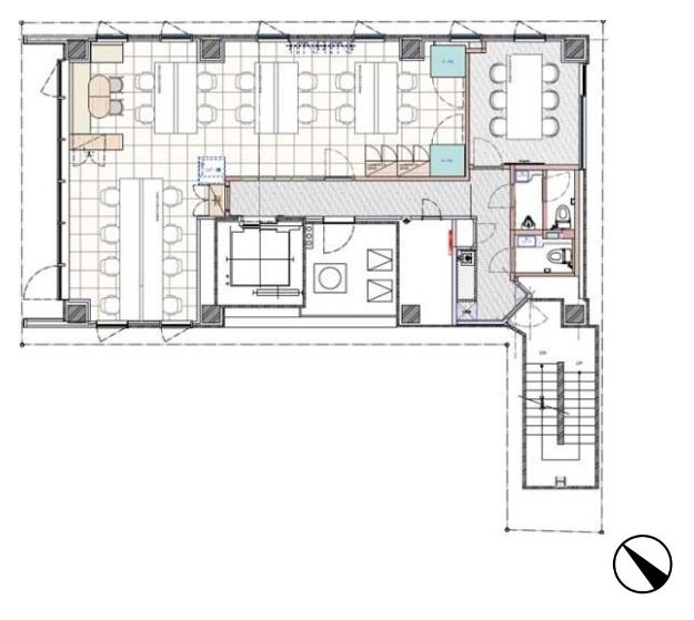
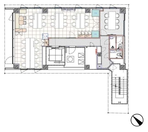
S-Frontier渋谷青山通り の募集区画 (総募集面積 102.51坪)
| 図面 | 階数 | 坪数 | 月額費用 | 坪単価 | 入居可能日 | |
|---|---|---|---|---|---|---|
![]() | 9階 | 34.17坪 | 1,640,160円 | 48,000円 | 即時 | 検討リスト お問い合わせ |
![]() | 10階 | 34.17坪 | 1,708,500円 | 50,000円 | 即時 | 検討リスト お問い合わせ |
![]() | 8階 | 34.17坪 | 1,640,160円 | 48,000円 | 即時 | 検討リスト お問い合わせ |
※月額費用、坪単価 ともに共益費込・税別の価格です
ニューハイツ青山(渋谷区渋谷・表参道・明治神宮前〈原宿〉)
- 所在地
- 東京都渋谷区渋谷1-1-10
- 最寄り駅
- 渋谷駅徒歩5分、表参道駅徒歩8分、明治神宮前〈原宿〉駅徒歩14分
- 竣工
- 1982年
- 規模
- 地上10階・地下1階
- セキュリティ
- 共用部警備なし(簡易管理)
- 駐車場設備
- 要確認
ニューハイツ青山 の募集区画 (総募集面積 39.19坪)
※月額費用、坪単価 ともに共益費込・税別の価格です
「渋谷スクランブルスクエア」や「渋谷ストリーム」などの開業により、街の景色は一変しました。駅周辺(渋谷2丁目・3丁目など)は、ITメガベンチャーやスタートアップが集積する、日本で最もイノベーションが生まれるエリアです。宮益坂・青山通り方面はオフィスビルが多く、六本木通り方面は警察署が近いため治安も良好。採用活動において、最強の武器となるアドレスです。








































