町田駅周辺の賃貸オフィス・貸事務所情報
町田エリアは東京都町田市に位置し、小田急線「町田駅」やJR横浜線「町田駅」を中心に広がる地域です。主要施設には「小田急百貨店」「芹ヶ谷公園」「町田東急ツインズ」「仲見世商店街」があり、商業施設や自然豊かな公園が充実しています。繁華街の活気と郊外の落ち着きを兼ね備え、都心や横浜へのアクセスも良好。賃貸オフィスを探す企業にとって、利便性と多様な魅力を持つエリアです。
検索結果 30 件
グリーンハイム広瀬(町田市小野路町・鶴川)
- 所在地
- 東京都町田市小野路町3171-1
- 最寄り駅
- 鶴川駅バス12分
- 竣工
- 1987年
- 規模
- 地上4階
- 耐震基準
- 新耐震基準適合
- 駐車場設備
- 要確認
グリーンハイム広瀬 の募集区画 (総募集面積 37.70坪)
※月額費用、坪単価 ともに共益費込・税別の価格です
つくし野第二ビル(町田市つくし野)
- 所在地
- 東京都町田市つくし野1-29-1
- 最寄り駅
- つくし野駅徒歩1分
- 竣工
- 1980年
- 規模
- 地上3階
- 駐車場設備
- 要確認
つくし野第二ビル の募集区画 (総募集面積 181.42坪)
※月額費用、坪単価 ともに共益費込・税別の価格です
東京建物町田ビル(町田市中町・小田急相模原)
- 所在地
- 東京都町田市中町1-1-16
- 最寄り駅
- 町田駅徒歩6分、小田急相模原駅徒歩25分
- 竣工
- 1992年
- 規模
- 地上10階・地下2階
- 耐震基準
- 新耐震基準適合
- セキュリティ
- 機械警備(24時間監視)
- 駐車場設備
- 有(19台)
- 設備
- トイレ男女別
東京建物町田ビル の募集区画 (総募集面積 8.86坪)
| 図面 | 階数 | 坪数 | 月額費用 | 坪単価 | 入居可能日 | |
|---|---|---|---|---|---|---|
![]() | 1階 | 8.86坪 | 賃料を確認する (無料・1分) | 即時 | 検討リスト お問い合わせ |
※月額費用、坪単価 ともに共益費込・税別の価格です
森町ビル(町田市中町)
- 所在地
- 東京都町田市中町1-2-2
- 最寄り駅
- 町田駅徒歩2分
- 竣工
- 1975年
- 規模
- 地上5階
- セキュリティ
- 機械警備(24時間監視)
- 駐車場設備
- 有
森町ビル の募集区画 (総募集面積 12.90坪)
| 図面 | 階数 | 坪数 | 月額費用 | 坪単価 | 入居可能日 | |
|---|---|---|---|---|---|---|
![]() | 2階 | 12.90坪 | 賃料を確認する (無料・1分) | 2026/8/1 | 検討リスト お問い合わせ |
※月額費用、坪単価 ともに共益費込・税別の価格です
四谷学院駅前ビル(町田市中町)
- 所在地
- 東京都町田市中町1-2-1
- 最寄り駅
- 町田駅徒歩6分
- 竣工
- 1990年
- 規模
- 地上7階・地下2階
- 耐震基準
- 新耐震基準適合
- セキュリティ
- 機械警備(24時間監視)
- 駐車場設備
- 有(機械式6台)
四谷学院駅前ビル の募集区画 (総募集面積 64.35坪)
| 図面 | 階数 | 坪数 | 月額費用 | 坪単価 | 入居可能日 | |
|---|---|---|---|---|---|---|
![]() | 7階 | 64.35坪 | 賃料を確認する (無料・1分) | 即時 | 検討リスト お問い合わせ |
※月額費用、坪単価 ともに共益費込・税別の価格です
VISTAシュプリーム(町田市中町)
- 所在地
- 東京都町田市中町1-8-12
- 最寄り駅
- 町田駅徒歩9分
- 竣工
- 2005年
- 規模
- 地上4階
- 耐震基準
- 新耐震基準適合
- 駐車場設備
- 要確認
VISTAシュプリーム の募集区画 (総募集面積 13.56坪)
※月額費用、坪単価 ともに共益費込・税別の価格です
町映ビル(町田市原町田)
- 所在地
- 東京都町田市原町田6-3-3
- 最寄り駅
- 町田駅徒歩3分
- 竣工
- 1973年
- 規模
- 地上7階・地下2階
- セキュリティ
- 機械警備・有人管理(24時間体制)
- 駐車場設備
- 有
町映ビル の募集区画 (総募集面積 56.32坪)
| 図面 | 階数 | 坪数 | 月額費用 | 坪単価 | 入居可能日 | |
|---|---|---|---|---|---|---|
準備中 | 3階 | 56.32坪 | 賃料を確認する (無料・1分) | 相談 | 検討リスト お問い合わせ |
※月額費用、坪単価 ともに共益費込・税別の価格です
新宿屋ビル(町田市原町田)
- 所在地
- 東京都町田市原町田6-13-22
- 最寄り駅
- 町田駅徒歩1分
- 竣工
- 1974年
- 規模
- 地上9階・地下2階
- 耐震基準
- 耐震補強済み(新耐震相当)
- セキュリティ
- 機械警備(24時間監視)
- 駐車場設備
- 無
新宿屋ビル の募集区画 (総募集面積 76.82坪)
※月額費用、坪単価 ともに共益費込・税別の価格です
アクティオーレ町田(旧 Tip´s町田)(町田市原町田)
- 所在地
- 東京都町田市原町田6-7-8
- 最寄り駅
- 町田駅徒歩5分
- 竣工
- 1992年
- 規模
- 地上7階・地下1階
- 耐震基準
- 新耐震基準適合
- 駐車場設備
- 無
- 設備
- 貨物EVあり、 複合施設、 土日祝エントランス開放
アクティオーレ町田(旧 Tip´s町田) の募集区画 (総募集面積 741.28坪)
| 図面 | 階数 | 坪数 | 月額費用 | 坪単価 | 入居可能日 | |
|---|---|---|---|---|---|---|
![]() | 5階 | 270.61坪 | 賃料を確認する (無料・1分) | 相談 | 検討リスト お問い合わせ | |
![]() | 6階 | 249.15坪 | 賃料を確認する (無料・1分) | 相談 | 検討リスト お問い合わせ | |
![]() | 7階 | 221.52坪 | 賃料を確認する (無料・1分) | 相談 | 検討リスト お問い合わせ |
※月額費用、坪単価 ともに共益費込・税別の価格です
ミサワビル(町田市原町田)
- 所在地
- 東京都町田市原町田4-2-14
- 最寄り駅
- 町田駅徒歩3分
- 竣工
- 1984年
- 規模
- 地上6階・地下1階
- 耐震基準
- 新耐震基準適合
- セキュリティ
- 機械警備(24時間監視)
- 駐車場設備
- 無
ミサワビル の募集区画 (総募集面積 34.65坪)
※月額費用、坪単価 ともに共益費込・税別の価格です
三井住友銀行町田駅前ビル(町田市原町田)
- 所在地
- 東京都町田市原町田6-3-8
- 最寄り駅
- 町田駅徒歩2分
- 竣工
- 1984年
- 規模
- 地上8階・地下1階
- 耐震基準
- 新耐震基準適合
- セキュリティ
- 機械警備(24時間監視)
- 駐車場設備
- 有
三井住友銀行町田駅前ビル の募集区画 (総募集面積 62.59坪)
| 図面 | 階数 | 坪数 | 月額費用 | 坪単価 | 入居可能日 | |
|---|---|---|---|---|---|---|
準備中 | 4階 | 62.59坪 | 賃料を確認する (無料・1分) | 2026/8 | 検討リスト お問い合わせ |
※月額費用、坪単価 ともに共益費込・税別の価格です
OSJ成瀬ビル(町田市南成瀬・つくし野)
- 所在地
- 東京都町田市南成瀬1-2-2
- 最寄り駅
- 成瀬駅徒歩1分、つくし野駅徒歩17分
- 竣工
- 1993年
- 規模
- 地上5階・地下1階
- 耐震基準
- 新耐震基準適合
- セキュリティ
- 機械警備(24時間監視)
- 駐車場設備
- 有
- 設備
- トイレ男女別
OSJ成瀬ビル の募集区画 (総募集面積 93.91坪)
※月額費用、坪単価 ともに共益費込・税別の価格です
日本生命町田ビル(町田市森野・相模大野・玉川学園前)
- 所在地
- 東京都町田市森野1-13-14
- 最寄り駅
- 町田駅徒歩3分、相模大野駅徒歩23分、玉川学園前駅徒歩41分
- 竣工
- 1981年
- 規模
- 地上9階・地下1階
- セキュリティ
- 機械警備(24時間監視)
- 駐車場設備
- 有(平置き3台、機械式32台)
- 設備
- 喫煙室、 省エネ・環境配慮、 防災・BCP
日本生命町田ビル の募集区画 (総募集面積 26.99坪)
| 図面 | 階数 | 坪数 | 月額費用 | 坪単価 | 入居可能日 | |
|---|---|---|---|---|---|---|
![]() | 2階 | 26.99坪 | 賃料を確認する (無料・1分) | 即時 | 検討リスト お問い合わせ |
※月額費用、坪単価 ともに共益費込・税別の価格です
大樹生命町田ビル(町田市森野)
- 所在地
- 東京都町田市森野1-7-23
- 最寄り駅
- 町田駅徒歩6分
- 竣工
- 1988年
- 規模
- 地上6階・地下1階
- 耐震基準
- 新耐震基準適合
- セキュリティ
- 機械警備・有人管理(24時間体制)
- 駐車場設備
- 有(機械式52台)
大樹生命町田ビル の募集区画 (総募集面積 145.42坪)
| 図面 | 階数 | 坪数 | 月額費用 | 坪単価 | 入居可能日 | |
|---|---|---|---|---|---|---|
![]() | 4階 | 63.08坪 | 賃料を確認する (無料・1分) | 2026/7/1 | 検討リスト お問い合わせ | |
![]() | 6階 | 19.26坪 | 賃料を確認する (無料・1分) | 2026/6/1 | 検討リスト お問い合わせ | |
![]() | 3階 | 63.08坪 | 賃料を確認する (無料・1分) | 即時 | 検討リスト お問い合わせ |
※月額費用、坪単価 ともに共益費込・税別の価格です
町田森野1丁目ビル(町田市森野)
- 所在地
- 東京都町田市森野1-36-9
- 最寄り駅
- 町田駅徒歩3分
- 竣工
- 2007年
- 規模
- 地上8階
- 耐震基準
- 新耐震基準適合
- セキュリティ
- 機械警備(24時間監視)
- 駐車場設備
- 要確認
町田森野1丁目ビル の募集区画 (総募集面積 65.54坪)
| 図面 | 階数 | 坪数 | 月額費用 | 坪単価 | 入居可能日 | |
|---|---|---|---|---|---|---|
![]() | 4階 | 65.54坪 | 賃料を確認する (無料・1分) | 2026/7/中 | 検討リスト お問い合わせ |
※月額費用、坪単価 ともに共益費込・税別の価格です
町田STビル(町田市森野)
- 所在地
- 東京都町田市森野1-33-10
- 最寄り駅
- 町田駅徒歩5分
- 竣工
- 1989年
- 規模
- 地上5階・地下1階
- 耐震基準
- 新耐震基準適合
- セキュリティ
- 機械警備(24時間監視)
- 駐車場設備
- 有(平面式39台)
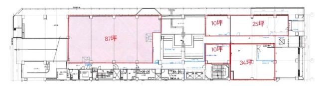
町田STビル の募集区画 (総募集面積 1,087.06坪)
| 図面 | 階数 | 坪数 | 月額費用 | 坪単価 | 入居可能日 | |
|---|---|---|---|---|---|---|
![]() | 1階 | 167.83坪 | 賃料を確認する (無料・1分) | 即時 | 検討リスト お問い合わせ | |
![]() | 3階 | 304.61坪 | 賃料を確認する (無料・1分) | 即時 | 検討リスト お問い合わせ | |
![]() | 3階 | 156.52坪 | 賃料を確認する (無料・1分) | 相談 | 検討リスト お問い合わせ | |
![]() | 3階 | 148.08坪 | 賃料を確認する (無料・1分) | 相談 | 検討リスト お問い合わせ | |
![]() | 4階 | 142.19坪 | 賃料を確認する (無料・1分) | 即時 | 検討リスト お問い合わせ | |
![]() | 1階 | 87.03坪 | 賃料を確認する (無料・1分) | 即時 | 検討リスト お問い合わせ | |
![]() | 1階 | 80.80坪 | 賃料を確認する (無料・1分) | 即時 | 検討リスト お問い合わせ |
※月額費用、坪単価 ともに共益費込・税別の価格です
町田トーセイビル(町田市森野)
- 所在地
- 東京都町田市森野1-25-19
- 最寄り駅
- 町田駅徒歩3分
- 竣工
- 2025年
- 規模
- 地上5階
- 耐震基準
- 新耐震基準適合
- セキュリティ
- 機械警備・有人管理(24時間体制)
- 駐車場設備
- 有(機械式駐車場 3台)
- 設備
- 省エネ・環境配慮、 トイレ男女別
町田トーセイビル の募集区画 (総募集面積 324.20坪)
| 図面 | 階数 | 坪数 | 月額費用 | 坪単価 | 入居可能日 | |
|---|---|---|---|---|---|---|
![]() | 1階 | 59.90坪 | 賃料を確認する (無料・1分) | 即時 | 検討リスト お問い合わせ | |
![]() | 1階 | 68.80坪 | 賃料を確認する (無料・1分) | 即時 | 検討リスト お問い合わせ | |
![]() | 2階 | 158.82坪 | 賃料を確認する (無料・1分) | 即時 | 検討リスト お問い合わせ | |
![]() | 5階 | 36.68坪 | 賃料を確認する (無料・1分) | 即時 | 検討リスト お問い合わせ |
※月額費用、坪単価 ともに共益費込・税別の価格です
町田エリアの賃貸オフィス・店舗は、JR横浜線と小田急線の2路線が利用できる交通の便の良さが魅力です。駅周辺には商業施設や飲食店が充実しており、生活利便性も高いです。近年は再開発が進み、新しいオフィスビルや商業施設が増えてきました。比較的小規模なオフィスが多く、スタートアップ企業や個人事業主向けの物件も豊富です。駅から少し離れると、閑静な住宅街や公園が広がり、落ち着いた環境で働くことができます。また、駅周辺には多様な業種の店舗があり、小売店や飲食店、サービス業など幅広いビジネスチャンスがあります。






















































































































































































