DT外苑 1階 150.06坪(渋谷区、神宮前、外苑前、表参道)
| 賃料 | -  最新の募集条件を問い合わせる | 
|---|---|
| 所在地 | 東京都渋谷区神宮前 | 
| 入居可能日 | - | 
| 最寄り駅 | 外苑前駅徒歩6分、表参道駅徒歩12分 | 
募集終了
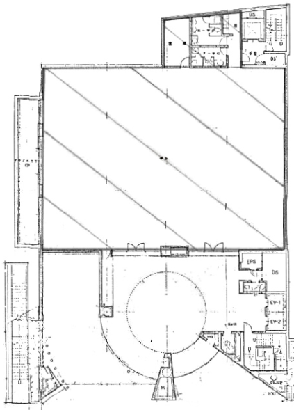
| 種別(用途) | 事務所 | 
|---|---|
| 階数 | 1階 | 
| 部屋番号 | 1F | 
| 面積 | 150.06坪 | 
| 契約形態・期間 | 普通借家 | 
| 空調方式 | 個別空調 | 
| 床仕様 | OAフロア タイルカーペット | 
| 天井高 | 2,570mm | 
| フロア特徴 | 基準階100坪以上の分割区画、 トイレ男女別 | 
※月額費用、坪単価ともに税別の価格です
DT外苑 1階 は現在募集がありません。 
この物件の最新状況のご確認は、下記の問合せフォームをご利用ください。
この物件の最新状況のご確認は、下記の問合せフォームをご利用ください。
DT外苑 の情報
- 所在地
 - 東京都渋谷区神宮前2-4-12
 - 最寄り駅
 - 外苑前駅徒歩6分、表参道駅徒歩12分、原宿駅徒歩14分
 - 竣工
 - 1990年
 - 規模
 - 地上7階・地下1階
 - 構造
 - SRC造(鉄骨鉄筋コンクリート造)
 - 耐震基準
 - 新耐震基準適合
 - セキュリティ
 - 機械警備・有人管理(24時間体制)
 - エントランス
 - 平日開放
 - エレベーター総数
 - 2基
 - 駐車場設備
 - 要確認
 
DT外苑 の募集区画 (総募集面積 83.97坪)
※月額費用、坪単価 ともに共益費込・税別の価格です
DT外苑 の内装イメージ
オフィス室内はOAフロア仕様で、床にはタイルカーペットを採用。広々とした空間はレイアウトの自由度が高く、用途に合わせて柔軟に活用できます。個別空調で快適な室温管理が可能。セキュリティ面では機械警備と有人警備を併用し、安全性も申し分ありません。エレベーター2基、機械式駐車場完備、男女別トイレも専有部に設置されていて、24時間利用できる点もビジネスの効率化に貢献します。
DT外苑 の募集終了区画
近くの物件紹介
渋谷区のエリア
近くの駅
| 取扱態様 | 仲介 | 
|---|---|
| 取扱会社 | 株式会社アドマイアー 東京都中央区日本橋3-2-3ユニバース第1ビル2F TEL. 03-5204-1031 宅地建物取引業免許 東京都知事(3)第94663号 マンション管理業免許 国土交通大臣(2)第034224号 賃貸住宅管理業免許 国土交通大臣(01)第005938号  | 













































